janeway01
Hallo an alle Küchenplanungshelfer,
alle werden sicher "oh man, wie kann man nur" rufen, aber wir sind tatsächlich bei einer "Meterküche" gelandet und ich fühle mich, nachdem ich ein Buch und das Forum hier gelesen habe" übers Ohr gehauen.
Aber nun können wir nix machen und es sollte doch das beste daraus kommen.
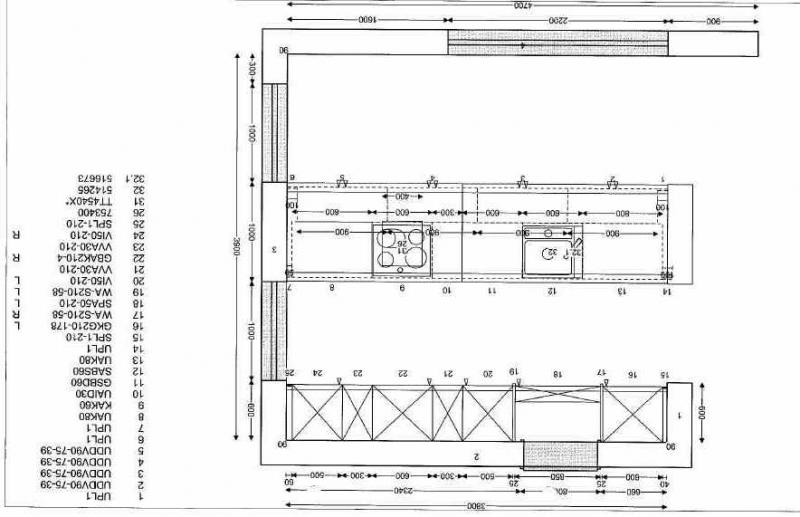
Anbei ist unser Grundriss der Küche.
Wir bauen ein neues Haus und es ist noch alles offen, das ist nur der Vorschlag des Architekten. Was fest steht sind die Wände.
Und das wir eine Tür in den Speis haben, der in Küchenfrontoptik gestalltet werden soll.
Das scheint das größte Problem zu sein, denn der Küchenplaner will uns ne Menge Geld für die "Front" abknöpfen. Außerdem weiß ich nicht wie die Scharniere befestigt werden sollen, ob man 2 Türen oder nur eine nimmt (170° Scharniere). Und das größte Problem ist, dass es keine 80 cm Front gibt. Denn die Türöffnung ist nur 80 cm. Wozu soll ich dann in der Küche den Platz für eine 90 oder 100 cm Front als Tür verschwenden, wenn ich den Platz evtl. mit Schränken ausbauen könnte?
Zunächst haben wir den "Vertrag" über eine Meterküche Celina oder Häcker abgeschlossen. Bei der ersten Planung hat der Verkäufer auf Nolte 150 umgeschwänkt, ich fragte wieso und er sagte, er hätte mehr Möglichkeiten bei den Schränken. Außerdem sei Nolte 150 hochwertiger und vom Meterpreis her teuerer. Wir möchten eine Lack-Küche in Magnolia und bei Celina war das die Preisgruppe 7 und bei Nolte nur 4. Ist Nolte wirklich qualitativ besser als Celina/Häcker?
Ich wollte über die Qualität Auskunft haben, aber der Verkäufer hat nur eine email an den Nolte-Vertreter geschickt, dass er mich anrufen sollte. Das ist bis heute nicht passiert (3 Wochn her).
Bitte um Hilfe, denn ich bin echt ratlos, ob ich dem Verkäufer trauen darf.
Zumal er uns fast bei der Granit-Arbeitsplatte beschissen hat.
Er wollte ca. 5000 € dafür. Wir haben aber vorher im Netz recherhiert und herausgefunden, dass der Preis dafür ca. 3000 € ist. Nach einigen zähen Verhandlungen hat er dann zugestimmt uns diese für 3100 € zu geben!
Den Küchenplan mit Details vom Küchestudio werde ich Euch noch zur verfügung stellen.
Hoffe auf zahlreiche Antworten, viele Grüße
Janeway
alle werden sicher "oh man, wie kann man nur" rufen, aber wir sind tatsächlich bei einer "Meterküche" gelandet und ich fühle mich, nachdem ich ein Buch und das Forum hier gelesen habe" übers Ohr gehauen.
Aber nun können wir nix machen und es sollte doch das beste daraus kommen.
Anbei ist unser Grundriss der Küche.
Wir bauen ein neues Haus und es ist noch alles offen, das ist nur der Vorschlag des Architekten. Was fest steht sind die Wände.
Und das wir eine Tür in den Speis haben, der in Küchenfrontoptik gestalltet werden soll.
Das scheint das größte Problem zu sein, denn der Küchenplaner will uns ne Menge Geld für die "Front" abknöpfen. Außerdem weiß ich nicht wie die Scharniere befestigt werden sollen, ob man 2 Türen oder nur eine nimmt (170° Scharniere). Und das größte Problem ist, dass es keine 80 cm Front gibt. Denn die Türöffnung ist nur 80 cm. Wozu soll ich dann in der Küche den Platz für eine 90 oder 100 cm Front als Tür verschwenden, wenn ich den Platz evtl. mit Schränken ausbauen könnte?
Zunächst haben wir den "Vertrag" über eine Meterküche Celina oder Häcker abgeschlossen. Bei der ersten Planung hat der Verkäufer auf Nolte 150 umgeschwänkt, ich fragte wieso und er sagte, er hätte mehr Möglichkeiten bei den Schränken. Außerdem sei Nolte 150 hochwertiger und vom Meterpreis her teuerer. Wir möchten eine Lack-Küche in Magnolia und bei Celina war das die Preisgruppe 7 und bei Nolte nur 4. Ist Nolte wirklich qualitativ besser als Celina/Häcker?
Ich wollte über die Qualität Auskunft haben, aber der Verkäufer hat nur eine email an den Nolte-Vertreter geschickt, dass er mich anrufen sollte. Das ist bis heute nicht passiert (3 Wochn her).
Bitte um Hilfe, denn ich bin echt ratlos, ob ich dem Verkäufer trauen darf.
Zumal er uns fast bei der Granit-Arbeitsplatte beschissen hat.
Er wollte ca. 5000 € dafür. Wir haben aber vorher im Netz recherhiert und herausgefunden, dass der Preis dafür ca. 3000 € ist. Nach einigen zähen Verhandlungen hat er dann zugestimmt uns diese für 3100 € zu geben!
Den Küchenplan mit Details vom Küchestudio werde ich Euch noch zur verfügung stellen.
Hoffe auf zahlreiche Antworten, viele Grüße
Janeway
Anhänge
