Unbeendet altes Haus, neue offene Küche

Hallo ihr,

was haltet ihr von der letzten Planung?
Irgentwo noch was unpraktisch?
Hättet ihr noch Tipps für die Spülseite, die ist irgendwie noch nicht ganz ausgereift.

Gruß Steffi
 
Steffi, ich habe zu der Aufteilung alles geschrieben ;-) ... Wenn es Ikea werden soll, dann wird die Spülenzeile wohl 40-60-60-40 bleiben müssen. Warum steht der Kühlschrank wieder in der rechten unteren Ecke? Und, den Zeilenabstand mit 170 cm empfinde ich immer noch als zu groß.

Willst du wirklich Schnippelarbeit in der dunklen Ecke der Spülenzeile machen?
 
Hallo Steffi,

Du schreibst daß ihr das Fenster jetzt austauschen werdet, dann sollte die Küche doch besser geplant werden können.

Warum kein U und Spüle vor dem Fenster ?? Wasseranschluß wäre ja verlegbar. Damit wäre der Weg zum Kochfeld kürzer und Du könntest bei der Schnippel- und Spülarbeit zum Fenster rausschauen, anstatt die Wand anzustarren. Auch würde ein U die weiten Wege etwas mildern und die Küche würde wieder "zusammengehörend" aussehen.

Ich habe mal kurz etwas geplant. Bitte nicht auf die Schubladeneinteilung achten, daß kann man später noch "fein-tunen".

Sonic_150814_4.JPG
Sonic_150814_3.JPG
Sonic_150814_2.JPG
Sonic_150814_1.JPG
 

Anhänge

  • Sonic2.KPL
    3,9 KB · Aufrufe: 153
  • Sonic2.POS
    7,7 KB · Aufrufe: 173
Ich glaube, zur Optimierung sollte man mal nicht von Ikea ausgehen. Dann ist man wesentlich flexibler, weil ein guter Küchenhersteller doch "etwas" mehr Schranktypen und Möglichkeiten bietet.

Und falls es preislich eng werden sollte, lieber einen 5-Raster-Hersteller, der trotzdem hochwertiger als Ikea ist...



@Sonic123456 was kam denn mit dem Fenster raus?
 
Wer lesen kann ist klar im Vorteil, danke :-[

Dann würde ich Kerstins Vorschlag bevorzugen - eine Wandhaube ist günstiger als eine Inselhaube.
Bei Anjas Plan gefällt mir der eingeschobene Solokühlschrank nicht, der wirkt, als ob er nicht dazu gehört. Ein Einbau des Gerätes (also ähnlich wie bei Kerstins Küche, nur mit Möbelteilen) wäre schöner, kostet aber mehr.
 
Hallo Steffi,
hast Du überhaupt eine Microwelle ? Im Eingangspost habe ich davon nichts gelesen, denn dann könnte man ja den einen HS (der ja auch Geld kostet) einfach weglassen und die Küche nur mit US planen. Dann würde auch der Standalone-Kühlschrank nicht so komisch aussehen. Falls Du doch eine MW hast, könnte die ja evtl. auch auf der APL stehen.
Ich habe jetzt mal umgeplant, ohne HS und Herd/BO an die Wandseite. Dann könntest Du wie von Möbelprofi vorgeschlagen eine "günstigere" Wand-DAH wählen und die Halbinsel wäre eine reine Arbeitsinsel mit enorm viel Fläche.


Sonic_160814_3.JPG
Sonic_160814_4.JPG
Sonic_160814_2.JPG
Sonic_160814_1.JPG
 

Anhänge

  • Sonic3.KPL
    3,9 KB · Aufrufe: 165
  • Sonic3.POS
    6,7 KB · Aufrufe: 158
Hallo ihr,

danke für eure Hilfe und Gedult mit mir und meiner Küche.:-[

@KerstinB
Der Hauptschnippelplatz wäre wohl die Halbinsel, allerdings müsste man da dann alles erst mal hintragen.
Das der Kühlschrank wieder im Eck steht, ist unpraktisch, ich weiß.
So hat er sich weningestens einigermasen harmonisch ins Gesamtbild einfügen lassen.

@moebelprofis
welche planung von KerstinB meinst du?
Ich würde preislich auch eine Wandhaube bevorzugen, nur hab ich irgentwie zu wenig Wand für Herd und Kühlschrank.

Wenn Herd an die Wand Planrechts, dann müsste ich den Kühlschrank raus aus der Küche.
Hab mal Anjas Plan als Grundlage genommen und Evelins Kühlschranklösung.
Entwurf 11.jpg


Was ich hier nicht so schön finde, sind die Oberschränke neben der DAH.
Außerdem sind das ne menge Schränke = Teuer :(

Von Ikea bin ich übrigens schon fast weg, da die max Arbeitshöhe bei Ikea leider nur 94 cm ist. Müsste mir also Füße und Sockel im Baumarkt besorgen um auf 96cm oder höher zu kommen.

Ich bequatsche das jetzt alles mal mir meinem GöGa.
Mal schauen was er dazu zu sagen hat, er hat sich bisher ziemlich rausgehalten.

Gruß Steffi
 

Anhänge

  • Entwurf 11.KPL
    3,9 KB · Aufrufe: 187
  • Entwurf 11.POS
    8,3 KB · Aufrufe: 151
Hallo Anja, hab deinen Beitrag erst gesehen nachdem ich meinen schon abgeschickt hatte...
Ja ich hab ne Microwelle, die nicht besonders schön aussieht. Den Hochschrank fand ich zum verstecken der Micro und als Vorratschrank praktisch. Muss aber nicht sein.
Meine Vorräte befinden sich im moment in nen 40er Hochschrank bis auf ca 170cm höhe.Es sollten also alle Vorräte in einen 80er US reinpassen.

Deine neue Planung ist meinem 11.Entwurf schon ziemlich ähnlich.
Meinst du der Kühlschrank sieht so harmonischer aus? bin da grad unsicher?
 
Hi Steffi,

Den Kühlschrank in Deiner Planung finde ich nun doch etwas weit weg vom "Koch-Geschehen". Stell Dir mal vor du mußt für jedes Ei, jede Butter, jede Kleinigkeit aus dem KS immer durch den halben Raum latschen. Auch finde ich das nicht so schön mit den beiden HS rechts und links. Da hat mir die "eingekofferte" Lösung von Kerstin sehr viel besser gefallen.

Die OS würde ich weglassen. Du hast durch die Inselschränke wirklich genug Stauraum, da kannst Du auf OS verzichten.
 
Anjas letzte Planung ist definitiv harmonischer, weil der Kühlschrank da eben mehr den Stand-Alone-Effekt hat.
sonic_160814_4-jpg.164018


Man könnte die Halbinsel dort kürzen und nur 2x80er oder 2x90er statt 60-60-90 einplanen. Von der Rückseite dann auch 2x80er oder 2x90er und in der Mitte ein offenes 60er Regal oder so.
 
wenn sie Spüle unterm Fenster ist, was mach ich mit dem Wasserhahn wenn das Fenster doch mal geöffnet werden soll?
Muß je wohl einen zum Wegklappen nehmen? Ist der Klappmachanismus empfindlich oder eventuell sogar undicht, so dass Wasser reinlaufen kann?
 
Du könntest entweder eine abklappbare Armatur wählen, oder wenn ihr sowieso ein neues Fenster aussucht, gleich eines nehmen mit einem festen Glasteil unten und nur oben ein Teil zum Öffnen. Ich schau mal nach ob ich ein Beispielbild finde.

Such mal bei Google nach Fenster zweigeteilt mit Kämpfer bzw. festem Unterteil, da solltest Du mehr Beispielbilder finden oder Euer Fensterbauer kann Euch beraten.
 
Zuletzt bearbeitet:
Oder, bei dieser Aufteilung:
sonic_160814_4-jpg.164018


den Wasserhahn planrechts setzen. Kommt ja auch auf die Spüle an. Dort sollte er aber jedenfalls nicht stören.
 
@Sonic123456 ich meinte die Planung aus Post 71.

@KerstinB : genau, einfach eine Spüle mit Armaturenbank links wählen bzw. bei einer Einbeckenspüle die Armatur ganz links anbringen (es sind meist mehrere Bohrlöcher möglich).
Die Unterfensterarmaturen sind gut und funktionieren auch, nur sind sie etwas teuerer und man ist bei der Modellwahl eingeschränkt, da es nicht jede Armatur als Unterfenstervariante gibt. Insofern ist ein Fenster mit feststehendem unteren Teil zu bevorzugen.



Der Vorteil von Anjas Lösung ist, wie schon gesagt wurde, dass der Kühlschrank praktischer - weil näher - platziert ist. Auch sind es weniger Schränke als bei deiner Planung. Stauraum kann man zwar fast nicht genug haben, er kostet aber auch.
 
Zuletzt bearbeitet:
An die habe ich mich schon gar nicht mehr erinnert .. und ja, da hat man eigentlich schön Platz, spart eine tote Ecke, der Kühlschrank steht zentral und trotzdem hat man den Hochschrank für Mikrowelle /Vorräte:
sonic123456_20140727_kb2-neu_ansicht5-jpg.162741


Und, 2 tolle Schnippelplätze, einen schön am Fenster. Und da ist die Position vom Wasserhahn auch egal. Man kann ein Buffet anrichten, es ist Bewegungsplatz rund um den Tisch vorhanden usw.
 
Wobei ich einschränken muss: mir gefällt die Planung sehr gut, die Miniinsel nicht so.
Bei einer Eigentumswohnung/dem eigenen Haus kann man die zwar am Boden fest bohren, bekommt sie also stabil und wackelfrei montiert.
Ich finde aber, dass die immer so wirken, als ob jmd was geklaut hätte :tounge:
 
Zuletzt bearbeitet:
so..GöGa und ich haben beraten welche Planung uns am besten gefällt.

Also, 2 Zeiler mit Halbinsel wieder verworfen (Entwurf 10) da es unzusammenhängend auschaut.

Kerstins Entwurf mit mini-insel gefällt uns nicht so, auserdem kann man die Miniinsel wegen der FBH nicht in den Boden bohren.

Nach dem Ausschlussprinzip, wird es das U mit Kochstelle an der Wand und Spüle vor dem Fenster.
Das Fenster soll unten feststehend sein, wie Anja vorgeschlagen hat.
Alternativ könnte man auch noch MUPL und SpüMa tauschen, so kommt der Wasserhahn der Spüle mehr aus dem Fensterbereich raus.

Wo wir uns noch uneinig sind, sind Hängeschränke.
GöGa hätte gerne welche für Tassen/Gläser ich finde sie rechts und links neben der DAH nicht schön.
Meiner meinung passen Hängeschränke von der Form her nicht zu einer DAH.

Ich mach mich jetzt mal wieder an die Stauraumplanung umd zu sehen, ob ich alles unterbringe.

Gruß Steffi
 
Ergänzen würde ich aber noch eine Nischenrückwand hinter dem Kochfeld, über die komplette Breite gezogen. Hängeschränke sind in diesem Fall Geschmackssache, Stauraum ist genug vorhanden. Ich finde mit einer schönen Dunstabzugshaube wirkt die Wand auch so stimmig.
 
An die Nischenrückwand hab ich auch schon gedacht.
Weis aber noch nicht wie sie aussehen soll.
Hab hier auch schon schöne Beispiele mit Tafellack gesehen.
Was ich nicht möchte ist eine Nischenrückwand in Arbeitsplatten Farbe/Material.
Fließen tut man gar nicht mehr, oder?

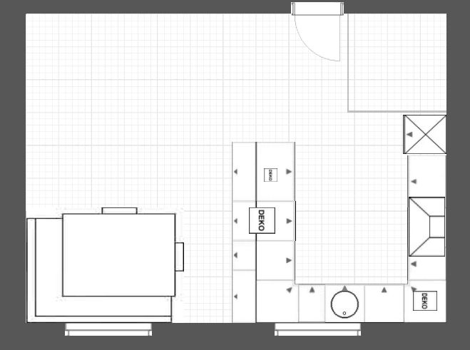
so hier mal die grobe Staurraumplanung, die Regale rechts waren nur ne spielerei, ob welche hinkommen sieht man zum Schluss.

12 a Stauraumplanung.jpg

12 b Stauraumplanung.jpg

bis hier hin ist mir die Schubladenaufteilung ziemlich klar, bzw der inhalt gibt die Rasterung vor.

12 c Stauraumplanung.jpg

Welche Rastereinteilung wäre denn für den Vorrat und für Tassen und Gläser praktisch.
Auch 1-1-2-2 oder ist 2-2-2 sinnvoller?

12 d Stauraumplanung.jpg

an diese Rückseite der Küche solle alles was nicht so oft gennutzt wird und die Teller (die natürlich täglich genutzt werden)

Gruß Steffi
 

Ähnliche Beiträge

Neff Hausgeräte Ballerina Küchen Blum Bewegungstechnologie Weibel - Intelligente Küchenlüftung

Neff Spezial

Blum Zonenplaner

Weibel Abluft-Tuning

Weibel Abluft-Tuning
Zurück
Oben