Omas Garten
Mitglied
- Beiträge
- 3.701
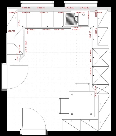
Hm... Die Eckbank macht in der Ecke keinen Sinn: Das Stück Wand neben den HSs ist ca 1 Meter breit. Wenn Du da mit Schränken um die Ecke gehen willst, hast Du eine tote Ecke von 65x65cm. Bleibt also als Sitzfläche zwischen Ecke und HS noch 35 cm Sitzfläche. Außerdem holst Du mit einer Eckbank den Tisch aus der Ecke; dann steht der vor den HS. Ungünstig. Außerdem hat die Eckbank zwar schön viele Sitzplätze, aber nur wenig Tisch-Platz.
Ich habe die Eckbank mal gebaut; finde ich doof:

Ich habe die Eckbank mal gebaut; finde ich doof:

Anhänge
