RH-Neubau sucht schöne Küche

AW: RH-Neubau sucht schöne Küche

... und Variante 1a ... etwas enger am Eingang, aber, die Möglichkeit evtl. doch den Backofen mal hochzustellen?
 

Anhänge

  • kf_cyclist_20100108_Variante1a.kpl
    4,1 KB · Aufrufe: 180
  • kf_cyclist_20100108_Variante1a.POS
    13 KB · Aufrufe: 173
  • kf_cyclist_20100108_Variante1a_Ansicht1.jpg
    kf_cyclist_20100108_Variante1a_Ansicht1.jpg
    206,6 KB · Aufrufe: 182
  • kf_cyclist_20100108_Variante1a_Ansicht2.jpg
    kf_cyclist_20100108_Variante1a_Ansicht2.jpg
    221,8 KB · Aufrufe: 181
  • kf_cyclist_20100108_Variante1a_Grundriss.jpg
    kf_cyclist_20100108_Variante1a_Grundriss.jpg
    53,9 KB · Aufrufe: 170
AW: RH-Neubau sucht schöne Küche

man kann die Schiebetüre natürlich auch IN die Wand laufen lassen ;-) - da muss nur die Lücke grossgenug gelassen werden, für den Schreiner :nageln:

Ansonsten guter Plan, Kerstin (wie immer :kiss:)
 
AW: RH-Neubau sucht schöne Küche

Wir haben zwei Schiebetüren in den Wänden. Für Trockenbauwände gibt es ein Modul, das Wand ist und gleichzeitig die Schiebetür aufnimmt. Das Modul hat bei uns der Trockenbauer gesetzt und der Türenmensch hat die Tür dann eingesetzt. Der Vorteil ist, dass man auch auf der Rückseite an der Wand gut Sachen stellen kann. Bei solch einem kleinen Abstellraum ist das sicher von Vorteil. Solch ein Tür ist zwar etwas teurer, aber die Flexibilität auf der Rückseite macht das meiner Meinung nach wett.

Ich hatte vor einiger Zeit mal in einem Posting Bilder unserer verschiedenen Schiebetüren gezeigt:
https://www.kuechen-forum.de/forum/kategorien/kuechen-ambiente.77/4251-schiebetuer.html#post48056
 
AW: RH-Neubau sucht schöne Küche

Hallo Gabi,
schön, dass du dich am Möbelschubsen beteiligst :top: ... es wäre jedoch nett, wenn du auch immer ein Bild des Alnogrundrisses bei einer Planung mit anhängst. Die Perspektiven kann man manchmal schlecht beurteilen und man braucht dann nicht erst die Alnodateien herunterzuladen, Alnoplaner anwerfen usw. Danke :rose:

Kersten, den würd ich gerne dranhängen, aber ich weiß nicht wie? Hab schon alles versucht :-[
 
AW: RH-Neubau sucht schöne Küche

Hallo Gabi,
ist in Kapitel 3 beschrieben. Kurzform STRG+ALT+S im Planungsmodus und dann als JPG speichern und hier hochladen.
 
AW: RH-Neubau sucht schöne Küche

Hallo Cylist,

ich verfolge mit Interesse die Umgestaltung der Küchenplanung und möchte 2 Dinge zu bedenken geben, da meine Ausgangssituation ähnlich ist und ich über entsprechende Erfahrung verfüge.
3,30 x 3,20 Küche ,HWR 3,20 x 1,40 und Dachboden,keinen Keller, allerdings 2 Personenhaushalt.

Ich glaube 4- 5 Personen in Deiner Küche wird es sicher sehr kuschelig, zumal die Stühle dann immer im Arbeitsweg stehen werden und wenn der HWR noch kleiner wird, kannst Du noch nicht mal mehr einen Wäschekorb in den Händen halten und Dich damit umdrehen.
Und immer alles vom Boden holen, ist auf Dauer sehr unbequem-
Daher versuche möglichst viel Stauraum zu bekommen und evtl. mal zum Essen mit mehreren Leuten auf das WZ ausweichen.:-\
Nichts für ungut;D
Beate
 
AW: RH-Neubau sucht schöne Küche

Hallo Cy

Wenn Du tatsächlich alleine in dem Haus wohnst; wie wäre es den HWR komplett zur Küche zu schlagen = grosse Wohnküche und dafür im oberen Stock einen HWR einzurichten. Da sollte ja genügend Platz sein. Wenn sich die Umstände ändern, könntest Du in der Küche immernoch die Wand zum HWR einziehen lassen und WM nach unten verlegen ..

Die meiste Wäsche fällt eh oben an ...

Für Singel oder Pärchen wäre das sowieso viel praktischer- Stell doch nochmal den Grundriss vom oberen Stock ein :nageln:
 
AW: RH-Neubau sucht schöne Küche

Vanessa,
wieder mal eine Top-Idee ... insbesondere Wama ist vielleicht oben auch viel praktischer :top:
 
AW: RH-Neubau sucht schöne Küche

Hallo,

beim Hauswirtschaftsraum stellt sich mir die Frage, ob der leer ist, wenn das Haus bezugsfertig ist.

Irgendwo muss der Hausanschluß (Strom, Telefon, Wasser, Gas?) und die Übergabestation der Fernwärme sein. Gibts wohlmöglich noch eine Lüftungsanlage? Solche Dinge nehmen nicht eben wenig Platz weg. Oft werden sie in den Hauswirtschaftsraum gepackt. Je nachdem, wie intelligent diese Dinge verteil werden, ist der Raum dann kaum mehr zu nutzen. Wenn der jetzt noch schmaler gemacht wird, könnte es mit der Waschmaschine knapp werden. Wenn die nach oben wandert, wäre sie zwar weg, aber der andere "Krams" muss auch irgendwo hin. Oder kommt das auf den Dachboden oder gibt es sonst ein Versteck dafür?

Und zum Dunstabzugshaubenwandloch: Man gehe mal an neunen Reihenhauszeilen entlang. Die Häuser haben die Küchen alle an der gleichen Stelle. Die Abluftlöcher gehen in der Regel nach vorne raus. Und keinen Nachbarn stört es.

LG, Susanne
 
AW: RH-Neubau sucht schöne Küche

Ich habe den HWR bei uns ganz bewusst ins OG planen lassen, da ich die Wäsche gern dort verarbeiten wollte, wo sie anfällt. Eine Freundin, die kurz vor uns gebaut hatte, hat das so gemacht und als ich das sah, war mir klar, das will ich auch. Wir haben in den HWR einen Abfluss in die Nähe der WaMa planen lassen, falls doch mal Wasser auslaufen sollte. Durch Zufall haben wir hinter dem HWR noch einen sehr günstigen zusätzlichen Abstellraum bekommen (der war nicht geplant, ergab sich aber durch Integrieren der Garage ins Haus und Durchziehen des Daches darüber), so das sich daneben nun auch noch die Möglichkeit zum Trocknen der Wäsche habe. Im Sommer muss ich zwar mit dem Wäschekorb nach unten, also auch einmal durchs Haus, um zur Wäschespinne zu kommen, aber wenn ich mal zusammenrechne, wie oft Wäsche drin und wie oft sie draußen aufs Jahr gerechnet getrocknet wird, kommt drin doch wesentlich häufiger vor.
Trotz des HWR konnten wir aber auf einen Technikrauf auf der Wohnetage nicht verzichten. Wir haben durch die Luft-Wasser-Wärmepumpe noch Wassertanks, die untergebracht werden mussten. Selbst wenn man die nicht hat, fallen fast all die Sachen an, die SuseK genannt hat (Telefonübergabepunkt ist bei uns in der Garage). Die Elektroverteilung hätte man zwar auch im OG machen können, aber da wir den Raum haben, ist sie unten recht praktisch.

Mir kommt da aber noch eine Idee, ich weiß nur nicht, ob sie von der Größe her ausreichend ist. Was ist denn für eine Treppe geplant? Beton oder Holz? Wir haben uns ganz bewusst für eine Betontreppe entschieden. Wir haben festgestellt, dass bei vielen, die keinen Keller haben, unter der Treppe ein Abstellplatz für alles Mögliche ist, der nicht sonderlich ordentlich aussieht (nicht bei ALLEN, das ist mir auch klar ;-)). Deshalb haben wir bei der Betontreppe ein gemauertes Treppengeländer, das bis zum Boden des EG geht. Bei uns sitzt die Treppe genau über dem Technikraum, der Raum geht nun noch unter die Treppe drunter und fasst so einen der Wassertanks und hat daneben noch etwas Abstellfläche. Allerdings ist die Betontreppe im Endeffekt etwas teurer als eine Holztreppe, u.a. auch, weil sie aufwändiger zu fliesen ist (ein guter Freund meiner Eltern hat uns das Treppengeländer gemauert und auch alles gefliest, ohne etwas dafür zu nehmen, dadurch hat sich das bei uns wieder mit den Kosten ausgeglichen).
Ich würde immer wieder eine Betontreppe nehmen, sie schluckt wesentlich mehr Schall als eine Holztreppe, auch wenn das bei einem Single-Haushalt eher weniger von Bedeutung ist. Außerdem ist sie kurz nach dem Gießen der Betondecke betretbar und man kann bei Eigenleistungen ins OG kommen, ohne über die Leiter klettern zu müssen (daran hatte ich vorher nicht gedacht, empfand es aber später als riesigen Vorteil bei meiner Höhenangst :rolleyes:).
Falls eine Betontreppe geplant ist, könnte man evtl. noch ein klein wenig Platz auf der rechten Seite des Hauses abknapsen, um unter der Treppe einen Raum für die Technik zu haben.
Ich weiß, das geht jetzt schon sehr weit, aber fragt nicht, durch welche Zufälle uns manche Idee kam... Und besser eine Idee verworfen, als eine verpasst ;D.
 
AW: RH-Neubau sucht schöne Küche

Ich wollte eine Küche und bekomme eine neues Haus ;-) Das mit dem HWR habe ich mir gut überlegt, der Platz reicht mir aus, zumal es noch einen gemeinsamen externen HTR für alle Reihenhäuser gibt.

Viel Spielraum ist für die Grundrissplanung nicht mehr. Eine Neuaufteilung der Räume geht nicht. Der Grundriss steht ziemlich fix, es sind nur noch Detailänderungen möglich. Deswegen möchte ich mich eigentlich auf die Küche konzentrieren.

Zunächst möchte ich mich für die vielen Vorschläge bedanken. Es waren einige interessante Anregungen dabei, allerdings so richtig "klick" hat es bei mir noch nicht gemacht.

Kerstins Vorschläge sind zwar interessant (vor allem die Nische für die WM), ziehen aber die Küche durch die parallele Anordnung des Essplatzes doch ziemlich in die Länge. Ich finde ich es schöner, wenn Ess- und Kochbereich in der Küche optisch getrennt sind. Zur Not könnte ich noch auf die Nische im Wohnzimmer verzichten und dies der Küche zuschlagen (Raumlänge dann insgesamt 424 cm). Dadurch würde der Essbereich etwas Platz gewinnen.
 
AW: RH-Neubau sucht schöne Küche

Hallo Cyclist,
das Problem deines Küchenplans sind:
- Spüma/Spüle über Eck, daher schlechtere Nutzbarkeit
- schmale Auszugsunterschränke
- meiner Meinung nach kein schöner Sitzplatz ... bei der Ecke Kühlschrank und relativ weit weg vom Fenster
- Im HWR als Schlauch mit 130 cm max. Breite und Tür von Flur .... hast du meiner Meinung nach weniger Platz als in meiner Lösung mit 100 cm Breite und am Ende die 160cm für die Wama.

Was ist eigentlich mit einem Tiefkühlschrank? Willst du nur so ein kleines TK-Fach im Kühlschrank?
 
AW: RH-Neubau sucht schöne Küche

@Kerstin: Mir reicht ein kleines TK-Fach, da ich äußerst selten Tiefgefrorenes verwende. Selbst das kleine Fach ist bei mir meist maximal halb voll.

Den HWR finde ich grundsätzlich nicht zu schmal. Immerhin lebe ich seiten Jahren mit einem Badezimmer, das genauso breit ist ;-) Deine Nische im HWR gefällt mir schon, aber der Sitzplatz in deinem Plan sagt mir leider nicht so zu (sorry). Ich habe bei so einer Anordnung Bedenken, ob die Stühle nicht schnell im Weg stehen. Deswegen die Trennung zwischen Ess- und Kochzone.

Ich habe mich jetzt mal neu versucht, wenn ich die Nische des WZ der Küche zuschlage. Dadurch ist etwas mehr Platz für die Essecke. Ideal ist diese Lösung aber sicher noch nicht.

Zunnächst hatte ich es auch mit dem Herd vorm Fenster versucht, was mir von der Anordnung relativ gut gefallen hat, aber dann habe ich Probleme mit einer (erschwinglichen) Dunstabzugshaube.
 

Anhänge

  • kf_ck_kueche_plan_draufsicht_neu.jpg
    kf_ck_kueche_plan_draufsicht_neu.jpg
    26,3 KB · Aufrufe: 179
  • kf_ck_kueche_plan_draufsicht_neu2.jpg
    kf_ck_kueche_plan_draufsicht_neu2.jpg
    27,3 KB · Aufrufe: 168
AW: RH-Neubau sucht schöne Küche

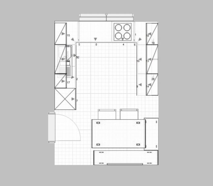
Hallo Cyclist,
mal eine Variante 2 ... Wohnzimmer-Nische bleibt wie geplant.

Mit Stühen im Weg könnte bei Variante 1 schon mal sein.

Hier jetzt schon die von Emilie vorgeschlagenen Schiebetüren-Einlässe in den Wänden. Solche Schiebetüren sollten auch sehr dicht schließen. Sowohl für den Küchenzugang als auch für den Durchgang in den HWR. Dadurch steht halt niemals irgendwo eine Tür doof in den Raum.

Spüma und Spüle auch hier am Fenster nebeneinander und daneben noch ein 30er Schrank, wo z. B. direkt unter der Arbeitsfläche der Biomüll sein könnte ... so wie bei mir:
full


Ansonsten im Grunde wie vorher.
Als Stauraum wären jetzt
- 1x90er
- 1x80er
- 1x60er
sowie der 30er für s.o. oder sonstige Verwendung

Der Sitzplatz ist so doch recht außerhalb des Küchenarbeitsbereiches, aber auch nicht so hinter dem Kühlschrank versteckt.
 

Anhänge

  • kf_cyclist_20100108_Variante2_Grundriss.jpg
    kf_cyclist_20100108_Variante2_Grundriss.jpg
    77,1 KB · Aufrufe: 177
  • kf_cyclist_20100108_Variante2_Ansicht5.jpg
    kf_cyclist_20100108_Variante2_Ansicht5.jpg
    266,9 KB · Aufrufe: 182
  • kf_cyclist_20100108_Variante2_Ansicht4.jpg
    kf_cyclist_20100108_Variante2_Ansicht4.jpg
    274,3 KB · Aufrufe: 180
  • kf_cyclist_20100108_Variante2_Ansicht3.jpg
    kf_cyclist_20100108_Variante2_Ansicht3.jpg
    233,1 KB · Aufrufe: 184
  • kf_cyclist_20100108_Variante2_Ansicht2.jpg
    kf_cyclist_20100108_Variante2_Ansicht2.jpg
    181,7 KB · Aufrufe: 161
  • kf_cyclist_20100108_Variante2_Ansicht1.jpg
    kf_cyclist_20100108_Variante2_Ansicht1.jpg
    191,3 KB · Aufrufe: 166
  • kf_cyclist_20100108_Variante2.POS
    14,1 KB · Aufrufe: 171
  • kf_cyclist_20100108_Variante2.kpl
    4,1 KB · Aufrufe: 142
AW: RH-Neubau sucht schöne Küche

... in Variante 2 gehe ich davon aus, wenn nicht gerade 4 Leute da sind, dass die linken Stühle (Grundrissaufsicht) angeschoben sind, so dass der HWR-Zugang frei ist. Wenn man die Bude vollhat, wird man keinen großen HWR-Verkehr haben ... na, vielleicht mal noch ein Getränk holen, dann kann aber jemand auch mal kurz aufstehen :cool:
 
AW: RH-Neubau sucht schöne Küche

Dein letzter Vorschlag, Kerstin, gefällt mir sehr gut :-) - ich mag Sitzbank und die Ecke schaut gemütlich aus.

Uebrigens Cy; wir haben in unserem Haus 50 Jahre vor dem Fenster OHNE Dunstabzug gekocht - das Fenster war dreigeteilt, und beide Seite auf Kipp - die mitte zu - da ist der Dunst von selber prima abgezogen. Ganz ohne Haube.

Nach dem Umbau plane ich den Herd auch wieder vor dem Fenster, diesmal aber mit Haube, weil es eine offene Küche wird. -
 
AW: RH-Neubau sucht schöne Küche

Hallo,

Kerstins Variante oder so ähnlich könnte man auch umsetzen, wenn der HA-Raum in die WZ-Nische rücken würde und die Tür im Flur bliebe.

Ich gebe nochmal zu bedenken, dass man den HA-Raum nicht so schön mit Schränken/Regalen zu planen kann. Im Grundriss ist der schon total mit Technik verbaut. Da passt bestimmt nicht mehr viel rein, wenn der noch schmaler geworden ist.

@Cyclist
Bei Deiner Planung kann an der Wand zum HA-Raum niemand sitzen. Dazu braucht man mehr als 40 cm. Selbst wenn man spindeldürr ist, kann man sich in der engen Ritze kaum auf einen Stuhl fädeln. Außerdem würde die Wand wohl ständig durch die Stuhllehnen zermackt. In so fern wäre Kerstins Banksitzplatz bedeutend komfortabler.

Generell finde ich den Sitzplatz an der HA-Seite suboptimal. Man sitzt am dunklen Ende der Küche. Ging das nicht auch am Fenster?

LG, Susanne
 
AW: RH-Neubau sucht schöne Küche

Ist wirklich erstaunlich wie fix Ihr mit Euren Anregungen seid. Respekt!
Ich habe mir jetzt noch einmal die vielen Anmerkungen durch den Kopf gehen lassen.

Über einen extra Waschraum im 1. OG wird nachgedacht, der Platz ist vorhanden (hatte ich eigentlich als Schrankzimmer vorgesehen), es müssten dann aber noch die Anschlüsse verlegt werden. Dann entfällt natürlich Kerstins Ausbuchtung für die Waschmaschine im HWR.

Wie ich zuvor bereits erwähnt habe, gibt es einen externen HTR für alle Reihenhäuser; dort befinden sich die zentrale Heizungsanlage, Warmwasseraufbereitungsanlage, Hauptzähler (Heizung, Warmwasser, Trinkwasser), Stromzähler.

Im eigenen HWR befinden sich in erster Linie die Individualzähler sowie die Steuerungseinheit für die Fußbodenheizung. Der Grundriss ist in dieser Hinsicht etwas verwirrend, da es sich hierbei nur um einen Standardgrundriss für den Haustyp handelt, also auch für Häuser ohne externen HTR. Insofern bitte nicht durch die vielen Angaben verwirren lassen.

@Nice-nofret: Ich persönlich dachte immer, dass ich nicht unbedingt eine Dunstabzugshaube brauche (meine Eltern kochen seit Mitte der 70er in ihren Haus ohne), allerdings wurde mir von einem Bekannten (von Beruf Hausverwneuer) gesagt, dass bei den neuen (dichteren) Fenstern eine Dunstabzugshaube notwendig sei, um Schimmelbildung durch Feuchtigkeit zu vermeiden, da man immer Winter kaum immer bei offenem Fenster kochen würde. Kannst du dazu vielleicht etwas sagen? Wenn ich keine Dunstabzugshaube benötige, könnte ich den Herd vor dem Fenster platzieren, dann hätte ich vor dem Fenster Koch- und Arbeitsbereich, was mir eigentlich am meisten zusagt.

@SuseK: Vielleicht ist meine Zeichnung etwas verwirrend (bin erst dabei mich in den ALNO -Planer einzuarbeiten), aber die „Stühle“ an der Wand sollten eine Sitzbank symbolisieren; ich war leider nicht auf die Idee gekommen, einen Tisch als Bank umzufunktionieren, wie KerstinB es in ihren Plan gemacht hat. Zum Thema Helligkeit: Natürlich wäre es schön, den Sitzplatz direkt am Fenster zu haben, aber ich möchte auch die Arbeits- Kochfläche am liebsten am Fenster haben und die Stühle sollen dabei nicht im Weg stehen; daher muss ich mich für eine Variante entscheiden; für beides ist der Raum zu schmal; da ich meist abends besuch habe, aber häufiger tagsüber koche, habe mich dafür entschieden, den Essplatz nicht direkt am Fenster zu haben. Es ist aber vorgesehen, die Zimmertüren zum Flur (außer Gäste-WC/HWR) als Holztüren mit Glaseinsatz (satiniertes Glas) mit Sprossen zu nehmen. Insofern fällt auch Licht vom Flur in die Küche; außerdem ist die Küche nicht so groß, als dass es in der Ecke richtig dunkel sein dürfte.

@KerstinB: Ich habe hin und her überlegt und mit einigen Leuten diskutiert, aber letztendlich bin ich zu dem Schluss gekommen, dass ich keine Schiebetüren haben möchte, da diese meist nicht richtig schließen und mir nur 100cm Breite im HWR doch etwas eng erscheinen. Auch auf die Ausbuchtung für die WM (siehe Anmerkung zu Beginn) möchte ich verzichten.

Ich habe nun noch einmal selbst Hand angelegt, den Herd vors Fenster gestellt. Vorteil ist, dass ich vorm Fenster das Essen zubereiten und Kochen könnte und auch rechts vom Herd (an der Wand) ausreichend Arbeitsfläche ist, falls man mal zu mehreren Essen vorbereiten sollte. Den Kühlschrank habe ich neben die Küchentür verschoben, was sicher nicht ideal ist, aber vielleicht besser als direkt neben der Essecke. Da ich nur 163 cm groß bin und der KS nicht zu beherrschend sein sollte, habe ich eine Höhe von 175 cm gewählt. Den Raum selbst habe ich um 30 cm vergrößert (die Nische im WZ halbiert), damit die Essecke nicht zu eng wird. Außerdem habe ich wieder ein schmales regalbrett unter den Hängeschränken angebracht, für Dinge, die man täglich benötigt bzw. kleine „Schmuckstücke“. Evtl. kann man hier auch später über eine Deckendunstabzugsabhaube nachdenken. Zu Anfang dürfte das zu teuer sein.

Was haltet ihr von dieser Variante?
 

Anhänge

  • kf_cyclist_ck20100110_vers1.POS
    10,4 KB · Aufrufe: 149
  • kf_cyclist_ck20100110_vers1.KPL
    4,1 KB · Aufrufe: 174
  • kf_cyclist_ck20100110_ansicht2_vers1.jpg
    kf_cyclist_ck20100110_ansicht2_vers1.jpg
    34,4 KB · Aufrufe: 160
  • kf_cyclist_ck20100110_ansicht1_vers1.jpg
    kf_cyclist_ck20100110_ansicht1_vers1.jpg
    42 KB · Aufrufe: 166
  • kf_cyclist_ck20100110_draufsicht_vers1.jpg
    kf_cyclist_ck20100110_draufsicht_vers1.jpg
    26,9 KB · Aufrufe: 163
  • kf_cyclist_ck20100110_ansicht3_vers1.jpg
    kf_cyclist_ck20100110_ansicht3_vers1.jpg
    36,8 KB · Aufrufe: 181
AW: RH-Neubau sucht schöne Küche

Hallo Cyclist,
ok ... dann machen wir mal weiter.

Ich bin zwar der Meinung, dass Schiebetüren schon eine Erleichterung wären. Es geht hier um Schiebetüren, die gleich IN die Wand eingelassen sind, nicht Schiebetüren, die vor der Wand laufen.

Bei deiner jetzigen Planung ist der Durchgang Tischecke - Kühlschrank zu eng.

Generell sollte man evtl. überlegen, die Küchentür nach unten (Grundrissaufsicht) zu schieben, da hinter der Küchentür nur toter Raum entsteht.
 
AW: RH-Neubau sucht schöne Küche

Eine in der Wand verlaufende Schiebetür hat auf der Gegenseite eine passende Vertiefung von gut einem cm Tiefe im Türrahmen, in die sie hineinläuft. Von daher denke ich nicht, dass so viel mehr Gerüche durch die Ritzen gehen als bei einer normalen Tür.
Bei einer normalen Tür solltest du vielleicht überlegen, sie zum Flur hin aufgehen zu lassen, so steht sie dir in der Küche nicht im Weg. Ich weiß, man ist es bei den meisten Räumen gewöhnt, dass Türen nach innen aufgehen, aber ich kann dir sagen, dass man sich ganz schnell daran gewöhnt, wenn Türen nach außen aufgehen.
 
Neff Hausgeräte Ballerina Küchen Blum Bewegungstechnologie Weibel - Intelligente Küchenlüftung

Neff Spezial

Blum Zonenplaner

Weibel Abluft-Tuning

Weibel Abluft-Tuning
Zurück
Oben