Unbeendet Offen Küche für Neubauwohnung mit ungünstigen Anschlüssen

nydo

Mitglied
Beiträge
9
Hallo liebe Forumsmitglieder,

wir haben soeben eine Neubauwohnung gekauft, die leider schon etwas länger in Planung ist - das heißt alle Anschlüsse sind da und leider aufwendig zu verlegen (das gleiche gilt auch für das Licht :-( :-(. Wir wollten zB Wasser und Herd auf der Insel, aber es gibt jetzt nur Anschlüsse an der Wand. Parkett ist auch schon verlegt, den müsste man aufreißen etc...

Ich habe mal einen Plan der Küche in Rhino gezeichnet, weil ich mich damit gut auskenne (ich bin Architekt, in Küchenplanung etwas unbedarft), aber kann auch ein anderes Programm verwenden. Uns würde interessieren ob wir irgendwo etwas optimieren können, was die Anordnung der Geräte und Anschlüsse angeht.

Wir möchten gerne eine moderne/minimalistische Küche, die gut in den Wohnbereich (ca. 50m2) integriert ist. Im Moment ist eine lange Küchenzeile mit einem Abschnitt für Herd und Wasser unser Favorit und davor eine Insel, die wir für den Stauraum verwenden (am liebsten alles in Schubladen). Andere Formen wie L oder G haben wir uns auch überlegt, glauben aber dass der Platz im Eck dazu zu knapp bemessen ist. Was die Geräte angeht haben wir über einen Dampfgarer nachgedacht, aber das Gerät meiner Mutter hat einen ziemlichen Reinigungsaufwand nach jeder Verwendung, gilt das für alle oder ist das nur ihres (neu und von Miele ). Deshalb im Moment nur Backofen und Mikrowelle zwecks aufwärmen.

Wir würden uns über Anregungen freuen! Wenn wir mit den Plänen und in der Checkliste noch etwas optimieren können, bitte Bescheid sagen.

Liebe Grüße,

Paul

Checkliste zur Küchenplanung

Anzahl Personen im Haushalt: 3
Davon Kinder?:
Art des Gebäudes?:
Neu-/Umbau, Planänderungen möglich
Körpergrössen aller Hauptbenutzer (wegen Arbeitshöhe ) in cm: 200 und 172
Brüstungshöhe des Fensters (in cm): 40
Fensterhöhe (in cm): 210
Raumhöhe in cm: 252
Heizung: Fussbodenheizung
Sanitäranschlüsse: variabel an aktueller Wand
Ausführung Kühlgerät: Integriert im Hochschrank (60cm)
Kühlgerät Größe: bis 178 cm Höhe
Ausführung Tiefkühl (TK)-Gerät: Eigenständiges Gerät bis 72 cm Höhe
Dunstabzugshaube: Abluft
Backofen etc. hochgebaut?: Wenn möglich
Hochgebauter Geschirrspüler ?: Wenn möglich
Kochfeldart: Induktion
Kochfeldbreite ca. (in cm)?: 80
Spülenform: 1 Becken ohne Abtropffläche
Geplante Heißgeräte: Einbaumikrowelle, Backofen
Küchenstil: Modern
Sitzmöglichkeit in der Küche / im Küchenbereich: Tresen in Barhöhe
Sitzmöglichkeit: Für wieviel Personen?: für 2 Personen
Sitzmöglichkeit: Tisch - wenn gesonderter Tisch oder offene Küche: Vorhandener Tisch
Gewünschte o. vorhandene Tischgröße: 160 x 100
Wofür soll der Sitzplatz in der Küche genutzt werden? Wie häufig?: Frühstück und Snacks jeden Tag, kleinere Mittag- und Abendessen nach Bedarf
Welche Arbeitshöhe ist angedacht (in cm)?: 90 cm, bezw. der Körpergröße angebracht
Was steht auf der Arbeitsplatte oder soll dort stehen?: Kaffeemaschine, Wasserkocher, Obstschale, Sonstiges (evtl. im Beitragstext benennen)
Welche weiteren Küchenmaschinen müssen in der Küche untergebracht werden?: Küchenmaschine, Toaster, Handrührgerät, Mixer, Pürierstab
Was soll in der Küche außer den Standards untergebracht werden?: ALLE Vorräte, Geschirr komplett (nichts in Ess-/Wohnzimmer)
Welchen Stauraum gibt es sonst noch?: Hauswirtschaftsraum, Keller
Was/wie wird gekocht? (Alltagsküche, Menüs, Snacks usw): Alltagsküche, Menüs, Snacks, Frühstück
Wie häufig wird gekocht?: (fast) täglich 2x warm
Wird alleine gekocht? Oder auch gemeinsam? Mit und für Gäste?: Alleine und gemeinsam, auch für Gäste
Was stört an der bisherigen Küche und was soll die neue Küche unbedingt können? Warum?: Spüle und Herd sollen nicht gegenüber sein, geräumiger Kühlschrank mit viel Platz für Gemüse, viel Schneidefläche, Küche soll zentraler Teil des Familienlebens sein, alles soll logisch sein und so das Kochen vereinfachen
Welche Mülltrennung soll in der Küche vorgehalten werden?: Altglas, Altpapier, Biomüll, Restmüll
Steht schon ein Küchenhersteller fest oder wird bevorzugt?: EWE/INTUO, IKEA oder Tischler
Steht schon ein Gerätehersteller fest oder wird bevorzugt?: Im Moment Siemens
Preisvorstellung (Budget): bis 15.000,-
-----------------------------------
Im Threadverlauf hinzugekommen:
vermaßter Küchengrundriss:
Nydo_201509_Küchenraumvermaßt.jpg

Gesamtgrundriss:

Nydo_201509_Gesamtgrundriss.jpg
Ausschnitt Küche:
Nydo_201509_KuecheGrundriss.jpg

Elektrik/Wasserplan

Nydo_201509_KücheWasserElektrik.jpg
 

Anhänge

  • Grundriss_Küche.jpg
    Grundriss_Küche.jpg
    108,6 KB · Aufrufe: 738
  • Flodo - kue3.jpg
    Flodo - kue3.jpg
    103,8 KB · Aufrufe: 502
  • Flodo - kue1.jpg
    Flodo - kue1.jpg
    87 KB · Aufrufe: 421
  • Flodo - kue2.jpg
    Flodo - kue2.jpg
    77,1 KB · Aufrufe: 753
  • Küche_Grundriss genaue Maße.pdf
    36,8 KB · Aufrufe: 350
Zuletzt bearbeitet von einem Moderator:
Hallo, Paul, und herzlich willkommen!

Einen Architekten, der zugibt, dass er in Küchenplanung unbedarft ist, findet man auch nicht so häufig :2daumenhoch:.

Ein Wasseranschluss lässt sich hinter einer übertiefen Arbeitsplatte und normaltiefen Unterschränken relativ einfach auf Putz verlegen, und die Verlegung des Starkstromanschlusses ist an der Wand entlang sowieso einfach.
Wasser auf die Insel wird wohl wirklich nicht gehen.
Strom auf die Insel könntet ihr über die Decke und durch ein Edelstahlrohr an der Inselecke bekommen, oder eine Nut ins Parkett fräsen und nachher mit Mosaiksteinchen wieder füllen (bei Fußbodenheizung natürlich etwas Risiko).
Allerdings bedeutet das Kochfeld auf der Insel auch gleich wieder eine Inselhaube, die optisch im Weg hängt, oder eine höhenverstellbare, ziemlich teure Variante zB von Berbel , oder eine im Unterschrank platzraubende Downdraft -Version, von deren Wirksamkeit nicht alle überzeugt sind. Nächstes Problem einer Kochinsel m Allraum: die Wirksamkeit der Hauben wird wesentlich leichter von Querströmungen beeinflusst.
Letztes Argument: eine reine Arbeitsinsel ist wesentlich variabler nutzbar als Vorbereitungsfläche, als Buffetfläche, als Teigausrollfläche, ...
Von daher: die Anzahl der Hochschränke ("Seitenschränke") reduzieren und auch nach planoben um die Ecke setzen, dann wird die Zeile auch großzügig genug für kochen plus spülen, und die reine Arbeitsinsel (wie ich sie zB auch habe, siehe Link zu meiner Küche unten) genießen.

Die Arbeitshöhe von 90cm scheint mir zu niedrig für euch. Die 172cm große Person sollte das gründlich austesten, zB an einem bügelbrett, wie hoch die Arbeitsfläche sein darf ohne dass sie die Schultern beim schnibbeln hochzieht, die 200cm große Person wird ein dickes Schneidebrett benötigen. Eventuell Zeile und Insel in unterschiedlichen Höhen verwirklichen.

Und ja, alle Dampfgarer wollen trockengewischt werden nach Benutzung.
 
Wenn euch so an der Spül/kochinsel gelegen ist wie wärs denn mit einer Halbinsel? Ist dann eben einseitig an der Wand angedockt und man kann dadurch das Wasser auf die Insel bekommen, alternativ für eine freistehende Insel wäre soetwas wie bei @johaenes
https://www.kuechen-forum.de/forum/...ere-neue-traumkueche.16634/page-4#post-310759 hier musste mitm Wasser für die Insel glaube ich auch getrickst werden. Geht glaub ich durch die Erhöhung an der Wand wo der Sitzplatz ist durch.
Wenn's die Deckenhöhe hergibt könnte man auch den ganzen Bereich erhöhen.
 
Hej Kloni & Menorca,

Danke für das bisherige Feedback. Ich denke mit der Insel ohne Wasser & Kochstelle können wir leben. Es wird dann wahrscheinlich auch mehr Bar. Den Strom in einer Einfresung im Parkett zu machen ist eine Idee. Habt ihr da erfahrungen mit dem Schneiden? Macht man das mit einer Handkreissäge? Wie fein wird das? Habt Ihr Fotos?

Die Hochschränke zu reduzieren ist vielleicht ein guter Punkt. Uns gefällt der "Fensterausschnitt " und der braucht Li. & Re. einfach "Fleisch". Wir wollen das Fenster durch einen Rahmen aus dem Arbeitsplattenmaterial verstärken.

Die Hochschränke an der kurzen Wand beim Kamin weiter zu ziehen haben wir schon versucht, macht es aber so "unklar".

Wie findet ihr die Anordnung der Geräte in Kombination mit Wasser. Wo würdet Ihr Müll anordnen?

Wir haben viele Tischgeräte: Nespreso Cafem. & Milchschäumer, Blender, Wasserkocher, Sprudelmaschine,
Wie kann man die stilsicher nutzbar verstecken.

Ich hätte es gerne so die Geräte leicht nutzbar aber verstaut sind.

Da ich ein Architekt, also visueller Typ bin bitte so viele Bilder zu den Themen wie möglich.

Material:
Wie findet ihr Technistone? Ist preiswert und optisch gut.
Wie ist eure Erfahrung mit Echtholzfunier? Wollen wir ev. f. die Insel nehmen.
Der Rest wird mit Pressspanplatten, Foliert und Lackiert gemacht.
Habt ihr Tips f. die Rückwand? Meine Fr. möcht einen Spiegel, ich überleg ob bedruckte Fliesen nicht schön wären.

DANKE DANKE DANKE,
ihr habt jetzt schon geholfen,

LG Paul
 
Hallo Paul,
Spiegelrückwand sieht superschön aus, wenn alles tiptop aufgeräumt ist, aber sobald was auf der Arbeitsplatte rumsteht, wird's vom Spiegel noch verdoppelt;-) und sieht gleich unordentlich aus. Eine Freundin von mir hat das so, man sieht auch sofort jeden Wassertropfen, wenn man nicht gleich nachwischt. Es ist halt sehr arbeitsaufwändig, wenns gut aussehen soll.
LG Gila
 
Also generell kann man die Küche vom Layout so gestalten, wie du dir das vorgestellt hast. Da müsste aber noch Fein-Tuning betrieben werden.

  • Die Koch/Spülzeile ist in meinen Augen zu kurz, dort findet die meiste Arbeit statt, gerade zwischen Spüle und Kochfeld brauchst du etwas mehr Platz.
  • Du verwendest einen 30er Apotheker, dieser bietet kaum Stauraum (Innenbreite ca. 22cm), ist schwer zu handhaben und dazu noch teuer. Auch die anderen 30er US würde ich vermeiden, nach Möglichkeit alle US 40cm oder breiter.
  • Eine Einbaumikrowelle würde ich nicht nehmen, sind unverhältnismäßig teuer und optisch auch nicht immer schön. Besser wäre ein Standgerät hinter einer Lifttür.
  • Den Backofen nicht in den äußersten Schrank, da man dort immer mit einer Hand an der Wand ist beim Be-u. Entladen des Ofens.

Hier mal mein Vorschlag, wie man dieses Layout optimieren könnte:

Zeile an der Wand (von unten nach oben)
Blende
HS 60 für Vorräte, unten Gefrierschrank
HS 60 mit BO, ggf. 2. Heißgerät darüber
HS 60 mit Kühlschrank
US 60 (Abstellfläche z.B. für Nespresso & Milchaufschäumer)
US 80 mit Kochfeld
US 80
US 40 mit MUPL
US 60 mit Spüle
US 50 (Abstellfläche für Sprudler, Wasserkocher mit Induktion überflüssig)
HS 60 mit GSP, darüber Mikrowelle hinter Lifttür
Blende
Insel dann so aufgeteilt (von unten nach oben)
Wange
US 80, 45 tief
US 60, 45 tief
US 80, 60 tief
Wange
Zu den Materialien:
  • Meine erste Wahl für die Fronten wäre Lack oder Schichtstoff . Folierte Fronten können sich nach einiger Zeit ablösen und haben teilweise nicht so schöne Kanten.
  • Vom Spiegel würde ich klar abraten, der muss nach jeder Aktivität in der Küche gereinigt werden und es darf nichts auf der Arbeitsfläche stehen, auch kann es irritierend sein sich selbst immer beim Kochen zu sehen. Meine Empfehlung ist eine Milchglasfläche, denn die ist einfach zu reinigen und hat eine klare reduzierte Optik (mancher sagt langweilig, aber ein Motiv was einem 20 Jahre gefällt muss man erstmal finden).
 
Zuletzt bearbeitet:
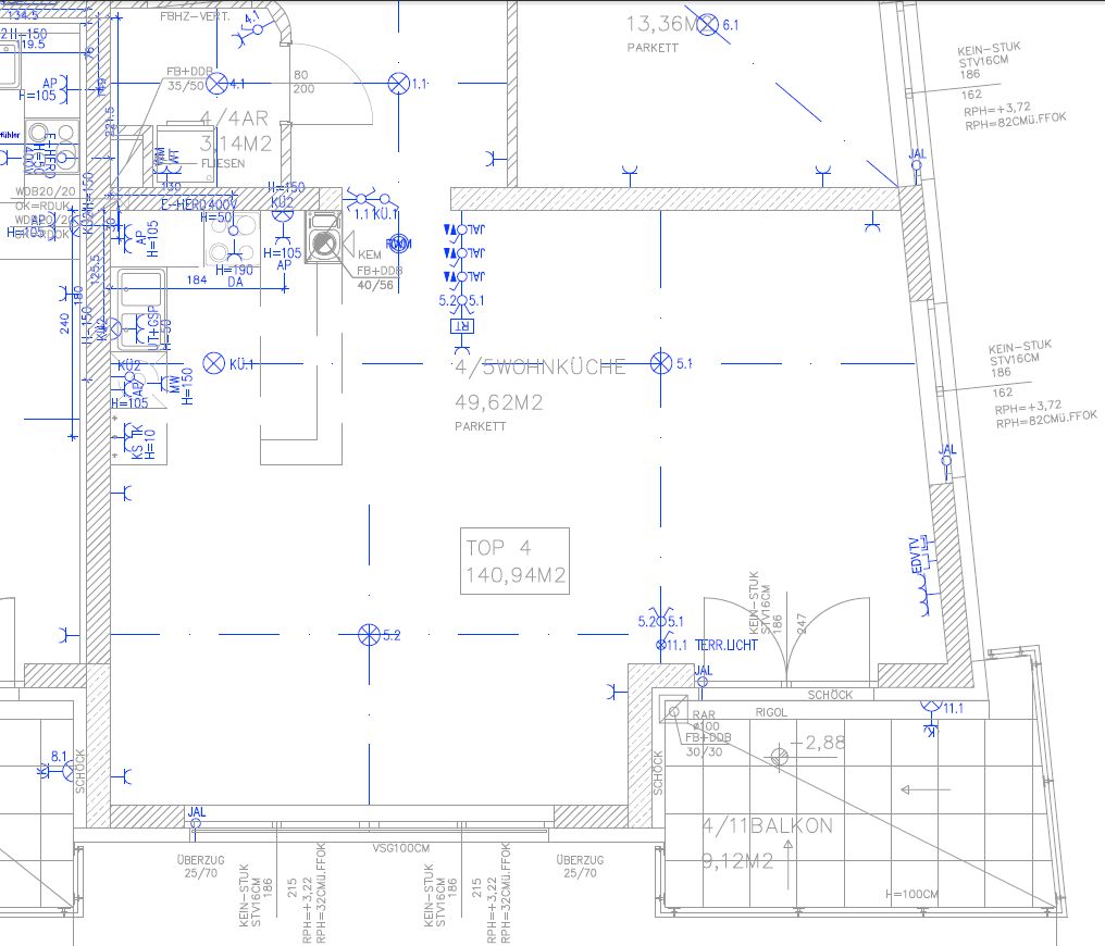
Es ist etwas schwierig, einen neuen Vorschlag zu machen, da die genaue und leserliche Vermaßung des Grundrissen fehlt eine handgeschriebene Skizze reicht dazu auch).
Wie lang ist die planlinke Wand genau?
Wo genau sitzt das Fenster und die breit ist es?
Wie groß ist die Nische planoben und was bedeutet das weiße Viereck neben der Mauer dort?
Wo sind die Anschlüsse?
Naja, ein Archi weiß bestimmt, was eine genaue Vermaßung ist ;-).

Abgesehen davon, dass wir nicht wissen, ob das mit dem Fenster so passt:
Die neue Aufteilung von Nilsblau ist schon sehr gut!
- Genug Platz zwischen Kochfeld und Spüle (Hauptarbeitszone)
- Jeweils genug Platz an den Außenseiten von Kochfeld und Spüle
- MUPL an der richtigen Stelle
- GSP nicht in der Hauptlaufrichtung, so dass er bei größeren Kochaktionen auch mal offen stehen kann
- Backofen nicht neben einer Wand (Ellbogenfreiheit bein Be- und Entladen)

Ein Symmetriefan könnte den Kühlschrank auch noch nach ganz planunten stellen, so dass rechts und links jeweils zwei HS sind. Weiterer Vorteil: der Kühlschrank ist vom Esstisch aus direkt erreichbar.
 
Schade, immer noch kein vermaßter Grundriss. @nydo, kommt da noch etwas? Die Zahlen in deiner PDF-Datei kann man nur lesen, wenn man sie sich riesig groß vergrößert und dann muss man alles selber rechnen, totel hin- und herschieben, weil man wg. der Vergrößerung immer nur einen Mini-Ausschnitt sieht.

Genaue aktuelle Wasserposition von/bis wäre auch sinnvoll ;-) genauso wie die Position des Abluftloches .. auch die Höhenlage des Loches. Hat es denn sinnvollerweise 15 cm Durchmesser?

Bei grifflosen Hochschränken, so wie du sie angeordnet hast, muss man zwischen den Schränken auf den Seiten, wo das Öffnungsprofil ist, auch jeweils noch ca. 2,5 cm für Lisene rechnen, damit man die Türen überhaupt öffnen kann.

Sieht man ganz gut in der Küche von Muckelina

Muckelinas Küche (interessante Variante mit aufgesetzten Griffen)
 
Hallo an alle,


vielen Dank für die vielen Inputs,

hier alle Pläne die ich hab.
LG
Paul
(Mod: Gesamtgrundriss mit Adresse als Anhang gelöscht)
 

Anhänge

  • FLO STG2 OG1 Top4 FL-DET WC2-Kü RevE 2015 05 22.pdf
    78,6 KB · Aufrufe: 348
  • FLO STG2 Top4 Elektro.pdf
    624,4 KB · Aufrufe: 465
Zuletzt bearbeitet von einem Moderator:
@nydo .. Paul, ich habe den Gesamtgrundriss mit Adresse jetzt mal gelöscht. Vorher aber noch Bildauszüge erstellt und diese im ersten Beitrag mit angehängt.

Du hast diesen Plan:
nydo_201509_kuechegrundriss-jpg.194735


nicht mit Maßen? Und kannst die als Architekt auch nicht da herausfinden? Wir wollen doch einfach den Raum im Alnoplaner nachbauen und dazu müssen wir Wandabschnitte etc. mit Maßen haben. Den Raum gibt es doch schon, man kann ihn also auch manuell vermessen ;-) und dann einfahc z. B. dieses Bild da oben ausdrucken, leserlich beschriften, wieder einscannen und zur Verfügung stellen.

BRH der Fenster .. um so realistischer wird die Darstellung.

Es scheint ja auch 2 Raumhöhen in dem Raum zu geben. Wo das beginnt, sollte auch eingetragen sein.

Nach diesem Wasser/Elektrik-Plan:
nydo_201509_kuechewasserelektrik-jpg.194734

scheint aktuell das Wasser ca. 122 cm von planoben zu beginnen, muss also wohl Aufputz verlegt werden.
 
Hallo an Alle,

Bitte um Entschuldigung ich habe offenbar die Daten vorher nicht angesehen bevor ich sie draufgeladen habe.

Hier jetzt der Ausschnitt vom Ausführungsplan und der Möbelplan den ich jetzt an einen Tischler für ein Angebot verschickt habe.

Bitte unsere neue Adresse nicht weitererzählen ;-)

LG
 

Anhänge

  • Kue_ArchiCad15_1 _ 0.pdf
    27,7 KB · Aufrufe: 303
  • Kue_ArchiCad15_1 _ 0.pdf
    27,7 KB · Aufrufe: 322
  • 20150927_FLODO_Kue-AUSSCHNITT.pdf
    186,8 KB · Aufrufe: 325
Ich habe den vermaßten Grundrissplan mal in eine Bilddatei gewandelt und im ersten Beitrag fest mit hochgeladen. Dann findet es jeder schnell wieder.

Was ist mit den unterschiedlichen Raumhöhen, die auf einem der anderen Pläne vermerkt waren (250 und 264 cm). Wird das so realisiert oder erhält der Raum eine durchgehende Höhe von 252 cm, wie in der Checkliste ausgefüllt?

EDIT:
@nydo, die Frage wg. Abluft ist auch noch offen.
 
Zuletzt bearbeitet:
Hallo,

Danke,

Es gibt einen Abluftsammelkanal im li. oberen Raumeck, DM 125 mm

Nun bin ich gespannt auf eure Vorschläge.
 
Ja, Evelin, finde ich auch ;-)

@nydo ... sei doch bitte so gut und beantworte auch noch:
Was ist mit den unterschiedlichen Raumhöhen, die auf einem der anderen Pläne vermerkt waren (250 und 264 cm). Wird das so realisiert oder erhält der Raum eine durchgehende Höhe von 252 cm, wie in der Checkliste ausgefüllt?

So, ich habe mir jetzt mal deine Küchenplanungsdatei genauer angesehen. Reaktionen kommen halt schneller, wenn man alles einzeln als Bilder mit leserlich großen Maßzahlen gespeichert hätte ;-).

Hier mal die wichtigsten Bilder. Ich würde nur ein oder zwei kleinere Änderungen vornehmen .. evtl. nochmal anderes, wenn es tatsächlich unterschiedlich hohe Deckenlösungen sind. Außerdem noch ein paar Hinweise.

Wandzeile:
Nydo_201509_Wandzeile.jpg


Nydo_201509_WandzeileSchnittwgInnenleben.jpg


Du brauchst links zwischen 40er Schrank und Backofen -Schrank sowie zwischen Backofenschrank und dem ganz linken Schrank jeweils eine ca. 2,5 cm starke Zwischenleiste, sonst wird sich ein Eingriff nicht realisieren lassen. Oder eben push to open.

Ich würde den 40er Schrank ganz nach außen links setzen. Dann die nächsten beiden Schränke in der Backofeneinteilung. Wobei dann beim linken Schrank von den beiden eine Drehtür nur in Backofengröße sein könnte. Dort dann die Mikrowelle stellen. Optional hast du dann aber mal die Möglichkeit, die Tür zu entfernen und ein zweites Heißgerät zu integrieren (Dampfbackofen, KVA, Mikrowelle oder ähnliches).

Zur Spülmaschinenseite .. da stimmen die Maße auch nicht. Die erhöhte GSP braucht links eine Wange, da die GSP ja selber schon 60 cm breit ist. Und, ich verstehe nicht ganz die Türzeichnung dazu. Soll da eine Gesamttür davor oder wie stellst du dir das vor? Dann wäre es auch sinnvoll, die geplanten Geräte mal jeweils zur Herstellerseite zu verlinken. Wie soll z. B. die GSP geöffnet werden. Wenn die Mikrowelle dann hier weg ist, passen die 120 cm Breite doch sicherlich gut für
Wir haben viele Tischgeräte: Nespreso Cafem. & Milchschäumer, Blender, Wasserkocher, Sprudelmaschine,

Ich würde mir überlegen, den MUPL auf die Inselseite zu setzen, dafür einen Stauraum - 60er Unterschrank in der Wandzeile.
Nydo_201509_Insel.jpg


Insel dann von Küchenseite von links nach rechts:
80 übertief - 60 MUPL - 80 normaltief. Dabei in den beiden 80ern oben die Schubladenfront geteilt. 20 cm mit Klappe für Steckdose und 60 cm Schublade.

Von der Rückseite würde ich dann die Insel nicht genau halbieren, denn gut 100 cm für 2 Sitzplätze empfinde ich als zu eng und genau halbiert sieht es eigentlich auch nicht schön aus. Daher den Drehtürschrank auf der Rückseite nur in Breite des 80er übertiefen Schranks von der Vorderseite.

----------------
Zur Nischenrückwand ... bedruckte Fliesen habe ich auch mal überlegt. Da kannst du hier aus dem Forum auch mal Gatto1 ansprechen. Das wird vermutlich auf jeden Fall aus mehreren Stücken bestehen müssen.

-----------------
Mal zum Preis ... du hast 15000 Euro als Budget angegeben. Bei der Planung reicht das aber hinten und vorne nicht. Sollten die Geräte da nicht dabei sein, dann denke ich immer noch, dass es zu wenig ist, zumindest bei den gewünschten Materialien und Bedienmechanismen.
------------------
Lüfterbaustein .. wie gesagt, mal verlinken. Tendentiell würde ich da eher an eine Novy -Deckenhaube denken, da leistungsfähiger als ein Lüfterbaustein.
Beispiele für realisierte Deckenhauben
Und
Novy Deckenluefter-Montage und Installation- Thread von Michael
Decken-DAH-Montage bei Träumerle
Decken-DAH-Montage bei andrej
Oder aus Tinis Küche ... da gibt es ganz viele Aufbaubilder
Oder aus TheDudes Küche mit Schattenfuge der Abhängung und an der Fensterseite
Oder aus Toms Küche auch mit Schattenfuge der Abhängung. Hier ist die Abhängung einmal rundum geführt.
Oder aus Weis28 Küche ... in ganz besonderer Form
Oder ganz neu aus Johaenes Küche .. die schöne Wandkochzeile
und jetzt auch aus Lachmoewes Küche .. die Aufbaubilder
 
OT

Mit der relativ kleinen Terrasse wirst du auf die Dauer nicht unbedingt glücklich werden.
Sollten die ca. 3 m-Tiefe aus aus der Bauweise resultieren, würde ich die Kältebrücke sowieso vermeiden und eine Bodenplatte separat betonieren und belegen.
 
Das kommst davon, wenn man nicht den ganzen Thread liest.
Ich habe angenommen, als ich das Wort Balkon las, dass es sich um einen darüber gelegenen Balkon handelt. :cool:
 

Ähnliche Beiträge

Neff Hausgeräte Ballerina Küchen Blum Bewegungstechnologie Weibel - Intelligente Küchenlüftung

Neff Spezial

Blum Zonenplaner

Weibel Abluft-Tuning

Weibel Abluft-Tuning
Zurück
Oben