- Beiträge
- 54
AW: Küche mit Dachschrägen und Gaube
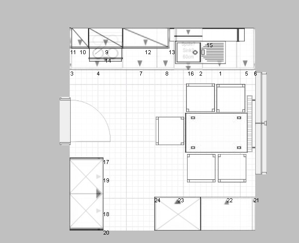
Magnolia,wollte auch eben nochmal schreiben. Mir war beim anderen Thread"offene Küche" aufgefallen, das es deine Küche ist, wo das Kochfeld über 2 Auszüge mittig liegt und die Gewürze in den Auszügen links und rechts liegen,also nicht unter der "Wärme". Die Idee find ich toll! Wenn es eine FH oder ähnliches geben wird,kommen die meisen Gewürze wohl oben rein,aber der Platz wird da eh nicht reichen.Ich merk schon, es gibt hier trotzdem noch viel zulesen,gucken und zu lernen.
Im übrigen hab ich mir jetzt noch mal auf deinem Link deine Küche angesehen,das war die mit der schönen Sitzecke und dem vielen Platz! Die gefiel mir schon beim früheren Durchgucken so gut
.
Magnolia,wollte auch eben nochmal schreiben. Mir war beim anderen Thread"offene Küche" aufgefallen, das es deine Küche ist, wo das Kochfeld über 2 Auszüge mittig liegt und die Gewürze in den Auszügen links und rechts liegen,also nicht unter der "Wärme". Die Idee find ich toll! Wenn es eine FH oder ähnliches geben wird,kommen die meisen Gewürze wohl oben rein,aber der Platz wird da eh nicht reichen.Ich merk schon, es gibt hier trotzdem noch viel zulesen,gucken und zu lernen.
Im übrigen hab ich mir jetzt noch mal auf deinem Link deine Küche angesehen,das war die mit der schönen Sitzecke und dem vielen Platz! Die gefiel mir schon beim früheren Durchgucken so gut

