Chaos^5
Mitglied
- Beiträge
- 2
Hallo ihr Küchenexperten!
Ich stehe vor der Planung meiner neuen Küche und versuche im Dschungel der Möglichkeiten, die Richtige für mich zu finden.
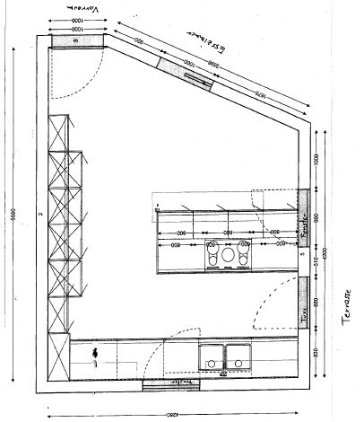
Unser Raum ist sehr groß, aber durch den nicht rechtwinkeligen Grundriss, 2 Fenster und 3 Türen (Vorraum, Esszimmer und Terrasse) etwas schwierig. Unsere ersten Ideen für eine Küche habe ich versucht im Alno -Planer darzustellen (leider nur bedingt gelungen). Die Hochschrankwand soll bis zur Decke gehen, das konnte ich aber nicht abbilden. Ich würde mich über Kommentare und Vorschläge freuen. Grundsätzlich bin ich völlig offen, was den Grundriss der Küche betrifft. Die Wasseranschlüsse sind zur Zeit nicht dort, wo sie benötigt werden, aber kann man verlegen.
Ich habe momentan einen Esstisch in der Küche vor dem Terrassenfenster, auf den ich zugunsten einer Theke verzichten möchte. Unser Esszimmer ist direkt nebenan und wird viel zu wenig genutzt.
Wichtig sind mir:
- ausreichend Stauraum in den Küchenmöbeln, damit nicht alles auf der Arbeitsfläche steht (derzeit habe ich ca. 320 cm reine Arbeitsfläche, die aber mit zu vielen Dingen zugestellt ist)
- Zwei tiefe Spülbecken mit Abtropfmöglichkeit (ich koche mit großen Töpfen, und da ist der Geschirrspüler gleich voll)
- die Küche soll pflegeleicht sein (ich habe keine Lust und Zeit, dauernd mit Putzen beschäftigt zu sein)
- bei den Geräten bin ich noch sehr unsicher; Herd, Backofen , Dampfgarer und Mikrowelle (alles höher eingebaut) brauchen wir, aber eventuell zwei Kombigeräte. Unklar ist auch noch ob mit Festwasseranschluss oder nicht
- Geschirrspüler gerne höher (ich weiß aber bei meinem Entwurf nicht wo)
- großer Kühlschrank eingebaut (ev. mit kleinem TK-Fach für Kräuter)
Den Grundriss (mit einem anderen Programm erstellt) und ein paar Ansichten von meinem Entwurf habe ich versucht hochzuladen.
Ich hoffe, ich habe nichts Wichtiges vergessen, aber fürs Erste sollte das reichen.
Ich freue mich über Unterstützung!!! Vielen Dank!
Checkliste zur Küchenplanung
Anzahl Personen im Haushalt: 5
Davon Kinder?: 3
Art des Gebäudes?: Bestandsbau, (kleinere) Umbauten möglich
Körpergrössen aller Hauptbenutzer (wegen Arbeitshöhe ) in cm: 165 und 175
Brüstungshöhe des Fensters (in cm): 90
Fensterhöhe (in cm): 145
Raumhöhe in cm: 265
Heizung:
Sanitäranschlüsse: vollkommen variabel
Ausführung Kühlgerät: Integriert im Hochschrank (60cm)
Kühlgerät Größe: bis 178 cm Höhe
Ausführung Tiefkühl (TK)-Gerät: Nicht erforderlich bzw. steht woanders
Dunstabzugshaube: Abluft
Backofen etc. hochgebaut?: Ja
Hochgebauter Geschirrspüler ?: Wenn möglich
Kochfeldart: Induktion
Kochfeldbreite ca. (in cm)?: ?
Spülenform: 2 Becken mit Abtropffläche
Geplante Heißgeräte: Dampfgarer mit Wasseranschluß, Backofen
Küchenstil: Grifflos
Sitzmöglichkeit in der Küche / im Küchenbereich: Überstehende Arbeitsplatte
Sitzmöglichkeit: Für wieviel Personen?: für 3 Personen
Sitzmöglichkeit: Tisch - wenn gesonderter Tisch oder offene Küche: Keiner
Gewünschte o. vorhandene Tischgröße:
Wofür soll der Sitzplatz in der Küche genutzt werden? Wie häufig?: Frühstück, Kaffee zwischendurch, Mittagessen der Kinder
Welche Arbeitshöhe ist angedacht (in cm)?: 90
Was steht auf der Arbeitsplatte oder soll dort stehen?: Kaffeevollautomat, Wasserkocher, Küchenmaschine, Allesschneider
Welche weiteren Küchenmaschinen müssen in der Küche untergebracht werden?: Toaster, Pürierstab, Sonstiges (evtl. im Beitragstext benennen)
Was soll in der Küche außer den Standards untergebracht werden?: ALLE Vorräte, Geschirr komplett (nichts in Ess-/Wohnzimmer)
Welchen Stauraum gibt es sonst noch?: Keller
Was/wie wird gekocht? (Alltagsküche, Menüs, Snacks usw): unter der Woche wird schnelle Alltagsküche frisch gekocht, am Wochenende und für Gäste auch auswendiger, dazwischen backen die Kinder gerne
Wie häufig wird gekocht?: (fast) täglich 2x warm
Wird alleine gekocht? Oder auch gemeinsam? Mit und für Gäste?: gemeinsam mit Kindern und für Gäste
Was stört an der bisherigen Küche und was soll die neue Küche unbedingt können? Warum?: zu wenige Stauraum, Arbeitsfläche immer vollgestellt
Welche Mülltrennung soll in der Küche vorgehalten werden?: Altglas, Altpapier, Biomüll, Plastik, Alu, Metall total getrennt, Restmüll
Steht schon ein Küchenhersteller fest oder wird bevorzugt?:
Steht schon ein Gerätehersteller fest oder wird bevorzugt?:
Preisvorstellung (Budget):
Ich stehe vor der Planung meiner neuen Küche und versuche im Dschungel der Möglichkeiten, die Richtige für mich zu finden.
Unser Raum ist sehr groß, aber durch den nicht rechtwinkeligen Grundriss, 2 Fenster und 3 Türen (Vorraum, Esszimmer und Terrasse) etwas schwierig. Unsere ersten Ideen für eine Küche habe ich versucht im Alno -Planer darzustellen (leider nur bedingt gelungen). Die Hochschrankwand soll bis zur Decke gehen, das konnte ich aber nicht abbilden. Ich würde mich über Kommentare und Vorschläge freuen. Grundsätzlich bin ich völlig offen, was den Grundriss der Küche betrifft. Die Wasseranschlüsse sind zur Zeit nicht dort, wo sie benötigt werden, aber kann man verlegen.
Ich habe momentan einen Esstisch in der Küche vor dem Terrassenfenster, auf den ich zugunsten einer Theke verzichten möchte. Unser Esszimmer ist direkt nebenan und wird viel zu wenig genutzt.
Wichtig sind mir:
- ausreichend Stauraum in den Küchenmöbeln, damit nicht alles auf der Arbeitsfläche steht (derzeit habe ich ca. 320 cm reine Arbeitsfläche, die aber mit zu vielen Dingen zugestellt ist)
- Zwei tiefe Spülbecken mit Abtropfmöglichkeit (ich koche mit großen Töpfen, und da ist der Geschirrspüler gleich voll)
- die Küche soll pflegeleicht sein (ich habe keine Lust und Zeit, dauernd mit Putzen beschäftigt zu sein)
- bei den Geräten bin ich noch sehr unsicher; Herd, Backofen , Dampfgarer und Mikrowelle (alles höher eingebaut) brauchen wir, aber eventuell zwei Kombigeräte. Unklar ist auch noch ob mit Festwasseranschluss oder nicht
- Geschirrspüler gerne höher (ich weiß aber bei meinem Entwurf nicht wo)
- großer Kühlschrank eingebaut (ev. mit kleinem TK-Fach für Kräuter)
Den Grundriss (mit einem anderen Programm erstellt) und ein paar Ansichten von meinem Entwurf habe ich versucht hochzuladen.
Ich hoffe, ich habe nichts Wichtiges vergessen, aber fürs Erste sollte das reichen.
Ich freue mich über Unterstützung!!! Vielen Dank!
Checkliste zur Küchenplanung
Anzahl Personen im Haushalt: 5
Davon Kinder?: 3
Art des Gebäudes?: Bestandsbau, (kleinere) Umbauten möglich
Körpergrössen aller Hauptbenutzer (wegen Arbeitshöhe ) in cm: 165 und 175
Brüstungshöhe des Fensters (in cm): 90
Fensterhöhe (in cm): 145
Raumhöhe in cm: 265
Heizung:
Sanitäranschlüsse: vollkommen variabel
Ausführung Kühlgerät: Integriert im Hochschrank (60cm)
Kühlgerät Größe: bis 178 cm Höhe
Ausführung Tiefkühl (TK)-Gerät: Nicht erforderlich bzw. steht woanders
Dunstabzugshaube: Abluft
Backofen etc. hochgebaut?: Ja
Hochgebauter Geschirrspüler ?: Wenn möglich
Kochfeldart: Induktion
Kochfeldbreite ca. (in cm)?: ?
Spülenform: 2 Becken mit Abtropffläche
Geplante Heißgeräte: Dampfgarer mit Wasseranschluß, Backofen
Küchenstil: Grifflos
Sitzmöglichkeit in der Küche / im Küchenbereich: Überstehende Arbeitsplatte
Sitzmöglichkeit: Für wieviel Personen?: für 3 Personen
Sitzmöglichkeit: Tisch - wenn gesonderter Tisch oder offene Küche: Keiner
Gewünschte o. vorhandene Tischgröße:
Wofür soll der Sitzplatz in der Küche genutzt werden? Wie häufig?: Frühstück, Kaffee zwischendurch, Mittagessen der Kinder
Welche Arbeitshöhe ist angedacht (in cm)?: 90
Was steht auf der Arbeitsplatte oder soll dort stehen?: Kaffeevollautomat, Wasserkocher, Küchenmaschine, Allesschneider
Welche weiteren Küchenmaschinen müssen in der Küche untergebracht werden?: Toaster, Pürierstab, Sonstiges (evtl. im Beitragstext benennen)
Was soll in der Küche außer den Standards untergebracht werden?: ALLE Vorräte, Geschirr komplett (nichts in Ess-/Wohnzimmer)
Welchen Stauraum gibt es sonst noch?: Keller
Was/wie wird gekocht? (Alltagsküche, Menüs, Snacks usw): unter der Woche wird schnelle Alltagsküche frisch gekocht, am Wochenende und für Gäste auch auswendiger, dazwischen backen die Kinder gerne
Wie häufig wird gekocht?: (fast) täglich 2x warm
Wird alleine gekocht? Oder auch gemeinsam? Mit und für Gäste?: gemeinsam mit Kindern und für Gäste
Was stört an der bisherigen Küche und was soll die neue Küche unbedingt können? Warum?: zu wenige Stauraum, Arbeitsfläche immer vollgestellt
Welche Mülltrennung soll in der Küche vorgehalten werden?: Altglas, Altpapier, Biomüll, Plastik, Alu, Metall total getrennt, Restmüll
Steht schon ein Küchenhersteller fest oder wird bevorzugt?:
Steht schon ein Gerätehersteller fest oder wird bevorzugt?:
Preisvorstellung (Budget):
Anhänge
Zuletzt bearbeitet:
