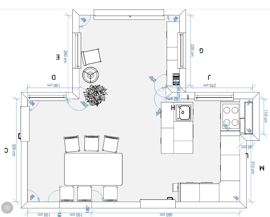
Ich erläutere mal meine Idee.
Ich beginn mal planunten: Das Kochfeld würde ich richtig hinten in die Nische schieben. Dann ist fast das gesamte Fenster frei.
Daneben ein tiefenreduzierter
Unterschrank (irgendwas zwischen 30 und 40 cm, je nach Hersteller), die
Arbeitsplatte würde ich anschrägen.
Ich hab den
Geschirrspüler dahin gestellt, weil
ich bei Kochen irgendwo Abstellplatz brauche. Die Spüle ist dann recht knapp zur Ecke, aber Abstellplatz daneben ist rechts und links vorhanden.
Ich hab den Kühlschrank an die Ecke gesetzt, weil prä- und postpubertierende Menschen oft am Kühlschrank stehen. In der Pubertät können sie auch schon mal den Kühlschrank als Dauerparkplatz für sich in Anspruch nehmen.
Die Insel würd ich auf 80 cm in der Tiefe begrenzen. Die Insel darf maximal 140 cm lang sein, sonst sind die Abstände zwischen Zeile und Insel zu gering.
Ich habe in der Insel übertiefe Unterschränke, bei mir sind sie 75 cm tief. In einer 100 cm breiten Vorratsschublade lagern 7 Mehlsorten, reichlich Quinoa&Co, alles für Sushi&Co, alles fürs Backen, reichlich Hülsenfrüchte ... und bestimmt habe ich das optimale Zuladungsgewicht dort überschritten. Die 75 cm Übertiefe kommen aus einer
Nolte Küchenplanung .
Neben dem Meter-Unterschrank ist ein 40-Unterschrank mit Übertiefe, da passen Kartoffeln&Co locker rein. Dort den Müll zu platzieren würde auch Sinn machen.
Ich hab eine hier oft kritisierte Nolte Küche. Die hat das "böse" 5-er Raster. Ich hab mich für Nolte entschieden, weil der KFB einfach gut zugehört hat und meine ganz persönlichen Anforderungen gut umgesetzt hat. Ich bin dann mit seiner Planung noch zu zwei anderen Studios gegangen: Der
Häcker Mensch wollte mir keine Küche ohne Oberschränke verkaufen, weil er dann das Licht nicht unterbringen konnte und
Ballerina hat mit Holzarbeitsplatte leicht mein Budget gesprengt. Der Nolte Planer war mir ausgesprochen sympathisch. Er hat dann den Zuschlag bekommen, auch, weil er den Plan gemacht hat und dafür reichlich Zeit und Telefonate mit mir hatte.
Trotzdem würd ich dir eine Küche mit 6-er Raster empfehlen. Dann könntest du in der Insel je zwei Schubladen und zwei Auszüge einplanen.
Unterm Kochfeld dann 2-2-2 ... da würd ich alles bis auf den 20 Liter Topf reinkriegen. Der oberste Auszug mit tiefengekürztem Innenauszug. Bei mir würde das für meinen Küchenkram reichen.
Die von dir in den Screenshots geplanten Küchenelemente sehen nach Landhaus aus. Ich fände deswegen dann auch Oberschränke über GS und Spüle gut, eventuell rechts und links flankiert von "altmodischen" offenen Regalen mit abgeschrägten Ecken. Mit hohen Oberschränken könntest du dort reichlich Geschirr unterbringen.
Gxxx fände ich Unterstatement-mäßig einen Range Cooker hinten in der Ecke und dann statt Backofenschrank einen Vorratsschrank mit Innenauszügen, hier heißt das, glaub ich, SpaceTower. Das dürfte teuer werden ...
Wichtig wäre mir ein Mindestabstand zwischen Zeile und Halbinsel von überwiegend mehr als 1,10. Das wird sonst zu eng.