Unbeendet Arbeitsfläche, Ergonomie & TEPPAN.

Nochmal eben ein Gedanke in Indesign (nicht maßhaltig).
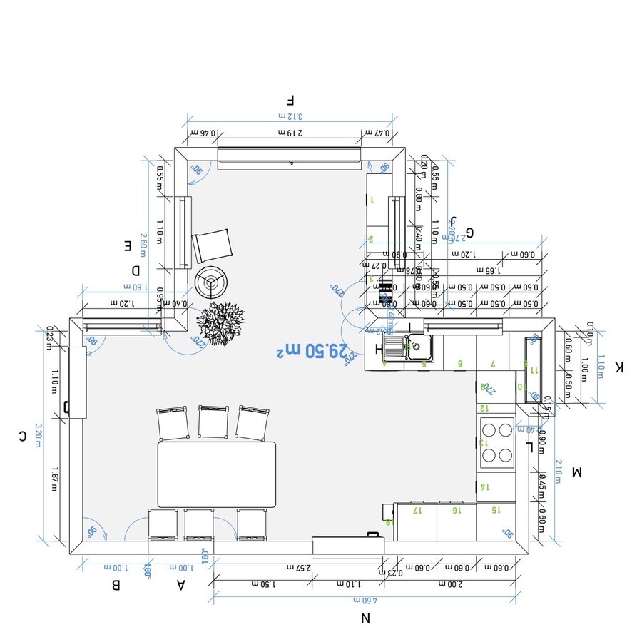
Plan-rechts-unten auf die Arbeitsfläche einen Aufsatzschrank mit Lifttüren. In der tiefen Nische rechts-oben kommt ein schönes Holzregal eingebaut (über Kaffeemaschine, Wasserkocher, mitentsprechendem Abstand Wasserdampf usw.).

Was sagt Ihr zur Ergonomie? Absstellfläche in Kühlschranknähe?

PS: Meine Mutter wußte es gleich (liest mit). »Inseln sind keine Lösung.« ;-)
Bildschirmfoto 2021-01-05 um 19.04.16.jpg
 
Zuletzt bearbeitet:
Ich wär für ein L mit Halbinsel als reiner Arbeitsinsel. Ich mal das heute Abend auf.

Keine Ahnung, ob das funktioniert... aber eine Idee habe ich im Kopf.
 
bitte IMMER ALLE Grundrisse gemäss dem Etagengrundriss ausrichten. Wir schauen uns täglich viele threads an und müssen immer wieder zurechtfinden.

jenas.jpg

wo ist dein Stauraum in der Küche? Warum muss dein Sohn durch die Küche laufen? ein riesiger Raum mit nicht viel drin. Das Regal in der Nische erreicht man nicht.

von den 330cm Raumtiefe planrechts, gehen 130cm für die Ecken ab, verbleiben 200cm als Stauraum. Planoben am Fenster sind es ca 220, Ecke, Blende, GSP und Spüle weg, verbleiben 30cm für einen MUPL , also eigentlich kein Stauraum.

Die HS mit KS und BOs bieten auch keinen nenneswerten Stauraum.

Die Arbeiten werden sich in dem kleinen Eck zwischen Spüle und Kochfeld abspielen. Wo macht eine 2. Person was?
Was steht auf der Arbeitsplatte oder soll dort stehen?: Kaffeemaschine, Wasserkocher, Toaster
Welche weiteren Küchenmaschinen müssen in der Küche untergebracht werden: Küchenmaschine, Pürierstab
wo stehen diese Sachen, wenn in Gebrauch und wenn nicht in gebrauch?

weiterplanen ....
 
Hallo Evelin,

danke für Deine Gedanken!


Warum muss dein Sohn durch die Küche laufen?
Wir haben unisono beschlossen, dass er bzw. wir in den sauren Apfel beißen muss. Erneut in die Statik des Hausen eingreifen kommt nicht in Frage. Wir sind der Meinung, der Charakter des Hauses geht verloren und $$$. :drinks:


also eigentlich kein Stauraum.
In der Kernküche gibt es nun die 50er Schränke (6 und 9) den Schrank unter den Kochfeldern (13) und den 45er (14), sowie etwas unter/über dem Backofen . Das wird zu wenig, was?

Den GSP mit unter den Backofen ?

Als erweiterter Stauraum dann die "Sideboards in der Veranda. Und das Geschirr in die Vitrine hinter dem Esstisch?

verbleiben 30cm für einen MUPL , also eigentlich kein Stauraum.
Als Müll-System hatte ich an ein System unter der Spüle gedacht?! Macht keinen Sinn?


ein riesiger Raum mit nicht viel drin
Ja, das finde ich gut. Ich empfinde es wichtig, dass genügend "optischer" Freiraum entsteht.

DG_HW12.jpg
Aktuell haben wir auch viel Platz in unserer Wohnküche und das finden wir gut.
 
Zuletzt bearbeitet:
@Jehans Du kannst auch beides haben, Mülltrennung unter der Spüle und MUPL . Der Vorteil liegt vorallem im Biomüll (hängt natürlich auch ein bisschen davon ab, wieviel man trennen muss/will, wie man das handhabt). Gerade mit dem MUPL, wo der Müll unter der Arbeitsplatte in einem oberen Auszug drin steht, finden wir das super praktisch neben der Hauptschnippelfläche treffsicher alles reinzuwischen, anstatt zielen zu müssen. Kartoffeln schäle ich zB auch gleich direkt in das Eimerchen daneben im Auszug, die "klassische" Mülltrennung mit Papier und Plastik belegt, viele nutzen den Auszug unter der Spüle dann aber noch für anderes, wenn der Bereich, wo der MUPL ist, gleich auch mit den restlichen Mülltrennbehältern aufgefüllt wird. So eine klassische Mülltrennung kostet im Vergleich zu Einzeleimern in normalen Auszügen natürlich auch etwas und ist schonmal ein einfacher Einsparungsfaktor. Da muss man sich selbst auch kennen, wie man werkt und was einem lieb ist. Kannst ja mal in die Fotos bei unserer Küche und im Forum dich querklicken, warum das Konzept hier so beliebt ist :-)
lG miri
 
genau, das haben viele, oben Bio- und Restmüll, unter der Spüle zB gelber Sack Müll.

Viele haben einfach nur Müllimer oben im Auszug stehen, viel haben IKEA Eimer genommen
MUPL Beosu.jpg das ist ein Bild von Beosu's Küche. Schau dir ihre Küche bei den Fertigen an.
 
Oh ja, das ist toll. So kenne ich das gar nicht. Effektiv benötige ich Papiermüll (das dachte ich clever in die Holzkisten verstauen zu können) Kunststoffverpackungen und Restmüll. Bio haben wir dann ja gleich im Garten als Kompostierung.

Danke für Eure tollen Hinweise. Ich weiß dies wirklich zu schätzen.
j.
 
Genau, Bio wäre bei dir gleich im Garten.

ABER, man muss ehrlicherweise auch sagen, dass diese Müllecke nicht ideal ist, wenn mehr als 2 Personen im Haushalt leben. Bei uns ist das auch so, alle wollen in die gleiche Ecke.

Deshalb plädieren wir für 2-Zeiler, egal ob Insel und Wandzeile, oder 2-Zeiler in einer 250cm breiten Reihenhausküche, es ist einfach komfortabler. Man muss sich die Abläufe vor Augen führen.

Bei deinem US wäre es besser, wenn Kochfeld und Spüle getauscht werden.

Hier mal ein Bild von der Küche meiner Tochter.

Merce Middle of kitchen.jpg
das war mal eine geschlossene Küche, wo die Terrassentür ist, war ein Fenster. Es gibt aber noch einen anderen Ausgang zum Garten.

Der Raum ist 275cm breit, rechts siehst du GSP, Spüle, 50er MUPL, 50er US, Ende der Insel.
Links ist im 3. US das Kochfeld.

Was ich zeigen will, zwischen den Zeilen sind 130cm Abstand. Bei dir wäre der Abstand 180-190cm, wenn beide Zeilen úbertief sind.

Ich bleibe dabei, der Raum gehört gekürzt in der Breite, eine lange Zeile planlinks von oben bis unten (540cm) und gegenüber eine 225cm lange Zeile, beide übertief. Alles andere passt nicht.
 
ach ja, und das ist ein knapp 10qm großes Gästezimmer bei uns, inkl einem Einbauschrank rechts, den man nicht sieht.

Ostern 2014 024.JPG
das Bett ist 150cm breit, rechts davon noch 1m bis zur Wand, unten noch 1m zur Wand und links 50cm. Also große Sprünge machen die Jungs in ihrem Zimmer nicht, wenn man bedenkt, dass in der Küche sehr viel Platz ist.
 
Ich konnte mal fix den Rechner meiner Frau mopsen.


1.jpg
2.jpg


3.jpg
4.jpg
5.jpg


» Geschirrspüler dann links neben die Spüle?
» Müll unter die Spüle oder in die Insel?
» Die Kaffeemaschine; Wasserkocher und Kontaktgrill? dann rechts neben die Spüle in die Nische?
 
Wenn ich diese Planung sehe, frage ich mich wo stehen die Lebensmittel, Vorräte sind die dann alle in dem Vorratsraum???
Es sind ja nur ein paar Schubladen auf der Insel und im Erker frei
 
funktioniert nicht, mach doch mal wie die "Tür des GSP" auf und zeichne ein 65x60 quadrat vor den Spüler
 
So, ignoriere mal den Tisch und versuche in den rechteckigen Raum deine Küche zu stellen, kein Tisch. Das ist nicht einfach.
 
Je mehr ich überlege, umso mehr bin ich bei Evelin. Die Kürzung des Raumes erlaubt es, dass Dein Sohn Zugang zum Flur hat. Ganz ehrlich- bauliche Änderungen gehen budgetär vor Küche da würde ich lieber da kürzen. Denn eine neue Küche kauft ihr mit Sicherheit nochmal- die Wand versetzen ist hingegen unwahrscheinlicher.
So hättet ihr auch für den Tisch eine lange Wand- man kann hier toll eine lange rustikale Bank machen, passend zur Küche. Und dann kann man die Küche zweizeilig mit Halbinsel planen, Hochschränke planrechts.
 
Wir hatten auch viel unisono beschlossen, bevor mir die User hier neue Ideen gezeigt haben die nach nochmaliger Überlegung deutlich besser waren- auch architektonisch. Das Ergebnis ist ein Wohn-/ Esszimmer, das in Optik und Funktion meine Ideen (und auch die unseres Architekten) in den Schatten gestellt hat. Wenn Du vorgefertigte Ideen haben möchtest kannst Du in jedes Küchenstudio gehen-da macht sich nämlich niemand Gedanken um Raumaufteilung und ob das alles stimmig ist. Hier gibt es halt Küchenplanung + - das muss man dann aber auch „aushalten“ mMn. So wie wir damit leben müssen, dass Eure Raumplanung nach der Meinung einiger hier suboptimal ist und bleibt, das merkst Du bei Deiner Planung selbst, denke ich. Ob wir dann damit arbeiten wollen, bleibt den Usern hier überlassen- denn Provision gibt das für uns nicht.
 

Ähnliche Beiträge

Neff Hausgeräte Ballerina Küchen Blum Bewegungstechnologie Weibel - Intelligente Küchenlüftung

Neff Spezial

Blum Zonenplaner

Weibel Abluft-Tuning

Weibel Abluft-Tuning
Zurück
Oben