Praktisch soll´s sein - Hobbykoch sucht Ideen für schwierige Küche

Da.Ko

Mitglied
Beiträge
41
Hallo zusammen,

bevor ist loslege, möchte ich schonmal festhalten, dass dies ja wirklich ein fantastisches Forum ist! Ich habe es wirklich selten erlebt, dass man sich in einem Forum so viel Mühe gibt.
Daher hoffe ich auch auf viele, hilfreiche Tipps für meine neue Küche.

Nun aber ans Eingemachte:
Nach einer "Studentenküche" möchten meine Frau und ich nun unsere erste, richtige Küche kaufen. Wichtig ist mir der Arbeitsplatz, da ich gerne und oft auch für viele Personen koche.
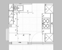
Eine Problemstellung sind zwei schöne aber bei der Planung hinderliche dunkelbraune Holzbalken in etwa 20cm Breite. Außerdem ein Tresen wie auf der Skizze ersichtlich. Der Tresen ist einige cm höher als die derzeitige Arbeitsplatte , daher könnte man überlegen da nun auch mit der Arbeitsplatte drunter zu gehen, um den Platz zu nutzen (sitzen tun wir daran eh nicht). Ich weiß aber nicht, ob das auch aussieht.

Meine Wünsche / Preisvorstellung:
Wenn ich immer so höre, dass meine Freunde 10.000-15.000 € für ihre Küche ausgeben, muss ich sagen: Das ist mir einfach zu viel.
Ich möchte eine vernünftige Qualität zum fairen Preis.

E-Geräte:
Wir brauchen einen kompletten Herd und eine Kühl-/Gefrierkombination. Ein vernünftiger Geschirrspüler ist vorhanden. Bisher habe ich nur im Kopf, dass ich einen Induktionsherd mit Flex-Induktionszone haben möchte. Dachte dabei an Neff.
Aber auch da bin ich offen für Vorschläge.

Stil:
Mit gefällt eine Mischung aus Moderne und Landhausstil. Am Liebsten weiße Front mit Rillen oder ähnlichem optischen Hervorhebungen und dazu eine schöne Holz-Arbeitsplatte. Da könnte ich mir viele Farben vorstellen.


Wenn ich noch etwas vergessen habe, weist mich bitte darauf hin.

Schöne Grüße aus dem kühlen Norden
Daniel


Checkliste zur Küchenplanung von Da.Ko

Anzahl Personen im Haushalt : 2
Davon Kinder? : keine
Körpergrössen aller Hauptbenutzer (wegen Arbeitshöhe ) in cm : 180, 181
Art des Gebäudes? : Bestandsbau, Umbauten ausgeschlossen
Brüstungshöhe des Fensters (in cm) : 85
Fensterhöhe (in cm) : 140
Raumhöhe in cm: : 250
Heizung : Heizkörper wie im Grundriss
Sanitäranschlüsse : fix
Ausführung Kühlgerät? : Stand-Alone bis 75 cm Breite
Kühlgerät Größe : noch unbekannt
Ausführung Tiefkühl (TK)-Gerät : Im Kühlschrank ab 3 Schubladen unten
Dunstabzugshaube? : keine
Hochgebauter Backofen ? : Nein
Hochgebauter Geschirrspüler ? : nein
Kochfeldart? : Induktion
Kochfeldbreite ca. (in cm)? : 80
Spülenform: : Noch nicht festgelegt
Weitere geplante Heißgeräte : Standmikrowelle
Küchenstil? : Landhaus
Sitzmöglichkeit in der Küche / im Küchenbereich als : Keine
Sitzmöglichkeit: Für wieviel Personen? : nein
Sitzmöglichkeit: Tisch - wenn gesonderter Tisch oder offene Küche : Keine
Gewünschte o. vorhandene Tischgröße : kein Tisch
Wofür soll der Sitzplatz in der Küche genutzt werden? Wie häufig? : kein Sitzplatz
Welche Arbeitshöhe ist angedacht (in cm)? : 92
Was steht auf der Arbeitsplatte oder soll dort stehen? : Kaffeemaschine, Kaffeevollautomat, Wasserkocher, Messerblock, Küchenmaschine, Toaster, Brotbehälter
Welche weiteren Küchenmaschinen müssen in der Küche untergebracht werden? : Wasserkocher, Schneidemaschine (z. B. in Schublade), Mixer, Pürierstab
Was soll in der Küche außer den Standards untergebracht werden? : ALLE Vorräte
Welchen Stauraum gibt es sonst noch? : Geschirr/Gläserschrank im Wohn-/Esszimmer, Hauswirtschaftsraum, Keller
Was/wie wird gekocht? (Alltagsküche, Menüs, Snacks usw) : Ambitionierter Hobbykoch. Ich koche grundsätzlich von schnell + einfach bis zu aufwendigen Menüs für viele Personen
Wie häufig wird gekocht? : (fast) täglich 1x warm
Wird alleine gekocht? Oder auch gemeinsam? Mit und für Gäste? : Gekocht wird alleine, aber oft für viele
Was stört an der bisherigen Küche und was soll die neue Küche unbedingt können? Warum? : Bisher haben wir kaum Ablageflächen und der Arbeitsbereich um den Herd ist zu klein.
Preisvorstellung (Budget) : bis 5.000,-
 

Anhänge

  • ikea-planung1.jpg
    ikea-planung1.jpg
    34,2 KB · Aufrufe: 251
  • ikea-planung2.jpg
    ikea-planung2.jpg
    58,6 KB · Aufrufe: 258
  • kueche-genauer-plan.jpg
    kueche-genauer-plan.jpg
    34,7 KB · Aufrufe: 241
  • kueche-tresen.jpg
    kueche-tresen.jpg
    64,4 KB · Aufrufe: 258
Zuletzt bearbeitet:
AW: Praktisch soll´s sein - Hobbykoch sucht Ideen für schwierige Küche

Hallo Daniel,

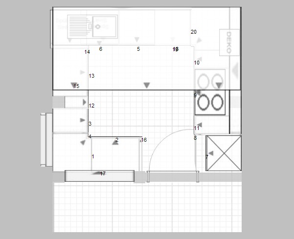
um helfen zu können, brauchen wir einen besser vermaßten Raum: genaue Lage der Balken, genaue Abstände und Breite des Fensters, genaue Maße der Tür und des Tresens, Höhe des Tresens, genaue Lage des Wasseranschlusses und was der Raum sonst noch so bietet.
 
AW: Praktisch soll´s sein - Hobbykoch sucht Ideen für schwierige Küche

Der Platz durch die Balken muss ja nicht zwangsläufig durch die Küchenmöbel getrennt werden. Sieht auch nicht aus.
 
AW: Praktisch soll´s sein - Hobbykoch sucht Ideen für schwierige Küche

Ja, genaue Maße wären gut (auch der Heizkörper mit B/H/T) und vielleicht mal ein Foto von diesem Tresen. Ist das wirklich eine Tür in den Raum oder ein offener Durchgang?

Brüstungshöhe Fenster = 85 cm ... da geht dann wohl auch nicht die gewünschte Arbeitshöhe . Vielleicht meßt ihr nochmal, wieviel Platz vom Fußboden bis zum untersten Teil des Fensterflügels ist, so, dass halt das Fenster gerade noch aufgehen würde.

Vorhandene Spülmaschine? Was ist das für eine? Breite? Integrierbar oder Unterbaumodell?

Arbeitshöhe 92 cm .. ich habe 97 cm mit 180 cm Größe
ARBEITSHÖHE ermitteln
3 Methoden haben sich da etabliert:
- Ellbogen abwinkeln und von dort 15 cm runtermessen
- Höhe Beckenknochen messen
- z. B. Bügelbrett nehmen und in verschiedenen Höhen Probeschnippeln und messen, wenn es einem am bequemsten erscheint.
Idealerweise ergeben alle 3 Methoden ca. denselben Wert
Ausführlicher in Optimale Arbeitshöhen beschrieben.

Und dann, du möchtest viel Stauraum. Ikea bietet nur 70 cm hohe Korpusse, d. h. eine angenehme Arbeitshöhe wird durch einen hohen Sockel erreicht und es sind auch nur 5 Raster möglich. Sinnvoller ist ein Hersteller, der 6-rasterige Korpusse ermöglicht.


Was heißt 6rasterig werden:
full

Typische Korpushöhen für 5-rasterig: 65cm, 70 cm, 72 cm, 75cm.
Typische Korpushöhen für 6-rasterig: 78cm, 79,8cm, 86,4cm
In Korpushöhen - Rastermaße - Auszugs-Innenmaße - Stauraumplanung sind diverse Hersteller mit ihren Standardkorpushöhen verlinkt.
Wenn man dann z. B. einen 78cm hohen Korpus wählt, ergeben sich folgende Maße
- 78 cm Korpushöhe
- 4 cm APL-Höhe
- 10 cm Sockelhöhe
-----------------
= 92 cm Gesamthöhe=Arbeitshöhe
Typische Hersteller wären Schüller , Häcker , Ballerina , Bauformat , Beckermann , Brion, Leicht, Alno usw.
__________________________
Budget für:
- Backofen
- 80 cm Induktionskochfeld
- Stand-Alone-Kühlschrank
- Möbel/APL mit Spüle etc.
wirklich zusammen maximal 5000 Euro?
 
AW: Praktisch soll´s sein - Hobbykoch sucht Ideen für schwierige Küche

Landhaus-Fronten, Rillen, Profile, Kofferfronten, Glaseinsätze etc. haben alle eins gemeinsam: sie sind besonders teuer - in nicht ganz billig sind sie Folie (davon raten wir ab, da gibt es immer wieder Probleme) oder in Lack bzw Holz; das sind die teuren Varianten ;-). Von Ballerina gibt es eine Melamin-Landhausfront - robust und bezahlbar.

Stauraum-maximieren heisst hohe Korpen (78cm - 80cm) - die kosten auch etwas mehr - ausser Du kommst mit dem Nobilia Maxi-Korpus ind 86cm klar (Arbeitshöhe ab 98cm) (wenig Auswahl, kein Aufpreis).

Du wirst also entweder Deine Wünsche und Vorstellungen oder Dein Budget anpassen müssen :cool:
 
AW: Praktisch soll´s sein - Hobbykoch sucht Ideen für schwierige Küche

Schon mal danke für die Hinweise!
Ich habe jetzt in meinem ersten Beitrag eine genauere Zeichnung hochgeladen (eine Heizung gibt es nicht in der Küche) und auch ein Foto von dem Tresen. Meine Überlegung wäre vielleicht da komplett mit der Arbeitsplatte drunter zu gehen, daran sitzen tun wir ohnehin nicht.

Nun zu euren Fragen/Anregungen:

BRÜSTUNGSHÖHE FENSTER
90cm

BREITE GESCHIRRSPÜLER
60cm, Unterbaumodell

ARBEITSHÖHE
97cm habe ich auch raus, kommt mir so viel vor. Ich hab derzeit 80cm ;-)

BUDGET
Grundsätzlich wäre mehr Geld da, aber ich tue mich einfach schwer so viel nur für die Küche auszugeben. Aber wie gesagt, ich bin da offen, wenn für das Geld nichts geht, dann muss ich was drauf packen.

FRONTEN
Das mit der Folie habe ich auch schon gelesen, hört sich für mich schlüssig an. Dann bräuchte ich wohl eine Küche von Ballerina , oder Häcker hat (habe ich irgendwo gelesen) glaube ich auch so eine Melamim-Front.


LG
Daniel
 
AW: Praktisch soll´s sein - Hobbykoch sucht Ideen für schwierige Küche

Die Küche ist wohl offen zum nächsten Raum? Dann bräuchten wir eine Skizze vom Grundriss - damit man sich orientieren kann und den Raumzusammenhang erkennt.
 
AW: Praktisch soll´s sein - Hobbykoch sucht Ideen für schwierige Küche

Eine Skizze habe ich leider so auf die schnelle nicht. Aber ja, die Küche ist offen und der daranliegende Raum ist das Wohn-/Esszimmer.
 
AW: Praktisch soll´s sein - Hobbykoch sucht Ideen für schwierige Küche

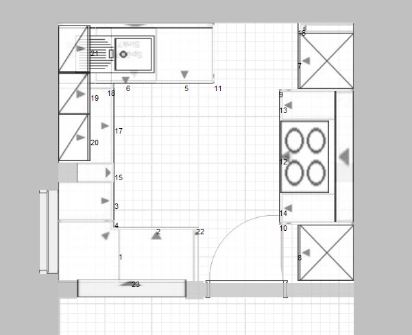
So, jetzt war das hier die ganze Nacht offen gelegen und ich schau mal, mit wem ich mich überschneide.

2 Varianten, beide noch nicht optimal für meinen Geschmack.

1.
kf_2_1.jpg
Mir gefällt der Abstand Kochfeld <-> Wasser nicht (zu klein) und der GSP ganz hinten im äußersten Eck is auch nicht meins. Außerdem der KS am Eingang machts etwas *naja*.

2.
kf_2_2.jpg

Hier ist der KS ganz hinten - auch nicht das Gelbe vom Ei (lange Wege). Das Spülbecken ist genau vorm Wasseranschluß, kann sein, daß es rücken muß.Der Balken ist hier mit einem gekürzten, sehr schmalen Regal oder Schrank umbaut. z.B. für Backbleche, große Brettchen. ... ich habe eine ganze Schublade voll von solchem Kram. Auch Nachschub Handtücher, Küchenschürzen etc lassen sich in so einer Nische gut unterbringen.

Ich habe in beiden Versionen aus Budgetgründen keine Oberschränke und möglichst keine Hochschränke vorgesehen. Version2 läßt die Option einen Hochschrank mit BO und oder hochgestelltem GSP zu verbauen, ansonsten auch hier eher ein Unterschrank mit z.B. GSP (der darf wohl nicht direkt vorm Wasserhahn geparkt werden wegen drankommen ;-)

Die linke Wand habe ich offen gelassen. Dafür eine großzügige Anrichte in Form von 2 Unterschränken vor die Durchreiche gestellt - quasi als erweiterte Abstell und Zulieferposition. Die sollte dann in die Höhe der durchreiche wandern, vielleicht sogar beide mit einer neuen Oberfläche in einem Stück?

Nachtrag: mit welchen Verhältnissen dann die restlichen US-Flächen aufgeteilt werden können, muß man sehen, wenn die Geräte verteilt sind. Ich würde möglichst breite US bevorzugen, aus Platzgründen und aus Geldgründen (die sind billiger pro laufenden Meter)...

neko
 
AW: Praktisch soll´s sein - Hobbykoch sucht Ideen für schwierige Küche

Noch eine etwas heikle Variante. Ich hatte das mal so, da war die Spüle allerdings übers Eck - suboptimal. Aber so könnte es gehen. Im Schrank an der Ecke, der von der GSP-Klappe blockiert ist, darf dann nichts rein, was man braucht, wenn der GSP offen ist. Wohin mit dem KS und einem eventuell weiteren Hochschrank , nimmt sich dann nicht mehr viel.

kf_2_3.jpg

neko, die jetzt aber mal ein wenig arbeiten geht, sonst kann sie den Strom fürs KF-lesen nicht mehr bezahlen ;-)
 
AW: Praktisch soll´s sein - Hobbykoch sucht Ideen für schwierige Küche

Noch eine 4. Version, in der ich Deine MW explizit mit berücksichtigt habe. Man kann die aber auch ganz locker planoben rechts in die Ecke stellen. Tut nicht weh.

kf_2_4.jpg

Rechts neben dem KS mußt Du allerdings mit einer Schnuddelecke rechnen. Da sammelt sich im Laufe der Zeit 'Kram' und die muß regelmäßig entmüllt werden.

Auch der GSP kommt dann irgendwie... ich finde einfach keinen schönen Platz für das Ding. Vielleicht ja wer anders?

Nachtrag: und durch die 2 Ecken hast Du 2 x problematischen, bzw. gar keinen Stauraum... also ich denke, die Version sollte es nicht werden... Aber vielleicht fällt wem anders dazu was ein?

neko, jetzt aber wirklich arbeiten.
 
AW: Praktisch soll´s sein - Hobbykoch sucht Ideen für schwierige Küche

Ahhhh sch*****!! An die wichtigsten Dinge denkt man nicht: Die Wand mit dem Wasseranschluss ist eine Schräge... :-X

Sorry, das hatte ich gar nicht erwähnt. Daher bleibt der Gestaltungsspielraum wohl recht begrenzt.

Tut mir echt Leid, aber vielen, vielen Dank für deine tollen Ideen!
 
AW: Praktisch soll´s sein - Hobbykoch sucht Ideen für schwierige Küche

@neko:
Ich schäme mich immer noch, aber deine Mühe ist ja nicht umsonst, im Gegenteil. Nachdem ich mir das alles genauer angesehen habe, würdest du also wohl empfehlen die Arbeitsplatte an der Fensterseite nicht durchgängig zu machen, sondern einfach zwei Unterschränke an der Durchreiche anbringen?

Die Idee mit der durchgängigen, gleichen Platte für Anrichte und Schränke darunter finde ich super, das machen wir auf jeden Fall! :top:


Zu den Ecken:
Ich habe ja hier eure Beiträge zum Thema "Eckschränke kosten Platz" gelesen. Würdet ihr in meinem Fall empfehlen darauf komplett zu verzichten?


Problemfall 80cm Kochfeld:
Ich habe mir ja in den Kopf gesetzt ein 80cm Kochfeld mit Flex-Induktionszone (wie z.B. das hier von Neff ) zu nehmen. Doch wenn mein Ofen nur 60cm breit ist, wie löst man dann die restlichen 20cm? Wie ich das bisher gelesen habe, brauchen Induktionsherde ja Platz zum Entlüften.

Und so wie die Küchen gebaut ist, kann ich den Herd ja nur rechts (vom Eingang aus gesehen) an die Wand machen.


LG
Daniel - der jetzt auch mal Geld verdienen muss... ;-)
 
Zuletzt bearbeitet von einem Moderator:
AW: Praktisch soll´s sein - Hobbykoch sucht Ideen für schwierige Küche

Wir bräuchten zumindest einen vermaßten Grundriss von dem GESAMTEN Raum, also inkl Wohn/Essbereich + die vorhandenen Möbel (Maße) oft ergeben sich dadurch andere Gestaltungen.

Und zu der Schräge - welcher Kniestock? bis wohin?
 
AW: Praktisch soll´s sein - Hobbykoch sucht Ideen für schwierige Küche

Ah! :-) Das ist noch kein Drama - außer evtl. für den KS hinten in der Ecke. Dann miß mal bitte aus, wie weit man von der Wand weg sein muß um noch stehen zu können ohne sich den Kopf anzustoßen /plus vielleicht noch ein paar weitere Höhenlinien, 200cm ist immer hilfreich). Hast Du da einen Kniestock? Wenn ja, wie hoch? Oft geht Schräge auch, dann halt mit etwas mehr Tiefe in der APL.

Ich hab da noch ein paar Ideen, aber erst heute Abend, wenn mein Wuwuzelchen im Bett ist. Wahrscheinlich kann ich sie dann erst morgen Mittag einstellen, das kenn ich schon ;-)

Mir ist vorhin nämlich noch die Idee gekommen, das KF an die linke Wand zu schieben. Das ist ja eine Außenmauer. Wie war das mit Abluft oder Umluft? An der Außenmauer kann man dann ein Loch mit Mauerkasten setzen (So man darf wg. Eigentum/Eigentümergemeinschaften und Befindlichkeiten der diversen Arten) und muß vor allem nicht mit irgendwelchen verkleideten Rohrlösungen quer durch den ganzen Raum.

neko
 
AW: Praktisch soll´s sein - Hobbykoch sucht Ideen für schwierige Küche

Zu den Ecken:
Ich habe ja hier eure Beiträge zum Thema "Eckschränke kosten Platz" gelesen. Würdet ihr in meinem Fall empfehlen darauf komplett zu verzichten?

Ich würde so wenig Ecken wie möglich nehmen. Machen nur Kopfschmerzen und Erklärungsnöte ;-) *Eine* könnte man eventuell als klassischen Spülschrank einplanen, wenn alle Stricke reißen - aber erst mal abwarten. Da geht noch was.

Problemfall 80cm Kochfeld:
Ich habe mir ja in den Kopf gesetzt ein 80cm Kochfeld mit Flex-Induktionszone (wie z.B. das hier von Neff) zu nehmen. Doch wenn mein Ofen nur 60cm breit ist, wie löst man dann die restlichen 20cm?

Man entkoppelt beide Geräte (das sind dann 2 Einzelgeräte) und kann dann den BO hinbauen, wo man will oder kann und das KF woanders hin schieben. Irgendwie muß das mit den hochgebauten Backöfen ja sonst auch gehen.

@little: ich fürchte, an den Wänden is nix mit schieben. Das sieht mir nach neuem Bauernhaus/Fachwerk aus. Da will man nur einbauen und nur ja nix anfassen ;D

neko
 
AW: Praktisch soll´s sein - Hobbykoch sucht Ideen für schwierige Küche

So ein Mist, jetzt habe ich ziiiemlich lang gebastelt, und lese nach (vor dem Einstellen meiner Version), da gibt es eine Dachschräge :(.

Naja, ich zeigs euch trotzdem. Vielleicht ergibt sich für den Backofen ja ein niedriger Stellplatz in der Ecke und die MW oben drauf.

Hier also ohne Dachschräge. Wichtig wäre jetzt wirklich die Höhe des Kniestocks und die gesamte Tiefe der Schräge.
Wasseranschluss hinter den Schränken auf Putz etwas mehr in die Ecke verlegt.
mindertiefes Flaschenregal vor der einen Stütze, Kochfeldschränke mit übertiefer AP vor die andere Stütze.
Ansonsten versucht, möglichst wenig schmale Schränke und viele breite Schränke unterzubekommen.
Das Ganze ist eher im Budgetbereich deiner Freunde.
Mit Ikea und seinen eingeschränkten Breiten/Tiefen sehe ich das problematisch. Das wird über "studentisch" nicht hinauskommen.
 

Anhänge

  • kf_Da.Ko_V1.KPL
    4,1 KB · Aufrufe: 194
  • kf_Da.Ko_V1.POS
    6,8 KB · Aufrufe: 237
  • kf_Da.Ko_V1_A1.jpg
    kf_Da.Ko_V1_A1.jpg
    45,2 KB · Aufrufe: 217
  • kf_Da.Ko_V1_A2.jpg
    kf_Da.Ko_V1_A2.jpg
    43,6 KB · Aufrufe: 214
  • kf_Da.Ko_V1_A3.jpg
    kf_Da.Ko_V1_A3.jpg
    45,9 KB · Aufrufe: 212
  • kf_Da.Ko_V1_G.JPG
    kf_Da.Ko_V1_G.JPG
    44,4 KB · Aufrufe: 215
AW: Praktisch soll´s sein - Hobbykoch sucht Ideen für schwierige Küche

Dann mal ins Blau hinein geschätzt und umgebaut:
 

Anhänge

  • kf_Da.Ko_V2_G.JPG
    kf_Da.Ko_V2_G.JPG
    37,1 KB · Aufrufe: 189
  • kf_Da.Ko_V2_A1.jpg
    kf_Da.Ko_V2_A1.jpg
    43,7 KB · Aufrufe: 218
  • kf_Da.Ko_V2.POS
    8 KB · Aufrufe: 275
  • kf_Da.Ko_V2.KPL
    4,1 KB · Aufrufe: 208
AW: Praktisch soll´s sein - Hobbykoch sucht Ideen für schwierige Küche

Da.Ko.: vom Schämen haben wir nix. Setzt Dich mal hin und mache uns die gewünschten Skizzen und evt. noch ein paar Fotos von der Situation und hänge das hier mal ein - damit die Frauenpower hier auch was bringt und nicht nur heisse Luft produziert :girlblum:
 
AW: Praktisch soll´s sein - Hobbykoch sucht Ideen für schwierige Küche

@neko: Ich wollte eigentlich keine Wände schubsen ;-) sondern nur die Möbel ;-)
 

Ähnliche Beiträge

Neff Hausgeräte Ballerina Küchen Blum Bewegungstechnologie Weibel - Intelligente Küchenlüftung

Neff Spezial

Blum Zonenplaner

Weibel Abluft-Tuning

Weibel Abluft-Tuning
Zurück
Oben