Neubau sucht Küche

AW: Neubau sucht Küche

Und ich würde noch anregen, den Bau so zu gestalten, dass für die Tür vom Flur planunten eine Schiebetür gewählt werden kann, die außen im Flur läuft.

D. h. die zur Verfügung stehenden ca. 170 cm entsprechend so aufzuteilen. Dann wird der Durchgang halt nicht knapp 90, sondern nur 80 cm, die Tür steht dann aber nicht vor den zu benutzenden Schränken oder wird geöffnet und gegen die gerade geöffnete GSP gehauen.
 
AW: Neubau sucht Küche

Hallo Kerstin,
das habe ich auch schon überlegt, ich hätte am liebsten eine innenlaufende Schiebetür. Muß nur noch meinen Mann überzeugen!
Welche Variante mit der GSP würdest du persönlich wählen?

Liebe Grüße Nina!
 
AW: Neubau sucht Küche

Habe nochmal ein wenig auf dem Papier gezeichnet, denke von planunten gesehen sollte der GSP der 3. Schrank sein, sind dann GSP und Müll (auf der Insel links neben dem Spülbecken) ausgezogen, verbleiben dazwischen ca. 75 cm.
Plan stellt mein Mann heute Abend ein...
 
AW: Neubau sucht Küche

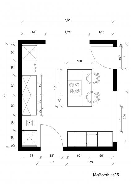
Mein Mann ist heute mit folgender Idee nach Hause gekommen: (siehe Grundrissplanung)

Ich selbst bin davon noch nicht so überzeugt, da die Spüle Richtung Wand zeigt und ich der Meinung bin, dass man sich zwischen den beiden hohen Schränken eingeengt fühlt. Aber wahrscheinlich bin ich schon zu fixiert auf die andere Planung...
Was meint ihr?
 

Anhänge

  • Küche_voll10.jpg
    Küche_voll10.jpg
    26 KB · Aufrufe: 164
AW: Neubau sucht Küche

Wie wäre es denn dann so?
 

Anhänge

  • N1.JPG
    N1.JPG
    22,7 KB · Aufrufe: 157
  • N2.jpg
    N2.jpg
    31,5 KB · Aufrufe: 154
  • N3.jpg
    N3.jpg
    26,1 KB · Aufrufe: 162
  • N4.jpg
    N4.jpg
    29,9 KB · Aufrufe: 154
  • N5.jpg
    N5.jpg
    31,5 KB · Aufrufe: 155
  • NN2.KPL
    4,1 KB · Aufrufe: 132
  • NN2.POS
    14 KB · Aufrufe: 158
AW: Neubau sucht Küche

Ich finde es eine schöne Idee. Die "Kröten" hast Du ja bereits entdeckt ;-) - dafür fallen andere weg. Ich würde bei der Variante überlegen Herd und Spüle zu tauschen - man ist deutlich mehr Zeit rund um die Spüle beschäftigt ...

Du musst für Dich gewichten, was Dir auf Dauer lieber ist, und welche "Nachteile" jeder Lösung für Dich weniger gewichtig sind.

Wie häufig wird bei euch wohl die Küche als Durchgang genutzt werden? Dann stünde der Koch immer im Hauptdurchgangsbereich...


EDIT: :kiss:Queeny war schneller, als ich schreiben konnte :clap:
 
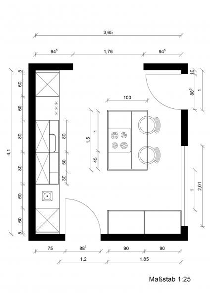
AW: Neubau sucht Küche

Vielen Dank fürs erneute Umplanen!

Die Variante habe ich auch schon überlegt, oder aber die Spüle bzw. den Herd planunten auf die Zeile zu legen.
Spüle planunten wäre vom Wasseranschluß her optimal.

Am liebsten hätte ich den Spülbereich auf der Insel, mein Mann meint jedoch, dass es schwierig sei und deutlich teurer aufgrund des Wasseranschlusses bzw. eher Abflusses.

Hauptdurchgangsort wird es nicht, ist nur die Verbindung Küche-Esszimmer, ansonsten geht man wohl eher durch den Flur (glaube ich zumindest).

Dann schwanke ich noch zwischen Variante A und Variante B.
Vorteil bei A wäre, dass ich um die Insel herum laufen kann und es eventuell noch offener aussieht.
Vorteil bei B wäre die 35 cm längere Arbeitsfläche der Insel und die Zeile planunten könnte man übertief planen (80cm).

Variante B ist noch nicht richtig gezeichnet, kann aber nur mein Mann umändern... GSP steht noch falsch und Zeile planunten ist noch nicht 80cm tief.
 

Anhänge

  • Variante A.jpg
    Variante A.jpg
    26,2 KB · Aufrufe: 153
  • Variante B (Spüle und Kochen variabel).jpg
    Variante B (Spüle und Kochen variabel).jpg
    23,7 KB · Aufrufe: 144
AW: Neubau sucht Küche

Warum soll es bei einem Neubau *wesentlich* schwieriger und teurer sein den Wasseranschluss für die Insel in den Raum statt an die Wand zu setzen?

Setze Dich in eine ruhige Ecke, und mache für beide Küchenentwürfe Deine Stauraumplanung ; stelle Dir dabei den Ablauf für Frühstück, Mittag, Abendessen jeweils genau vor, Feste und Backaktionen etc. - dann sollte Dir klar werden, was für Dich besser funktioniert.
 
AW: Neubau sucht Küche

Das werden wir heute Abend machen Vanessa! Mit dem Wasseranschluß müssen wir uns mal genau informieren.

Nochmal ne Frage zu Variante A:
Wenn wir Kochen und Spülen tauschen, dann hat die Spül- bzw. Vorberitungsinsel eine Fläche von 150cm*100cm. Ist das mit einem Spülbecken (evtl. kleines Restebecken) ohne Abtropffläche ausreichend?
 
AW: Neubau sucht Küche

naja, eine 150 x100cm- Insel ist natürlich nicht üppig: egal ob mit Herd od. Wasserstelle - von daher wäre der 2-Zeiler vorzuziehen
 
Neff Hausgeräte Ballerina Küchen Blum Bewegungstechnologie Weibel - Intelligente Küchenlüftung

Neff Spezial

Blum Zonenplaner

Weibel Abluft-Tuning

Weibel Abluft-Tuning
Zurück
Oben