Unbeendet Küchenplanung im Neubau

SteffiK

Mitglied
Beiträge
31
Hallo liebes Forum, ich habe die letzte Zeit viel hier gelesen und bin total begeistert von diesem Forum.
Da ich in unserer eigenen Planung irgendwie festsitze und nicht wirklich voran komme, würde ich mich über neue Ideen und Anregungen freuen.

Zwischen Küche und Esszimmer wird noch eine Schiebetür installiert. Diese wird meistens offen stehen und ca. 2 Meter breit sein.

Ausserdem bringen wir unseren Side by Side Kühl/Gefrierschrank mit, dieser soll gerne mit Schränken umrahmt werden, so dass er sich besser ins das Gesamtbild einfügt.

An meiner Planung gefällt mir momentan der Bereich zum Zugang des HWR noch nicht.
Da hier das Carport stehen wird, werden wir als Familie so gut wie immer diesen Eingang nutzen und mit Einkäufen etc. dann meist vom HWR direkt in die Küche gehen.
Die Planung, die hohen Schränke auf diese Seite zu setzten, hatten wir aufgrund der bodentiefen Fenster auf der anderen Seite angedacht. Hier diese zu stellen, machte den Raum dunkler.

Wir haben 3 kleine Kinder und wollen mit diesen gerne viel Platz zum vorbereiten, backen etc haben. Die Arbeitsplatte soll daher zum Esszimmer zeigend über stehen, so dass man dort vernünftig sitzen kann.

Bzgl Arbeitshöhen: Mein Mann kocht hauptsächlich bei uns und wir haben hier zu Hause eine Höhe von 98cm. Auf diese möchte er ungern verzichten.
Ich komme mit der Höhe auch gut zurecht, so dass wir gerne dabei bleiben, allenfalls minimal tiefer gehen wollen.
Nur das Kochfeld, welches auf alle Fälle an der Wand stehen soll, sollte wieder tiefer gesetzt und gern auch etwas weiter herausgezogen sein. Das haben wir in der jetzigen Küche und finden es beide optisch und auch praktisch sehr schön.
Mein Mann war bis zum Besuch im Küchenstudio davon überzeugt, wieder eine normale Dunstabzugshaube zu nehmen. Jetzt, nachdem wir uns diese Muldengeschichte angesehen haben, ist dieses Thema auch noch nicht ganz vom Tisch.

Ich hätte gerne einen hochgesetzten Geschirrspüler . Haben wir jetzt nicht und mein Mann vermisst das nicht. Wüsste bei meiner jetzigen Planung aber auch nicht wohin mit diesem.

Statt einer eingebauten Mikrowelle hätte ich gerne einen zweiten BO mit integrierter Mikrowelle . Da haben wir uns aber noch zu wenig mit beschäftigt, so dass die Geräte noch nicht feststehen.

Bezgl. der bodentiefen Fenster sind diese momentan noch als 3 flügig geplant. Nachdem wir gestern aber mal im Rohbau unsere Insel nach gestellt haben, überlegen wir gerade, doch noch auf Schiebe Elemente umzuschwenken. So wären wir etwas flexibler, was den Bereich angeht.

Mit dem Alno Planer bin ich noch nicht so recht warm geworden. Aufgrund der 3 Mäuse habe ich leider immer nur mit diversen Unterbrechungen mal kurz Zeit mich da hinein zu lesen. Aber ich denke die Grund Idee kann man ganz gut erkennen.

Im angrenzenden HWR, direkt neben der Küche unter der Betontreppe ist noch reichlich Stauraum für alles mögliche vorhanden. Es müssen daher nicht alle Utensilien in die Küche.

Allerdings haben wir keine Stellmöglichkeiten im Esszimmer, so dass Geschirr und solche Sachen auf alle Fälle in der Küche ihren Platz finden müssen.

Ich hoffe, ich habe nun an alles gedacht?

Checkliste zur Küchenplanung

Anzahl Personen im Haushalt: 5
Davon Kinder?: 3
Art des Gebäudes?: Neu-/Umbau, Planänderungen nicht möglich
Körpergrössen aller Hauptbenutzer (wegen Arbeitshöhe ) in cm: 189cm und 165
Brüstungshöhe des Fensters (in cm):
Fensterhöhe (in cm): 2,26
Raumhöhe in cm: 2,56
Heizung: Fussbodenheizung
Sanitäranschlüsse: variabel an aktueller Wand
Ausführung Kühlgerät: Side by Side ca. 90cm breit
Kühlgerät Größe: bis 178 cm Höhe
Ausführung Tiefkühl (TK)-Gerät:
Dunstabzugshaube: Abluft
Backofen etc. hochgebaut?: Ja
Hochgebauter Geschirrspüler ?: Wenn möglich
Kochfeldart: Induktion
Kochfeldbreite ca. (in cm)?: 90
Spülenform: 2 Becken mit Abtropffläche
Geplante Heißgeräte: Backofen , Dampfbackofen (DGC) mit Wasseranschluß
Küchenstil: Modern
Sitzmöglichkeit in der Küche / im Küchenbereich: Überstehende Arbeitsplatte
Sitzmöglichkeit: Für wieviel Personen?: für 3 Personen
Sitzmöglichkeit: Tisch - wenn gesonderter Tisch oder offene Küche: Keiner
Gewünschte o. vorhandene Tischgröße:
Wofür soll der Sitzplatz in der Küche genutzt werden? Wie häufig?: Für die Kinder beim Helfen, schnelle Frühstück etc...
Welche Arbeitshöhe ist angedacht (in cm)?: mind. 94 cm bis 98cm
Was steht auf der Arbeitsplatte oder soll dort stehen?: Kaffeemaschine, Wasserkocher, Obstschale
Welche weiteren Küchenmaschinen müssen in der Küche untergebracht werden?: Handrührgerät, Mixer, Pürierstab
Was soll in der Küche außer den Standards untergebracht werden?: Geschirr komplett (nichts in Ess-/Wohnzimmer)
Welchen Stauraum gibt es sonst noch?: Hauswirtschaftsraum
Was/wie wird gekocht? (Alltagsküche, Menüs, Snacks usw): Alltagsküche, backen mit den Kids
Wie häufig wird gekocht?: (fast) täglich 1x warm
Wird alleine gekocht? Oder auch gemeinsam? Mit und für Gäste?: oft alleine oder mit der Familie
Was stört an der bisherigen Küche und was soll die neue Küche unbedingt können? Warum?: keine Arbeitsinsel; kein platz für mehrere Personen
Welche Mülltrennung soll in der Küche vorgehalten werden?: Altpapier, Bio/Restmüll ungetrennt, Gelber Sack Müll
Steht schon ein Küchenhersteller fest oder wird bevorzugt?:
Steht schon ein Gerätehersteller fest oder wird bevorzugt?:
Preisvorstellung (Budget): bis 15.000,-
 

Anhänge

  • Grundriss EG.pdf
    94,6 KB · Aufrufe: 238
  • Grundriss Küche.pdf
    53,1 KB · Aufrufe: 243
  • Küche Abflüsse eingezeichnet.JPG
    Küche Abflüsse eingezeichnet.JPG
    75,3 KB · Aufrufe: 788
  • Ansicht 1.JPG
    Ansicht 1.JPG
    86,5 KB · Aufrufe: 406
  • Ansicht 2.JPG
    Ansicht 2.JPG
    98,4 KB · Aufrufe: 394
Mhh, gibt es so gar keine Meinungen zu unseren Planungen?

Habe noch mal die Alno Planung ran gehängt, vielleicht mag sich ja doch noch jemand dazu äußern.

Viele Grüße
Steffi
 

Anhänge

  • Alno Planung.JPG
    Alno Planung.JPG
    62,5 KB · Aufrufe: 266
Hallo und herzlich willkommen im Küchenforum!

Den Alno -Grundriss zu posten ist eine sehr gute Idee :2daumenhoch:

Bevor man weiter in die Diskussion einsteigt, möchte ich noch auf ein Punkt eingehen. Du schreibst:

Körpergrössen aller Hauptbenutzer (wegen Arbeitshöhe ) in cm: 189cm und 165
Welche Arbeitshöhe ist angedacht (in cm)?: mind. 94 cm bis 98cm
Die angegebene Arbeitshöhe ist für Dich einfach zu hoch. Bei solche große Unterschiede sollte man zwei unterschiedlichen Arbeitshöhen planen, und zwar so, dass jeder ein Bereich hat, wo er/sie bequem arbeiten kann. Hier im Forum heißt es dann Gattenblock .
Um die richtige Arbeitshöhe zu bestimmen gibt es Faustregeln:
ARBEITSHÖHE ermitteln
3 Methoden haben sich da etabliert:
- abgewinkelter Ellbogen bis Boden messen und 15 cm abziehen
- Höhe Beckenknochen messen
- z. B. Bügelbrett nehmen und in verschiedenen Höhen Probeschnippeln und messen, wenn es einem am bequemsten erscheint, wobei dies der wichtigste Test ist.
Idealerweise ergeben alle 3 Methoden ca. denselben Wert
Ausführlicher in
Optimale Arbeitshöhen beschrieben.
 
Mh, wüsste nur nicht so recht wie wir dies unsetzten sollten. Da die Insel auch als Familientreffpunkt etc fungieren soll, möchten wir diese nicht durch unterschiedliche Höhen trennen. Es sollte eine Fläche sein.

An der Wandseite wird dieses auch schwer, da hier ja bereits das Kochfeld runter gesetzt sein soll. Wäre dann lediglich die Möglichkeit hier komplett tiefer zu gehen und da denke ich, dass dies meinem Mann nicht gefallen wird.

Wie gesagt, haben wir jetzt eine komplette Arbeitsfläche in 98 cm und die Kochfläche halt tiefer gesetzt. Damit komme ich seit nun fast 10 Jahren ganz gut klar und bräuchte nicht unbedingt einen Bereich für "mich".
 
warum ist ein hervorstehender Kochfeldschrank praktisch? ganz abgesehen davon, dass 2 Schmutzecken entstehen, sehe ich wirklich keinen einzigen Vorteil. Was sinnvoll ist, wenn die ganze Zeile übertief ist. Auch warum ein Kochfeld tiefer eingebaut werden soll, erschließt sich mir nicht.

Wenn dein Mann überwiegend kocht, warum ist das Kochfeld tiefer gelegt?

Der Abstand zwischen SBS und Insel ist zu gering. Warum willst du um die Inselecke laufen, um an den KS zu kommen? Sinnvoller wäre er in der Kochzeile.

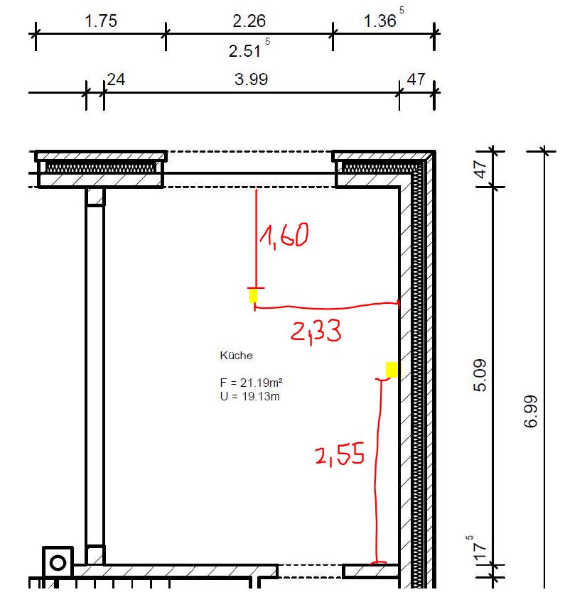
Sanitäranschlüsse: variabel an aktueller Wand
Spüle ist auf der Insel?, Wasser für DGC an der Wand?
 
hier mein Vorschlag.

Der DGC ist über dem erhöht eingebautem GSP.

In die Kochzeile passen 3 x 90er + 1 x 15er US (Backbleche/Ölflaschen?) oder 1 x 90er und 2 x 100er US. Die Zeile ist übertief.

OS nach Wunsch.

Die Insel von planunten

90er US 3-3 mit Spüle
40er US 3-3 mit MUPL oben
90er US
40er US

grün ist die GSP Tür
Die Planung wurde mit V15b erstellt.

steffi1.JPG steffi2.JPG steffi3.JPG
 

Anhänge

  • steffi-evelin-PLAN2.KPL
    3,9 KB · Aufrufe: 191
  • steffi-evelin-PLAN2.POS
    8,2 KB · Aufrufe: 200
Ich würde die Zeile mit Kochfeld komplett tiefer und die Insel mit Spüle komplett höher. Somit könntest Du auch in die Töpfe reinschauen, sowie die Spüle verwenden und Dein Mann könnte bequem auf die Insel arbeiten. Man kann es, abhängig von den Werten, die Ihr liefern solltet, auch mit gleichem Sockel und unterschiedlichen Korpushöhen realisieren. Warum von vornherein "nein" sagen? Wenn man Ideen nichtmal aussprechen darf, dann kann man sich diese ganze Diskussion auch sparen.
 
Danke ihr lieben. Von vornherein "nein" sage ich nicht. Werde das noch mal testen und natürlich auch besprechen.

Hatte nur zu dem im Link angegebenen Gattenblock gemeint, dass ich auf der Insel gerne eine einheitliche Fläche haben möchte.

Die Tiefersetzung des Kochfeldes hatte damals bei meinem Mann wohl hauptssächlich optische Gründe. Die lange Zeile wurde somit recht mittig unterbrochen und das lockert ein wenig auf. Da ich noch nie eine andere Küche hatte, habe ich keinen Vergleich. Das Putzen an den zusätzlichen Ecken hält sich hier aber in Grenzen.
Die Höhe dort tiefer zu setzen hat mein Mann nie bereut. Also zum braten, kochen kommt er damit klar und hat in einem ersten Küchenstudio Besuch auch angegeben, dass wieder so haben zu wollen.

Ist es vielleicht hilfreich, von der jetzigen Zeile mal ein Bild einzustellen?
 
Die Planung von Evelin gefällt mir optisch ganz gut. Hatten wir noch überhaupt nicht in Erwägung gezogen, den SBS an diese Wand zu stellen.

Frage mich nur, ob man sich mit der Kühlschranktür, die ja nach rechts öffnet nicht den Durchgang zum HWR versperrt. Das muss ich mir noch mal im Rohbau anschauen.
Ob die Spüle auch auf die Seite der Insel kann, muss ich noch mal nachfragen.

Was ist eure Erfahrung bezüglich des Durchgangs auf der anderen Seite zu den Fenstern zeigend? Wären die drei normalen Terrassentüren zum öffnen in den Raum hinein noch machbar oder wird das ein gewusel geben und wir sollten doch noch auf Schiebetüren umschwenken?

Wir haben extra 2 Anschlüsse (beide so wie auf der Skizze eingezeichnet bereits existent) geplant, falls man doch irgendwann mal etwas anderes planen möchte.

Morgen haben wir erst mal Einschulung der Großen.
Danach stürze ich mich dann voll ung ganz in die Planung. Ich merke, es wird bestimmt noch etwas dauern, bis wir am Ziel sind.
 
So, nach einem langen Baustellentag nun endlich wieder zu Hause. Nachdem ich mich mit der Idee, den Kühlschrank in der Kochzeile zu stellen, angefreundet habe, gefällt meinem Mann die Idee leider überhaupt nicht.
Er meint, es ist störender für jedes Glas Wasser etc um die Insel herum zu laufen als beim Kochen vorher alles einmal herauszuholen und dann irgendwas vorzubereiten.

Ausserdem möchte er den Backofen lieber in der Nähe vom Kochfeld haben.

Meine Idee war nun, die Zeile mit dem Kochfeld komplett in einer Höhe von 94 zu planen.

Dafür dann die Insel in 98. So passt das dann auch mit den Höhenunterschied bei uns.

Hat jemand noch eine Idee der sinnvollen Anordnung, auch mit dem SbS rechts und nicht in der Kochzeile? Ich selbst lande immer wieder bei der Ursprungsplanung, nur halt mit durchgehender Arbeitsplatte in 94ziger Höhe.

Mh, gerade etwas frustriert.
 
Anbei noch mal die bisherige Planung, umgesetzt mit der neuen Höhe.

Wie kann ich ein Spülbecken darstellbar machen? Sehe immer nur den Wasserhahn. Und warum ist die Arbeitsplatte immer so unterteilt? Wie bekommt man das schöner hin?
 

Anhänge

  • Küchenplanung 2.JPG
    Küchenplanung 2.JPG
    83,6 KB · Aufrufe: 272
  • Küchenplanung 2 Ansicht.JPG
    Küchenplanung 2 Ansicht.JPG
    62,4 KB · Aufrufe: 338
  • Küchenplanung 2 Ansicht 2.JPG
    Küchenplanung 2 Ansicht 2.JPG
    80,5 KB · Aufrufe: 295
Ausserdem möchte er den Backofen lieber in der Nähe vom Kochfeld haben.
warum?

auf der Insel brauchst du keine AP (unter Sonderartikel zu finden) über die ganze Insel legen, nur die Theke. Die Abtropfe überdeckst du mit AP Material, setzt die Dicke auf 4.2m.

Ich verstehe die Kochzeile nicht, viele Kästchen, verschiedenen Rasterung, sieht unruhig aus, Glas in OS. Du kannst die Insel ausblenden, damit man man die Kochzeile sieht.

Nochmal, der Abstand zwischen SBS und Insel ist zu gering. Steht jemand am KS kommt niemand mehr durch.
 
Zuletzt bearbeitet:
hier der SBS an der Wand planunten.

Die Kochzeile von planoben

45er US
90er US
90er US mit Kochfeld
90er US
Sichtseite
60er HS mit erhöht eingebautem GSP
60er HS mit Heissgeräten
60er HS

Insel von planoben

90er US 1-2-3 mit Innenschublade unten
40er US 3-3 mit MUPL oben
90er US 3-3
40er US 1-2-3 mit Innenschublade unten

mir sieht das mit den vielen OS zu küchig aus.

steffi1.JPG steffi2.JPG steffi3.JPG steffi4.JPG
 

Anhänge

  • steffi-evelin-PLAN2.KPL
    3,9 KB · Aufrufe: 185
  • steffi-evelin-PLAN2.POS
    10,8 KB · Aufrufe: 201
Wir waren nach einer sehr stressigen Bauzeit nun endlich mal wieder in einem Küchenstudio und haben etwas weiter geplant.
Dabei habe ich festgestellt, dass ich ein Fehler in den vorigen Planungen hatte. Die Spülinsel war zu groß, so dass die Durchgänge nicht breit genug waren.

Anbei noch mal die aktuelle Planung.
Lange Zeile von rechts nach links
Hochschrank unten 2 Auszüge
Hochschrank mit Backofen und Dampfgarer darunter Auszug
Hochschrank mit Geschirrspüler ; darunter Auszug
60 (2 x Auzug 1 x Schublade)
45
100 (90ziger Kochfeld mit Muldenlüfter )
45
60

Insel
60 Spülunterschrank
60 MUPL unter der Arbeitsplatte ; darunter Auszug
90 mit Besteckschublade (3 x Schublade 1 x Auszug)

rechte Wand um den SBS 2 x 50ziger Hochschränke und ein 90 Hängeschrank


Die lange Zeile hatte wir in einer Höhe von 86 geplant, die Insel auf 99.
Geplant wurde eine Nolte Küche.

Ganz zufrieden sind wir noch nicht mit den Hängeschränken. Ganz verzichten wollen wir aber eigentlich auch nicht.

Das Spülbecken habe ich immer noch nicht darstellbar hinbekommen.

Anbei noch mal die Bilder der neuen Planung
 

Anhänge

  • Küchenplanung 3 Ansicht 1.JPG
    Küchenplanung 3 Ansicht 1.JPG
    102,7 KB · Aufrufe: 303
  • Küchenplanung 3 Ansicht 2.JPG
    Küchenplanung 3 Ansicht 2.JPG
    93,9 KB · Aufrufe: 272
Ich würde die Hängeschränke durchziehen von der linken Wand bis zu den Hochschränken, das beruhigt die Optik. Und die Glastüren würde ich weglassen.

Die Spüle kannst Du mit der F4-Taste (beim Laptop: fn + F4) anpassen.
 
Warum hast Du nicht Evelins letzte Planung genommen und die Spüle veschoben? Sie hatte die Abstände richtig geplant.

Die mühsam und mit vielen, teuren, kleinen Schränke erkaufte Symmetrie der Kochfeldzeile wirst Du so nicht sehen, weil die Insel davor steht, so dass Du die Zeile frontal nie betrachten kannst.

60 MUPL ist zu groß.

Eine Muldenlüftung an die Wand ergibt keinen Sinn, zumal Ihr mit Hängeschränke plant, d.h. die Stirn ist weiterhin in Gefahr.

Die satinierte Glastüren im Hängeschrank sehen nur dann gut aus, wenn dahinter weiße, gleichmäßig geordnete Gegenstände platziert sind, ansonsten sieht es durch das Durchschimmern der Farben schnell chaotisch aus.
 
und die Spüle bang am Rand ist auch nicht ideal, du hast ständig Wasser auf dem Boden. Ausserdem ist sie am falschen Inselende (zu weit zum GSP). Es wäre eh besser 80er Spülen US mit Spüle rechtsbündig, 40er MUPL 90er US.

Die Wandzeile ist 5m ohne Blenden, minus 3x60er HS, bleiben 3.20m. Ohne Muldenlüftung passen 4 x 80cm. Warum machst du das nicht so?
 
...und @SteffiK, es ist immer hilfreich eine Alnogrundrissansicht der Planung mit einzustellen.

Muldenlüfter ... reichen da die 60cm Tiefe der APL-Zeile? Und warum nicht eine "Unseen"-Flachschirmhaube im Hängeschrank, z.B. Miele oder Berbel ?
 
Die Spüle ganz rechts ist vermutlich der Gewohnheit geschuldet

Wir haben sie jetzt auch ganz rechts (aber mit etwas Platz) und da passt es mit den Handgriffen einfach. Allerdings sitzt der Geschirrspüler auch aktuell direkt daneben. Nur nicht hochgebaut wie wir es eigentlich gern hätten.
Ausserdem dachten wir, wenn man mit den Vorräten etc in die Küche kommt, zunächst die Arbeitsfläche Sinn macht, um dort alles abzustellen und von da dann direkt in den Kühlschrank räumen kann etc...

Die Idee mit dem 60 MUPL war vom Küchenstudio die, dass man einfach das System aus dem Spülunterschrank herausnimmt und in den 60 Auszugschrank daneben oben einsetzt. Hätten dann halt Papier und Plastik auch dort? Was spricht dagegen?
Unter der Spüle sinds doch auch 60?

Die Zeile beim Kochfeld soll eine 72ziger Tiefe haben.

Hab leider nach Fertigstellung das Programm einfach zu gemacht ohne zu speichern und futsch war die Planung. Nur die Screenshots hatte ich vorher gemacht.

Ihr habt recht bezgl der vielen Schränke dort. Mir war die Kombi 100, 90, 60, 60 auch lieber. Da kam ich dann aber mit den Hochschränken gar nicht mehr klar.
Glas in einem Hängeschrank haben wir jetzt auch. Da stehen die Tassen drin und wir mögen den Anblick. Lockert die Hochschränke doch ein bisschen auf wie wir finden.

Uns war nicht bewusst, dass der Muldenlüfter an der Wand keinen Sinn macht? Kann mir das jemand erklären? Haben uns damit noch nicht all zu stark beschäftigt, hören nur gerade überall, dass die so toll sein sollen.
Ist daher noch nicht fix und wenns besser geht, sind wir da noch offen.
Mein Mann besteht auf alle Fälle auf ein 90ziger Kochfeld.
Das war der Grund gegen die 80ziger Aufteilung. Geht das bei einer anderen Abzugshaube dann trotz 90ziger Kochfeld?

Wie kann ich denn in "eurer" hier jetzt konkret Evelins Planung arbeiten? Ich kann doch nur meine gespeicherten wieder aufrufen und bearbeiten.

Fragen über Fragen...
Am Samstag haben wir den nächsten Termin. Bis dahin scheinen wir noch ein bisschen nacharbeiten müssen
 

Ähnliche Beiträge

Neff Hausgeräte Ballerina Küchen Blum Bewegungstechnologie Weibel - Intelligente Küchenlüftung

Neff Spezial

Blum Zonenplaner

Weibel Abluft-Tuning

Weibel Abluft-Tuning
Zurück
Oben