Unbeendet Küchenplanung Neubau

Hausnummer.09

Mitglied
Beiträge
25
Küchenplanung Neubau

Hallo,

hier dann nochmal mein Beitrag in der richtigen Kategorie.

Wir haben uns am Freitag einen Meterpreis von 1452€ für eine Nobila Küche aufschwatzen lassen. Mit eurer Hilfe möchten wir das Beste draus machen.

Checkliste zur Kuechenplanung

Personenkriterien und Ergonomie
Anzahl Personen im Haushalt: 3
Davon Kinder: 1
Körpergrößen aller Hauptbenutzer in cm (wegen Arbeitshoehe): 170 + 186
Welche Arbeitshöhe ist angedacht (in cm)?: 93

Gebäudekriterien
Art des Gebäudes: Neu-/Umbau > Planänderungen möglich
Bruestungshöhe des Fensters (in cm): 1,19
Fensterhöhe (in cm): 1,26
Raumhöhe in cm: 1,55
Heizung: Fußbodenheizung
Sanitäranschlüsse: vollkommen variabel

Einbaugerätekriterien
Ausführung Kühlgerät: Stand-Alone bis 75cm Breite
Einbaukühlgerät Größe: N. a.
Ausführung Tiefkühl (TK)-Gerät: Im Kühlschrank ab 3 Schubladen unten
Dunstabzugshaube: keine
Hochgebauter Backofen : ja
Geplante Heißgeräte: Backofen
Hochgebauter Geschirrspüler : nein
Art des Kochfeldes: Induktionskochfeld
Kochfeldbreite (ca. in cm): 60-90 / noch offen

Sitzmöglichkeiten
Sitzmöglichkeit in der Küche / im Küchenbereich: Keine
Sitzmöglichkeit: Für wieviel Personen?: N. a.
Sitzmöglichkeit: Tisch - wenn gesonderter Tisch oder offene Küche: N. a.
Gewünschte oder vorhandene Tischgröße: N. a.
Wofür soll der Sitzplatz in der Küche genutzt werden und wie häufig: N. a.

Stauraum-Planung
Was steht auf der Arbeitsplatte oder soll dort stehen?: Kaffeevollautomat, Wasserkocher, Allesschneider
Welche weiteren Küchenmaschinen müssen in der Küche untergebracht werden: Küchenmaschine
Was soll in der Küche außer den Standards untergebracht werden: Geschirr komplett (nichts in Ess-/Wohnzimmer)
Welchen Stauraum gibt es sonst noch: Speisekammer

Kochgewohnheiten
Was/wie wird gekocht? (Alltagsküche, Menüs, Snacks usw): Alltag vor allem viel Backen
Wie häufig wird gekocht: Sonstiges (evtl. im Beitragstext benennen)
Wird alleine gekocht? Oder auch gemeinsam? Mit und für Gäste?: Allein

Spülen und Müll
Spülenform: 1 Becken mit Abtropffläche
Welche Mülltrennung soll in der Küche vorgehalten werden: Biomüll, Gelber Sack Müll, Restmüll

Sonstiges
Steht schon ein Küchenhersteller fest oder wird bevorzugt: Nobilia lt. Vertrag bzw. Prisma Trend
Steht schon ein Gerätehersteller fest oder wird bevorzugt: Siemens lt
Küchenstil: Grifflose Küche
Was stört an der bisherigen Küche und was soll die neue Küche unbedingt können? Warum?: Größe
Preisvorstellung (Budget): Max. 10.000

Angehängte Dateien
 

Anhänge

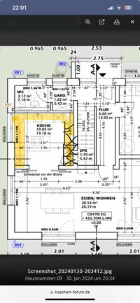
  • Screenshot_20240130-153504.jpg
    Screenshot_20240130-153504.jpg
    138,4 KB · Aufrufe: 183
War mich gleich sympathisch ;-) bei mir gehen nur mehr die halben Smileys..
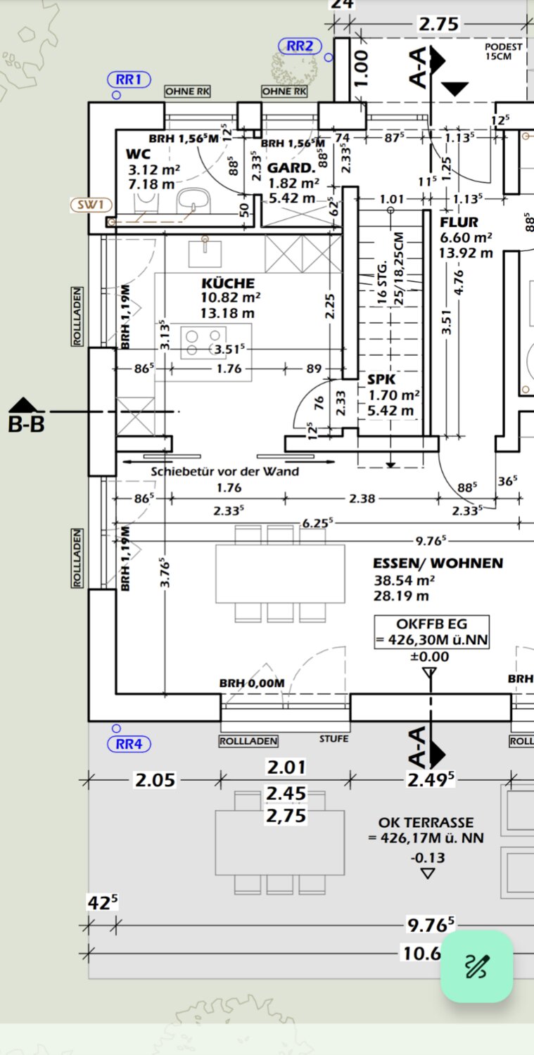
Könntest du bitte sowohl das U Layout als auch die Inselplanung einstellen, damit man weiß, was du dir so vorstellst. Außerdem bitte den Raum genau vermaßen, Tür- und Fensterpositionen, etc.
Die Schiebetür ist fix? Wie groß ist die Abstellkammer unter der Treppe? Hast du bestimmte Vorlieben Spüle oder Kochfeld oder nackte Insel? Da es ein Neubau ist, sind die Fenster fix? Direkten Zugang auf eine Terrasse/einen Garten wäre möglich oder nicht?
 
Wie haben tatsächlich noch keine Küchenplanung . Den Meterpreis haben wir anhand einer L-Küche geraten bekommen. Das ist aber ja dann in den Ecken doppelt bezahlt. Auch wenn man hier den Lemon angedreht bekommt. Die L-Küche wäre am Fenster vorbei und die Lange Wand.
Die Planung hier im Plan wurde vom Architekten eingestellt.

Unser Wunsch wären möglichst viele Auszüge. Optisch finden wir Sandgrau matt ganz schön. Grifflos wäre toll aber wird preislich nicht drin sein.

Das Fenster ist 1,76 m breit und noch nicht fix. Steht aktuell aber in der Flucht mit dem Fenster im Obergeschoss. Man könnte das in der Höhe und Aufteilung z.B. Festverglasung noch ändern . Die Tür zur Speisekammer, welche 1,7 qm groß ist, ist 76 cm breit. Die restlichen Maße zur Wand etc. Stehen ja im Plan. Die Schiebetür haben wir geplant, damit wir die auch mal zu machen können um Geräusche oder Gerüche einzusperren. Ein Zugang zur Terrasse wäre möglich, ist aber nicht gewünscht.

Wie hatten schon gerne eine Insel mit Kochfeld, aber uns wurde von der Dame vom Küchenverband gesagt das wird zu eng. Wir haben ja 3,13 m zur Verfügung. Davon dann 56 cm die Zeile an der Wand, 1 Meter die Insel wären 78 cm vor und hinter der Insel.
 
Ich kann beispielsweise dieses Maß nicht finden

313 ist sehr ungünstig; die Raumbreite von 350 würde hingegen für eine Insel ganz gut passen. Schwierig. Der Architektenvorschlag gefällt mir gar nicht; nur ein L wäre sehr schade für den Raum.

Wenn die Küche nicht geschlossen wäre, wäre es auch etwas einfacher. Ist das ein großer Wunsch von euch?

Könnte man die Speisekammer als Abstellkammer vom Flur aus auch nutzen?
 

Anhänge

  • IMG_3917.jpeg
    IMG_3917.jpeg
    154,6 KB · Aufrufe: 135
Ich kann beispielsweise dieses Maß nicht finden

313 ist sehr ungünstig; die Raumbreite von 350 würde hingegen für eine Insel ganz gut passen. Schwierig. Der Architektenvorschlag gefällt mir gar nicht; nur ein L wäre sehr schade für den Raum.

Wenn die Küche nicht geschlossen wäre, wäre es auch etwas einfacher. Ist das ein großer Wunsch von euch?

Könnte man die Speisekammer als Abstellkammer vom Flur aus auch nutzen?
Oh Entschuldigung bin noch neu in dem Ganzen. Das sind 1,37 m.
Die (halb) getrennte Küche war tatsächlich ein Wunsch ja. Wir haben jetzt schon in zwei Wohnungen mit komplett offenem Koch-Ess-Wohnbereich und einmal mit Zugang zur Küche ohne Tür gewohnt und wollen es nicht mehr.

Die Speisekammer wird im Flur zugemauert.
 
313 cm Raumtiefe (minus Verputz), damit kann man keine Insel stellen. Auch wenn man die Insel 90 Grad dreht, reicht der Platz nicht. Du musst an den Inselcken zur Küchentürwand min 90cm Abstand lassen. Von den 313 geht noch 2 x Verputz ab, Blende bzw Wange auch noch 2-3cm ab. Das reicht für ein Koch-oder Spüleninsel.

ABER an der Treppenwand ist kaum Platz. Egal wie man es dreht, es passt nicht.

Es geht nur "immer an der Wand lang".

Eine Küche würde sehr gut im Anschluß an den HWR passen.
 
Zuletzt bearbeitet:
damit nimmst du dir alle Möglichkeiten, im Küchenraum eine Küche zu stellen. Warum man das Fenster in die Küchenecke plant, ist mir auch schleierhaft, nur weil es mit dem Fenster darüber passen muss. Wegen dem Äußeren reduziert du hier auch hier die Möglichkeiten.

313 cm Raumtiefe (minus Verputz), damit kann man keine Insel stellen. Auch wenn man die Insel 90 Grad dreht, reicht der Platz nicht. Du musst an den Inselcken zur Küchentürwand min 90cm Abstand lassen. Von den 313 geht noch 2 x Verputz ab, Blende bzw Wange auch noch 2-3cm ab. Das reicht für ein Koch-oder Spüleninsel.

ABER an der Treppenwand ist kaum Platz. Egal wie man es dreht, es passt nicht.

Es geht nur "immer an der Wand lang".

Eine Küche würde sehr gut im Anschluß an den HWR passen.
Danke für die Anmerkungen. Dann wird für uns wohl nur ein L bleiben.

Wir hatten ursprünglich die Küche bis zur Außenwand zur Straße hin. Das mussten wir ändern weil der HWR großer sein müsste.

Die Speisekammer macht aus unserer Sicht nur Sinn mit Zugang zur Küche. Sonst trägt man alles was man braucht jedes Mal durchs Esszimmer
 
@Hausnummer.09, der Grundriss ist gut.
Ich würde nicht anfangen, das Küchenfenster in der Fassade zu verschieben. Dann müsste nämlich das Fenster im Essbereich auch wandern, und die im Obergeschoss auch.

Ich habe folgende Fragen zur Planung:
Was lagert ihr denn alles in der Speisekammer?
Dinge wie Putzzeug, Staubsauger und evtl. auch Getränkekisten sind ja vielleicht mit Zugang zum Flur besser aufgehoben. Dann könnte die Tür doch noch in Richtung Flur.

Kann die Innenwand zwischen Küche und Essbereich eventuell noch ein Stück Richtung Essplatz wandern? Dann könnte es mit einer Insel in der Küche klappen.
 
Zuletzt bearbeitet:
Deshalb habe ich auch wegen der Öffnung gefragt…
Die Speisekammer ist sehr klein, nimmt aber Platz weg. Man könnte statt der Tür auch Vorratsschränke stellen. Und die Kammer von der anderen Seite als Nische für Staubsauger oder Ähnliches verwenden.

U sind euch vermutlich zu viele Ecken, oder warum das L?
 
Zuletzt bearbeitet:
@Hausnummer.09, der Grundriss ist gut.
Ich würde nicht anfangen, das Küchenfenster in der Fassade zu verschieben. Dann müsste nämlich das Fenster im Essbereich auch wandern, und die im Obergeschoss auch.

Ich habe folgende Fragen zur Planung:
Was lagert ihr denn alles in der Speisekammer?
Dinge wie Putzzeug, Staubsauger und evtl. auch Getränkekisten sind ja vielleicht mit Zugang zum Flur besser aufgehoben. Dann könnte die Tür doch noch in Richtung Flur.

Kann die Innenwand zwischen Küche und Essbereich eventuell noch ein Stück Richtung Essplatz wandern? Dann könnte es mit einer Insel in der Küche klappen.
Bisher lagern dort Sachen wie Zwiebeln, Kartoffeln, Mehl, Zucker, Nudeln und Dosen.
Theoretisch könnte die Wand wandern. Allerdings müsste dann das Fenster auch mit wandern und dann haben wir wieder das gleiche Problem wie in der Küche
 
Deshalb habe ich auch wegen der Öffnung gefragt…
Die Speisekammer ist sehr klein, nimmt aber Platz weg. Man könnte statt der Tür auch Vorratsschränke stellen. Und die Kammer von der anderen Seite als Nische für Staubsauger oder Ähnliches verwenden.

U sind euch vermutlich zu viele Ecken, oder warum das L?
Meinst Du das U so wie im Plan?
 
So beispielsweise, die Fensterzeile eventuell in Übertiefe, planoben Kochfeld, planlinks Spüle, unter dem Fenster der Arbeitsbereich
 

Anhänge

  • IMG_3922.jpeg
    IMG_3922.jpeg
    161,7 KB · Aufrufe: 99
Bisher lagern dort Sachen wie Zwiebeln, Kartoffeln, Mehl, Zucker, Nudeln und Dosen.
Das, was andere Leute als Vorrat im Keller lagern und in der jeweiligen Verbrauchsmenge (angebrochene Packung) in der Küche haben.
Ihr habt statt des Kellers die Kammer.

Theoretisch könnte die Wand wandern. Allerdings müsste dann das Fenster auch mit wandern und dann haben wir wieder das gleiche Problem wie in der Küche
Muss es nicht, das Fenster sollte bleiben. Es genügt vielleicht, wenn die Wand bis zum Fenster wandert. Das dürften ca. 30 cm sein. Dann wäre die Wand in der Küche ca. 3,40 m lang. Knapp, aber möglich für eine Insel.
 
Screenshot 2024-02-01 100717.jpg
das liegt etwas über eurem Budget €10k à €1452

1706753569758.jpg
das unter eurem Budget

wie viel wird euch für fehlende OS per Meter gut geschrieben?

Ist der Meterpreis mit Schichtstoff AP?
Welchen Korpus bekommt ihr? Linie N X, also den 792mm hohen Korpus?

Weil das Fenstermaß fehlt, habe ich 180cm als Breite angenommen.
 
Zuletzt bearbeitet:
Anhang anzeigen 388066
das liegt etwas über eurem Budget €10k à €1452

Anhang anzeigen 388065
das unter eurem Budget

wie viel wird euch für fehlende OS per Meter gut geschrieben?

Ist der Meterpreis mit Schichtstoff AP?
Welchen Korpus bekommt ihr? Linie N X, also den 792mm hohen Korpus?

Weil das Fenstermaß fehlt, habe ich 180cm als Breite angenommen.
Oh Dankeschön es werden 360 für fehlende OS gutgeschrieben

Was ist Schichtstoff AP?

Ich merke wir sind komplett unbedarft da rein gegangen denn die Höhe weiß ich nicht. Wir wissen nur die Höhe von 93cm
 

Ähnliche Beiträge

Neff Hausgeräte Ballerina Küchen Blum Bewegungstechnologie Weibel - Intelligente Küchenlüftung

Neff Spezial

Blum Zonenplaner

Weibel Abluft-Tuning

Weibel Abluft-Tuning
Zurück
Oben