Küchenplanung im EFH

Beiträge
12
Hallo zusammen,

wir sind gerade in der Planungsphase für unsere Küche in einem Neubau-EFH. Ich habe mir schon einige Gedanken dazu gemacht aber bei manchen Punkten herrscht noch Unsicherheit.

Zur Planung soweit:
Es wird eine Familienküche in U-Form, in der alles - was sicher ist - auch für die Kinder zugänglich sein soll, daher keine Oberschränke. Auch weil wir ein breites Lichtband übereck wollen um die Morgensonne ins Haus zu lassen. Also nur Auszüge. Mein Mann und ich sind nicht gerade klein, daher eine Arbeitshöhe von ca. 100cm. Eventuell den Kochbereich etwas abgesenkt, muss aber gar nicht mal sein. Ich möchte die Sache so unkompliziert wie möglich halten.

Der Kühlschrank (Stand-alone 60cm, 189cm hoch) soll umbaut werden (s. Skizze), und als Besonderheit möchte ich den Backofen und den Geschirrspüler in einem Geräteschrank kombinieren (BO oben GSP (vorhanden) unten). Dann kann ich auch den Müll unter der Arbeitsplatte unterbringen.
Die Positionierung des Kochfeldes ist noch unsicher. Wir haben eine Brettstapeldecke (Massivholz, keine Holzbalkendecke!!!), was die Durchführung des Abluftrohres erschwert. Ich hätte gerne einen Deckenlüfter , den wir dann logischerweise etwas abhängen müssten. Entweder direkt unter dem Fenster (was ich favorisiere) oder zum Wohnbereich hin. Da ist die Frage wie die Abhängung am geschicktesten ist.
Da wir eine Speis haben werden, müssen nicht alle Vorräte in der Küche untergebracht werden. Aber eben alles für die Alltagsküche. Für diese habe ich einen hohen Apothekerschrank geplant - ich weiß, nicht jeder ist davon begeistert. Ich habe momentan einen 60cm breiten Hochschrank mit Schubladen innen und finde ihn unmöglich! Ich muss die Tür aufmachen und dann auch noch die Schieber. Ist zwar ein Luxusproblem, muss ich aber nicht mehr haben.

Zu den Plänen:
Ich habe mit Sketchup mal rumgebastelt...das ist dabei rausgekommen. Alnoplaner kann ich nicht, da Mac-User.
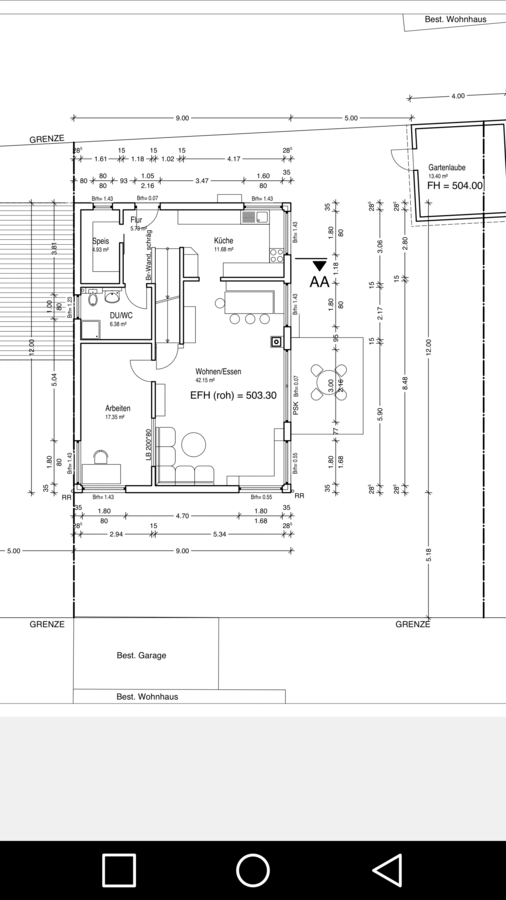
Ich habe auch den Grundrissplan es EG angehängt. Bei uns wird die Diele im UG sein, daher gibt es keine im EG...falls ihr euch fragt ;-)
Die Trennwand zwischen Küche/Essbereich ist 120cm hoch, die kleine Trennwand an der Treppe haben wir gestrichen.

ich wäre euch sehr dankbar, wenn ihr mir sagen könntet ob die Planung soweit Sinn macht, oder ob ich da völlig daneben liege.
Vor allem die Themen abgehängte Decke für DAH und BO über GSP beschäftigen mich sehr.
Ich freue mich sehr auf eure Rückmeldungen.
Cheers!

Checkliste zur Küchenplanung

Anzahl Personen im Haushalt: 4
Davon Kinder?: 2
Art des Gebäudes?: Neu-/Umbau, Planänderungen möglich
Körpergrössen aller Hauptbenutzer (wegen Arbeitshöhe) in cm: 200 und 176cm
Brüstungshöhe des Fensters (in cm): 130
Fensterhöhe (in cm): 80
Raumhöhe in cm: 2,62
Heizung: Fussbodenheizung
Sanitäranschlüsse: variabel an aktueller Wand
Ausführung Kühlgerät: Stand-Alone bis 75 cm Breite
Kühlgerät Größe:
Ausführung Tiefkühl (TK)-Gerät: Im Kühlschrank ab 3 Schubladen unten
Dunstabzugshaube: Abluft
Backofen etc. hochgebaut?: Ja
Hochgebauter Geschirrspüler ?: Nein
Kochfeldart: Induktion
Kochfeldbreite ca. (in cm)?: 80
Spülenform: 1 Becken ohne Abtropffläche
Geplante Heißgeräte: Backofen
Küchenstil: Modern
Sitzmöglichkeit in der Küche / im Küchenbereich: Keine
Sitzmöglichkeit: Für wieviel Personen?: Nein
Sitzmöglichkeit: Tisch - wenn gesonderter Tisch oder offene Küche: Vorhandener Tisch
Gewünschte o. vorhandene Tischgröße:
Wofür soll der Sitzplatz in der Küche genutzt werden? Wie häufig?:
Welche Arbeitshöhe ist angedacht (in cm)?: 100
Was steht auf der Arbeitsplatte oder soll dort stehen?: Kaffeemaschine, Wasserkocher, Küchenmaschine, Brotbehälter
Welche weiteren Küchenmaschinen müssen in der Küche untergebracht werden?: Toaster, Pürierstab
Was soll in der Küche außer den Standards untergebracht werden?: Geschirr komplett (nichts in Ess-/Wohnzimmer)
Welchen Stauraum gibt es sonst noch?: Speisekammer
Was/wie wird gekocht? (Alltagsküche, Menüs, Snacks usw): Alltagsküche
Wie häufig wird gekocht?: (fast) täglich 1x warm
Wird alleine gekocht? Oder auch gemeinsam? Mit und für Gäste?: Meistens alleine, manchmal zu zweit, irgendwann auch mal wieder für Gäste
Was stört an der bisherigen Küche und was soll die neue Küche unbedingt können? Warum?: Schlechte Zugänglichkeit für die Kinder, zu viel steht auf der Arbeitsplatte, Kochfeld zu klein, nie wieder Eckspüle!!
Welche Mülltrennung soll in der Küche vorgehalten werden?: Altglas, Altpapier, Biomüll, Gelber Sack Müll, Restmüll
Steht schon ein Küchenhersteller fest oder wird bevorzugt?: Einer der XL-Korpusse kann
Steht schon ein Gerätehersteller fest oder wird bevorzugt?: Neff für Kochfeld und Backofen , evtl. Novy für DAH
Preisvorstellung (Budget): bis 15.000,-
 

Anhänge

  • 1.pdf
    198,7 KB · Aufrufe: 283
  • Küche.jpg
    Küche.jpg
    49,2 KB · Aufrufe: 255
  • Küche_kochfeld_unter_fenster.jpg
    Küche_kochfeld_unter_fenster.jpg
    60,2 KB · Aufrufe: 265
  • Küche_KF_unter_fenster2.jpg
    Küche_KF_unter_fenster2.jpg
    45,8 KB · Aufrufe: 260
  • Küche_KF_unter_fenster3.jpg
    Küche_KF_unter_fenster3.jpg
    64,3 KB · Aufrufe: 258
Hallo und :welcome:

die Tür zwischen Küche und Speise ist dann also nicht der Hauseingang?

Die Speise ist sehr gross, was soll da ausser Lebensmittel noch rein?

Es fehlt das Mass das Durchgangsmass am Treppenaufgang in die Küche.

Der Essbereich erscheint mir eher unrealistisch dargestellt. Ich schätze, dass zwischen der 120cm hohen Wand und dem Kamin max 230cm Platz sind, Das ist einmal für einen Essbereich wenig Platz und im Winter wird euch so richtig eingeheizt.

Zu deiner Küche. Wie du sicherlich selbst festgestellt hast, ist eine U-Küchenform immer ein Kompromiss, die einzelnen Zeilen lassen sich schlecht möblieren. Du hast mehrere schmale US in deinem Plan, die wenig Stauraum bieten.

Dazu kann ich dir aus eigener Erfahrung sagen, dass es keinen Spass macht, einen 3m+ U-Schenkel zu umkreisen, um auf die Terrasse zu gelangen. Ich habe das 15 J lang gemacht und es hat mich jeden Tag genervt.

Besser wäre ein L und Insel. Trotzdem ist der Kamin sehr ungünstig an dieser Stelle. Mit Insel könnte man 2 verschiedene Arbeitshöhen wählen.

Hier mal ganz grob

Schwöger!.JPG
 
Hier mal ein screenshot vom Grundriss, damit nicht jeder das pdf runterladen muss.

Schicke Planung von Evelin!

Ich habe etwas das Gefühl, dass die Esszimmer Möbel eher Puppenstuben Größe haben? Die Hocker und Eckbank sehen winzig aus. Ob man da reinkommt und bequem sitzen kann?
Schade eigentlich, denn der Gesamtraum Wohn- Esszimmer ist eigentlich nicht klein oder?:rose:
 

Anhänge

  • Screenshot_2016-04-01-07-41-48.png
    Screenshot_2016-04-01-07-41-48.png
    50,5 KB · Aufrufe: 240
Guten Morgen!

Vielen Dank für die Hinweise und die Planung! Ich habe gestern den Post angefangen, während die Kinder um mich herumgerannt sind, daher sind manche Dinge, die ich noch ansprechen wollte wohl untergegangen, sorry das war keine schöne Vorstellung!

Evelin du hast Recht, das ist keine Eingangstür, nur ein bodentiefes Fenster/Terrassentür.
Die Speis ist keiner reiner Vorratsraum, da müssen auch noch der Staubsauer, Putzzeug, Getränkekisten usw. rein.

Zum Essplatz und Kamin: Esstisch (1x2m), Stühle und Bänke (40cmx180cm bzw. 140cm) sind vorhanden. Der Architekt hat die Möbel eingezeichnet, wie wir sie vorgegeben haben. Der Kamin ist nicht fest, d.h. wenn er innen bleibt dann schon, aber der Heizungsbauer hat uns vorgeschlagen einen außenliegenden Kamin/Schornstein zu machen. Daher würde das Problem wegfallen. Es ist auch nur der Kamin von der Pelletheizung unten im Keller, er gibt also keine Wärme ab.

Das Durchgangsmaß zwischen planobiger Wand und Treppenabsatz ist 180cm.

Die schmalen US sind: Müll in 45er US links vom Kochfeld, Gewürze, Öle usw. im 25er US rechts davon. MUPL auch deshalb an der Stelle, da das Spülbecken gleich erreichbar ist.

Über eine Insel haben wir auch nachgedacht, jedoch wollten wir, dass die Essecke direkt an die Küche anschließt. Ihr habt natürlich schon recht, dass er Wohnraum groß ist, den würden wir aber gern so leer lassen, damit die Kinder ordentlich spielen und rumrennen können. Wenn da der Esstisch mitten drin steht.....weiß auch nicht. Aber deshalb bin ich ja hier. Um Anregungen zu erhalten, wie man es besser machen kann. Aber ich kann es absolut nachvollziehen, dass das Herumlaufen wahrscheinlich nervt.

Wichtig wäre uns auch, dass die Korpusse schön groß sind, also hoch. Ein 6er Raster ist das dann, oder? So wie brufi das gemacht hat ist es klasse!!! https://www.kuechen-
forum.de/forum/galerie/kueche06.143262/ Darf ich das so verlinken?

Da mein Mann eine VM-Box auf seinem Rechner hat, werde ich mal den Alnoplaner ausprobieren, mal schauen wie ich mich anstelle.

Vielen Dank nochmal und euch noch einen schönen Tag!
Grüße aus dem Süden,
Johanna
 
bei euch würde sich auch ein 7er Raster anbieten.

wie kommst du auf die Masse 25 und 85cm fúr die US? Standardmasse sind das nicht. Links neben der Spüle ist ah noch mal ein schmaler US.

Normalerweise ist die Hauptarbeitsfläche zwischen Kochfeld und Spüle. Du hast nur einen 45er US dazwischen vorgesehen.

Es wäre auch seeehr viel praktischer, wenn zB neben dem L in meiner Planung ein Tür nach draussen wäre und nicht nur ein Guckloch in 1.43m Höhe.
 
Zuletzt bearbeitet:
Hallo Evelin,

die Maße rühren daher, dass wir einen befreundeten Schreiner haben, der uns die Küche machen wird. Dem ist das egal wie breit oder schmal die Schränke sind.

Das mit der Hauptarbeitsfläche stimmt natürlich, die ist in meiner Planung zu klein. Außer man macht das Kochfeld zum Essplatz hin, wie in der Skizze "Küche.jpg".
Das Guckloch hat eine Brüstungshöhe von 130cm über FFB. Das ist dort, weil die Eckbank an der Stelle an der Wand steht, da kann keine Tür hin.
In deiner Planung könnte man auch Kochfeld und Spüle tauschen, dann könnten wir eine Wandesse einsetzen und müssten die Decke gar nicht anrühren.
Mein Mann fragt gerade, wo denn dann bitte seine Siebträgermaschine stehen soll, wenn der US (mit Diagonalschränkchen) an der Treppenbrüstungswand fehlt :rolleyes:. Ich bin kein Kaffeetrinker, daher kann diese Sorgen nicht nachvollziehen....
Aber ich werde darüber nachdenken!

Grüße,
Johanna
 
ach ja, wenn du Varianten erstellst, gib jeder Variante einen eigenen Post, dass man sich darauf beziehen kann. Ich sehe in deinem Eingangspost 2 verschiedene layouts.

ganz abgesehen davon, dass der Schreiner machen kann was er will, muss das Ganze auch irgendwo sinnvoll sein.

Die 306cm hast du in einem Bild wohl so aufgeteilt (planrechts von oben)

tote Ecke
45er US (MUPL ?)
80er Kochfeld
25er Flaschen
tote Ecke

gibt 280cm. Was soll mit den restlichen 25cm passieren oder habe ich nicht richtig geschaut?

Auch schreibst du im Eingangspost KS 75cm breit, in den Bildern sehe ich einen 60cm breiten KS. Was stimmt?

Wo ist in deinen Bildern der GSP?

Wie lang soll die Wand zur Eckbank werden?
 
hab jetzt gelesen, dass der BO unter den BO soll.

es wundert mich, dass ihr bei eurer Körpergrösse den GSP nicht erhöht einbauen wollt. Allerdings wäre dann vielleicht für die kürzere Person der BO, wenn 60cm hoch. Alternativ ein 45er Gerät, evenuell mit Mikrowelle .
 
Zuletzt bearbeitet:
Es sind 280cm, 306cm ist die Speis. Die Aufteilung ist so wie beschrieben. Zu wenig Arbeitsfläche zwischen Spüle und Kochfeld.
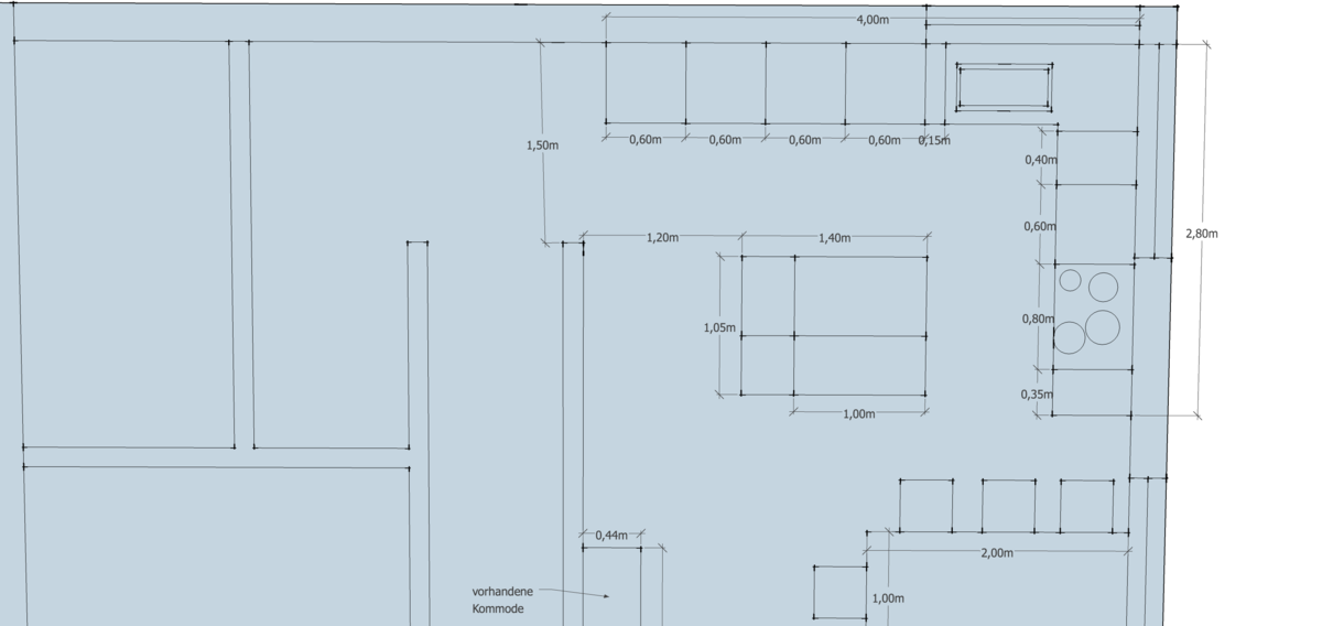
Ich habe jetzt mal mit Sketchup eine Skizze erstellt, die an Evelins Planung angelehnt ist. Wir müssten dann 2. Lichtband planrechts /unten etwas weiter runter setzen, damit der Essplatz mittiger drinliegt.
Hoch gebauer GSP war auch angedacht, hätte aber keinen Platz gefunden. Jetzt würde es evtl gehen. Obwohl mir die Idee BO und GSP übereinander immer noch am besten gefällt.

Neue Auteilung:
planlinks bis rechts (380cm)
60er HS für Zeugs
40er hoher Apotheker
60er Standkühler (man konnte in der Checkliste "bis 60cm" oder "bis 75cm" angeben, unserer ist ca.62cm)
60er HS für BO und GSP
15er Schubfach für Hand/Geschirrtuch
80er Spülen-US
tote Ecke

planrechts/oben bis unten (295cm)
40er US MUPL
60er US
80er Kochfeld
35er US Öle, Gerwürze

Insel mit 80er und 60er Schränken, mit 60er bzw. 45er Tiefe.

Auf diese Weise hätte man wirklich mehr Stauraum, als in der U-Form. Und der Durchgang zwischen Insel und Treppe ist auch größer. Das ist auch wichtig, da das der einzige Zugang zum OG ist.

Super Idee Evelin! Daran hätte ich niemals gedacht, ich wollte alles so kompakt wie möglich halten. Jetzt müssen wir das erstmal verdauen, und schauen, ob wir mit dem Essplatz so zufrieden sind und ob das von den Platzverhältnissen realistisch ist.

Grüße,
Johanna
 

Anhänge

  • Küche_Insel.png
    Küche_Insel.png
    73 KB · Aufrufe: 255
Zum Thema Apotheker und Luxusproblem: Es ist m.E. viel nerviger, wegen jedem Teebeutel 100 kg zu bewegen und dann auch nur von der Seite Einsicht auf den Inhalt nehmen zu können. Wie oft bin ich um so ein Teil schon rumgetanzt, weil ich etwas gesucht habe. Und die wenigen Ebenen, die anfällige Mechanik und der Preis würden mich da schnell überzeugen, dass es deutlich mehr Vorteile hat, einen 60er HS mit Innenauszügen zu nehmen.
 
In #4 schreibst du, der Abstand zur Treppe ist 180cm. In deinem Plan in #9 sind es jetzt 150cm? was stimmt?

Warum hört die Zeile planoben in #9 bei ca 380cm auf und endet nicht, wie in meinem Plan bei 417cm und abschliessend mit einer Trockenbauwand?

Ja und die Kaffeemaschine sollte ja eigentlich mehr in Wassernähe stehen.
 
denk auch mal über einen 2-Zeiler nach, Wandzeile planoben, Halbinsel, 100cm tief planunten, wobei die Spüle dann in Richtung Raum plaziert wird. Nur so hast du das Geschehen im Auge.
 
Aaalso, der Abstand zur Treppe ist 150cm, da habe ich mich vertippt. Die 380er Zeile hört dort auf, weil ich den Platz am Treppenabsatz nicht ganz vollstellen möchte.
Die eingezeichnete Küche im Grundriss ist nicht ausschlaggebend, da hat der Architekt sich was aus den Fingern gesogen. Ausschlaggebend waren meine 3DSketchup Skizzen. Und jetzt eben der Plan aus #9

Grüße,
Johanna
 
Mal zum Hausgrundriss:
Ist der Hauseingang ein Geschoss tiefer? Ist es ein Hanggrundstück? Da wo die Tür an der Treppe ist, kommt man hoch, oder?
Gibt es darüber auch ein Geschoss? (Nur, damit man sich ein Gesamtbild von Eurem Projekt machen kann.)
Als ich den Plan das erste Mal angeschaut hab, hab ich mir gedacht: "Kommt man zum Klo nur von planoben rein?" Finde ich zwar vom Wohn- oder Arbeitszimmer nicht so gut erreichbar, aber es sollte ja auch von der Terrasse aus schnell erreichbar sein, nehme ich an. Und 2 Türen wären auch blöd. Da eine Dusche eingezeichnet ist, soll es wohl auch für (Übernachtungs-)Gäste sein? Wo kommen die unter?

Zur Küche:
Ich würde so wenig Ecken wie möglich planen. Es sind ja nicht nur die Ecken an sich problematisch, sondern auch, dass sich links und rechts davon immer was blockiert.
Die Eckbank könnte man auch an eine Halbinsel stellen.
Ist das eine Eckbank, die man auch frei stellen könnte? Oder, da sie im Entwurf #9 ja nur als gerade Bank dargestellt ist, eine zweigeteilte? (Vielleicht hat die ja auch Euer befreundeter Schreiner gemacht ;-))
 
Hallo Landmadl,

ja der Hauseingang ist im UG, da es ein Hanggrundstück ist. Das Gelände steigt also von planlinks nach rechts. Man kommt dort hoch wo die Tür ist, ja. Es gibt noch ein OG, das dann quasi aus dem Küchenflur über die Treppe erreicht wird. Ganz praktisch eigentlich, wenn man morgens runterkommt und gleich die Kaffeemaschine einschalten kann....sagt mein Mann!
Das Du/WC wollten wir so weit wie möglich vom Wohnraum fern haben. Das man vom Arbeitszimmer etwas laufen muss ist nicht schlimm. Gäste kommen im UG unter.

Die Idee mit der Halbinsel ist auch gut, da man so tatsächlich die Bank dort hinstellen könnte. Es ist eine frei stellbare Bank, die zweite würde an die planrechte Wand unters Lichtband kommen, kann aber auch in anderen Räumen untergebracht werden, daher ist sie im Entwurf #9 nicht zu sehen.

@Evelin: Die Spüle zum Wohnraum wird schwierig, da ja der Geschirrspüler auf der anderen Seite stehen soll.

Jetzt schlafe ich mal drüber und entwerfe morgen fleißig weiter.
Vielen Dank bisher!

Gute Nacht,
Johanna
 
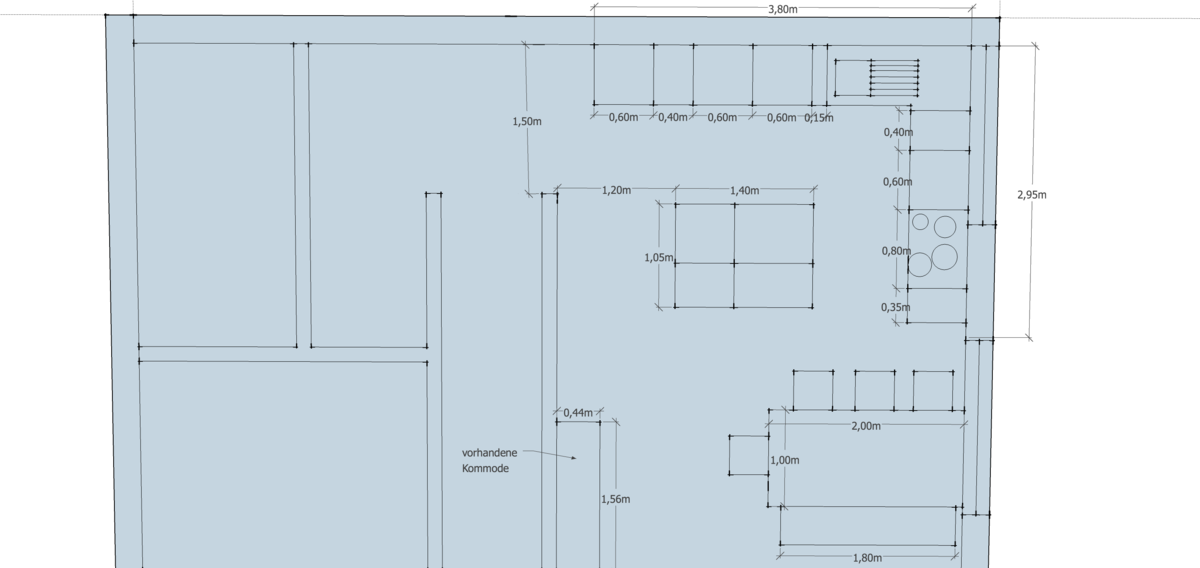
Guten Abend zusammen,

da ich leider mit dem Alno -Planer gar nicht zurecht komme, stelle ich noch eine Sketch-up Skizze und die 3D-Ansicht rein. So sieht das jetzt doch schon ganz gut aus, oder? Am Freitag geht's zum Schreiner! Mal sehen was er dazu sagt.

Von planlinks nach rechts, dann runter.
60er HS mit Nische für Kaffeemaschine
60er HS mit Innenauszügen statt 40er Apotheker (es haben mich alle überzeugt!)
60er umbauter Standkühler
60er HS mit BO und GSP
80er Spüle
40er MUPL
60er US
80er Kochfeld mit Auszügen drunter (Wandesse noch unentschlossen)
35er US
In der Mitte dann die Insel mit
100er US, 60 Tiefe, Auszüge
100er US, 40 Tiefe, Türen
die restlichen 40cm planlinks wird ein kleiner Tresen für meine Kinder zum Mitkochen.

Grüße,
Johanna
 

Anhänge

  • Küche_Insel.png
    Küche_Insel.png
    71,3 KB · Aufrufe: 233
  • Küche_Insel_3D.png
    Küche_Insel_3D.png
    327,4 KB · Aufrufe: 223
Hmm, mir gefällt in den Planungen die Position der Spüle nicht. Die ist so "lieblos" in der Ecke und gerade rund um die Spüle ist ja eigentlich der Hauptarbeitsplatz.

Evelins Ansatz gefällt mir da schon wesentlich besser. Die GSP könnte man da auch am Zeilenende leicht erhöht mit Abstellplatz für die Kaffeemaschine einplanen.
schwoeger-jpg.209596


Was ist es denn für eine vorhandene GSP und, wäre denn der Wasseranschluß, wenn man sich mal vom ursprünglichen Gedanken BO über GSP löst, variabler legbar?
 
Hallo Kerstin,

danke für den Vorschlag. Die Anschlüsse sind noch alle variabel verlegbar. Wäre aber Spüle und GSP (Bosch , teilintegrierbar) nebeneinander von den Leitungen her nicht praktischer? Außerdem finde ich das Kochfeld unter dem Fenster nicht so gut. Deswegen habe ich ja die Fenster schon verkleinert, dass ich planrechts an der Wand über dem Kochfeld Platz für eine Schrägesse habe.
Wenn ich meine jetzigen Arbeitsabläufe betrachte (mit Spüle links und Kochfeld rechts) findet meine Hauptarbeit dazwischen statt, nur dass ich dort zur Zeit viel zu wenig Platz habe. Darum überlege ich auch statt dem 60er US links neben dem Kochfeld einen 80er zu nehmen. Dann wäre da auf jeden Fall genug Platz zum arbeiten. Und Spülen mit Blick in den Garten ist doch auch nicht schlecht, oder?

Was uns jetzt noch Kopfzerbrechen bereitet ist wie wir auf unsere Arbeitshöhe von 1m kommen, ohne unnötig Platz im Sockel zu verschwenden. Die meisten Hersteller haben niedrige Korpushöhen. Ist Nolte der einzige der 900er Höhe anbietet? Unser Schreiner ist noch am Rechnen, da wollte ich mal schon mal woanders auch noch schauen, aber bisher war es leider sehr enttäuschend. Weiß da jemand von euch mehr über Korpushöhen?

Lieben Gruß,
Johanna
 
Ihr plant mit einer BRH von 130 cm .. da wäre hinter dem Kochfeld auch am Fenster erstmal Wand. Die Höhe der Fenster würde es zulassen eine Decken-DAH zu planen. Garantiert Kopffrei und effektiver als die meisten typischen Schrägessen.

GSP würde ich ja neben der Spüle planen .. ganz nach planunten rechts, erhöht auf ca. 120 cm ... dort darauf ist dann der ideale Platz für die Kaffeemaschine .. in den Nähe vom Wasser aber auch vom Esstisch, wo man den Kaffee ja in aller Regel braucht.
Hauptarbeitsplatz dann genauso vor dem Fenster.

Beispiele für realisierte Deckenhauben .. insbesondere mal bei The Dude oder in Tinis Küche gucken.
Und
Novy Deckenluefter-Montage und Installation- Thread von Michael
Decken-DAH-Montage bei Träumerle
Decken-DAH-Montage bei andrej
Oder aus Tinis Küche ... da gibt es ganz viele Aufbaubilder
Oder aus TheDudes Küche mit Schattenfuge der Abhängung und an der Fensterseite
Oder aus Toms Küche auch mit Schattenfuge der Abhängung. Hier ist die Abhängung einmal rundum geführt.
Oder aus Weis28 Küche ... in ganz besonderer Form
Oder ganz neu aus Johaenes Küche .. die schöne Wandkochzeile
und jetzt auch aus Lachmoewes Küche .. die Aufbaubilder
weiter mit Tom020361Küche .. gesamte Küche mit vorher/nachher.
Auch eine Ikea -Lösung ist dabei .. Cearas Küche mit Aufbaubildern
 

Ähnliche Beiträge

Neff Hausgeräte Ballerina Küchen Blum Bewegungstechnologie Weibel - Intelligente Küchenlüftung

Neff Spezial

Blum Zonenplaner

Weibel Abluft-Tuning

Weibel Abluft-Tuning
Zurück
Oben