Fertig mit Bildern Familienküche in Altbau für 8-10 Personen

Danke für euren Input.
Ich versuche mal auf die Fragen und Vorschläge einzugehen.

Akutell sind wir Wochentags zu dritt oder zu viert (meine beiden Kinder, ggf. mein Freund, ich). Wenn er seine Kinder am Wochenende hat, sind sie oft bei mir, sodass wir zu siebt sind.
Nummer 8 kommt im Oktober dazu.
Und sobald wir umgezogen sind, werden seine Kinder nicht mehr nur am Wochenende sondern auch unter der Woche bei uns sein. D.h. sehr regelmäßig und nicht nur alle 14 Tage übers Wochenende.

Daher brauchen wir eben Platz für den Alltag mit 8 Personen. Der Tisch sollte optional erst mal für bis zu 10 Personen ausgelegt sein, falls eben noch jemand dazu kommt (Freunde, Oma, etc.). Notfalls können auch die Kinder auf der Sitzbank zu fünft oder sechst sitzen, da haben noch mehr Leute Platz.

Die Situation mit zusätzlichem Tisch stellen haben wir jetzt auch schon bei Feiern und der bleibt nicht stehen. Der wird jedes Mal hinterher wieder weg geräumt, es sei denn, man hat an zwei aufeinanderfolgenden Tagen eine Feier oder sehr viele Übernachtungsgäste, was eher selten vorkommt.

Ich verzichte lieber auf einen hochgebauten Backofen als auf einen hochgebauten Geschirrspüler , wenn es nicht anders geht.

@Nörgli:
Vielen lieben Dank für deine Planung. Sie sieht auf den ersten Blick gut aus. Beim drüber schlafen sind mir aber so ein paar Punkte in den Sinn gekommen, die für mich noch nicht passen.
- Die Insel/Zeile ist nur 60cm tief. Das ist mir zu wenig. Ich kann zwar noch mal bei meinem Bruder vorbei schauen, der hat sowas in der Tiefe, aber so wirklich überzeugend finde ich das nicht. 75cm wären mir hier lieber.
- Die Hochschränke über Eck klauen mir wertvollen Abstellplatz in der toten Ecke. Ich brauche das für Wasserkocher, Toaster, Kaffeemaschine. Die mag ich nicht im Arbeitsbereich stehen haben.
Ob ich um die Insel herum gehen kann oder nicht, ist mir erst mal egal.
Wir werden unsere Plätze am Tisch eh neu sortieren, daher wird es wohl eher so sein, dass ich und mein Freund Richtung Tür sitzen, um eben schnell mal noch was zu holen, und die Kinder dann eher da, wo man den weiteren Weg hat.

@kuechentante
Vielen Dank für den Erfahrungsbericht mit schmaleren Durchgängen. Wenn es nicht der Hauptverkehrsweg ist, ist das sicher akzeptabel.

Ich habe gestern und heute auch noch mal bewusst meinen 90er Durchgang benutzt und dort gearbeitet und ich finde, das geht sogar, wenn hinter mir ein Hochschrank steht. Wenn es nur Unterschränke sind, ist da ja oben rum viel mehr "Luft". Also 90cm finde ich daher ausreichend.
Wenn das Baby da ist und mobil wird, ist es eh egal, ob wir 90cm oder 130cm Zeilenabstand haben. Das Kind wuselt eh um unsere Beine rum und wird zur Stolperfalle.

Ich habe noch mal zwei andere Ideen umgesetzt, die mir gestern Abend vorm Einschlafen kamen. Ich stell gleich jede noch in einen separaten Beitrag ein.
 
@pari79, Deine Planung gefällt mir sehr gut! Hier evtl. ganz schön viel Küche für eine Mietwohnung und vielleicht möchte Tini irgendwann doch bauen/kaufen... aber an und für sich eine tolle, großzügige Küche.
 
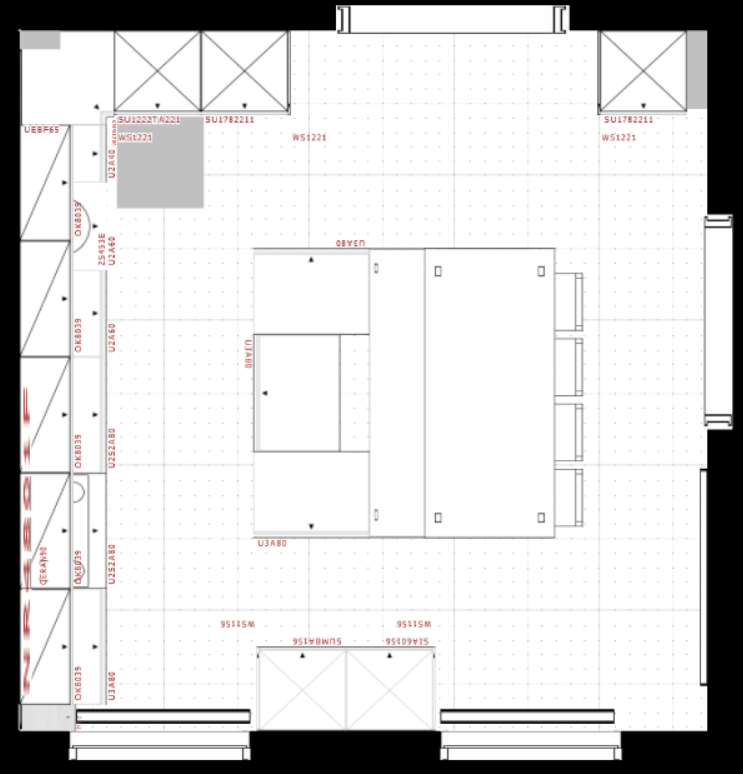
Hier mal V6.
Backofen und Gefrierschrank zwischen die Fenster.
Vorteile:
- Backofen nahe am Herd (ich stelle oft mal eine Pfanne in den Ofen zum Weitergaren)
- Gefrierschrank nahe an Backofen und Herd (Pizza auf der Insel auspacken und gleich in den Ofen packen, TK Gemüse direkt in einen Topf auf den Herd stellen, ...)

Zusätzlicher Vorratsschrank mit Innenauszügen planrechts der Tür für mehr Stauraum.
Insel mit 200x75cm etwas kürzer. Sitzbank und Tisch entsprechend auch 200cm lang. Reicht aber, denke ich.

Planlinks der Tür erst GSA, dann Kühlschrank.
Anderherum würde der GSA die Spüle blockieren, wenn er offen steht.

Abstand Wandzeile - Insel: reichlich 100cm
Abstand Tisch - Wand: 100cm
Durchgang GSA - Insel: 90cm
Durchgang BO/Gefrierschrank - Insel: ca. 75cm (vertretbar, da nicht Hauptverkehrsweg)

EDIT:
Ich hab auch überlegt, ob ich den Gefrierschrank zwingend in der Küche brauche oder ob der ggf. auch im Flur stehen könnte. Quasi Rücken an Rücken (mit Wand getrennt) zum Kühlschrank). Muss ich aber ausmessen, denn im Flur sind auch diverse Vorsprünge. Und ob dann an der entsprechenden Stelle auch eine Steckdose ist, weiß ich natürlich noch nicht.
 

Anhänge

  • doppelkeks_V6_ansicht1.JPG
    doppelkeks_V6_ansicht1.JPG
    70,8 KB · Aufrufe: 410
  • doppelkeks_V6_ansicht2.JPG
    doppelkeks_V6_ansicht2.JPG
    84,1 KB · Aufrufe: 292
  • doppelkeks_V6_grundriss.png
    doppelkeks_V6_grundriss.png
    135,3 KB · Aufrufe: 421
  • doppelkeks_V6.KPL
    3,6 KB · Aufrufe: 321
  • doppelkeks_V6.POS
    12 KB · Aufrufe: 334
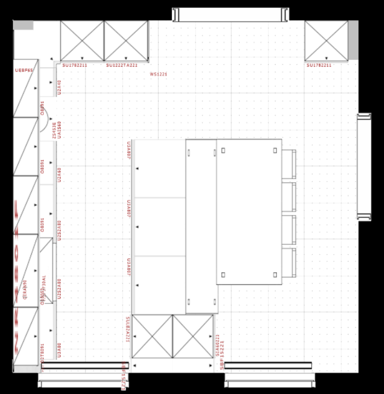
Und V7, inspiriert durch Nörglis Planung und wieder unter Nutzung des Platzes zwischen den Fenstern.

Das planlinke L mit GSA, KS, toter Ecke als Gerätepark, Spüle, Arbeitsfläche, Kochfeld, Thermomix-Standort bleibt bestehen.

Planrechts der Tür der Gefrierschrank. Die Idee, die Schränke rechts und links der Tür mit Klappenschränken zu verbinden, finde ich toll, allerdings weiß ich nicht genau, wie hoch die Tür ist, daher kann ich noch nicht sagen, ob das wirklich funktionieren würde. Ich behalte das aber im Hinterkopf.


Zwischen den Fenstern Rücken an Rücken Backofen (zum Kochfeld hin) und Vorratsschrank mit Innenauszügen (vom Esstisch aus zugänglich). Ideal für Müsli, Getränke und Vorräte, die man nicht so oft braucht.
An den BO-Schrank anschließend 3 x 80er US in 75er Tiefe. Rückwärtig dazu eine 240cm Sitzbank. Davor ein 200cm Tisch und 4 Stühle.
Tisch kann dann sowohl nach oben als auch nach unten noch ausgezogen werden, wenn doch mal mehr als 10 Personen sitzen sollen. Dann werden die Durchgänge nicht mehr üppig, aber das kommt sehr wahrscheinlich nur selten vor.

Hier gefällt mir die Optik der beiden HS zwischen dem Fenster noch nicht so richtig. Aber ich wollte es mal gestellt haben, um die Wirkung zu sehen.
 

Anhänge

  • doppelkeks_V7.KPL
    3,6 KB · Aufrufe: 310
  • doppelkeks_V7.POS
    12,3 KB · Aufrufe: 247
  • doppelkeks_V7_ansicht1.JPG
    doppelkeks_V7_ansicht1.JPG
    71,1 KB · Aufrufe: 243
  • doppelkeks_V7_ansicht2.JPG
    doppelkeks_V7_ansicht2.JPG
    63,5 KB · Aufrufe: 246
  • doppelkeks_V7_ansicht3.JPG
    doppelkeks_V7_ansicht3.JPG
    70,5 KB · Aufrufe: 217
  • doppelkeks_V7_grundriss.png
    doppelkeks_V7_grundriss.png
    137,7 KB · Aufrufe: 393
Und nun noch zu @pari79
Danke für die Planung. Schaut gut aus, wenn ich im Alltag nur zu fünft wäre. Bin ich aber leider nur die Hälfte der Zeit.
Dazu kommt, dass Essplatz auf APL-Höhe für mich mit (meinen) Kindern nicht funktioniert. Hab ich ja jetzt auch, dass sie mal an der Insel hocken. Zum Essen bevorzuge ich den Tisch.
Außerdem ist mir das viel zu wenig Abstellfläche auf der Wandseite. Auf die Insel möchte ich eigentlich ungern elektrische Geräte stellen (da wäre nämlich die Frage, wie wir Strom dahin bekommen), d.h. es steht wohl alles auf der Arbeitsfläche zwischen Spüle und Kochfeld. Und das geht für mich überhaupt nicht.

Sei mir bitte nicht böse, aber Esstisch dauerhaft im Flur kommt nicht in Frage. Weder für mich, noch für meinen Freund, der mich gestern angeschaut hat, als wäre ich nicht ganz beisammen, als ich ihm davon erzählte.
 
Welche Altersspanne haben die 5 Kinder, die schon da sind? Wir waren früher übrigens auch zu Acht.
 
Hatte ich irgendwo schon geschrieben. Der jüngste ist fast 6, der älteste 12.
 
@doppelkeks : Warum soll ich böse sein? Es muss für euch passen, nicht für mich ;-) Außerdem ging ich bei meiner Planung aus #40 davon aus, dass ihr unter der Woche bzw. beim Frühstück zu fünf seid. Nach den Infos aus #41 hat sich das erledigt ;-)

Wie gefällt die eigentlich die Idee des begehbaren Kleiderschranks für die Kids, um Zugang zu K2 von K1 abzutrennen?

Außerdem noch eine Frage bez. des Berliner Zimmers:

Ihr habt da ja massig Platz. Und seid offen für Ikea . Mit Metod z.B. mit HS mit 140 Höhe kann man ja auch schicke Sideboards und Kombinationen basteln, die nicht mehr wirklich nach Küche aussehen.

Blau markiert zwei mögliche Positionen (eingezeichnete Tiefe ist 60cm). Wäre es eine Option für euch, dass z.B. die TG dort versteckt wird. Dazu Platz für Vorräte, Getränke etc. Dann könnte man in der Küche bissl "reduzieren" und so Platz für euren Tisch schaffen.
 

Anhänge

  • Doppelkeks_TG_BZ.jpeg
    Doppelkeks_TG_BZ.jpeg
    102,3 KB · Aufrufe: 361
Bzgl. der Raumtrennung bei den Durchgangszimmern ist da schon angedacht, dort etwas ähnliches zu bauen. Das haben wir schon im Blick.

Was Schränke im Flur angeht, müssen wir sehen. Ich hatte das auch schon angedacht. Mein Freund mag das aber nicht. Außerdem hat auch der Flur diverse Nischen und Vorsprünge, die auf dem Grundriss nicht eingezeichnet sind. Besonders an der planunteren Wand kann man keinen durchgängigen Schrank stellen.

TG möchten wir schon auch in irgendeiner Form in der Küche haben. Das hat auch mein Freund klar geäußert.
Aktuell geht bei uns beiden der Trend Richtung V6, allerdings den Gefrierschrank nicht neben den BO sondern allein planrechts neben die Tür und unten neben den Backofen den Vorratsschrank.
Den Tisch in V6 kann man auch locker auf 280cm ausziehen und dann mit bis zu 14/15 Personen sitzen.
Dann kann man zwar nicht mehr um die Insel laufen, aber man kommt immer noch von mindestens zwei Seiten an den Tisch. Und da das ja nicht jeden Tag vorkommt, ist das für uns auch zu verschmerzen.
Die Durchgänge im täglichen Leben sind ja ausreichend für uns.

Der Trend geht aber auch eindeutig zu weniger hohen Hängeschränken. Diese 7 Raster sind uns einfach zu wuchtig. Also 3-4 Raster würden uns ausreichen.
 
@doppelkeks .. tini .. die Insel mit 75 cm Tiefe nur wg. Stauraum oder welche Küchenarbeiten willst du dahin ausgliedern?

Tisch .. du kennst ja meinen Tisch mit dem Ostfriesensofa .. seit mehr als 2 Jahren überlege ich für einen neuen Tisch Lösungen, die Tischbeine von den Ecken wegzubekommen, weil damit das Reinrutschen ins Sofa erschwert wird ;-). Wenn ich dann soweit bin und denke eine Art Mittelsäule oder Doppelmittelsäule wäre gut, dann strecke ich gerade meine Füße unter dem Tisch aus und stoße damit im Geiste gegen die Mittelsäule. .. Mir fehlt die in sich selbst schwebende Tischplatte :rofl::rofl:

Hochschränke zwischen den Fenstern gefallen mir nicht so richtig gut. Ich finde, sie nehmen dem Raum Licht und Großzügigkeit.
 
@KerstinB
Insel wegen Stauraum (Wobei mein Kleiner sich derzeit viel Mühe gibt, meine Geschirrvorräte zu dezimieren. Heute musste schon wieder eine Schüssel dran glauben. Also kann es sein, dass ich dann doch nicht viel Stauraum brauche, wenn der bis zum Sommer so weiter macht. :rofl:) und zb für Plätzchen backen und andere Dinge, die etwas mehr Platz brauchen (manchmal mach ich viel mit Deko bzw mein Freund und da wäre es auch gut, wenn man sich mal ordentlich ausbreiten kann). 60cm fände ich irgendwie zu schmal. 75 sind für mich okay. Mehr ist immer besser, aber dann wird’s zu eng.

Meine Mutter hat so einen Tisch mit Mittelsäule und ich finde den okay. Ich hab mich da noch nie irgendwo gestoßen. Daher möchte ich so einen auf alle Fälle.
Auf deinem Sofa kann man sicher besser rumlümmeln als auf einem Stuhl oder einer Sitzbank.
Und dann ist unser Sofa nur einen Raum weiter, für die, die sich hinfläzen wollen.

Ich finde die Hochschränke zwischen den Fenstern eigentlich ganz okay (zumindest finde ich sie nicht katastrophal). Die Fenster sind ja ziemlich groß, da hab ich wenig Bedenken, dass da zu viel Licht verloren geht.
Und die Heizungen stehen ja auch mindestens 15cm in den Raum.
 
Nach einigen Nächten drüber schlafen, favorisieren wir immer noch V6 mit der 2m Insel und den beiden Schränken zwischen den Fenstern. Mein Bruder hat auch einen Schrank zwischen zwei Fenstern und da sind die Fenster wesentlich kleiner. Und da hatte ich noch nie das Gefühl, dass das dunkel wirkt. Kommt natürlich auch daruf an, ob man helle oder dunkle Schränke dahin stellt.

Eine Frage, vielleicht kann @Nörgli da was sagen:
Ikea hat keine übertiefen Unterschränke, oder? Zumindest hab ich online nichts dazu gefunden.

Ich bin gerade am schauen, wo ich mir mal Angebote holen kann. Ikea steht ja auch im Raum, aber wenn die keine übertiefen Unterschränke für die Insel haben, ist das für mich eigentlich schon ein Ausschluss-Kriterium.

Oder ich baue die Insel aus 3 80er US, die jeweils im 90-Grad-Winkel zueinander stehen, so wie im Anhang skizziert. Da müssten wir dann mit Deckseiten usw. sicher etwas basteln, damit es gut aussieht. Aber es wäre eine Möglichkeit.

Noch eine Frage zum Geschirrspüler :
Im Grundriss eingezeichnet habe ich mal die geöffnete Klappe vom GSA. Wenn der also direkt nach der toten Ecke kommt, wäre das für euch noch vertretbar, dass er quasi die halbe Spüle blockiert?
Oder doch lieber mit dem KS tauschen und mehr Bewegungsfreiheit bei geöffneter GSA-Klappe erreichen?
 

Anhänge

  • doppelkeks_V6_3_grundriss.png
    doppelkeks_V6_3_grundriss.png
    136,2 KB · Aufrufe: 213
Ich finde das mit dem GSP so gut. Halb zur Spüle stehen reicht ja, ist ja nur für Flüssigkeiten zum Abschütten, so ist auch im Zweifelsfalle der Tropfweg günstiger. Hauptsache, du kommst noch gut an den MUPL ...
 
IKEA hat keine Übertiefe.

Küchenstudio gucken würde ich deshalb auf jeden Fall empfehlen, und dann die Insel höher machen für deinen Freund?
 
Zuletzt bearbeitet:
GSP finde ich so auch passend, sogar besser, als wenn GSP einen Schrank weiter rutscht.

Was soll denn planoben rechts in den Schrank? vielleicht den weglassen und stattdessen lieber planunten links z. B. 2x80er tiefenreduziert mit noch etwas Hängeschrank. Dann kannst du nämlich wirklich den Tisch mal noch sinnvoll verlängern .. nach meinem Dafürhalten sogar bis zu einem Meter und kommst noch herum.
 
Gut, dann kann der GSA dort bleiben.
@KerstinB
Was meinst du mit planunten links zwei 80er tiefenreduziert plus Hängeschränke? Irgendwie steh ich auf dem Schlauch.

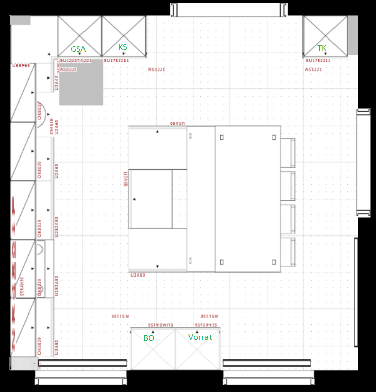
Ich hab noch mal einen Grundriss angehängt und dort die Hochschränke beschriftet. Im Uhrzeigersinn von planoben links:
- GSA hochgebaut
- KS
- TK
- Vorratsschrank
- Backofen hochgebaut und Fach für MW

Außerdem hab ich noch mal den Tisch virtuell um 1m verlängert (50cm zu beiden Seiten) und mal eingezeichnet, wie man an die Sitzplätze kommt. Für die auf der Bank wird es ggf. fummelig, aber da dürfen dann Leute sitzen, die nicht so oft aufstehen müssen.
Und zwischen TK und Tisch könnte man ggf. auch noch durchgehen. Das müsste so um die 50cm sein. Nicht üppig, aber für ein Kind z.B. allemal ausreichend.
Mein Platz bzw. der von meinem Freund wäre dann wahrscheinlich entweder am planoberen Ende des Tischs, oben links neben der Bank oder unten links neben der Bank. So können wir auch mal eben schnell noch was aus dem Koch-/Vorbereitungsbereich holen.

EDIT:
Und das ist ja nur die Bestuhlung, falls mal viele Leute da sind. Im Alltag kommen wir ja mit 2m Tisch locker hin.
 

Anhänge

  • doppelkeks_V6_3_laufwege.png
    doppelkeks_V6_3_laufwege.png
    151,8 KB · Aufrufe: 402
  • doppelkeks_V6_3_grundriss.png
    doppelkeks_V6_3_grundriss.png
    138,1 KB · Aufrufe: 399
Ach rechts. Okay, das verstehe ich.
Ja, über die Wand hab ich auch schon nachgedacht und mit meinem Freund besprochen.

Wir würden direkt in die Ecke gern die Reservestühle stapeln und an die Wand soll wahrscheinlich meine große Magnetfotowand (2m x 1,2m). Die hab ich jetzt schon im Essbereich hängen mit Familienfotos und das finden wir beide total schön.

Laut Stauraumplanung reichen uns die bisher verplanten Möbel auch gut aus.
 

Ähnliche Beiträge

Neff Hausgeräte Ballerina Küchen Blum Bewegungstechnologie Weibel - Intelligente Küchenlüftung

Neff Spezial

Blum Zonenplaner

Weibel Abluft-Tuning

Weibel Abluft-Tuning
Zurück
Oben