- Beiträge
- 1.701
- Wohnort
- Sachsen
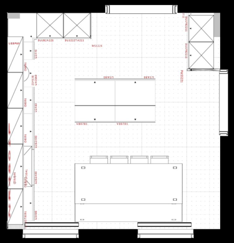
Den Tisch dauerhaft in den Flur zu stellen, kommt nicht in Frage. Für eine Feier ist das als lange Tafel mal okay. Dann wird auch entsprechend aufgeräumt und wenn viele Leute da sind, ist eh überall Trubel. Da ist es egal, wo man sitzt.
Aber täglich möchte ich nicht mitten im Durchgang sitzen. Das ist einfach nicht gemütlich.
Ich habe jetzt noch mal meine Stühle vermessen und die sind wesentlich schmaler als die im Alno -Planer, d.h. wir würden zu acht bzw. zu zehnt auch locker mit einem 2m-Tisch auskommen.
Den rücken wir dann nach planunten ans untere Ende der Insel und haben oben einen ziemlich bequemen Durchgang zwischen Tisch und KS. Für Alltag ist das, denke ich, völlig okay.
Wenn es dann doch mal mehr Leute werden und wir den Tisch auf 2,40m ausziehen, dann wird der Durchgang halt mal enger. Aber da das ja nicht immer so ist, wird das verschmerzbar sein.
Die Sitzbank kann man ja bei 2,4m lassen, damit sie weiter bündig mit der Insel ist und mit benutzt werden kann, wenn der Tisch doch mal ausgezogen wird.
Aber täglich möchte ich nicht mitten im Durchgang sitzen. Das ist einfach nicht gemütlich.
Ich habe jetzt noch mal meine Stühle vermessen und die sind wesentlich schmaler als die im Alno -Planer, d.h. wir würden zu acht bzw. zu zehnt auch locker mit einem 2m-Tisch auskommen.
Den rücken wir dann nach planunten ans untere Ende der Insel und haben oben einen ziemlich bequemen Durchgang zwischen Tisch und KS. Für Alltag ist das, denke ich, völlig okay.
Wenn es dann doch mal mehr Leute werden und wir den Tisch auf 2,40m ausziehen, dann wird der Durchgang halt mal enger. Aber da das ja nicht immer so ist, wird das verschmerzbar sein.
Die Sitzbank kann man ja bei 2,4m lassen, damit sie weiter bündig mit der Insel ist und mit benutzt werden kann, wenn der Tisch doch mal ausgezogen wird.
