doppelkeks
Premium
- Beiträge
- 1.701
- Wohnort
- Sachsen
Titel des Themas: Familienküche in Altbau für 8-10 Personen
Hallo zusammen,
ich bin Wiederholungstäter. Eigentlich habe ich meine Traumküche schon, aber aufgrund Trennung, Hausverkauf, Umzug und neuer Beziehung muss bzw. darf ich neu planen.
Wir sind eine Patchworkfamilie mit 5 - 8 Personen. 5 Personen sind wir ab Oktober dauerhaft. Die drei Kinder meines Freundes kommen dann auch regelmäßig zu uns. Dazu dann öfter noch Besuch, sodass wir im Alltag durchaus Bedarf für bis zu 10 Sitzplätze am Esstisch haben.
Da wir trotz der Größe mit dem Platz in der Wohnung gut haushalten müssen, ist eine Verlegung des Esstisches ins Wohnzimmer nicht möglich, weil dort auch noch eine Übernachtungsecke für Gäste entstehen soll.
Sollte es mal große Feierlichkeiten geben, würden wir im Flur eine große, zusätzliche Tafel stellen.
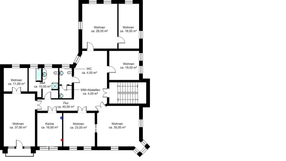
Die Wohnung ist ein sanierter Altbau mit insgesamt 250qm Wohnfläche.
Im Grundriss haben wir planunten links die Küche (16qm). Allerdings haben wir den Vermieter zu einem Raumtausch überreden können, sodass die Küche einen Raum weiter nach planrechts wandert (23qm) mit direkter Verbindung zum Wohnzimmer mit Erker.
Die Leitungen werden durch die Wand gelegt. Auch bzgl. Steckdosen auf APL-Höhe haben wir noch die Möglichkeit, etwas festzulegen. Steckdose für die Dunsthaube dürfen wir natürlich nicht vergessen.
Die Wände sind - typisch Altbau - krumm und schief. Daher wäre es sicher gut, nicht bis auf den letzten Zentimeter zu planen, um ggf. noch Spielraum zu haben.
Planoben ist der Zugang zum Flur mit einer doppelflügeligen Tür, die nach außen öffnet. Planrechts zum Wohnzimmer ist eine in der Wand laufende Schiebetür.
Die Maße sind immer bis zu den Außenseiten der Türzargen / des Fensterbretts.
Planoben links neben der Tür befindet sich ein Lichtschalter, der 22cm von der Türzarge entfernt ist. Den sollten wir, wenn möglich, nicht zustellen.
Für 8 Personen brauchen wir vor allem viel Stauraum für Geschirr und Vorräte sowie eine große Arbeitsfläche.
Bei den Geräten will ich gern wieder ein Neff -Induktionskochfeld, einen Siemens 178er Kühlschrank sowie einen 178er Gefrierschrank als integrierten Side-by-Side. Backofen reicht ein recht einfacher (Bosch , Siemens, Neff), wichtig ist mir hier nur, dass er Pyrolyse hat.
Geschirrspüler gern wieder XXL, bisher bin ich mit Siemens zufrieden, mein Freund ist aber Fan von Miele . Wenn, dann möchte ich eine Besteckschublade, keinen Korb.
GSA soll definitiv hochgebaut werden.
Bei der Dunsthaube hab ich gerade noch keine Ahnung. Eine Novy wird es wohl nicht wieder werden, obwohl ich damit sehr zufrieden bin. Aber vielleicht gehts ja etwas günstiger, da die Küche auch geschlossen werden kann, muss sie nicht flüsterleise sein. Kopffreie Wandhaube würde reichen, wir sind ja beide nicht so groß.
Beim Budget sind die 15.000 die oberste Schmerzgrenze. Eigentlich wären 10.000 Euro toll, aber allein mit den Geräten liegen wir sicher schon über 5.000 Euro (grober Überschlag anhand Möbelplus-Preisen). Daher denke ich nicht, dass wir mit 10.000 Euro sonderlich weit kommen.
Mein Freund ist IKEA nicht abgeneigt, ich traue uns auch zu, das aufgebaut zu bekommen, aber die schiefen Wände machen mir etwas Angst, ob wir das wirklich ordentlich hinbekommen. Wenn die Planung steht, gehe ich daher auf alle Fälle noch ein paar Küchenstudios abklappern. Wenn der Preis passt, sind mir meine Nerven das auf alle Fälle wert.
Mein erster Vorschlag kommt dann im nächsten Post. Da ist noch viel Optimierungsbedarf, glaube ich.
Fotos hab ich euch noch angehängt, damit ihr einen Eindruck bekommt. Momentan liegt noch Teppichboden drin, der wird aber noch durch Vinyl oder Linoleum ersetzt.
Der Raum hat als kleines Highlight beige/braun/goldenen Stuck.
Farblich sollte die Küche dezent sein, also weiße Fronten. APL gern Richtung braun (passend zum Stuck). So wirklich festgelegt sind wir da noch nicht.
Heizkörper sitzen unter den Fenstern, sind ca. genauso breit und stehen ca. 15cm vor.
Erst mal danke fürs Lesen und bis gleich.
Tini
Checkliste zur Küchenplanung
Personenkriterien und Ergonomie
Anzahl Personen im Haushalt: 8
Davon Kinder: 6
Körpergrößen aller Hauptbenutzer in cm (wegen Arbeitshöhe ): 163, 176
Welche Arbeitshöhe ist angedacht (in cm)?: 92
Gebäudekriterien
Art des Gebäudes: Bestandsbau > Umbauten ausgeschlossen
Brüstungshöhe des Fensters (in cm): 78
Fensterhöhe (in cm): 220
Raumhöhe in cm: 330
Heizung: Heizkörper wie im Grundriss
Sanitäranschlüsse: variabel an aktueller Wand
Einbaugerätekriterien
Ausführung Kühlgerät: Integriert im Hochschrank (60cm)
Einbaukühlgerät Größe: 178cm
Ausführung Tiefkühl (TK)-Gerät: Eigenständiges Gerät bis 178 cm Höhe
Dunstabzugshaube: Umluft
Hochgebauter Backofen : ja
Geplante Heißgeräte: Standmikrowelle, Backofen ,
Hochgebauter Geschirrspüler : ja
Art des Kochfeldes: Induktion
Kochfeldbreite (ca. in cm): 80
Sitzmöglichkeiten
Sitzmöglichkeit in der Küche / im Küchenbereich: Separater Tisch
Sitzmöglichkeit: Für wieviel Personen?: Für 8 Personen
Sitzmöglichkeit: Tisch - wenn gesonderter Tisch oder offene Küche: Wird nach Bedarf neu gekauft
Gewünschte oder vorhandene Tischgröße: 90x220 / 90x240
Wofür soll der Sitzplatz in der Küche genutzt werden und wie häufig: Tägliche Mahlzeiten, ggf. Hausaufgaben, Bastelarbeiten
Stauraumplanung
Was steht auf der Arbeitsplatte oder soll dort stehen?: Kaffeemaschine, Wasserkocher, Thermomix, Toaster, Brotbehälter, Obstschale
Welche weiteren Küchenmaschinen müssen in der Küche untergebracht werden: Handrührgerät, Pürierstab
Was soll in der Küche außer den Standards untergebracht werden: ALLE Vorräte, Geschirr komplett (nichts in Ess-/Wohnzimmer)
Welchen Stauraum gibt es sonst noch: Hauswirtschaftsraum
Kochgewohnheiten
Was/wie wird gekocht? (Alltagsküche, Menüs, Snacks usw): Unter der Woche eher kalte Küche, am Wochenende/im Urlaub täglich warm und auch mal "größer"
Wie häufig wird gekocht: (fast) täglich 1x warm
Wird alleine gekocht? Oder auch gemeinsam? Mit und für Gäste?: Allein/zu zweit, etwas seltener auch mal mit mehreren
Spülen und Müll
Spülenform: 1 Becken ohne Abtropffläche
Welche Mülltrennung soll in der Küche vorgehalten werden: Altpapier, Biomüll, Gelber Sack Müll, Restmüll
Sonstiges
Steht schon ein Küchenhersteller fest oder wird bevorzugt: IKEA?
Steht schon ein Gerätehersteller fest oder wird bevorzugt: Neff, Siemens, Bosch
Küchenstil: Klassisch
Was stört an der bisherigen Küche und was soll die neue Küche unbedingt können? Warum?: Familientaugliche Küche als Mittelpunkt des täglichen Lebens
Preisvorstellung (Budget): maximal 15.000 Euro
Angehängte Dateien
Hallo zusammen,
ich bin Wiederholungstäter. Eigentlich habe ich meine Traumküche schon, aber aufgrund Trennung, Hausverkauf, Umzug und neuer Beziehung muss bzw. darf ich neu planen.
Wir sind eine Patchworkfamilie mit 5 - 8 Personen. 5 Personen sind wir ab Oktober dauerhaft. Die drei Kinder meines Freundes kommen dann auch regelmäßig zu uns. Dazu dann öfter noch Besuch, sodass wir im Alltag durchaus Bedarf für bis zu 10 Sitzplätze am Esstisch haben.
Da wir trotz der Größe mit dem Platz in der Wohnung gut haushalten müssen, ist eine Verlegung des Esstisches ins Wohnzimmer nicht möglich, weil dort auch noch eine Übernachtungsecke für Gäste entstehen soll.
Sollte es mal große Feierlichkeiten geben, würden wir im Flur eine große, zusätzliche Tafel stellen.
Die Wohnung ist ein sanierter Altbau mit insgesamt 250qm Wohnfläche.
Im Grundriss haben wir planunten links die Küche (16qm). Allerdings haben wir den Vermieter zu einem Raumtausch überreden können, sodass die Küche einen Raum weiter nach planrechts wandert (23qm) mit direkter Verbindung zum Wohnzimmer mit Erker.
Die Leitungen werden durch die Wand gelegt. Auch bzgl. Steckdosen auf APL-Höhe haben wir noch die Möglichkeit, etwas festzulegen. Steckdose für die Dunsthaube dürfen wir natürlich nicht vergessen.
Die Wände sind - typisch Altbau - krumm und schief. Daher wäre es sicher gut, nicht bis auf den letzten Zentimeter zu planen, um ggf. noch Spielraum zu haben.
Planoben ist der Zugang zum Flur mit einer doppelflügeligen Tür, die nach außen öffnet. Planrechts zum Wohnzimmer ist eine in der Wand laufende Schiebetür.
Die Maße sind immer bis zu den Außenseiten der Türzargen / des Fensterbretts.
Planoben links neben der Tür befindet sich ein Lichtschalter, der 22cm von der Türzarge entfernt ist. Den sollten wir, wenn möglich, nicht zustellen.
Für 8 Personen brauchen wir vor allem viel Stauraum für Geschirr und Vorräte sowie eine große Arbeitsfläche.
Bei den Geräten will ich gern wieder ein Neff -Induktionskochfeld, einen Siemens 178er Kühlschrank sowie einen 178er Gefrierschrank als integrierten Side-by-Side. Backofen reicht ein recht einfacher (Bosch , Siemens, Neff), wichtig ist mir hier nur, dass er Pyrolyse hat.
Geschirrspüler gern wieder XXL, bisher bin ich mit Siemens zufrieden, mein Freund ist aber Fan von Miele . Wenn, dann möchte ich eine Besteckschublade, keinen Korb.
GSA soll definitiv hochgebaut werden.
Bei der Dunsthaube hab ich gerade noch keine Ahnung. Eine Novy wird es wohl nicht wieder werden, obwohl ich damit sehr zufrieden bin. Aber vielleicht gehts ja etwas günstiger, da die Küche auch geschlossen werden kann, muss sie nicht flüsterleise sein. Kopffreie Wandhaube würde reichen, wir sind ja beide nicht so groß.
Beim Budget sind die 15.000 die oberste Schmerzgrenze. Eigentlich wären 10.000 Euro toll, aber allein mit den Geräten liegen wir sicher schon über 5.000 Euro (grober Überschlag anhand Möbelplus-Preisen). Daher denke ich nicht, dass wir mit 10.000 Euro sonderlich weit kommen.
Mein Freund ist IKEA nicht abgeneigt, ich traue uns auch zu, das aufgebaut zu bekommen, aber die schiefen Wände machen mir etwas Angst, ob wir das wirklich ordentlich hinbekommen. Wenn die Planung steht, gehe ich daher auf alle Fälle noch ein paar Küchenstudios abklappern. Wenn der Preis passt, sind mir meine Nerven das auf alle Fälle wert.
Mein erster Vorschlag kommt dann im nächsten Post. Da ist noch viel Optimierungsbedarf, glaube ich.
Fotos hab ich euch noch angehängt, damit ihr einen Eindruck bekommt. Momentan liegt noch Teppichboden drin, der wird aber noch durch Vinyl oder Linoleum ersetzt.
Der Raum hat als kleines Highlight beige/braun/goldenen Stuck.
Farblich sollte die Küche dezent sein, also weiße Fronten. APL gern Richtung braun (passend zum Stuck). So wirklich festgelegt sind wir da noch nicht.
Heizkörper sitzen unter den Fenstern, sind ca. genauso breit und stehen ca. 15cm vor.
Erst mal danke fürs Lesen und bis gleich.
Tini
Checkliste zur Küchenplanung
Personenkriterien und Ergonomie
Anzahl Personen im Haushalt: 8
Davon Kinder: 6
Körpergrößen aller Hauptbenutzer in cm (wegen Arbeitshöhe ): 163, 176
Welche Arbeitshöhe ist angedacht (in cm)?: 92
Gebäudekriterien
Art des Gebäudes: Bestandsbau > Umbauten ausgeschlossen
Brüstungshöhe des Fensters (in cm): 78
Fensterhöhe (in cm): 220
Raumhöhe in cm: 330
Heizung: Heizkörper wie im Grundriss
Sanitäranschlüsse: variabel an aktueller Wand
Einbaugerätekriterien
Ausführung Kühlgerät: Integriert im Hochschrank (60cm)
Einbaukühlgerät Größe: 178cm
Ausführung Tiefkühl (TK)-Gerät: Eigenständiges Gerät bis 178 cm Höhe
Dunstabzugshaube: Umluft
Hochgebauter Backofen : ja
Geplante Heißgeräte: Standmikrowelle, Backofen ,
Hochgebauter Geschirrspüler : ja
Art des Kochfeldes: Induktion
Kochfeldbreite (ca. in cm): 80
Sitzmöglichkeiten
Sitzmöglichkeit in der Küche / im Küchenbereich: Separater Tisch
Sitzmöglichkeit: Für wieviel Personen?: Für 8 Personen
Sitzmöglichkeit: Tisch - wenn gesonderter Tisch oder offene Küche: Wird nach Bedarf neu gekauft
Gewünschte oder vorhandene Tischgröße: 90x220 / 90x240
Wofür soll der Sitzplatz in der Küche genutzt werden und wie häufig: Tägliche Mahlzeiten, ggf. Hausaufgaben, Bastelarbeiten
Stauraumplanung
Was steht auf der Arbeitsplatte oder soll dort stehen?: Kaffeemaschine, Wasserkocher, Thermomix, Toaster, Brotbehälter, Obstschale
Welche weiteren Küchenmaschinen müssen in der Küche untergebracht werden: Handrührgerät, Pürierstab
Was soll in der Küche außer den Standards untergebracht werden: ALLE Vorräte, Geschirr komplett (nichts in Ess-/Wohnzimmer)
Welchen Stauraum gibt es sonst noch: Hauswirtschaftsraum
Kochgewohnheiten
Was/wie wird gekocht? (Alltagsküche, Menüs, Snacks usw): Unter der Woche eher kalte Küche, am Wochenende/im Urlaub täglich warm und auch mal "größer"
Wie häufig wird gekocht: (fast) täglich 1x warm
Wird alleine gekocht? Oder auch gemeinsam? Mit und für Gäste?: Allein/zu zweit, etwas seltener auch mal mit mehreren
Spülen und Müll
Spülenform: 1 Becken ohne Abtropffläche
Welche Mülltrennung soll in der Küche vorgehalten werden: Altpapier, Biomüll, Gelber Sack Müll, Restmüll
Sonstiges
Steht schon ein Küchenhersteller fest oder wird bevorzugt: IKEA?
Steht schon ein Gerätehersteller fest oder wird bevorzugt: Neff, Siemens, Bosch
Küchenstil: Klassisch
Was stört an der bisherigen Küche und was soll die neue Küche unbedingt können? Warum?: Familientaugliche Küche als Mittelpunkt des täglichen Lebens
Preisvorstellung (Budget): maximal 15.000 Euro
Angehängte Dateien
Anhänge
-
IMG_0813.JPG29,6 KB · Aufrufe: 452 -
IMG_0814.JPG25,8 KB · Aufrufe: 477 -
IMG_0815.JPG26,3 KB · Aufrufe: 453 -
IMG_0816.JPG30,3 KB · Aufrufe: 407 -
IMG_0817.JPG23,5 KB · Aufrufe: 444 -
IMG_0818.JPG47,8 KB · Aufrufe: 440 -
IMG_0819.JPG63,1 KB · Aufrufe: 488 -
grundriss.png121,4 KB · Aufrufe: 538 -
IMG_0824.JPG61,8 KB · Aufrufe: 480
