fay
Mitglied
- Beiträge
- 54
Hallo!
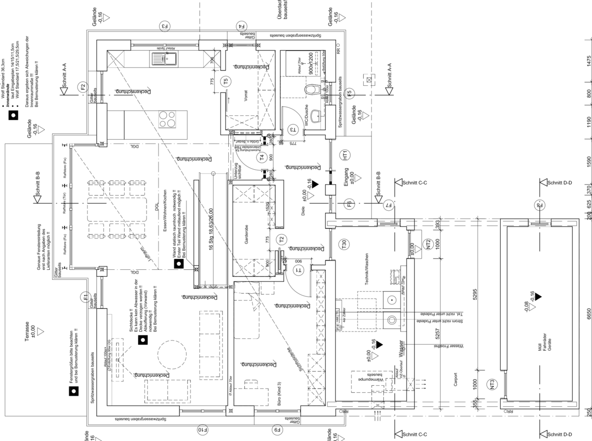
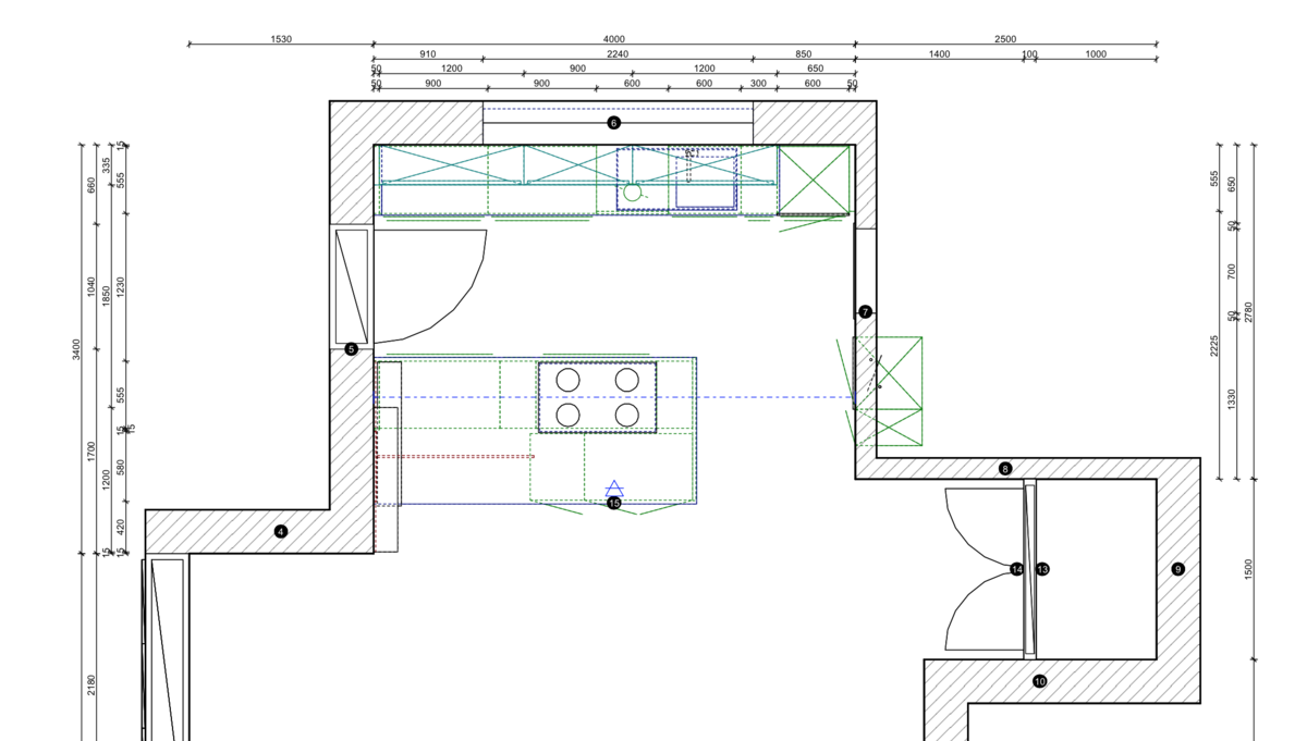
Ich hab zwar schon einen Thread bzgl. der Fronten erstellt. Aber da ich eure Hilfe hier im Forum sehr schätze, möchte ich auch unsere bisherige Komplettplanung zur Diskussion stellen. Auf den Bildern zu sehen ist noch eine Bauformat -Küche, es soll aber eine Leicht werden.
Wichtige Punkte, die nicht in der Checkliste stehen:
- Kühlschrank soll entweder als reiner Kühli mit Gefirerfach oben realisiert werden oder als eine Seite Kühl-/eine Seite Gefriergerät, falls der Platz das zulässt
- die Schiebetür zur Speis ist ggf. noch irgendwo in falscher Laufrichtung eingezeichnet
- Decke: Sichtbalkendecke in Fichte
- Boden Essen/Wohnen: Eichendielen im selben Farbton wie die Türen und die Treppe
- Fenster: grau ähnlich RAL 7015
- in die Küche sollen Fliesen, die Farbe ist noch frei wählbar
Toll wäre:
- hochgebauter Geschirrspüler und hochgebauter Backofen , der GSP ist aber wichtiger
- viiiel zusammenhängende Arbeitsfläche
- wenn die olle Kaffeemaschine meines Mannes irgendwo versteckt werden könnte
Außerdem stehen wir auf Beton. Genauer das Concrete Manhattan. Da es zum einen recht empfindlich sein soll und zum anderen nicht gerade günstig, möchten wir es gerne als Akzente einsetzen. Für schöne Vorschläge sind wir offen. Was wir nicht mögen: Hochglanz, Glas und Lack.
Am ALNO habe ich mich mehrfach fluchend versucht und bekomme nichts Vernünftiges zustande... ich hoffe, ihr seht es mir nach.
Vielen Dank schon mal für eure Anregungen!
Checkliste zur Küchenplanung
Anzahl Personen im Haushalt: 5
Davon Kinder?: 3
Art des Gebäudes?: Neu-/Umbau, Planänderungen möglich
Körpergrössen aller Hauptbenutzer (wegen Arbeitshöhe ) in cm: 172 (und 189, aber selten in der Küche am werkeln)
Brüstungshöhe des Fensters (in cm): 96
Fensterhöhe (in cm): 83
Raumhöhe in cm: 250
Heizung: Fussbodenheizung
Sanitäranschlüsse: vollkommen variabel
Ausführung Kühlgerät:
Kühlgerät Größe: noch unbekannt
Ausführung Tiefkühl (TK)-Gerät:
Dunstabzugshaube: Umluft
Backofen etc. hochgebaut?: Wenn möglich
Hochgebauter Geschirrspüler ?: Ja
Kochfeldart: Induktion
Kochfeldbreite ca. (in cm)?: 80
Spülenform: 1 Becken ohne Abtropffläche
Geplante Heißgeräte: Einbaumikrowelle, Backofen
Küchenstil: Grifflos
Sitzmöglichkeit in der Küche / im Küchenbereich: Überstehende Arbeitsplatte
Sitzmöglichkeit: Für wieviel Personen?: für 2 Personen
Sitzmöglichkeit: Tisch - wenn gesonderter Tisch oder offene Küche: Wird nach Bedarf neu gekauft
Gewünschte o. vorhandene Tischgröße:
Wofür soll der Sitzplatz in der Küche genutzt werden? Wie häufig?:
Welche Arbeitshöhe ist angedacht (in cm)?:
Was steht auf der Arbeitsplatte oder soll dort stehen?: Kaffeemaschine, Sonstiges (evtl. im Beitragstext benennen)
Welche weiteren Küchenmaschinen müssen in der Küche untergebracht werden?: Toaster, Handrührgerät, Sonstiges (evtl. im Beitragstext benennen)
Was soll in der Küche außer den Standards untergebracht werden?: Geschirr komplett (nichts in Ess-/Wohnzimmer)
Welchen Stauraum gibt es sonst noch?: Speisekammer, Hauswirtschaftsraum
Was/wie wird gekocht? (Alltagsküche, Menüs, Snacks usw): Alltagsküche
Wie häufig wird gekocht?: (fast) täglich 1x warm
Wird alleine gekocht? Oder auch gemeinsam? Mit und für Gäste?: meistens alleine
Was stört an der bisherigen Küche und was soll die neue Küche unbedingt können? Warum?: siehe Text. Am wichtigsten ist viel zusammenhängende (!) Arbeitsfläche
Welche Mülltrennung soll in der Küche vorgehalten werden?: Restmüll
Steht schon ein Küchenhersteller fest oder wird bevorzugt?: Leicht
Steht schon ein Gerätehersteller fest oder wird bevorzugt?: Bosch
Preisvorstellung (Budget): bis 25.000,-
Ich hab zwar schon einen Thread bzgl. der Fronten erstellt. Aber da ich eure Hilfe hier im Forum sehr schätze, möchte ich auch unsere bisherige Komplettplanung zur Diskussion stellen. Auf den Bildern zu sehen ist noch eine Bauformat -Küche, es soll aber eine Leicht werden.
Wichtige Punkte, die nicht in der Checkliste stehen:
- Kühlschrank soll entweder als reiner Kühli mit Gefirerfach oben realisiert werden oder als eine Seite Kühl-/eine Seite Gefriergerät, falls der Platz das zulässt
- die Schiebetür zur Speis ist ggf. noch irgendwo in falscher Laufrichtung eingezeichnet
- Decke: Sichtbalkendecke in Fichte
- Boden Essen/Wohnen: Eichendielen im selben Farbton wie die Türen und die Treppe
- Fenster: grau ähnlich RAL 7015
- in die Küche sollen Fliesen, die Farbe ist noch frei wählbar
Toll wäre:
- hochgebauter Geschirrspüler und hochgebauter Backofen , der GSP ist aber wichtiger
- viiiel zusammenhängende Arbeitsfläche
- wenn die olle Kaffeemaschine meines Mannes irgendwo versteckt werden könnte
Außerdem stehen wir auf Beton. Genauer das Concrete Manhattan. Da es zum einen recht empfindlich sein soll und zum anderen nicht gerade günstig, möchten wir es gerne als Akzente einsetzen. Für schöne Vorschläge sind wir offen. Was wir nicht mögen: Hochglanz, Glas und Lack.
Am ALNO habe ich mich mehrfach fluchend versucht und bekomme nichts Vernünftiges zustande... ich hoffe, ihr seht es mir nach.
Vielen Dank schon mal für eure Anregungen!
Checkliste zur Küchenplanung
Anzahl Personen im Haushalt: 5
Davon Kinder?: 3
Art des Gebäudes?: Neu-/Umbau, Planänderungen möglich
Körpergrössen aller Hauptbenutzer (wegen Arbeitshöhe ) in cm: 172 (und 189, aber selten in der Küche am werkeln)
Brüstungshöhe des Fensters (in cm): 96
Fensterhöhe (in cm): 83
Raumhöhe in cm: 250
Heizung: Fussbodenheizung
Sanitäranschlüsse: vollkommen variabel
Ausführung Kühlgerät:
Kühlgerät Größe: noch unbekannt
Ausführung Tiefkühl (TK)-Gerät:
Dunstabzugshaube: Umluft
Backofen etc. hochgebaut?: Wenn möglich
Hochgebauter Geschirrspüler ?: Ja
Kochfeldart: Induktion
Kochfeldbreite ca. (in cm)?: 80
Spülenform: 1 Becken ohne Abtropffläche
Geplante Heißgeräte: Einbaumikrowelle, Backofen
Küchenstil: Grifflos
Sitzmöglichkeit in der Küche / im Küchenbereich: Überstehende Arbeitsplatte
Sitzmöglichkeit: Für wieviel Personen?: für 2 Personen
Sitzmöglichkeit: Tisch - wenn gesonderter Tisch oder offene Küche: Wird nach Bedarf neu gekauft
Gewünschte o. vorhandene Tischgröße:
Wofür soll der Sitzplatz in der Küche genutzt werden? Wie häufig?:
Welche Arbeitshöhe ist angedacht (in cm)?:
Was steht auf der Arbeitsplatte oder soll dort stehen?: Kaffeemaschine, Sonstiges (evtl. im Beitragstext benennen)
Welche weiteren Küchenmaschinen müssen in der Küche untergebracht werden?: Toaster, Handrührgerät, Sonstiges (evtl. im Beitragstext benennen)
Was soll in der Küche außer den Standards untergebracht werden?: Geschirr komplett (nichts in Ess-/Wohnzimmer)
Welchen Stauraum gibt es sonst noch?: Speisekammer, Hauswirtschaftsraum
Was/wie wird gekocht? (Alltagsküche, Menüs, Snacks usw): Alltagsküche
Wie häufig wird gekocht?: (fast) täglich 1x warm
Wird alleine gekocht? Oder auch gemeinsam? Mit und für Gäste?: meistens alleine
Was stört an der bisherigen Küche und was soll die neue Küche unbedingt können? Warum?: siehe Text. Am wichtigsten ist viel zusammenhängende (!) Arbeitsfläche
Welche Mülltrennung soll in der Küche vorgehalten werden?: Restmüll
Steht schon ein Küchenhersteller fest oder wird bevorzugt?: Leicht
Steht schon ein Gerätehersteller fest oder wird bevorzugt?: Bosch
Preisvorstellung (Budget): bis 25.000,-
Anhänge
-
Bildschirmfoto 2016-08-10 um 13.13.49.png161,2 KB · Aufrufe: 564 -
Bildschirmfoto 2016-08-10 um 13.10.59.png902,3 KB · Aufrufe: 573 -
Bildschirmfoto 2016-08-10 um 13.10.36.png921,8 KB · Aufrufe: 574 -
Bildschirmfoto 2016-08-10 um 13.10.10.png163,9 KB · Aufrufe: 529 -
Bildschirmfoto 2016-08-10 um 13.06.08.png738,6 KB · Aufrufe: 550 -
Bildschirmfoto 2016-08-10 um 13.05.20.png400,9 KB · Aufrufe: 527 -
Bildschirmfoto 2016-08-10 um 13.04.52.png245,7 KB · Aufrufe: 527 -
Bildschirmfoto 2016-08-10 um 13.04.12.png303,3 KB · Aufrufe: 531
