DavidLE
Mitglied
- Beiträge
- 10
Hallo liebes Küchen-Forum,
in den letzten Wochen und Monaten war ich stiller Mitlesen und heimlicher Bewunderer.
Nach dem ich, mit einem Architektenprogramm, schonmal versucht habe unser Idee vom Haus zu visualisieren, habe ich mich auch etwas mit dem ALNO Planer auseinandergesetzt. Das sind alles noch erste Gehversuche, also nicht lachen oder schimpfen
Nun aber erstmal zum aktuellen Stand:
wir haben ein Grundstück in einem neuen Baugebiet. Die Erschließung des Ganzen erfolgt im Kommenden Jahr und Baubeginn wird Anfang 2019 sein (ggf. auch ende 2018).
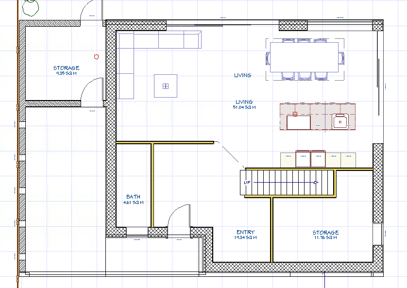
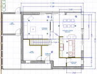
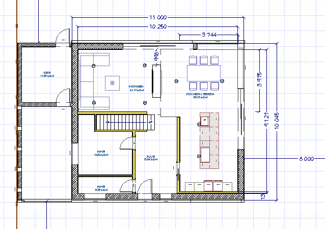
Was am Haus bis jetzt feststeht, ist das Baufenster von 11m + 3,5m Breite und 10m Tiefe für (Haus und Garage). Daher ist "mein" Grundriss auch nur eine erste Idee und noch sowas von flexibel
Das breite Teil des Hauses (11m) zum Garten hin ist Ost - OstSüdOst ausgerichtet. Der schmalere Teil (10m) demnach Süd - SüdSüdWest.
Der größere Teil des Garten befindet sich an der Fensterfront von Wohn- und Esszimmer. Der Kleinere (weil schmalere) an der Seite on Ess-zimmer und Küche. Auf dieser Seite kommt dann auch der Nachbar.
Dies hat mich auch dazu bewegt, den Grundriss aktuell so zu gestalten wie ich es getan habe. Für Hinweis bin ich, trotz des Hauptthemas Küche, dennoch dankbar.
Nun zum eigentlichen Herzstück des Forums ... der Küche.
Ich finde diese Flugzeugträger ja sowas von schick und unter umständen auch sehr praktisch, dass ich mich einmal an solch einem versucht habe.
Den MUPL habe ich auch schon versucht unterzubringen.
Den hochgebauten Geschirrspüler habe ich leider nicht einbauen können aufgrund mangelnder Also Planer Kenntnisse...gewünscht ist er auf jeden Fall.
Auch die Optik der Fronten und der APL sind eher miss- als geglückt, ich hatte mich nur einmal ausprobiert.
Hier haben wir uns noch gar keine Gedanken über die Optik gemacht.
Vielleicht könnt Ihr euch das Ganze ja einmal anschauen, loben&tadeln, optimieren oder einfach mal ein Feedback geben.
Viele Grüße
David
Checkliste zur Küchenplanung
Anzahl Personen im Haushalt: 3
Davon Kinder?: 1
Art des Gebäudes?: Neu-/Umbau, Planänderungen möglich
Körpergrössen aller Hauptbenutzer (wegen Arbeitshöhe ) in cm: 185 und 165
Brüstungshöhe des Fensters (in cm):
Fensterhöhe (in cm):
Raumhöhe in cm: 275
Heizung: Fussbodenheizung
Sanitäranschlüsse: vollkommen variabel
Ausführung Kühlgerät: Integriert im Hochschrank (60cm)
Kühlgerät Größe: bis 178 cm Höhe
Ausführung Tiefkühl (TK)-Gerät:
Dunstabzugshaube: keine
Backofen etc. hochgebaut?: Ja
Hochgebauter Geschirrspüler ?: Ja
Kochfeldart: Induktion
Kochfeldbreite ca. (in cm)?: 90
Spülenform: 1 Becken ohne Abtropffläche
Geplante Heißgeräte: Backofen , Dampfbackofen (DGC) mit Wasseranschluß
Küchenstil: Modern
Sitzmöglichkeit in der Küche / im Küchenbereich: Gesonderter Tisch
Sitzmöglichkeit: Für wieviel Personen?: für 6 Personen
Sitzmöglichkeit: Tisch - wenn gesonderter Tisch oder offene Küche: Wird nach Bedarf neu gekauft
Gewünschte o. vorhandene Tischgröße: 210 x 100
Wofür soll der Sitzplatz in der Küche genutzt werden? Wie häufig?:
Welche Arbeitshöhe ist angedacht (in cm)?:
Was steht auf der Arbeitsplatte oder soll dort stehen?: Obstschale, KVA
Welche weiteren Küchenmaschinen müssen in der Küche untergebracht werden?: Toaster, Handrührgerät, Mixer
Was soll in der Küche außer den Standards untergebracht werden?: Geschirr komplett (nichts in Ess-/Wohnzimmer)
Welchen Stauraum gibt es sonst noch?: Hauswirtschaftsraum
Was/wie wird gekocht? (Alltagsküche, Menüs, Snacks usw): Alltagsküche
Wie häufig wird gekocht?: (fast) täglich 1x warm
Wird alleine gekocht? Oder auch gemeinsam? Mit und für Gäste?: gemeinsam + tlw. Gäste wenn sie da sind
Was stört an der bisherigen Küche und was soll die neue Küche unbedingt können? Warum?:
Welche Mülltrennung soll in der Küche vorgehalten werden?: Altpapier, Biomüll, Gelber Sack Müll, Restmüll
Steht schon ein Küchenhersteller fest oder wird bevorzugt?: Nein
Steht schon ein Gerätehersteller fest oder wird bevorzugt?: Nein
Preisvorstellung (Budget): bis 20.000,-
--------------------
Im Threadverlauf hinzugekommen:
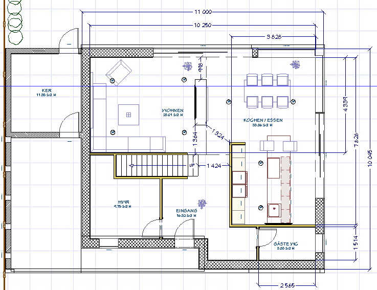
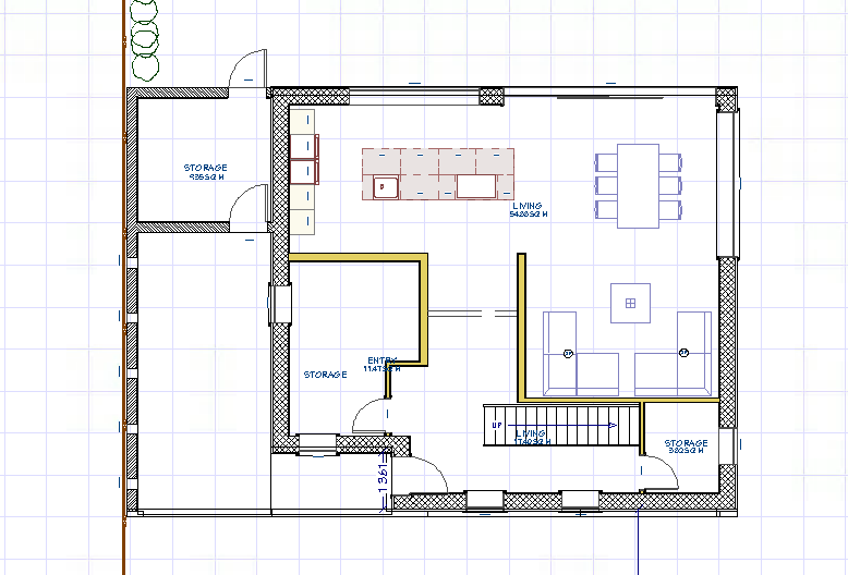
OG-Grundriss:
in den letzten Wochen und Monaten war ich stiller Mitlesen und heimlicher Bewunderer.
Nach dem ich, mit einem Architektenprogramm, schonmal versucht habe unser Idee vom Haus zu visualisieren, habe ich mich auch etwas mit dem ALNO Planer auseinandergesetzt. Das sind alles noch erste Gehversuche, also nicht lachen oder schimpfen
Nun aber erstmal zum aktuellen Stand:
wir haben ein Grundstück in einem neuen Baugebiet. Die Erschließung des Ganzen erfolgt im Kommenden Jahr und Baubeginn wird Anfang 2019 sein (ggf. auch ende 2018).
Was am Haus bis jetzt feststeht, ist das Baufenster von 11m + 3,5m Breite und 10m Tiefe für (Haus und Garage). Daher ist "mein" Grundriss auch nur eine erste Idee und noch sowas von flexibel
Das breite Teil des Hauses (11m) zum Garten hin ist Ost - OstSüdOst ausgerichtet. Der schmalere Teil (10m) demnach Süd - SüdSüdWest.
Der größere Teil des Garten befindet sich an der Fensterfront von Wohn- und Esszimmer. Der Kleinere (weil schmalere) an der Seite on Ess-zimmer und Küche. Auf dieser Seite kommt dann auch der Nachbar.
Dies hat mich auch dazu bewegt, den Grundriss aktuell so zu gestalten wie ich es getan habe. Für Hinweis bin ich, trotz des Hauptthemas Küche, dennoch dankbar.
Nun zum eigentlichen Herzstück des Forums ... der Küche.
Ich finde diese Flugzeugträger ja sowas von schick und unter umständen auch sehr praktisch, dass ich mich einmal an solch einem versucht habe.
Den MUPL habe ich auch schon versucht unterzubringen.
Den hochgebauten Geschirrspüler habe ich leider nicht einbauen können aufgrund mangelnder Also Planer Kenntnisse...gewünscht ist er auf jeden Fall.
Auch die Optik der Fronten und der APL sind eher miss- als geglückt, ich hatte mich nur einmal ausprobiert.
Hier haben wir uns noch gar keine Gedanken über die Optik gemacht.
Vielleicht könnt Ihr euch das Ganze ja einmal anschauen, loben&tadeln, optimieren oder einfach mal ein Feedback geben.
Viele Grüße
David
Checkliste zur Küchenplanung
Anzahl Personen im Haushalt: 3
Davon Kinder?: 1
Art des Gebäudes?: Neu-/Umbau, Planänderungen möglich
Körpergrössen aller Hauptbenutzer (wegen Arbeitshöhe ) in cm: 185 und 165
Brüstungshöhe des Fensters (in cm):
Fensterhöhe (in cm):
Raumhöhe in cm: 275
Heizung: Fussbodenheizung
Sanitäranschlüsse: vollkommen variabel
Ausführung Kühlgerät: Integriert im Hochschrank (60cm)
Kühlgerät Größe: bis 178 cm Höhe
Ausführung Tiefkühl (TK)-Gerät:
Dunstabzugshaube: keine
Backofen etc. hochgebaut?: Ja
Hochgebauter Geschirrspüler ?: Ja
Kochfeldart: Induktion
Kochfeldbreite ca. (in cm)?: 90
Spülenform: 1 Becken ohne Abtropffläche
Geplante Heißgeräte: Backofen , Dampfbackofen (DGC) mit Wasseranschluß
Küchenstil: Modern
Sitzmöglichkeit in der Küche / im Küchenbereich: Gesonderter Tisch
Sitzmöglichkeit: Für wieviel Personen?: für 6 Personen
Sitzmöglichkeit: Tisch - wenn gesonderter Tisch oder offene Küche: Wird nach Bedarf neu gekauft
Gewünschte o. vorhandene Tischgröße: 210 x 100
Wofür soll der Sitzplatz in der Küche genutzt werden? Wie häufig?:
Welche Arbeitshöhe ist angedacht (in cm)?:
Was steht auf der Arbeitsplatte oder soll dort stehen?: Obstschale, KVA
Welche weiteren Küchenmaschinen müssen in der Küche untergebracht werden?: Toaster, Handrührgerät, Mixer
Was soll in der Küche außer den Standards untergebracht werden?: Geschirr komplett (nichts in Ess-/Wohnzimmer)
Welchen Stauraum gibt es sonst noch?: Hauswirtschaftsraum
Was/wie wird gekocht? (Alltagsküche, Menüs, Snacks usw): Alltagsküche
Wie häufig wird gekocht?: (fast) täglich 1x warm
Wird alleine gekocht? Oder auch gemeinsam? Mit und für Gäste?: gemeinsam + tlw. Gäste wenn sie da sind
Was stört an der bisherigen Küche und was soll die neue Küche unbedingt können? Warum?:
Welche Mülltrennung soll in der Küche vorgehalten werden?: Altpapier, Biomüll, Gelber Sack Müll, Restmüll
Steht schon ein Küchenhersteller fest oder wird bevorzugt?: Nein
Steht schon ein Gerätehersteller fest oder wird bevorzugt?: Nein
Preisvorstellung (Budget): bis 20.000,-
--------------------
Im Threadverlauf hinzugekommen:
OG-Grundriss:
Anhänge
-
Ansicht 1.JPG91,3 KB · Aufrufe: 360 -
Ansicht 2.JPG84,2 KB · Aufrufe: 345 -
Ansicht 3.JPG87,7 KB · Aufrufe: 366 -
Ansicht 4.JPG89,9 KB · Aufrufe: 350 -
Bildschirmfoto 2017-08-04 um 18.54.21.png182,9 KB · Aufrufe: 349 -
Bildschirmfoto 2017-08-04 um 19.31.24.png58,5 KB · Aufrufe: 364 -
PLAN1.KPL3,9 KB · Aufrufe: 200
-
PLAN1.POS9 KB · Aufrufe: 225
Zuletzt bearbeitet von einem Moderator:
