Dana73
Mitglied
- Beiträge
- 7
Hallo in die Runde,
durch Zufall bin ich auf dieses tolle Forum gestoßen und erhoffe mir ein paar Tipps für die Umsetzung.
Situation:
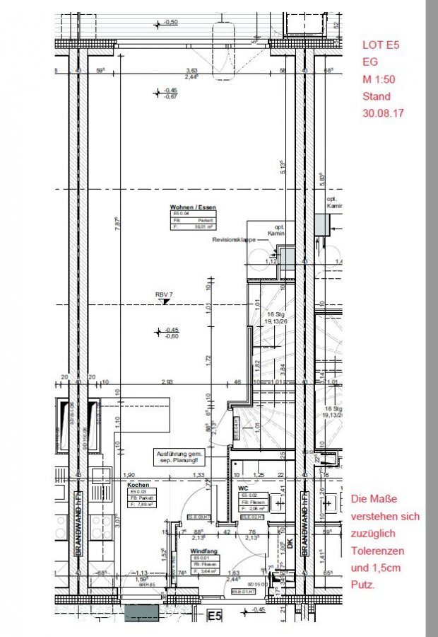
Fertigstellung Mittelreihenhaus : Frühjahr 2019
Haus ist unterkellert, von daher muss nicht alles in der Küche gelagert werden
Unser Wunsch: die Insel vorn soll bleiben, aber als Arbeitsfläche genutzt werden und nicht zum Kochen, lass mich aber gern eines besseren belehren.
Wir haben sonst gar nicht viele Ansprüche, die Küche soll einfach praktisch sein.
Das Bad muss so bleiben, aber wir überlegen die Windfangmauer wegzunehmen und erstmal offenzulassen ( wäre dann der Eingang) die eigentliche Tür weg, Mauer zu und dahinter den Kühlschrank stellen.
Vielen Dank
Checkliste zur Küchenplanung
Anzahl Personen im Haushalt: 4
Davon Kinder?: 2
Art des Gebäudes?: Neu-/Umbau, Planänderungen möglich
Körpergrössen aller Hauptbenutzer (wegen Arbeitshöhe ) in cm: 166, 185
Brüstungshöhe des Fensters (in cm): nicht sicher aber ich glaube 85
Fensterhöhe (in cm): 1.59
Raumhöhe in cm: 2,50
Heizung: Fussbodenheizung
Sanitäranschlüsse: fix
Ausführung Kühlgerät: Integriert im Hochschrank (60cm)
Kühlgerät Größe: noch unbekannt
Ausführung Tiefkühl (TK)-Gerät: Im Kühlschrank ab 3 Schubladen unten
Dunstabzugshaube: Umluft
Backofen etc. hochgebaut?: Wenn möglich
Hochgebauter Geschirrspüler ?: Nein
Kochfeldart: Induktion
Kochfeldbreite ca. (in cm)?:
Spülenform: 1 Becken mit Abtropffläche
Geplante Heißgeräte: Standmikrowelle, Backofen
Küchenstil: Modern
Sitzmöglichkeit in der Küche / im Küchenbereich: Überstehende Arbeitsplatte
Sitzmöglichkeit: Für wieviel Personen?: für 2 Personen
Sitzmöglichkeit: Tisch - wenn gesonderter Tisch oder offene Küche:
Gewünschte o. vorhandene Tischgröße:
Wofür soll der Sitzplatz in der Küche genutzt werden? Wie häufig?: schnelles Frühstück,ect.
Welche Arbeitshöhe ist angedacht (in cm)?: 93
Was steht auf der Arbeitsplatte oder soll dort stehen?: Kaffeemaschine, Wasserkocher, Toaster, Obstschale
Welche weiteren Küchenmaschinen müssen in der Küche untergebracht werden?: Toaster, Mixer
Was soll in der Küche außer den Standards untergebracht werden?:
Welchen Stauraum gibt es sonst noch?: Hauswirtschaftsraum, Keller
Was/wie wird gekocht? (Alltagsküche, Menüs, Snacks usw): Alltagsküche
Wie häufig wird gekocht?: (fast) täglich 1x warm
Wird alleine gekocht? Oder auch gemeinsam? Mit und für Gäste?: gemeinsam
Was stört an der bisherigen Küche und was soll die neue Küche unbedingt können? Warum?: viel Arbeitsfläche( zur Zeit 60cm), endlich Schubladen (zur zeit keine)
Welche Mülltrennung soll in der Küche vorgehalten werden?: Biomüll, Gelber Sack Müll, Restmüll
Steht schon ein Küchenhersteller fest oder wird bevorzugt?: nein
Steht schon ein Gerätehersteller fest oder wird bevorzugt?: nein
Preisvorstellung (Budget): bis 15.000,-
--------------------
Im Threadverlauf hinzugekommen:
Alle Bilder um Namen befreit
zusätzlich PDF-Datei auch als Bild
durch Zufall bin ich auf dieses tolle Forum gestoßen und erhoffe mir ein paar Tipps für die Umsetzung.
Situation:
Fertigstellung Mittelreihenhaus : Frühjahr 2019
Haus ist unterkellert, von daher muss nicht alles in der Küche gelagert werden
Unser Wunsch: die Insel vorn soll bleiben, aber als Arbeitsfläche genutzt werden und nicht zum Kochen, lass mich aber gern eines besseren belehren.
Wir haben sonst gar nicht viele Ansprüche, die Küche soll einfach praktisch sein.
Das Bad muss so bleiben, aber wir überlegen die Windfangmauer wegzunehmen und erstmal offenzulassen ( wäre dann der Eingang) die eigentliche Tür weg, Mauer zu und dahinter den Kühlschrank stellen.
Vielen Dank
Checkliste zur Küchenplanung
Anzahl Personen im Haushalt: 4
Davon Kinder?: 2
Art des Gebäudes?: Neu-/Umbau, Planänderungen möglich
Körpergrössen aller Hauptbenutzer (wegen Arbeitshöhe ) in cm: 166, 185
Brüstungshöhe des Fensters (in cm): nicht sicher aber ich glaube 85
Fensterhöhe (in cm): 1.59
Raumhöhe in cm: 2,50
Heizung: Fussbodenheizung
Sanitäranschlüsse: fix
Ausführung Kühlgerät: Integriert im Hochschrank (60cm)
Kühlgerät Größe: noch unbekannt
Ausführung Tiefkühl (TK)-Gerät: Im Kühlschrank ab 3 Schubladen unten
Dunstabzugshaube: Umluft
Backofen etc. hochgebaut?: Wenn möglich
Hochgebauter Geschirrspüler ?: Nein
Kochfeldart: Induktion
Kochfeldbreite ca. (in cm)?:
Spülenform: 1 Becken mit Abtropffläche
Geplante Heißgeräte: Standmikrowelle, Backofen
Küchenstil: Modern
Sitzmöglichkeit in der Küche / im Küchenbereich: Überstehende Arbeitsplatte
Sitzmöglichkeit: Für wieviel Personen?: für 2 Personen
Sitzmöglichkeit: Tisch - wenn gesonderter Tisch oder offene Küche:
Gewünschte o. vorhandene Tischgröße:
Wofür soll der Sitzplatz in der Küche genutzt werden? Wie häufig?: schnelles Frühstück,ect.
Welche Arbeitshöhe ist angedacht (in cm)?: 93
Was steht auf der Arbeitsplatte oder soll dort stehen?: Kaffeemaschine, Wasserkocher, Toaster, Obstschale
Welche weiteren Küchenmaschinen müssen in der Küche untergebracht werden?: Toaster, Mixer
Was soll in der Küche außer den Standards untergebracht werden?:
Welchen Stauraum gibt es sonst noch?: Hauswirtschaftsraum, Keller
Was/wie wird gekocht? (Alltagsküche, Menüs, Snacks usw): Alltagsküche
Wie häufig wird gekocht?: (fast) täglich 1x warm
Wird alleine gekocht? Oder auch gemeinsam? Mit und für Gäste?: gemeinsam
Was stört an der bisherigen Küche und was soll die neue Küche unbedingt können? Warum?: viel Arbeitsfläche( zur Zeit 60cm), endlich Schubladen (zur zeit keine)
Welche Mülltrennung soll in der Küche vorgehalten werden?: Biomüll, Gelber Sack Müll, Restmüll
Steht schon ein Küchenhersteller fest oder wird bevorzugt?: nein
Steht schon ein Gerätehersteller fest oder wird bevorzugt?: nein
Preisvorstellung (Budget): bis 15.000,-
--------------------
Im Threadverlauf hinzugekommen:
Alle Bilder um Namen befreit
zusätzlich PDF-Datei auch als Bild
Anhänge
-
LOT_E5_A_170830_A_GR EG.pdf169,8 KB · Aufrufe: 279
-
dana73_201711_KFPPlan3.jpg53,7 KB · Aufrufe: 410 -
dana73_201711_Gesamtgrundriss.jpg102,2 KB · Aufrufe: 393 -
dana73_201711_KFPPlan4.jpg50,6 KB · Aufrufe: 742 -
dana73_201711_KFPPlan2.jpg73,7 KB · Aufrufe: 389 -
dana73_201711_KFPPlan1.jpg80,7 KB · Aufrufe: 372
Zuletzt bearbeitet von einem Moderator:
