Sönke
Mitglied
- Beiträge
- 12
- Wohnort
- Halstenbek
Hallo,
ich bin neu hier und habe viel in diesem Forum in den letzten Tagen gelesen. Super informativ!!! Bei uns ist vor einer Woche die Idee geboren, unsere vom Vorbesitzer übernommene 34 Jahre alte Miele Küche zu ersetzen. eigentlich sollten nur die Geräte ersetzt werden (z.T. auch 34 Jahre), aber es gab keine passenden Fronten - also gleich Nägel mit Köpfen machen
Die Küche ist mit 3,43cm x 220,5cm recht klein und liegt nach nord-osten, so dass nur morgens knapp 2 Stunden Sonne gegeben ist. Daher muss sie freundlich gestaltet sein.
Wir haben jetzt drei Besuche von Küchenstudios hinter uns und ich würde gerne von Euch den Planungsstand bewerten lassen und noch Inspirationen einholen ...
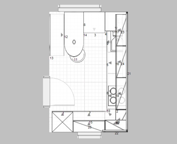
Aktuelle ÜBerlegung gemäß des Bildes Küche_1f - recht beginnend:
unten:
- Hochschrank mit Kühlschrank, darunter 3-2-1 Auszüge
- 90er Schrank 3-2-1 Auszüge
- tote Ecke (dank Euch, vorher Lemans )
- Induktionsfeld KM 6090, Backofen H5461EP
- 90er Schrank 3-1-1-1
- Spüle mit Abfallsystem, V&B Subway 60 mit Hahn und Dispenser
- tote Ecke
- Geschirrspüler G5475 SCVi XXL
- 90er Bank in mit einer Schublade
oben:
- 90er
- Eckelement
- 60 Wrasenschrank mit Neff Abzughaube
- 90er
- 60er
- 60er mit Einbau-Mikrowelle hinter der Tür
Front: Magnolie hochglänzend 5-fach lackiert und Arbeitsplatte , Tisch und Fliesenspiegel in Vesuv hell
Fehlt noch was
Weiß nicht ... bei fragen antworte ich sofort!!
Danke für Eue Meinung und Tipps!!!
Gruß
Sönke
Checkliste zur Küchenplanung von Sönke
Anzahl Personen im Haushalt : 3
Davon Kinder? : 1
Körpergrössen aller Hauptbenutzer (wegen Arbeitshöhe ) in cm : 173, 176
Art des Gebäudes? : Bestandsbau, Umbauten ausgeschlossen
Brüstungshöhe des Fensters (in cm) : 94
Fensterhöhe (in cm) : 123
Raumhöhe in cm: : 254
Heizung : Heizkörper wie im Grundriss
Sanitäranschlüsse : variabel an aktueller Wand
Ausführung Kühlgerät? : Integriert im Hochschrank (60cm)
Kühlgerät Größe : bis 88 cm Höhe
Ausführung Tiefkühl (TK)-Gerät : Nicht erforderlich bzw. steht woanders
Dunstabzugshaube? : Abluft
Hochgebauter Backofen ? : Nein
Hochgebauter Geschirrspüler ? : nein
Kochfeldart? : Induktion
Kochfeldbreite ca. (in cm)? : 60
Spülenform: : 1,5 Becken mit Abtropffläche
Weitere geplante Heißgeräte : Einbaumikrowelle
Küchenstil? : modern
Sitzmöglichkeit in der Küche / im Küchenbereich als : Gesonderter Tisch
Sitzmöglichkeit: Für wieviel Personen? : für 3 Personen
Sitzmöglichkeit: Tisch - wenn gesonderter Tisch oder offene Küche : Wird nach Bedarf neu gekauft
Gewünschte o. vorhandene Tischgröße : 95 x 70 auf einem Bein
Wofür soll der Sitzplatz in der Küche genutzt werden? Wie häufig? : immer morgens, ab und zu mittags
Welche Arbeitshöhe ist angedacht (in cm)? : 92
Was steht auf der Arbeitsplatte oder soll dort stehen? : Wasserkocher, Messerblock, Obstschale
Welche weiteren Küchenmaschinen müssen in der Küche untergebracht werden? :
Was soll in der Küche außer den Standards untergebracht werden? : Geschirr komplett (nichts in Ess-/Wohnzimmer)
Welchen Stauraum gibt es sonst noch? : Keller
Was/wie wird gekocht? (Alltagsküche, Menüs, Snacks usw) : Alltagsküche, Menüs und es wird viel gebacken
Wie häufig wird gekocht? : (fast) täglich 1x warm
Wird alleine gekocht? Oder auch gemeinsam? Mit und für Gäste? : Alleine oder zu zweit
Was stört an der bisherigen Küche und was soll die neue Küche unbedingt können? Warum? : Stauraum fehlt, zu niedrige Arbeitsplatten, niedrige Hängeschränke, nur 1 Schublade - da muss mehr her
Steht schon ein Küchenhersteller fest oder wird bevorzugt? : Steht nicht fest, aktuell Bauforum
Steht schon ein Gerätehersteller fest oder wird bevorzugt? : GSP und BO /Kochfeld möglichst Miele
Preisvorstellung (Budget) : bis 15.000,-
ich bin neu hier und habe viel in diesem Forum in den letzten Tagen gelesen. Super informativ!!! Bei uns ist vor einer Woche die Idee geboren, unsere vom Vorbesitzer übernommene 34 Jahre alte Miele Küche zu ersetzen. eigentlich sollten nur die Geräte ersetzt werden (z.T. auch 34 Jahre), aber es gab keine passenden Fronten - also gleich Nägel mit Köpfen machen
Die Küche ist mit 3,43cm x 220,5cm recht klein und liegt nach nord-osten, so dass nur morgens knapp 2 Stunden Sonne gegeben ist. Daher muss sie freundlich gestaltet sein.
Wir haben jetzt drei Besuche von Küchenstudios hinter uns und ich würde gerne von Euch den Planungsstand bewerten lassen und noch Inspirationen einholen ...
Aktuelle ÜBerlegung gemäß des Bildes Küche_1f - recht beginnend:
unten:
- Hochschrank mit Kühlschrank, darunter 3-2-1 Auszüge
- 90er Schrank 3-2-1 Auszüge
- tote Ecke (dank Euch, vorher Lemans )
- Induktionsfeld KM 6090, Backofen H5461EP
- 90er Schrank 3-1-1-1
- Spüle mit Abfallsystem, V&B Subway 60 mit Hahn und Dispenser
- tote Ecke
- Geschirrspüler G5475 SCVi XXL
- 90er Bank in mit einer Schublade
oben:
- 90er
- Eckelement
- 60 Wrasenschrank mit Neff Abzughaube
- 90er
- 60er
- 60er mit Einbau-Mikrowelle hinter der Tür
Front: Magnolie hochglänzend 5-fach lackiert und Arbeitsplatte , Tisch und Fliesenspiegel in Vesuv hell
Fehlt noch was
Danke für Eue Meinung und Tipps!!!
Gruß
Sönke
Checkliste zur Küchenplanung von Sönke
Anzahl Personen im Haushalt : 3
Davon Kinder? : 1
Körpergrössen aller Hauptbenutzer (wegen Arbeitshöhe ) in cm : 173, 176
Art des Gebäudes? : Bestandsbau, Umbauten ausgeschlossen
Brüstungshöhe des Fensters (in cm) : 94
Fensterhöhe (in cm) : 123
Raumhöhe in cm: : 254
Heizung : Heizkörper wie im Grundriss
Sanitäranschlüsse : variabel an aktueller Wand
Ausführung Kühlgerät? : Integriert im Hochschrank (60cm)
Kühlgerät Größe : bis 88 cm Höhe
Ausführung Tiefkühl (TK)-Gerät : Nicht erforderlich bzw. steht woanders
Dunstabzugshaube? : Abluft
Hochgebauter Backofen ? : Nein
Hochgebauter Geschirrspüler ? : nein
Kochfeldart? : Induktion
Kochfeldbreite ca. (in cm)? : 60
Spülenform: : 1,5 Becken mit Abtropffläche
Weitere geplante Heißgeräte : Einbaumikrowelle
Küchenstil? : modern
Sitzmöglichkeit in der Küche / im Küchenbereich als : Gesonderter Tisch
Sitzmöglichkeit: Für wieviel Personen? : für 3 Personen
Sitzmöglichkeit: Tisch - wenn gesonderter Tisch oder offene Küche : Wird nach Bedarf neu gekauft
Gewünschte o. vorhandene Tischgröße : 95 x 70 auf einem Bein
Wofür soll der Sitzplatz in der Küche genutzt werden? Wie häufig? : immer morgens, ab und zu mittags
Welche Arbeitshöhe ist angedacht (in cm)? : 92
Was steht auf der Arbeitsplatte oder soll dort stehen? : Wasserkocher, Messerblock, Obstschale
Welche weiteren Küchenmaschinen müssen in der Küche untergebracht werden? :
Was soll in der Küche außer den Standards untergebracht werden? : Geschirr komplett (nichts in Ess-/Wohnzimmer)
Welchen Stauraum gibt es sonst noch? : Keller
Was/wie wird gekocht? (Alltagsküche, Menüs, Snacks usw) : Alltagsküche, Menüs und es wird viel gebacken
Wie häufig wird gekocht? : (fast) täglich 1x warm
Wird alleine gekocht? Oder auch gemeinsam? Mit und für Gäste? : Alleine oder zu zweit
Was stört an der bisherigen Küche und was soll die neue Küche unbedingt können? Warum? : Stauraum fehlt, zu niedrige Arbeitsplatten, niedrige Hängeschränke, nur 1 Schublade - da muss mehr her
Steht schon ein Küchenhersteller fest oder wird bevorzugt? : Steht nicht fest, aktuell Bauforum
Steht schon ein Gerätehersteller fest oder wird bevorzugt? : GSP und BO /Kochfeld möglichst Miele
Preisvorstellung (Budget) : bis 15.000,-
Anhänge


