Küche für Neubau - Spülenpositionsproblem

Vulcanella

Mitglied
Beiträge
14
Hallo,
lese schon eine ganze Weile hier im Forum mit, habe schon einige wertvolle Tipps zur Küchenplanung abgestaubt und bin jetzt soweit, dass ich meinen eigenen Entwurf mit dem Alnoplaner erstellt habe.

(Eine U-Küche wurde uns im Küchenstudio auch schon geplant, das gefiel uns aber überhaupt nicht, da der Herd dann an die planobere Wand musste und die Oberschränke wild herumhingen.)

Nun habe ich noch ein Spülproblem, da hoffe ich sehr auf eure Tipps.
Also: Ich bin schlampig, d.h. eine Kochinsel oder Spülinsel kommt nicht in Frage und mein Spülbecken soll möglichst versteckt sein und NICHT unbedingt vors Fenster. Außerdem brauche ich neben der Spüle ausreichend Platz um dreckiges Geschirr zu stapeln, denn es könnte da auch mal 2 Tage stehen.....
Deshalb fand ich die Position der Spüle hinter den hohen Schränken super. Eigentlich hätte ich gerne noch einen dritten Hochschrank für Geschirr gehabt.

Folgende Varianten haben ich bzw. die Planer von 2 Küchenstudios ausprobiert - jeweils mit den Nachteilen, die ich nach dem Stöbern hier jetzt erst erkenne

1. Eckspüle - find ich doof und eine Planerin riet mir auch aus Einbautechnischen Gründen dringend davon ab.

2. dritter Hochschrank neben dem Backofenschrank (40cm) Spüle mit Becken links und Abtropfbrett in der Ecke - grenzwertig, aus optischen Gründen und weil dann die Ecke nicht mehr für Kaffeemaschine und Wasserfilter/kocher genutzt werden kann

3. neben dem Backofen /Dampfgarschrank ein dritter Hochschrank, dann die Spüle und dann gleich nach der Ecke die Spülmaschine, - wenn die Spülmaschine offen steht, kommt man nicht gleichzeitig an den Müll und die Oberschränke (in die ja nun mal das Geschirr rein muss...) und es waren links neben dem Becken nur 20 cm Platz zum GEschirrstapeln.

4. wie 3. nur dass an der planrechten Wand erst 60er Unterschrank , dann die Spülmaschine, dann noch ein Unterschrank, dann der Herd kamen - auch nicht so prickelnd, weil erstens ein recht großer Abstand vom Spülbecken zum Herd ist und außerdem ist auch hier die Klappe im WEg, wenn sie offensteht (man soll den Gsp ja nicht zwischen Herd und Spüle stellen.)

und 5. die jetzige Version - auf den dritten Hochschrank habe ich verzichtet, stattdessen den GSP links neben das Spülbecken gebaut, die Abtropffläche wechselt (leider) die Seite auf den GSP teilweise drauf.
Jetzt ergeben sich noch folgende Fragen:
- ist prinzipiell der Abstand zwischen Spüle und Kochfeld zu groß?
- ist der Abstand zwischen Backofen und Kochfeld unpraktisch?
- reicht mir wohl der Platz unterm Spülbecken jetzt noch für mein Mülltrennsystem?
Ich erwarte gespannt eure Anmerkungen!

Checkliste zur Küchenplanung

Anzahl Personen im Haushalt: 4
Davon Kinder?: 2
Art des Gebäudes?: Neu-/Umbau, Planänderungen möglich
Körpergrössen aller Hauptbenutzer (wegen Arbeitshöhe ) in cm: 172 und 175
Brüstungshöhe des Fensters (in cm): 90 cm bzw. 106,5 cm Rohbaumaß (Arbeitsplatte soll ins Fenster laufen)
Fensterhöhe (in cm): 113,5 oder 126 (wird an Haustürhöhe angepasst)
Raumhöhe in cm: 255
Heizung: Fussbodenheizung
Sanitäranschlüsse: vollkommen variabel
Ausführung Kühlgerät: Integriert im Hochschrank (60cm)
Kühlgerät Größe: bis 178 cm Höhe
Ausführung Tiefkühl (TK)-Gerät: Im Kühlschrank bis 2 Schubladen unten
Dunstabzugshaube: Umluft
Backofen etc. hochgebaut?: Ja
Hochgebauter Geschirrspüler ?: Nein
Kochfeldart: Ceran (herkömmlich)
Kochfeldbreite ca. (in cm)?: 80 cm
Spülenform: 1,5 Becken mit Abtropffläche
Geplante Heißgeräte: Dampfgarer mit Wasseranschluß, Backofen
Küchenstil: Modern
Sitzmöglichkeit in der Küche / im Küchenbereich: Überstehende Arbeitsplatte
Sitzmöglichkeit: Für wieviel Personen?: für 2 Personen
Sitzmöglichkeit: Tisch - wenn gesonderter Tisch oder offene Küche: Keiner
Gewünschte o. vorhandene Tischgröße:
Wofür soll der Sitzplatz in der Küche genutzt werden? Wie häufig?: zum Schnippeln, zum Zugucken für die Kinder, zum Backen (damit man außenherumstehen/sitzen kann), es soll kein Essplatz sein - dafür gibt es direkt nebenan einen großen Esstisch (siehe Grundriss eG)
Welche Arbeitshöhe ist angedacht (in cm)?: 92- 94 cm
Was steht auf der Arbeitsplatte oder soll dort stehen?: Kaffeemaschine, Kaffeevollautomat, Wasserkocher, Brotbehälter, Obstschale, Sonstiges (evtl. im Beitragstext benennen)
Welche weiteren Küchenmaschinen müssen in der Küche untergebracht werden?: Küchenmaschine, Toaster, Handrührgerät, Mixer, Pürierstab
Was soll in der Küche außer den Standards untergebracht werden?: Geschirr komplett (nichts in Ess-/Wohnzimmer)
Welchen Stauraum gibt es sonst noch?: Hauswirtschaftsraum, Keller
Was/wie wird gekocht? (Alltagsküche, Menüs, Snacks usw): Schnelle Gerichte für 1 Person unter der Woche, am Wochenende aufwändiger für die Familie (auch gerne mal Braten o.ä.)
Wie häufig wird gekocht?(fast) täglich 1x warm[/COLOR]
Wird alleine gekocht? Oder auch gemeinsam? Mit und für Gäste?: In der Regel alleine, MIT Gästen fast nie, FÜR Gäste auch eher selten
Was stört an der bisherigen Küche und was soll die neue Küche unbedingt können? Warum?: Zu geringe STellfläche zwischen Herd und Spüle - zu hohe, wuchtige Oberschränke (ans oberste Fach kommt man nicht hin)- zu schmale Schubladen (nur 60 und 40 cm) - zu wenig Platz für Mülltrennung
Welche Mülltrennung soll in der Küche vorgehalten werden?: Biomüll, Gelber Sack Müll, Restmüll
Steht schon ein Küchenhersteller fest oder wird bevorzugt?: evtl. Häcker oder Schmidt (auch abhängig vom Küchenstudio, steht noch nicht fest) - eigentlich aber egal
Steht schon ein Gerätehersteller fest oder wird bevorzugt?: Dampfgarer von Miele - daher wegen der Optik muss der Dampfgarer darüber auch von Miele sein, Neff Ceranfeld, Spülmaschine Siemens (schon vorhanden), Dunstesse egal
Preisvorstellung (Budget): bis 15.000,-
 
Ich möchte mich ganz herzlich für eure Mühe bedanken! Es ist wirklich toll, dass ihr so viel Zeit in uns Küchenlaien investiert!

Hoffentlich hab ich das jetzt alles richtig hochgeladen....
 

Anhänge

  • EG_pdf.pdf
    799,2 KB · Aufrufe: 354
  • Ansicht Herd und Halbinsel.JPG
    Ansicht Herd und Halbinsel.JPG
    85,9 KB · Aufrufe: 420
  • Vulca Grundriss.JPG
    Vulca Grundriss.JPG
    45,4 KB · Aufrufe: 393
  • Vulca Ansicht Spüle Backofen.JPG
    Vulca Ansicht Spüle Backofen.JPG
    93,1 KB · Aufrufe: 928
  • EG_jpg.jpg
    EG_jpg.jpg
    149,2 KB · Aufrufe: 473
Hallo Vulcanella und hezrlich willkommen im Forum.

Du hast ja schon viel Vorarbeit geleistet und die richtigen Gedanken gemacht.

Einse Sache hast du vergessen. Lade bitte noch die pos und kpl deiner Planung hoch, dass wir nicht bei Adam und Eva anfangen müssen. Es scheint im Moment so, dass alle über die Feiertage entschieden haben, sie brauchen eine neue Küche, ergo, dass Forum ist so richtig busy.

AP Höhe. Ein 6er Raster wäre bei euch möglich.

Müll unter Spüle? Für den gelben Sack ja, ansonsten gibt es den viel komfortableren MUPL für deine Mülltrennung, der neben einer Spüle sein sollte, auf der Seite, wo man arbeitet.
 
Hallo Evelin,

oh, ok, das mit dem Müll ist natürlich eine sinnvolle Überlegung - da war ich in "war immer so- Brett vorm Kopf-STellung".
Das mit den kpl und pos Dateien hab ich gestern mehrmals versucht, da kam immer "die hochgeladene Datei ist leer".
Ich versuchs noch mal und Danke schon mal für die Info.

Liebe Grüße
Vulca

Edit: Ich krieg´s nicht hin - wenn ich die Dateien hochladen will kommt immer eine Fehlermeldung
 
Zuletzt bearbeitet:
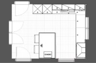
In meiner Planung hab ich schon die 3 cm Wandlänge gegenüber dem Rohbaumaß (EG-Grundriss) gekürzt, die Raumhöhe beträgt ca. 2,57 m.
Ich versuche jetzt doch mal eine Inselkochlösung und die Spüle doch mal vors Fenster (vor einen Flügel - wir wollen kein festes Fensterelement unten wenn möglich) - ich glaube, da ergeben sich einfach andere (bessere?) Möglichkeiten. Man könnte dann planoben 4 Hochschränke nebeneinander stellen, wo auch das Geschirr Platz findet und auf Hängeschränke vielleicht sogar ganz verzichten.
Ach, je mehr ich mich mit dieser Küche beschäftige, desto unsicherer werde ich, was ich eigentlich will. :(
 
Was sind die Maße der Küchenmaschine?

Hier mal, ohne die Küchenmaschine zu berücksichtigen, könnte man es auch so machen. Ich nehme an die HS Wand ist ca 360cm lang.

HS Wandvon planoben
Wange
60er Hs für Kühli
60er HS für BO/DGC
60er HS für GSP. die grüne Fläche ist die geöffnete Tür
Wange
40er US
125x65er US für Spüle und gelben Sack

danach vor dem Fenster
45er Us für MUPL
100er US
100er US mit Kochfeld linksbündig eingebaut
20er US für Öle
Blende

Du wollest breite US.

Insel 2 x 80er US mit überstehender AP.

Vulcanella1.JPG
Vulcanella3.JPG Vulcanella22.JPG
 

Anhänge

  • Vulcanella_Evelin_PLAN1.KPL
    3,9 KB · Aufrufe: 240
  • Vulcanella_Evelin_PLAN1.POS
    9,3 KB · Aufrufe: 240
ERst mal Danke für die viele Mühe!
Für 3 HS + Spülbecken ist mir das zu wenig Abstellfläche neben der Spüle - so hat mir das Küchenstudio das auch erst geplant (allerdings nicht mit dem hochgebauten Geschirrspüler an der Stelle). Links neben dem Spülbecken soll genug Platz sein für schmutziges Geschirr und in die Ecke soll eine normale Kaffeemaschine, ein Wasserkocher und ein Wasserfilterdingens. Deswegen hab ich auch den 3. HS erst mal verworfen -
vielleicht hab ich mich schon zu sehr darauf versteift, dass ich keine Kochinsel will....

Ich stell mal ein, woran ich gerade rumbastel nach deinen Vorschlägen, allerdings bin ich etwas unzufrieden mit diesem "Loch" beim Übergang zwischen HS und normaler Arbeitsplatte . Gibts da irgendwelche sinnvollen Nutzungsmöglichkeiten? Die Ecke an sich ist ja gar nicht so verkehrt für z.B. die Kaffeemaschine...

Gruß
Vulca
 
Jetzt gehts!
 

Anhänge

  • Küchenplanung Vulca3.KPL
    3,9 KB · Aufrufe: 241
  • Küchenplanung Vulca3.POS
    11,1 KB · Aufrufe: 257
  • Vulca Grundriss Hochschrankwand.JPG
    Vulca Grundriss Hochschrankwand.JPG
    33,9 KB · Aufrufe: 255
bei der #11 Variante hast kaum Platz zwischen dem Kochfeld und Spüle. Ausserdem wirst du ein Problem mit Fensterflügel und Armatur haben.

Anstelle von 3 HS, nimm nur 2, setze den GSP nach unten, dann hast du 1 m Platz links der Spüle. Dir bleibt die schöne freie Fläche zwischen Spüle und Kochfeld, 150cm. Du hast so mehr freie AP Fläche als die meisten, die hier eine Küche planen lassen.

Vulcanella21.JPG Vulcanella22.JPG
 
Mensch, zum Glück gibts dich! :-) Hier ist ja momentan echt die Hölle los! Neues Jahr, neue Küche? Scheinbar bricht die Planungswut aus! Oder hatten alle während ihrer Weihnachtsferien Zeit, sich damit zu beschäftigen.....wie auch immer, zurück zu meiner Küche:

Ja, du hast Recht - ich finde auch , dass diese Aufteilung viele Vorteile hat -
sieht auch besser aus als das Loch im Eck.

Wo hättest du jetzt den MUPL eingeplant? Zwischen Geschirrspüler und Spüle? Oder ist das zu unpraktisch, wenn man Essensreste von den Tellern kratzen muss? Aber eigentlich kann man sich ja dann auch VOR GSP und MUPL stellen, oder?
Direkt nach der Ecke unterm Fenster kann ich dann nicht mehr vor dem Becken stehen, wenn der Müll offen ist - ist vielleicht auch nicht so günstig. Allerdings wird natürlich das der Platz sein, wo ich schnippeln werde - zwischen Spüle und Kochfeld. - Oder ich schnippel auf der Halbinsel....das wird sich wahrscheinlich aber erst im Alltag zeigen.

Noch ein paar andere Planungsfragen:

1. Ich hatte gedacht, die Halbinsel mit den zwei 80er Schränken tiefer zu setzen als den Rest der Arbeitsfläche (ca. 80 cm)- einerseits, um mich nicht so eingeengt zu fühlen, wenn ich dazwischen stehe, andererseits wegen meiner Kinder und weil ich so dann auch über die ganze Fläche fassen kann, z.B. beim Teigrollen, Pizzabelegen usw.
Ich sitze auch nicht gerne auf Barhockern, evt. gehen dann sogar normale Stühle? Soll ja kein Essplatz sein, sondern eher ein Arbeitsplatz, falls ich mal im Sitzen schneiden will. Was meint ihr dazu?

2. Welche Erfahrungen habt ihr mit Spülbecken ohne Abtropffläche?

3. Welche Schubladenaufteilung bei 6er Raster ist geschickter? Lieber höhere Schubladen und auch mal was stapeln oder lieber mehr Schubladen und mehr sortieren? 1-1-2-2
Meine Küchenausstattung ist (noch) eher laienhaft, keine Bräter, nur eine kleine Küchenmaschine usw. allerdings soll sich das ja ändern, wenn ich mehr Platz habe. Ich hätte aber evtl. auch noch die Möglichkeit, Backformen und selten genutzte Utensilien im Abstellraum auf der gleichen Etage unterzubringen. Andererseits ist die Küche an sich wirklich groß genug, da sollte eigentlich auch alles reinpassen....
Auch hier wäre ich für eure Meinungen dankbar.

Liebe Grüße

Vulca
 
an sich mag ich diese Aufteilung GSP - Spüle - MUPL oder umgekehrt, wenn alles auf einer geraden Linie ist. bei dir geht's um's Eck und du wirst wahrscheinlich vor dem Fenster schneiden, ergo würde der MUPL da besser aufgehoben sein, den links der Spüle willst du auf der AP "Geschirr stapeln".

Die Insel mit 75cm tiefen US bestücken (mehr gibt's nicht) und die Theke in Tischhöhe. Das sieht gut aus, hier ein Beispiel von einer Küche in OZ (Summit), obwohl die Stühle immer noch hoch sind, aber so ähnlich könnte es aussehen. In Tischhöhe wäre es aber schon noch niedriger.

Summit display home.jpg
 
Zuletzt bearbeitet:
ich habe 4m Schubladen, 1m Besteck mit etwas Gewürz an der Seite, 1m Küchenhelfer, 1 m für Folien, Frühstücksbeutel, Waage, Schere, kleine Brettchen, Kleinkram. Und noch 1m für Eier, Geschirrhandtücher, Medikamente und Kleinkram. Nur 3m wären zu wenig.

Unter dem Kochfeld habe ich 1m US mit 3 Auszügen, 2-2-2. Oben Pfannen, Auflaufformen, Topflappen, Papierrolle, kleine Flasche Öl, Muffinformen. Darunter Töpfe (locker passen da 12 rein) darunter Backformen, Keksdosen für Weihnachtsgebäck (zB).

Meine Insel ist auf einer Seite 2 x 100er, 1-1-2-2, dh 2 Schubladen und 2 Auszüge. Erster Auszug Geschirr, darunter selten genutztes Geschirr. Im US daneben, 1. Auszug Plastikbehälter, darunter selten genutzter Kram.

Auf der Rückseite 2 x 85er, je 2-2-2. Oberster Vorräte, darunter Schüsseln und Backutensilien, darunter Kram. US daneben Plastikteile, sehr große Schüsseln, Servietten usw.

Vorräte habe ich aber auch in einem HS. Schau dir mein Album am und mache eine Stauraumplanung , nur du weisst, was verstaut werden muß.
 
mit 75cm tiefen US +35cm tiefe Theke kommst du schon sehr nah an die Tür. Ich weiss nicht, ob du Insel etwas ins Fenster ragen kann. der Abstand zur Wandzeile wäre dann 1m.

Vulca31.JPG Vulcanella23.JPG
 
Toll, dass du dir die Zeit nimmst und das immer im Planer visualisierst! Danke!

Also die überbreiten Schränke an der Insel nehmen mir zu viel Platz weg, denn ich fühle mich schnell eingeengt, wenn ich zwischen 2 Küchenzeilen stehe - deshalb soll da auch mindestens 1,20 Abstand sein - ins Fenster sollte die Insel nicht ragen. Die übertiefen Schränke werde ich deshalb wohl nicht wählen.
Deine Idee mit der tiefer angesetzten APlatte in Tischhöhe hatte ich auch schon mal überlegt, aber damit wird der Vorteil einer durchgehenden, von allen Seiten erreichbaren großen Back/Knet/Rollfläche wieder zu nichte gemacht und so gut, wie auf deinem Beispielbild sieht´s auch nicht aus. Ich hätte das gerne durchgehend. Stellt sich nun die Frage, was dann geschickter ist: Lieber die höhere Version mit entsprechend mehr STauraum in den Schränken oder die niedrigere kinderfreundlichere Variante...

Die Aufteilung mit dem MUPL nach der Ecke favorisiere ich inzwischen. Was nutzt mir der tolle MUPL, wenn obendrüber immer alles vollgestellt ist. Dann kann ich ihn auch gleich unter die Spüle machen. Jetzt mache ich mal im Planer MUPL und Spülmaschine gleichzeitig auf (was ja im Alltag sehr häufig vorkommt, wenn man Essensreste von den Tellern kratzen muss beim Einräumen) und schaue, ob das noch praktikabel ist - werde den Grundriss gleich posten.
 
das Problem mit einer niederen Insel ist, dass du gross bist und dich dann schon beugen musst. Auch wenn du für die Insel ein 5er Raster wählst, brauchst du leicht erhöhte Stühle.
 
1. Gut, ich müsste mich weiter runterbeugen, wenn ich die Arbeitsinsel nutze, aber wenn ich alleine koche, werde ich wohl eher den Platz am Fenster nehmen, und da passt ja die Arbeitshöhe . Oder ich setze mich an die Insel. Mit leicht erhöhten Stühlen kann ich leben, solange es noch als "Stuhl" zu bezeichnen ist und nicht als "Hocker".
Stehend arbeiten werde ich an der Insel hauptsächlich, wenn die Kinder mitkochen und das kommt nicht so oft vor.
Andererseits - warum ein 5er Raster nehmen, wenn man auch ein 6er haben kann?

Es führt kein Weg dran vorbei, ich muss meine Stauraumplanung noch mal hernehmen und genauer machen.

2. Wenn man rechts vom Kochfeld noch den 20er Ölschrank einfügt, wie von dir vorgeschlagen, dann könnte man eventuell ja das Kochfeld in Übertiefe ausführen.
Oder ist das auch wieder unpraktisch, wenn da so ein Vorsprung entsteht? Ich hatte noch nie übertiefe SChränke, könnte mir aber vorstellen, dass sich so mit einfachen Mitteln einiges mehr an Stauraum auftut.

3. Bis gestern wollte ich ja einen Backofen und einen Dampfgarer. Wenn man aber anfängt, in diesem Forum zu lesen, werden so einige Wünsche und Ideen umgekrempelt durch diese geballte Ladung an Infos.
Und da kann man noch so viele Händler befragen - die kennen sich zwar manchmal sogar gut aus (oder tun so:kfb:), sind aber meistens Leute, die eher selten in der Küche stehen. (Ich frage immer, was sie am liebsten zubereiten und nach dem Vorgehen, z.B. bei Milchreis. Da kommt man den "Meisterköchen" die ja "nur noch den Dampfgarer" benutzen recht schnell auf die Schliche.:cool:)
Das Fachwissen von euch Küchenfreaks ist einfach "echt" und überzeugt mich, so dass ich inzwischen überlege, ob es nicht sinnvoller ist, einen kombinierten Dampfgar-Backofen anzuschaffen. Die Resonanz ist ja eher positiv, bzw. was beim Dampfgarer oft bemängelt wird, ist die ständige recht aufwändige Reinigung. Für mich ein gravierendes Argument gegen einen reinen Dampfgarer, denn dann werde ich ihn nie benutzen.
Ich koche nicht leidenschaftlich gerne und meist eher einfach und schnell - was zum Dampfgaren möchte ich also auf jeden Fall. Aber WENN ich mal Lust habe für die Familie zu kochen, dann wird es meist deftige bayrische Küche - Schweinshaxen mit Klößen z.B. Und da braucht man natürlich ein Gerät, das ne Grillfunktion hat, denn Schweinshaxen ohne Kruste sind unvorstellbar.
Und ich brauche so viel Platz im Ofen, dass ich gleichzeitig Hähnchenschenkel und Rosmarinblechkartoffeln oder Pommes unterbringe.
Sind dann 2 Geräte doch sinnvoller oder sind die Kombigeräte auch dafür geeignet?
 
Kinder haben in aller Regel schon ab dem Alter von 3 oder 4 Jahren kein Problem die leicht erhöhten Stühle, die für das Sitzen in APL-Höhe erforderlich sind, zu nutzen. Und, deine Küche wird vermutlich 15 bis 30 Jahre aushalten, dann haben deine Kinder längst diese kurze Phase des sehr Kleinseins verlassen. Darauf würde ich also keine Küchenplanung basieren lassen.

Ich frage mich, warum man bei Verwendung einer GSP Platz für das Abstellen von dreckigem Geschirr für mehr als 2 Stunden GSP-Laufzeit bzw. mal über Nacht einkalkulieren muss ;-) .. manchmal hilft es auch, Gewohnheiten zu ändern.

Wenn du planunten rechts eh keine Möbel, APL etc. vors Fenster setzen willst, würde ich mir überlegen dieses auch als Terrassentür auszuführen. Dann muss man nicht immer um die Halbinsel rum, wenn man zum Grillen alles rausbringt.

Und, damit du mal ein Gefühl für Stauraum bekommst:
Zum Angucken, wie Stauraum genutzt werden kann:
Gerbera mit ganz vielen übertiefen Auszügen
Stauraumnutzung von doppelkeks und die Küche dazu
Küche von Moiree
Küche von KerstinB und nach dem Umzug (hier kann man gut sehen, was man alles alleine in Schubladen unterbringen kann)
Küche von Jelena
Küche von Ulla
Nekos Küche
Darlas Küche
Magnolias Küche
Vanessas Küche
Hemerocallis Küche
Littlequeenies Küche
Angelikas Küche
Küche von atmos
Küche von biggimaus
Küche von Bodybiene
Küche von Missjenny
Küche von Conny (auch übertiefe Auszüge)
Küche von träumerle
Muckelinas Küche (interessante Variante mit aufgesetzten Griffen)
Mr. Woms (Esthers) ;-) Schreinerküche
Küche von Ullmann
Küche von chrome17
 

Ähnliche Beiträge

Neff Hausgeräte Ballerina Küchen Blum Bewegungstechnologie Weibel - Intelligente Küchenlüftung

Neff Spezial

Blum Zonenplaner

Weibel Abluft-Tuning

Weibel Abluft-Tuning
Zurück
Oben