Inselküche für Neubau EFH

April2013

Mitglied
Beiträge
30
Hallo Forumsgemeinde,

für unser EFH welches 2013 gebaut wird, sind wir grad an der ersten Küchenplanung .

Wir haben uns für eine Inselküche entschieden, die Fronten sollen dunkel werden, als Arbeitsplatte eine helle Holzarbeitsplatte. Die genaue Farbzusammenstellung ist noch nicht bekannt.

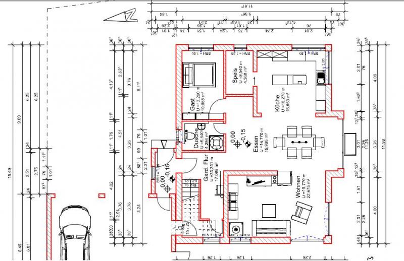
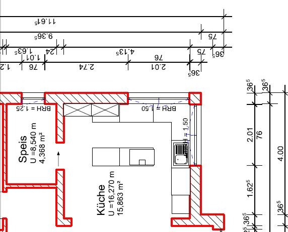
Wir werden zwei große augenhohe Fenster im Eck haben unter denen im Eck die Spüle sitzen soll.

Das bodentiefe Fenster im Plan ist die Schiebetür zur Speis. Diese wird in der Wand verlaufen.

Aktuell ist geplant, dass die Küche gemäß dem Grundriss offen bleibt, evtl aber später Schiebetüren zwischen Esszimmer und Küche eingebaut werden.



Viele Grüße




Checkliste zur Küchenplanung von April2013

Anzahl Personen im Haushalt : 3
Davon Kinder? : 1
Körpergrössen aller Hauptbenutzer (wegen Arbeitshöhe ) in cm : 1,68 und 1,80
Art des Gebäudes? : Neu-/Umbau, Planänderungen möglich
Brüstungshöhe des Fensters (in cm) : 110
Fensterhöhe (in cm) : 76
Raumhöhe in cm: : 255
Heizung : Fussbodenheizung
Sanitäranschlüsse : vollkommen variabel
Ausführung Kühlgerät? : Side by Side ca. 90cm breit
Kühlgerät Größe : bis 175 cm Höhe
Ausführung Tiefkühl (TK)-Gerät : Im Kühlschrank bis 2 Schubladen unten
Dunstabzugshaube? : Abluft
Hochgebauter Backofen ? : Ja
Hochgebauter Geschirrspüler ? : nein
Kochfeldart? : Induktion
Kochfeldbreite ca. (in cm)? : 80
Spülenform: : Eckspüle
Weitere geplante Heißgeräte :
Küchenstil? : grifflos
Sitzmöglichkeit in der Küche / im Küchenbereich als : Keine
Sitzmöglichkeit: Für wieviel Personen? : nein
Sitzmöglichkeit: Tisch - wenn gesonderter Tisch oder offene Küche : Vorhandener Tisch
Gewünschte o. vorhandene Tischgröße : 6-8 Personen
Wofür soll der Sitzplatz in der Küche genutzt werden? Wie häufig? : ---
Welche Arbeitshöhe ist angedacht (in cm)? : 86
Was steht auf der Arbeitsplatte oder soll dort stehen? : Messerblock, Obstschale
Welche weiteren Küchenmaschinen müssen in der Küche untergebracht werden? :
Was soll in der Küche außer den Standards untergebracht werden? : Geschirr komplett (nichts in Ess-/Wohnzimmer)
Welchen Stauraum gibt es sonst noch? : Speisekammer, Keller
Was/wie wird gekocht? (Alltagsküche, Menüs, Snacks usw) : Alltagsküche
Wie häufig wird gekocht? : (fast) täglich 1x warm
Wird alleine gekocht? Oder auch gemeinsam? Mit und für Gäste? : gemeinsam auch für Gäste
Was stört an der bisherigen Küche und was soll die neue Küche unbedingt können? Warum? : Alte Küche: wenig Stauraum für hohe Töpfe und Pfannen, unübersichtlich, wenig Arbeitsfläche; neue Küche: viel Stauraum, übersichtlich, viel Fläche, versenkbare Knöpfe am Backofen , integrierte Schalterleiste an der Spülmaschine, höhenverstellbare Dunstabzugshaube
Steht schon ein Küchenhersteller fest oder wird bevorzugt? : nein
Steht schon ein Gerätehersteller fest oder wird bevorzugt? : nein
Preisvorstellung (Budget) : bis 15.000,-
 

Anhänge

  • Ansicht Seite.jpg
    Ansicht Seite.jpg
    41,7 KB · Aufrufe: 326
  • Frontansicht.jpg
    Frontansicht.jpg
    48,3 KB · Aufrufe: 280
  • Grundriss.JPG
    Grundriss.JPG
    37,1 KB · Aufrufe: 399
  • grundriss Küche.jpg
    grundriss Küche.jpg
    60,5 KB · Aufrufe: 301
AW: Inselküche für Neubau EFH

würde die spüle nicht in die ecke setzen, ist total unpraktisch
vor allem wenn einer spült und einer abtrocknen will, der kommt kaum an
die spüle ran.

die lösung im grundriss ist praktischer.

zwei liegefenster, mittig gesetzt, die sich nicht berühren würden dem raum besser stehen.

grüssle hanna
 
AW: Inselküche für Neubau EFH

herzlich:welcome: hier im Küchenforum,

super, du hast dich schon in den Alno Planer eingearbeitet
:clap: Hast du auch noch die .KpL und .Pos Datei für uns, dann können wir uns deine Planung herunterladen und schon mal angucken....
und wenn du dann noch den Grundriss der Alno Planungen, (STRG Alt Save) anfügst sind wir ganz zufrieden....;-)

naja, noch nicht ganz, den Etagengrundriss solltest du uns noch gönnen, damit wir uns orientieren können und die Laufwege kennenlernen.;-)
 
AW: Inselküche für Neubau EFH

Hallo

das ging ja schnell mit den Antworten :-)

Die Spüle im Eck finden wir echt super. Da wir kaum per Hand spülen wird das nicht das große Problem werden ;-) aber evtl wird der Geschirrspüler noch eins nach links verrückt, damit man diesen besser einräumen kann...

Den Alno Grundriss hab ich ja bereits eingefügt... oder meinst du was anderes??

Hier noch die restlichen Dateien und der vollständige Grundriss vom EG ;-)
 

Anhänge

  • PLAN1.POS
    5,3 KB · Aufrufe: 211
  • PLAN1.KPL
    3,9 KB · Aufrufe: 217
  • Grundriss EG.jpg
    Grundriss EG.jpg
    71,5 KB · Aufrufe: 274
AW: Inselküche für Neubau EFH

okay, das scheint wieder der neueste Alnoplaner zu sein, den ich mir noch nicht runtergeladen habe:(
Dafür kannst du aber nix April;-)
kann nur nicht schubsen...

über die Eckspüle kann man sich streiten. Bei dieser Fenstersituation finde ich die eigentlich auch gar nicht so schlecht:kiss:

scheint mir allerdings so, dass die Eckspüle noch nicht richtig sitzt und mehr Platz benötigt, als im Plan?
Ja und die Geschirrspüle, das hast du richtig erkannt. Dort an der Stelle geht sie nicht, da sie dir beim Öffnen den Müll blockiert. Der sollte weiter außen sitzen.

An der Wand planrechts unten musst du noch eine 5 cm Blende einplanen, damit du die Auszüge auch aufbekommst
 
Ich werde heute Abend noch ein bisschen basteln... Der Müll sollte ins Eck kommen. Hab jetzt aber gar keinen Eckmüllschrank gefunden. Da ist jetzt so ein Drehschrank drin...
Das mit den Blenden Schau ich mir heute Abend nochmal an
Danke schonmal für deine Antwort :-)
 
AW: Inselküche für Neubau EFH

Hallo,
ich kann deine Planung jetzt öffnen. Werde sie mir heute nachmittag genauer anschauen.

Hab ihr bereits die optimale Arbeitshöhe ermittelt? Im Eröffnungstext steht 86 cm. Bei euerer Körpergröße sind aber mindestens 90 cm möglich. Ab dieser Höhe kann man bereits 6-Raster verwenden, was eine Stauraumebene mehr bedeutet.

ARBEITSHÖHE ermitteln
3 Methoden haben sich da etabliert:
- Ellbogen abwinkeln und von dort 15 cm runtermessen
- Höhe Beckenknochen messen
- z. B. Bügelbrett nehmen und in verschiedenen Höhen Probeschnippeln und messen, wenn es einem am bequemsten erscheint. Sich Vorbeugen, dann ist's zu niedrig, die Schultern hochziehen, dann ist's zu hoch.
Idealerweise ergeben alle 3 Methoden ca. denselben Wert​
 
Werd heut Abend gleich mit meinem Mann drüber sprechen und das mal ausprobieren... In der Arbeit hab ich grad leider keine Zeit dafür :-)
 
AW: Inselküche für Neubau EFH

Eine Planung mit 6-Raster - die Höhe wird über den Sockel angepasst.

Beginnend planoben, links:
Kühlschrank
nachfolgende HS in der Höhe angepasst
Blende
50er Vorratsschrank
60er für BO - könnte evtl. knapp werden wegen des Fensters
SpüMa
50er Auszug 3-3 evtl. mit Innenschublade
eure heißgeliebte Eckspüle
40er Auszug 3-3 für Müll unter der Arbeitsplatte
90er Auszug 1-1-2-2
90er Auszug 1-1-2-2 mit Kochfeld - so bekommt ihr keine Probleme mit Querströmungen und könnt direkt mit der Abluft nach außen
50er Auszug 1-1-2-2

Insel - reine Vorbereitungsinsel:
2 x 80 er Auszug 1-1-2-2 in 75 cm Tiefe
gegengestellt:
2 x tiefenreduzierte Schränke mit Drehtür oder p2o
 

Anhänge

  • April_Mela.KPL
    3,9 KB · Aufrufe: 215
  • April_Mela.POS
    8 KB · Aufrufe: 207
  • April_Mela_Draufsicht.jpg
    April_Mela_Draufsicht.jpg
    56,1 KB · Aufrufe: 232
  • April_Mela_Grundriss.JPG
    April_Mela_Grundriss.JPG
    45,2 KB · Aufrufe: 224
  • April_Mela_Herd.jpg
    April_Mela_Herd.jpg
    54,6 KB · Aufrufe: 237
  • April_Mela_Insel.jpg
    April_Mela_Insel.jpg
    50,8 KB · Aufrufe: 230
  • April_Mela_Inselrück.jpg
    April_Mela_Inselrück.jpg
    48,9 KB · Aufrufe: 231
  • April_Mela_SpüMa.jpg
    April_Mela_SpüMa.jpg
    51,7 KB · Aufrufe: 227
Hallo Mela
Danke für den Plan aber es soll vom Grund her so bleiben wie ich es mal geplant habe. Also Induktion auf der Insel, Backofen und Nebenschrank mit ner Höhe von 150 und rechts ins Eck.
Spüle im Eck unterm Fenster!!
Danke trotzdem
 
AW: Inselküche für Neubau EFH

Also ich finde ja Melas Planung schon sinnvoller. Und so eine große Vorbereitungsinsel ist echt was feines. Stell dir vor du baust dort ein Buffett auf und die Leute können schön drum herum laufen.
Außerdem kostet eine "vernünftige" höhenverstellbare Insel-DAH einen schönen Batzen Geld.

LG
Sabine
 
Die Insel soll ja gar nicht höhenverstellbar sein oder was meinst du???
Nee wir wollten immer schon eine Insel mit Kochfläche, da bringen uns keine Zehn Pferde davon ab :-)
 
AW: Inselküche für Neubau EFH

Nicht die Insel höhenverstellbar, sondern eine gescheite höhenverstellbare Insel-Dunstabzugshaube (DAH habt ihr doch geschrieben) kostet ganz schön was. Es sei denn euch reicht eine laute, uneffektive Kochstellenbeleuchtung.

Ich bin ja nicht generell gegen Kochinseln, aber manchmal machen sie keinen Sinn.
Nur mal so zum Nachdenken:
1. Wenn ich das bei euch richtig sehe wird es für eure DAH schon schwer werden wegen der Querströmung.
2. Bei einer 1,50m Insel wo schon 80 cm für das Kochfeld abgehen bleiben rechts und links mal gerade 35cm Abstellfläche. Simulier das mal in deiner jetzigen Küche, oder auf einem Tisch wie wenig 35 cm sind.
3. Wie lange stehst du wirklich am Kochfeld wenn du kochst? Also ich sehr wenig, denn die meiste Zeit bin ich mit schnippeln und vorbereiten beschäftigt und dazu wäre mir definitiv zu wenig Platz neben dem Kochfeld. Es sei denn du arbeitest mit dem Rücken zum Esszimmer.

Bitte denkt mal richtig darüber nach bevor ihr gleich wieder "ich will aber..." sagt.

LG
Sabine
 
Sorry hab die Abkürzung überlesen :-) am Handy passiert sowas schnell mal.
Höhenverstellbare DAH ist mit einkalkuliert!!! Also ich kenn das kochen mit Insel und auch das kochen mit wenig Platz neben dem Kochfeld und ich Schnippel dann lieber nicht daneben.. Ist mir zu heiß auf Dauer :-)
Also wir haben uns das beide durch den Kopf gehen lassen und ich denke mal die Küche ist groß genug...
Das hat auch nichts mit ich will unbedingt haben zu tun, sondern es ist das was wir uns wünschen und wenn es bisschen mehr kostet dann ist es halt so...
 
AW: Inselküche für Neubau EFH

Wenn Du aber Induktionsfeld nimmst, soll es doch nebenan ausserhalb des Kochtopfs auf dem Feld nicht heiss werden? Dann soll es doch mit dem Schnibbeln neben dem Indukfeld auch noch klappen?

Ich habe auch eine Kochinsel bei mir geplant. Habe auch meine Gruende dafuer. Ein wichtiger dabei ist, ich mag trotz der Vorteile eine Spueleninsel einfach nicht. Mir persoenlich sieht es einladener aus, wenn auf der Insel, die nach vorne zum Ess-Wohnbereich schaut, nichts dreckiges wie Restessen von Tellern in die Spuele eingespuellt wird. Und ich plane meine Insel als quasi Buffettisch zu benutzen. Da nimmt mir eine Unterbrechung durch Spuele den Abstellplatz weg. Dabei habe ich mir beide Loesungen selbst angeschaut, auf einer Insel gekocht und auf einer anderen gespuelt. Aber das ist alles mein persoenlicher Geschmack.

Je doch habe ich fuer die Vorbereitungsarbeit, die mehr Zeit einnimmt als das Kochen auf dem Kochfeld, Flexibilitaet eingeplant, dass ich genug Platz links und rechts neben jeweils Spuele auf der Spuelenzeile und Kochfeld auf meiner Kochinsel habe. Ich kann bei mir auf der Spuelenzeile waschen, umdrehen und Sachen auf der Kochinsel neben dem Kochfeld abstellen und weiter verarbeiten. Oder ich arbeite auf der Spuelenzeile. Aber so ist meine Kueche geplant.

Wenn Du sicher bist, was Du moechtest, dann versuche es. Und dann muessen andere Teile entsprechend geplant werden, dass Du mit Deiner Kochgewoehnheit zurecht kommst.

Viel Erfolg mit der neuen Keuche!
H-C
 
AW: Inselküche für Neubau EFH

April,
warum hast du deine Planung eingestellt?

Edit: gegen ein Kochen auf der Insel spricht bei dir, dass nur 35 cm rechts und links des Kochfeldes hast und keine gescheite Vorberitungsfläche. Du musst für alles Laufen. Außerdem musst du beim Inselkochen eine sehr gute DA nehmen, wegen der Querströmungen zumal deine Küche eine offene ist.
 
Zuletzt bearbeitet:
AW: Inselküche für Neubau EFH

Also ich habe gerade Eierpfannkuchen gemacht und mal versucht rechts und links vom Feld mich auf nur 35 cm zu beschränken. Ich find es total unpraktisch.
Ich hatte auf meinem Feld 2 Pfannen (bei 4 Personen wäre ich mit 1 Pfanne jetzt noch nicht fertig), links die Schüssel mit dem Teig, rechts der Teller wo die fertigen Pfannkuchen drauf kommen und keinen Platz den Pfannenwender abzulegen.

Und sorry, aber nach 8 Minuten schon ne Antwort auf meinen Beitrag ist für mich nicht "in Ruhe drüber nachdenken". Als es um meine Küche ging hab ich auch schon mal eine Nacht drüber geschlafen um mir das was hier angemerkt wurde auch durch den Kopf gehen zu lassen.

Aber es ist eure Küche und ihr müßt damit zurecht kommen. Nur hinterher nicht ankommen und sagen das euch keiner gewarnt hat. ;-)

LG
Sabine
 
Ich hab ja nicht 8 Minuten drüber nachgedacht sondern wir haben schon längere zeit darüber nachgedacht, bevor ich mich hier überhaupt angemeldet habe.
Ich werde das heute Abend mal meinem Mann vorstellen und schauen was er sagt.
Und ich sagte ja bereits dass ich schon mit wenig arbeitsfläche gelebt habe. Meine erste eigene Küche hatte 50 cm arbeitsfläche insgesamt... Und ich kam damit gut zurecht... Und jetzt Koch ich für drei und Brauch auch nicht mehr neben dem Kochfeld...
 
AW: Inselküche für Neubau EFH

Meine neue Küche hatte auch nur 90 Arbeitsfläche -- ich kochte Buffets für 40 Leute. Aber deswegen will ich das doch nicht so in meiner neuen Küche planen. :rolleyes: Man kauf sich doch auch keinen Porsche mit 40 PS und argumentiert, dass der neue Fiat damit auch gut vorwärts gekommen ist.

Was sind die Gründe, dass ihr das schon immer gewollt habt? Wo erwartet ihr die Vorteile? Arbeitstechnisch ist es ein Nachteil und chic wäre ja auch anders, daher wäre es sicher für weitere Vorschläge hilfreich, was die Erwartungen an ein solche Konstruktion sind.

Meine Schneidunterlagen passen gar nicht auf 35 cm, die sind alle größer ...
 

Ähnliche Beiträge

Neff Hausgeräte Ballerina Küchen Blum Bewegungstechnologie Weibel - Intelligente Küchenlüftung

Neff Spezial

Blum Zonenplaner

Weibel Abluft-Tuning

Weibel Abluft-Tuning
Zurück
Oben