40 Jahre Eicheküche was nun?

Gregorius

Liebe Forumteilnehmer und Spezalisten!

Unsere neue Küche hat ihren Zweck erfüllt und nun soll es eine Neue werden.

Der Raum ist nicht groß und darin liegt das Problem.

Da wir uns gerne in der Küche aufhalten und auch z.Zt. ein Tisch für drei Personen vorhanden ist, sollen auch bei der Neuplanung Sitzplätze für drei Personen integriert werden.

Zu berücksichtigen ist auch die Tatsache, das wir gerade Rentner geworden sind,
und somit auch die praktischen Aspekte sehr wichtig sind.

Der heutige Besuch bei einem Küchenplaner hat folgendes Ergebnis gebracht:

- Von der Tür aus auf der rechten Seite
60 cm Verkleidung vom Kamin Ca. 20 cm tief, daneben
60 Kühlschrank m Gefrier
60 2 Schubf. Backofen in Sichhöhe u. Dampfgarer
70 Ausziehschrank (3 Ausz.)
Abschluß Eckkarusell somit die linke Seite verplant

Nach dem Eckkarusell an der Fensterseite
60 cm Abfall-Fach
60 Geschirrspüler
70 Ausziehschrank
Abschluß Eckkarusell rechte Seite erl

Nach dem Eckkarusell anschließen rechte Seite
20 cm Flaschenschrank
100 Ausziehschrank unter dem Kochfeld

Übriger Platz für Tisch u Bank an der Wand.

Leider habe ich keinen Plan mitbekommen und die Aufteilung mir nur gemerkt.

Gibt es Anmerkungen, bzw. wir brauchen Hilfe.


Checkliste zur Küchenplanung von Gregorius

Anzahl Personen im Haushalt : 3
Davon Kinder? :
Körpergrössen aller Hauptbenutzer (wegen Arbeitshöhe ) in cm : 200, 196, 176
Art des Gebäudes? : Bestandsbau, (kleinere) Umbauten möglich
Brüstungshöhe des Fensters (in cm) : 92
Fensterhöhe (in cm) : 148
Raumhöhe in cm: : 250
Heizung : Fussbodenheizung
Sanitäranschlüsse : vollkommen variabel
Ausführung Kühlgerät? : Integriert im Hochschrank
Kühlgerät Größe : bis 140 cm Höhe
Ausführung Tiefkühl (TK)-Gerät : Im Kühlschrank ab 3 Schubladen unten
Dunstabzugshaube? : Abluft
Hochgebauter Backofen ? : Ja
Hochgebauter Geschirrspüler ? : ja
Kochfeldart? : Induktion
Kochfeldbreite ca. (in cm)? : 80
Spülenform: : 1,5 Becken mit Abtropffläche
Weitere geplante Heißgeräte : Dampfgarer ohne Wasseranschluß
Küchenstil? : modern
Sitzmöglichkeit in der Küche / im Küchenbereich als : Überstehende Arbeitsplatte
Sitzmöglichkeit: Für wieviel Personen? : für 3 Personen
Sitzmöglichkeit: Tisch - wenn gesonderter Tisch oder offene Küche : Keine
Gewünschte o. vorhandene Tischgröße : 80 x 120 in geschl Küche
Wofür soll der Sitzplatz in der Küche genutzt werden? Wie häufig? : zum tägl. Essen
Welche Arbeitshöhe ist angedacht (in cm)? : 94
Was steht auf der Arbeitsplatte oder soll dort stehen? : Kaffeemaschine, Wasserkocher, Messerblock
Welche weiteren Küchenmaschinen müssen in der Küche untergebracht werden? : Küchenmaschine, Toaster, Handrührgerät, Mixer, Pürierstab
Was soll in der Küche außer den Standards untergebracht werden? : ALLE Vorräte, Geschirr komplett (nichts in Ess-/Wohnzimmer)
Welchen Stauraum gibt es sonst noch? : Hauswirtschaftsraum, Keller
Was/wie wird gekocht? (Alltagsküche, Menüs, Snacks usw) : Alltagsküche
Wie häufig wird gekocht? : (fast) täglich 1x warm
Wird alleine gekocht? Oder auch gemeinsam? Mit und für Gäste? : gemeinsam, ohne Gäste
Was stört an der bisherigen Küche und was soll die neue Küche unbedingt können? Warum? : Altengerecht,
Tischgröße ca 80 x 120
Preisvorstellung (Budget) : bis 20.000,-
 

Anhänge

  • kf_gregorius_20110219_Kuechengrundriss.jpg
    kf_gregorius_20110219_Kuechengrundriss.jpg
    31,5 KB · Aufrufe: 223
Zuletzt bearbeitet von einem Moderator:
AW: 40 Jahre Eicheküche was nun?

Hallo Gregorius,
ich nehme an, du hast gelesen Was wir benötigen , dann sei doch bitte so gut und hänge einen vermaßten Küchengrundriss und eine Skizze der Planung vom Küchenstudio an. Das können auch Zeichnungen mit der Hand auf Papier sein, die du einscannst oder mit der Digicam abfotografierst. Sinnvoll wäre auch ein Grundriss des gesamten Geschosses.

So kann man zu dem Plan gar nichts sagen, weil man ja noch nicht einmal den Raum kennt.

EDIT:
Kannst du denn sagen, welcher Küchenhersteller euch angeboten wurde? Ich werde nämlich stutzig bei 70 cm breiten Unterschränken.
 
AW: 40 Jahre Eicheküche was nun?

Mal zum Lesen:
--> Tote Ecken gute Ecken wegen der 2x Eckkarrussells. Ihr wollt es doch bequem haben und bequem sind Auszüge, weil man da alles von oben entnehmen kann.

Empfehlen würde ich euch wenn möglich eine hochgebaute GSP.

20 cm Flaschenunterschrank ist eine ziemliche Platzverschwendung. Was soll da untergebracht werden?

Da ihr alles in der Küche unterbringen wollt, muss das Ziel sein, möglichst breite Auszugsunterschränke (80 bis 100 cm) in ausreichender Zahl zu haben. Und für Vorräte evtl. ein 40 bis 60 cm breiter Schrank mit Innenauszügen.

Mal sehen, ob es mit den Grundrissen über Email klappt.
 
AW: 40 Jahre Eicheküche was nun?

Hallo Gregorious,

willkommen im richtigen Unterforum!

Hast du die Möglichkeit, einen Grundriss mit allen Maßen hier hochzuladen ? ZB: handzeichnen, abfotografieren, im PC speichern und mit Hilfe dieses Zeichens oben
insertimage.png
einfügen?

Welchen Hersteller habt ihr angeboten bekommen? Denn 70cm breite Unterschränke gehören nicht zum Standardprogramm der "normalen" Hersteller.

Habt ihr schon euer gewünschtes Frontmaterial ausgesucht?
 
AW: 40 Jahre Eicheküche was nun?

Kerstin *patsch* ;D
 
AW: 40 Jahre Eicheküche was nun?

Beim Durchsuchen der Datei habe ich noch Bilder von der jetzigen Küche gefunden.

Zu der Frage des Küchenherstellers: Zeyko

Die Front evtl. helles beige.

Die Küchenzeichnung folgt gleich.
 

Anhänge

  • Küche 004.jpg
    Küche 004.jpg
    35,4 KB · Aufrufe: 218
  • Küche 002.jpg
    Küche 002.jpg
    33,3 KB · Aufrufe: 222
  • Küche 001.jpg
    Küche 001.jpg
    36,5 KB · Aufrufe: 227
  • Küche 005.jpg
    Küche 005.jpg
    33,7 KB · Aufrufe: 216
  • Küche 003.jpg
    Küche 003.jpg
    38 KB · Aufrufe: 216
AW: 40 Jahre Eicheküche was nun?

Hier noch die Planungsidee vom heutigen Küchenstudio !

Der Vorschlag war rechts und links Eckkarrusell oder 2x 70. Auszüge!:stocksauer:
 
AW: 40 Jahre Eicheküche was nun?

Hallo Gregorius,
der heutige Plan hängt nicht an. Auch nicht in deiner zweiten Email. Den Küchengrundriss habe ich oben im ersten Beitrag angehängt.

Bin dann wieder weg.
 
AW: 40 Jahre Eicheküche was nun?

Bitte hänge noch einen Grundriss vom Geschoss, damit wir uns ein besseres Bild machen können ;-);-)
 
AW: 40 Jahre Eicheküche was nun?

Ich denke, Geschoss wird schwierig.
@Gregorius, ganz unsinnig wäre es aber nicht. Wäre denn z. B. eine Schiebetür von außen möglich? Denn die Tür stört doch ganz schön.

Gregorius hat mir jetzt die Skizze von der Planung aus dem Küchenstudio gesandt.

Ich hänge mal an.
 

Anhänge

  • kf_gregorius_20110219_KuechenplanungStudio.jpg
    kf_gregorius_20110219_KuechenplanungStudio.jpg
    39,8 KB · Aufrufe: 196
AW: 40 Jahre Eicheküche was nun?

Eine Schiebetür von außen ist leider nicht möglich, aber evtl. von innen-
Richtung geplanter Bank.
 
AW: 40 Jahre Eicheküche was nun?

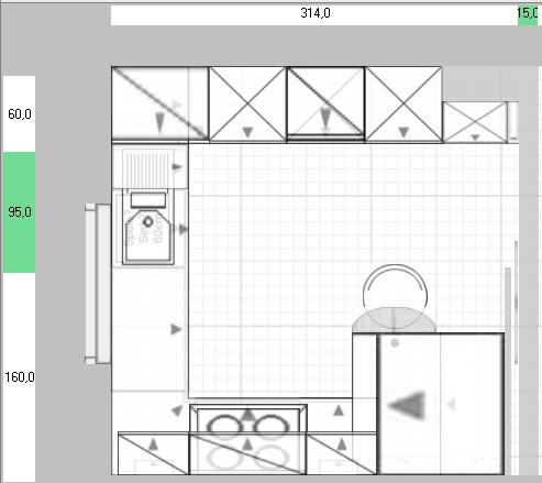
Jetzt mal den Plan mit Schiebetür.

Außerdem in der Hochschrankwand zwischen Kühlschrank und BO/DG-Schrank noch eine hochgebaute GSP integriert.

Die Hochschrankzeile endet mit einem offenen Element unter der APL, das noch die an sich notwendige Eckblende ausnutzt. Hier kann man einen ausziehbaren Handtuchhalter einbauen und außerdem die Backbleche, die man gerade nicht benötigt, senkrecht einstellen.

Tote Ecke, dann vielleicht einen 30er Auszugsunterschrank, in dem oben auch Müllbehälter sein können. Z. B. Biomüll.
Spülenschrank und dann noch ein 95er Auszugsunterschrank. Wenn 70er möglich sind bei Zeyko , dann sollten auch 95 cm möglich sein.

Wieder eine tote Ecke, dann einen 80er Auszugsunterschrank fürs Kochfeld und zum Abschluß noch einen 60er. Dieser wird leicht von der in Arbeitshöhe angesetzten Arbeitsfläche überlappt. Da muss man mal gucken, ob die Stauraumplanung das verträgt.

Unter Tisch und Bank ein kleines Podest, damit wird die Banksitzhöhe zur normalen Sitzhöhe. Die Bank als Truhe ausgebildet ergibt auch nochmal Stauraum. Dazu ein Stuhl für erhöhte Arbeitsplatten , so wie ihn z. B. Menorca in ihrer Küche hat.
full


Beispielsweise bei Amazon
 

Anhänge

  • kf_gregorius_20110219_Var1_Grundriss.jpg
    kf_gregorius_20110219_Var1_Grundriss.jpg
    75,3 KB · Aufrufe: 201
  • kf_gregorius_20110219_Var1_Ansicht3.jpg
    kf_gregorius_20110219_Var1_Ansicht3.jpg
    115,4 KB · Aufrufe: 220
  • kf_gregorius_20110219_Var1.KPL
    4,1 KB · Aufrufe: 192
  • kf_gregorius_20110219_Var1_Ansicht4.jpg
    kf_gregorius_20110219_Var1_Ansicht4.jpg
    108,8 KB · Aufrufe: 207
  • kf_gregorius_20110219_Var1_Ansicht2.jpg
    kf_gregorius_20110219_Var1_Ansicht2.jpg
    87,9 KB · Aufrufe: 199
  • kf_gregorius_20110219_Var1.POS
    8,1 KB · Aufrufe: 200
  • kf_gregorius_20110219_Var1_Ansicht5.jpg
    kf_gregorius_20110219_Var1_Ansicht5.jpg
    138,3 KB · Aufrufe: 205
  • kf_gregorius_20110219_Var1_Ansicht1.jpg
    kf_gregorius_20110219_Var1_Ansicht1.jpg
    75,9 KB · Aufrufe: 194

Ähnliche Beiträge

Neff Hausgeräte Ballerina Küchen Blum Bewegungstechnologie Weibel - Intelligente Küchenlüftung

Neff Spezial

Blum Zonenplaner

Weibel Abluft-Tuning

Weibel Abluft-Tuning
Zurück
Oben