Wohnküche mit Insel sucht Optimierungspotenzial ;-)

francois

Mitglied
Beiträge
16
Hallo Zusammen,
wir ziehen voraussichtlich im März in unser neues Reich (Neubau). :-)

Seit ca. 4 Wochen planen wir unsere neue Wohnküche im offenen Wohn/Essbereich. Wir würden euch gerne um ein Feedback bitten.

Ursprünglich wollten wir eigentlich keine Hängeschränke, da wir die Küche so optisch schöner finden. Aufgrund des Stauraums und der Praktikabilität haben wir jetzt doch mit zwei Hängeschränken geplant. Sehr ihr hierzu noch Alternativen?

Den freistehenden Kühlschrank hätten wir gerne in die Wand eingelassen. Aber ich glaube das wäre, wenn überhaupt noch möglich, nur mit hohen Kosten verbunden. Wir bauen ein Fertighaus und die Werksplanung ist bereits abgeschlossen. Aber fragen könnten wir mal. Was haltet ihr davon?

Der Überstand der Granitplatte an der Insel soll ca. 35 cm betragen. Ich habe das mit dem Alno -Planer nicht 100% hin bekommen.

Wir waren bisher in zwei Küchenstudios und haben uns ein Angebot für unsere Küche machen lassen. Wir haben ein Angebot für eine Bauformat Küche (EUR 15,000) und Alno (EUR 16,000). Allerdings noch ohne die Hängeschränke und ohne das Kühl-Gefrier-Gerät. Preislich hatten wir eher mit ca. EUR 2.000-3.000 weniger gerechnet.

Wir freuen uns über Anregungen und Tipps von euch Profis.

Viele Grüße
francois




Checkliste zur Küchenplanung von francois

Anzahl Personen im Haushalt : 4
Davon Kinder? : 2
Körpergrössen aller Hauptbenutzer (wegen Arbeitshöhe ) in cm : 180/190
Art des Gebäudes? : Neu-/Umbau, Planänderungen nicht möglich
Brüstungshöhe des Fensters (in cm) : 96
Fensterhöhe (in cm) : 125
Raumhöhe in cm: : 250
Heizung : Fussbodenheizung
Sanitäranschlüsse : fix
Ausführung Kühlgerät? : Stand-Alone bis 60 cm Breite
Kühlgerät Größe : noch unbekannt
Ausführung Tiefkühl (TK)-Gerät : Im Kühlschrank ab 3 Schubladen unten
Dunstabzugshaube? : Umluft
Hochgebauter Backofen ? : Ja
Hochgebauter Geschirrspüler ? : nein
Kochfeldart? : Induktion
Kochfeldbreite ca. (in cm)? : 80
Spülenform: : 1 Becken mit Abtropffläche
Weitere geplante Heißgeräte :
Küchenstil? : modern
Sitzmöglichkeit in der Küche / im Küchenbereich als : Überstehende Arbeitsplatte
Sitzmöglichkeit: Für wieviel Personen? : für 2 Personen
Sitzmöglichkeit: Tisch - wenn gesonderter Tisch oder offene Küche : Keine
Gewünschte o. vorhandene Tischgröße : k.a.
Wofür soll der Sitzplatz in der Küche genutzt werden? Wie häufig? : Sitzmöglichkeit an der Insel beim Kochen
Welche Arbeitshöhe ist angedacht (in cm)? : 96
Was steht auf der Arbeitsplatte oder soll dort stehen? : Kaffeevollautomat, Wasserkocher, Toaster, Obstschale
Welche weiteren Küchenmaschinen müssen in der Küche untergebracht werden? : Küchenmaschine, Handrührgerät, Mixer, Pürierstab, Eierkocher
Was soll in der Küche außer den Standards untergebracht werden? : ALLE Vorräte
Welchen Stauraum gibt es sonst noch? : Geschirr/Gläserschrank im Wohn-/Esszimmer, Hauswirtschaftsraum
Was/wie wird gekocht? (Alltagsküche, Menüs, Snacks usw) : Alltagsküche
Wie häufig wird gekocht? : (fast) täglich 1x warm
Wird alleine gekocht? Oder auch gemeinsam? Mit und für Gäste? : zu zweit oder zu viert mit den kindern
Was stört an der bisherigen Küche und was soll die neue Küche unbedingt können? Warum? : - flächenbündiges Kochfeld
- Unterbauspüle
- Arbeitsplatte aus Granit Nero Assoluto mit Rillenfräsung
- genügend Stauraum
- Tiefe der Arbeitsplatte 70 cm
Steht schon ein Küchenhersteller fest oder wird bevorzugt? : nein
Steht schon ein Gerätehersteller fest oder wird bevorzugt? : Siemens
Preisvorstellung (Budget) : bis 15.000,-
 

Anhänge

  • Küche Grundriss.pdf
    220,2 KB · Aufrufe: 298
  • PLAN1.POS
    6,5 KB · Aufrufe: 171
  • PLAN1.KPL
    4,1 KB · Aufrufe: 177
  • Küche seite.jpg
    Küche seite.jpg
    24,6 KB · Aufrufe: 228
  • Küche vorne.jpg
    Küche vorne.jpg
    37,6 KB · Aufrufe: 228
  • Alno Grundriss.JPG
    Alno Grundriss.JPG
    30,7 KB · Aufrufe: 202
Zuletzt bearbeitet:
AW: Wohnküche mit Insel sucht Optimierungspotenzial ;-)

:welcome:

hier im Küchenforum.

Schöne Thread-Eröffnung und in den Alno -Planer habt ihr euch auch bereits eingearbeitet. :2daumenhoch:

Der Wasseranschluss befindet sich in der Mitte des Fenster, wenn ich den Grundriss richtig interpretiere.

Existiert der Stand Alone bereits oder ist es bisher nur ein Wunsch?
 
AW: Wohnküche mit Insel sucht Optimierungspotenzial ;-)

Hallo francois,

fast alles dabei :2daumenhoch:, und ziemlich verzerrfreie Alnoansichten :top:!
Einzig: hängst du bitte noch einen Alnogrundriss mit an, dass man die Abstände besser beurteilen kann? Im Planungsmodus mit strg+neu+s abspeichern.

Ihr seid sehr groß, aber ob der BO so nicht doch zu hoch hängt? Die oberste Schiene sollte nicht über Schulterhöhe sein. Ich weiß, für manche Feinheiten wie diese ist der Alnoplaner nicht geeignet, aber nur, dass ihr es Im Kopf habt und im Küchengeschäft nachprüfen könnt.
 
AW: Wohnküche mit Insel sucht Optimierungspotenzial ;-)

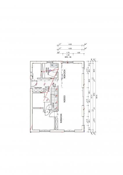
Leider stimmt die Ausrichtung des Grundrisses mit dem Alno nicht überein.

Ich habe einmal den Grundriss gedreht, damit alles die gleiche Ausrichtung hat.
Sonst spreche ich vielleicht von planrechts und meinst planunten.

Auch kann mit den Maßen etwas nicht stimmen.

Wenn ich addiere: 69,9 + 175 + 185 = 429,9

bzw.: 69,9 - 17,7 + 175 + 185 - 34,5 = 377,7

Kannst du das bitte klären. Ich gehe jedoch davon aus, dass die untere Zahl 377,7 die korrekte ist, da die Maße für die Wände doch abgezogen werden müssen.
 

Anhänge

  • Grundriss gedreht.jpg
    Grundriss gedreht.jpg
    17,3 KB · Aufrufe: 201
  • Grundriss gedreht.pdf
    222,2 KB · Aufrufe: 292
AW: Wohnküche mit Insel sucht Optimierungspotenzial ;-)

Vielen Dank für die Antworten!


@Mela: Ja der Wasseranschluss liegt mittig zum Fenster.
Den Stand-Alone gibt es noch nicht.
Die Ausrichtung des Haus-Grundrisses ist so korrekt wie Du es
angepasst hat. Der Raum ist 4m breit. Das Fenster hat von links
74,5cm Abstand und von rechts 150,5 cm Abstand.

@19menorca: Ich habe den Alno Grundriss hinzugefügt. Die Höhe
der Hängeschränke müsste man in der Tat prüfen. Kann das
Programm die Höhen anzeigen?

@Tara: stimmt die Spülmaschine wird häufiger gefüllt als der
Backofen , aber die Spülmaschine dürfen auch gerne mal die Kinder
ausräumen vom Backofen sollen die lieber die Finger lassen ;-)
 
AW: Wohnküche mit Insel sucht Optimierungspotenzial ;-)

Die Spülmaschine hängt doch nicht auf 2 Meter und Kinder wachsen ganz schön schnell (sprech da aus Erfahrung). ;-)

Die noch nicht ganz 2-jährige Tochter meiner Freundin kann bequem den unteren Korb der hoch eingebauten Spülmaschine ausräumen. Und an den oberen kommt sie auch ran, aber da fehlen noch ein paar cm bis das auch bequem geht.

LG
Sabine
 
AW: Wohnküche mit Insel sucht Optimierungspotenzial ;-)

Du kannst bei jedem Gegenstand die Dimensionen und die Position im Raum sehen (und ändern) wenn du ihn anklickst und die F4 -Taste drückst.
Der z-Wert zeigt bei Hängeschränken die Position über dem Boden an, oder zB die Fensterunterkante, die standardmäßig auf 110cm eingestellt ist und bei sehr vielen Grundrissen angepasst werden muss.

Zwischenhöhen, wie zB die Unterkante deines Backofens muss man sich errechnen, oder du stellst dir zB ein Stück Wand direkt danebn und erhöhst das in der 3D Ansicht so weit, dass es mit der von dir gewünschten Linie übereinstimmt, dann weißt du die Höhe. Danach die Wand wieder entfernen ;-).
 
AW: Wohnküche mit Insel sucht Optimierungspotenzial ;-)

:-)....naja, soo hoch wird eine hochgestellte Spülmaschine nicht, dass nicht auch schon kleine Kinder zunächst unten rausräumen können.

Außerdem wachsen die ja schnell und wie lange habt ihr die Küche?
Da sind die Kids dann längst schon wieder ausgezogen und ihr hab immer noch die Spülmaschine unten;-)

Und dass die Kleinen nicht an den Backofen gehen, bekommt man schnell hin;-)

Is ja nur eine Überlegung, entscheiden müsst eh ihr;-)
 
AW: Wohnküche mit Insel sucht Optimierungspotenzial ;-)

Den Kühlschrank in den Hauswirtschaftsraum (in die Wand ...) zu bauen, finde ich eine gute Idee. Habe ich so auch schon gesehen. Man kann ihn dann auch ggf. auf einem Podest anbringen, um die Bedienung noch zu erleichtern. Allerdings sollte man auf ein Standardmaß achten, sonst schränkt man im Falle eines Falles die Auswahl des Nachfolgemodells erheblich ein bzw. muss umbauen.
 
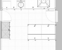
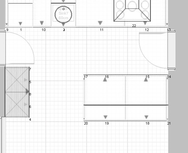
AW: Wohnküche mit Insel sucht Optimierungspotenzial ;-)

Nur ganz kurz, ich muss nämlich jetzt weg, die Bilder.

Die HS an dieser Wand sind sehr knapp zwischen Tür und Durchbruch, müsste genau ausgemessen werden.
Es wäre auch eine hochgesetzte SpüMa möglich.
 

Anhänge

  • Francois_Mela.KPL
    4,1 KB · Aufrufe: 173
  • Francois_Mela.POS
    8,9 KB · Aufrufe: 184
  • Francois_Mela_Arbeitszeile.jpg
    Francois_Mela_Arbeitszeile.jpg
    46 KB · Aufrufe: 206
  • Francois_Mela_Draufsicht.jpg
    Francois_Mela_Draufsicht.jpg
    44 KB · Aufrufe: 183
  • Francois_Mela_Grundriss.JPG
    Francois_Mela_Grundriss.JPG
    48,1 KB · Aufrufe: 183
  • Francois_Mela_HS.jpg
    Francois_Mela_HS.jpg
    37,5 KB · Aufrufe: 177
  • Francois_Mela_Insel.jpg
    Francois_Mela_Insel.jpg
    32,4 KB · Aufrufe: 183
AW: Wohnküche mit Insel sucht Optimierungspotenzial ;-)

So jetzt habe ich Zeit dir die Planung zu erklären.
Ich habe noch einmal kurz umgeplant, da ich den Wunsch nach dem Sitzplatz überlesen hatte.

Den Stand Alone habe ich einmal weggelassen, da ich eigentlich finde, dass die planobere Wand ohne Hoch- und Oberschränke besser aussieht.

Den endgültigen Platzbedarf ergibt eine Stauraumplanung . Einfach auf das Wort klicken.

Beginnend planlinks, Schränke 175,5 hoch - können jedoch bei Bedarf auch höher werden:
2,5 cm Wange
BO - leider mit Mikrowellenfach - es gibt keinen anderen im Alno
Einbaukühlschrank
2,5 cm Wange
Ich hoffe, dass der Abstand zwischen Tür HWR und Eingang ausreichend ist - konnte ich nicht genau entziffern
Gerne hätte ich die Insel auf diese Seite gesetzt, allerdings wäre sie dann schmaler geworden.

planoben, links beginnend:
5 cm Blende
hochgesetzte SpüMa
2,5 cm Wange
45er US im Raster 3-3 für Müll unter der Arbeitsplatte und untendrunter für Höheres
60er Spüle
120er Auszug 1-1-2-2
100 Auszug 1-1-2-2
Kochfeld im Verhältnis 1:2 aufgesetzt
7 cm Blende

Insel:
5 cm Blende
2 x 100 US 1-1-2-2
2,5 cm Wange

gegengestellt:
5 cm Blende
80er tiefenreduzierter Schrank mit Türen
125 cm überstehende Arbeitsplatte für Sitzplätze

Wie die Arbeitszeile ohne hochgesetzte SpüMa aussieht, kannst du an den Bildern in #11 erkennen.
 

Anhänge

  • Francois_Mela2.KPL
    4,1 KB · Aufrufe: 184
  • Francois_Mela2.POS
    10,6 KB · Aufrufe: 171
  • Francois_Mela2_Grundriss.JPG
    Francois_Mela2_Grundriss.JPG
    27,9 KB · Aufrufe: 174
  • Francois_Mela2_Sitzplatz.jpg
    Francois_Mela2_Sitzplatz.jpg
    39 KB · Aufrufe: 180
AW: Wohnküche mit Insel sucht Optimierungspotenzial ;-)

Ich bin ja eigentlich ein Fan von Stand-Alones, muss aber sagen, hier in der Küche halte ich ihn auch eher für optisch störend, da mittendrin eine Tür ist. Das gibt keine Einheit und keine schönen Übergänge. Ich finde aber sowieso, sie gehören eher in die etwas unkonventioneller geplanten Küchen, wie meine ;- )

PS: Mela, ich würde den Hochschrank so planen, dass er in einheitlicher Höhe zu Fenster und Tür ist (aber ich sehe auch gerade, hast Du auch geschrieben). Optisch fände ich es ruhiger.
 
AW: Wohnküche mit Insel sucht Optimierungspotenzial ;-)

@Mela: Vielen Dank für die Mühe!

Die Lösung planlinks mit den Schränken ist interessant, ist in
der Ausführung aber nicht machbar, da es ist zu breit wird
weil dort die Lichtschalter platziert werden. Ich denke wir
haben maximal 90cm Stellfläche.

Bei der Insel war uns wichtig, dass sich dort das Kochfeld befindet,
damit man während dem Kochen mit den Gästen oder Familien reden
kann und sie dabei auch sieht, also muss das Kochfeld in der Insel
bleiben.

Tabetha hat irgendwo recht, dass es unruhig wirkt wenn planlinks
was steht. Egal ob Standalone oder Küchenschränke. Vielleicht
sollten wir darauf verzichten?

Uns ging es hauptsächlich darum einen großen Kühlschrank zu haben
so wie der hier:
Siemens-Hausgeräte Deutschland - Produktsuche - Kühlen und Gefrieren - Kühl- Gefrier-Kombinationen - Standgeräte - KG39EAI40

Gerätemaße ( H x B x T): 201,0 cm x 60,0 cm x 65,0 cm

Ich weiß nicht ob es sowas als Einbaulösung gibt.

Außerdem wollten wir dadurch Stauraum gewinnen.

Ich werde mal die Stauraumplanung durchführen.
 
AW: Wohnküche mit Insel sucht Optimierungspotenzial ;-)

Francois beobachte dich doch mal selber beim kochen. Wie lange stehst du wirklich am Herd und rührst in Pfanne oder Topf? Also ich sehr wenig. Hauptsächlich bin ich am vorbereiten, schnippeln ect.
Gerade mit Kindern gibt es nichts schöneres als eine große Arbeitsinsel wo man Plätzchenteig ausrollen kann und von allen Seiten ran kommt, wenn Gäste da sind das Buffet dort aufbauen kann ect.
Ich habe letztens auf meinem Tisch in APL-Höhe über 60 Cupcakes stehen gehabt und sie zusammen mit meiner jüngsten Tochter verziert. Ich stand auf der einen Seite, sie mir gegenüber. Und mein Mann hatte noch Platz von der Schmalseite zu naschen. ;-)

LG
Sabine
 
AW: Wohnküche mit Insel sucht Optimierungspotenzial ;-)

Um den Herd herum sieht es doch (es sei denn, mein Mann kocht) immer am unaufgeräumtesten aus. Dann spritzt auch mal etwas - das fände ich an einer Insel nicht so gemütlich. Anfangs wurden deutlich mehr Herde in Inseln verbaut, ich denke man hat gemerkt, dass das nicht so praktisch ist.
 
AW: Wohnküche mit Insel sucht Optimierungspotenzial ;-)

Tabetha, widersprichst du dir gerade selbst?
Bei deiner Küche argumentierst du ganz anders...und ich wollte dich grad zitieren:w00t:
 
AW: Wohnküche mit Insel sucht Optimierungspotenzial ;-)

Echt, da ist der Herd doch auch nicht in der Insel. Hatte ich ursprünglich mal als Übergangslösung geplant. Zitier mal, damit ich meinen Widerspruch ausräumen kann ;- )
 
AW: Wohnküche mit Insel sucht Optimierungspotenzial ;-)

Moin allerseits,

wegen den Hochschränken an der planlinken Wand und deinen Bedenken wegen der Lichtschalter:
Man könnte den Hochschrankblock auch ca. 15cm nach vorne ziehen, die Seiten mit Wangen verkleiden und die Schalter seitlich in den Schrank einlassen. Ich hab das bei mir an einer Stelle auch so und das ist auch sehr praktisch.

Hier auf den Bild kannst du das sehen, ganz links.
hochschraenke02.jpg

Vielleicht wäre das auch für euch eine Lösung.
 
AW: Wohnküche mit Insel sucht Optimierungspotenzial ;-)

Zitat Tabetha: Das schließt doch eine Kochinsel ein?
Ansonsten würde man hier die ganze Zeit vor der Wand schnippeln und Kochen.
Ich glaube nicht, dass man ohne Wasser sich zum Schnippeln an die Insel verzieht.
Das hauptsächliche Arbeiten würde an der Küchenzeile vor der Wand ablaufen.

Warum eine Insel?

a. Ich koche gerade in einer Inselküche, nichts finde ich traumhafter. Vor allen Dingen, wenn man zu zweit kocht. Jeder findet seinen Platz, man kann sich gut zuarbeiten, von jeder Ecke aus ... Man kann Dinge stehenlassen, ohne dass sie gleich wieder im Weg sind.
b. Eine Insel war immer mein Küchentraum.
c. Ich empfinde dieses Stehen mit Blickrichtung Wand und Rücken zu den Räumen als "falsch", das passt nicht für mich. Deswegen auch die Abneigung gegen Küchenoberschränke, das empfinde ich als Stehen vor der Wand mit Brett vorm Kopf.
Ich bin keine Feng-Shui-Vertreterin, halte die Regeln aber letztendlich für nachvollziehbar, die aus der Natur des Menschen und seinem damaligen Umfeld entstanden. An einer Küchenzeile arbeiten heißt, die Tür im Rücken zu haben. Etwas, was dem menschlichen Unterbewusstsein nicht liegt. Ich überblicke beim Arbeiten gerne den ganzen Raum.
d. So wie geplant, können Gäste z. B. gut am Esstisch sitzen und mit dem palavern, der in der Küche herumschnippelt. Das gefällt mir.
e. Ich schaue lieber auf eine Insel, als auf eine Küchenzeile. Mir sind Zeilen zu langweilig. Optisch wirkt eine Insel auf mich harmonisch, eine Zeile an die Wand geklatscht (ich empfinde auch die übliche Tiefe von 60 cm als eng, da fehlt mir Großzügigkeit). Ich habe am Anfang auch mit Zeilen geplant, war aber nicht glücklich damit. Deswegen dauerte die ganze Planung auch so lange.
 

Ähnliche Beiträge

Neff Hausgeräte Ballerina Küchen Blum Bewegungstechnologie Weibel - Intelligente Küchenlüftung

Neff Spezial

Blum Zonenplaner

Weibel Abluft-Tuning

Weibel Abluft-Tuning
Zurück
Oben