Wohnküche mit Insel in Neubau

marlou

Mitglied
Beiträge
16
Hallo,
wir planen gerade unseren Neubau und sind aktuell in der Werksplanung.
Ich habe schon einen sehr schönen Entwurf für die Küchenplanung und würde gerne ein Feedback von euch einholen.
grin.gif

Bin mir bei den Geräten noch nicht klar welche es werden sollen und von welchem Hersteller. Die APL soll bei der Insel wahrscheinlich eine Granitplatte werden (Nero Assoluto poliert), bei der Spülenzeile eine Schichtstoff APL.
Unser Küchenplaner hat uns eine "Pinta" LEICHT Küche in der Farbe Firn (weiß) empfohlen.
Haben noch ein weiteres Angebot für eine Contur Küche mit glänzender Lack-Front.
Die LEICHT Küche ist wohl qualitativ hochwertiger in der Verarbeitung aber nicht in der Front (Melaminharzbeschichtung).
Die Höhe der Hochschränke soll bis 220 cm hoch sein. Das restliche Stück bis zur Decke soll verkoffert werden.
Über der Spüle sollen noch Hallogenspots in die Verkofferung angebracht werden.
Bei dem SBS bin ich noch auf der Suche inach einem besonders leisen Gerät.
Die Spülmaschine soll neben der Spüle im ersten rechten Hochschrank hoch eingebaut werden.

Ich freue mich über Tipps und Anregungen!;-)

LG
marlou


Checkliste zur Küchenplanung von marlou

Anzahl Personen im Haushalt : 4
Davon Kinder? : 2
Körpergrössen aller Hauptbenutzer (wegen Arbeitshöhe ) in cm : 170 und 190
Art des Gebäudes? : Neu-/Umbau, Planänderungen möglich
Brüstungshöhe des Fensters (in cm) : 140
Fensterhöhe (in cm) : 70
Raumhöhe in cm: : 260
Heizung : Fussbodenheizung
Sanitäranschlüsse : vollkommen variabel
Ausführung Kühlgerät? : Side by Side
Kühlgerät Größe : bis 175 cm Höhe
Ausführung Tiefkühl (TK)-Gerät : Nicht erforderlich bzw. steht woanders
Dunstabzugshaube? : Abluft
Hochgebauter Backofen ? : Ja
Hochgebauter Geschirrspüler ? : ja
Kochfeldart? : Induktion
Kochfeldbreite ca. (in cm)? : 80 oder 90
Spülenform: : Noch nicht festgelegt
Weitere geplante Heißgeräte : Standmikrowelle, Dampfgarer mit Wasseranschluß
Küchenstil? : modern
Sitzmöglichkeit in der Küche / im Küchenbereich als : Überstehende Arbeitsplatte
Sitzmöglichkeit: Für wieviel Personen? : für 6 Personen
Sitzmöglichkeit: Tisch - wenn gesonderter Tisch oder offene Küche : Wird nach Bedarf neu gekauft
Gewünschte o. vorhandene Tischgröße : 200
Wofür soll der Sitzplatz in der Küche genutzt werden? Wie häufig? : Sitzplatz an Theke für 2 bis 3 Personen und
ein extra Tisch für 6 bis 8 Personen.
Welche Arbeitshöhe ist angedacht (in cm)? : 95
Was steht auf der Arbeitsplatte oder soll dort stehen? : Kaffeemaschine, Messerblock, Brotbehälter, Obstschale
Welche weiteren Küchenmaschinen müssen in der Küche untergebracht werden? : Küchenmaschine, Toaster, Schneidemaschine (z. B. in Schublade), Handrührgerät, Pürierstab
Was soll in der Küche außer den Standards untergebracht werden? : Geschirr komplett (nichts in Ess-/Wohnzimmer)
Welchen Stauraum gibt es sonst noch? : Speisekammer
Was/wie wird gekocht? (Alltagsküche, Menüs, Snacks usw) : Alltagsküche
Wie häufig wird gekocht? : (fast) täglich 1x warm
Wird alleine gekocht? Oder auch gemeinsam? Mit und für Gäste? : Meist alleine am WE öfter gemeinsam und für Gäste
Was stört an der bisherigen Küche und was soll die neue Küche unbedingt können? Warum? : Freu mich über endlich mehr Arbeitsfläche zum Vorbereiten.
Preisvorstellung (Budget) : bis 15.000,-
 

Anhänge

  • Planung.jpg
    Planung.jpg
    45,6 KB · Aufrufe: 254
  • Grungriss EG.jpg
    Grungriss EG.jpg
    66,3 KB · Aufrufe: 277
  • Planung2.jpg
    Planung2.jpg
    34,7 KB · Aufrufe: 231
  • Planung3.jpg
    Planung3.jpg
    37,4 KB · Aufrufe: 234
  • AnderePlanung.jpg
    AnderePlanung.jpg
    45 KB · Aufrufe: 222
  • planer.KPL
    4,1 KB · Aufrufe: 191
  • planer.POS
    12,7 KB · Aufrufe: 174
Zuletzt bearbeitet:
AW: Wohnküche mit Insel in Neubau

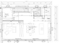
Hallöle, und erst Mal herzlich :welcome: hier.

Schöne Threaderöffnung, leider kann ich die Zahlen nicht entziffern.
Bitte einen vermaßten Grundriss der Küche für die , die den Alnoplaner nicht benutzen,
und mal schaun ob Du den Wohnungsgrundriss nicht bisserl größer hinbekommst.

Ansonsten viel Spass hier und viel Input wünscht
Samy
 
AW: Wohnküche mit Insel in Neubau

Ich fürchte, da ist dir der Kellergrundriss in den Anhang gerutscht ;-).

Grundsätzlich gefällt mir die Planung, zumindest, was man davon sieht. (Unterschrankaufteilung kann man halt nicht erkennen)

Hochgebaute GSP rechts von der Spüle, da ist doch aber ein Schrank mit Backofen oder Dampfgarer. Soll die GSP dadrunter? Dann ist sie aber nicht hochgebaut.

Im Text lese ich noch Standmikrowelle, wo soll die hin?

Wie breit sollen die Schränke rechts und links des SbS sein? Hier fände ich es vermutlich schöner, wenn der SbS dort alleine steht. Was soll in den Schränken untergebracht werden?

Beim SbS bemängele ich wie immer :kiss::kiss: die "falsche" Öffnungsrichtung des Kühlteils im Verhältnis zur Küchenaufteilung.

Evtl. könnte dir ja so etwas wie der kqd1250xa gefallen.
kqd1250xopen.jpg

Der hat einen automatischen Eiswürfelbereiter im TK-Fach (Wasseranschluß erforderlich) und hier kommt einem die Breite auch mal praktischerweise entgegen und man kann sie im Kühlbereich nutzen.

Das Budget erscheint mir relativ knapp, wenn alle Geräte und der Granit dort enthalten sein sollen.
 
AW: Wohnküche mit Insel in Neubau

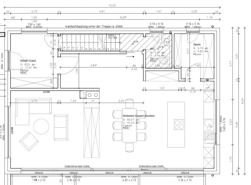
Oh sorry, das war tatsächlich der Keller Grundriss...:-[. War schon ziemlich spät gestern.
Ich habe den Grundriss inzwischen aktualisiert.
Ja, auf dem Planungsbil ist noch kein hochgebauter Geschirrspüler eingezeichnet. Da steht noch der Dampfgarer an der Stell, wo der Geschirrspüler eingeplant sein soll.
Ich bin noch nicht sicher, ob wir auch einen Dampfgarer nehmen sollen.
Die Nische, wo der SBS eingeplant ist hat eine Länge von 191 cm. Daher war der Plan, dass neben dem SBS jeweils ein 45cm breiter Hochschrank (Apothekerschrank und Geschirrschrank) stehen soll. Da sollen hauptsächlich Gläser, Tassen, Schüsseln und Cerealien untergebracht werden.
Die Länge der Spülenzeile beträgt 506 cm und hier sind zwei 60 er Hochschränke (einer mit hochgebautem Backofen ), daneben ein Unterschrank 100 cm, 50 cm unnd wieder 100cm stehen. Dann folgen wieder die zwei 60er Hochschränke.
Die Kücheninsel soll 250 cm lang werden und 95 cm breit.
Die genaue Aufteilung können wir noch auswählen. Ich hätte gerne in einem der Hochschränke die schon existierende Mikrowelle untergebracht.
Außerdem bin ich am überlegen, ob im Küchenblock zwei 15er Unterschränke für Handtücher und Flaschen eingeplant werden sollen.

Vielen Dank schon mal für eure Antworten!
marlou
 
AW: Wohnküche mit Insel in Neubau

Vergiss die 15er U-Schränkchen, da passt ja nix rein - wenn dann ist 30cm Minimum. Die Handtücher würde ich in die Speisekammer hängen, in so einem U-Schrank werden sie eh nicht trocken und müffeln nur.

Ich bin Fan davon Brettchen & Backbretter & Tabletts senkrecht zu lagern, da kann man auf GENAU das Teil zugreifen, das man möchte, ohne alle anderen auch rausheben zu müssen
Beispiel von 30cm; ich bekomme das jetzt noch in einem 60cm Schrank, damit wirklich alle Bleche, Roste, Kuchengitter, Tabletts etc. Platz haben ;-)
 
AW: Wohnküche mit Insel in Neubau

Ok das macht wohl auch mehr Sinn, danke für den Tipp. Ich weiß gar nicht warum ich nicht selbst drauf gekommen bin die Tücher in die Speisekammer zu hängen...:rolleyes:
 
Zuletzt bearbeitet von einem Moderator:
AW: Wohnküche mit Insel in Neubau

Ist die Planung mit den Hochschränken rechts und links an der Spülenzeile (120cm Länge) eventuell zu viel? Ich habe vielleicht zu wenig Arbeitsfläche, wenn die Spüle und das Kochfeld 90 cm breit sind. Habe aber keine Idee, wie es mit der Geräteaufteilng sonst sinnvoll funktionieren kann.
Das Kochfeld unter das Fenster zu planen und die Spüle auf die Insel ist wahrscheinlich auch nicht sinnvoll...:-\

Wie gefällt euch den die Planung? Was könnte man noch besser machen?
 
AW: Wohnküche mit Insel in Neubau

Hast du denn schon mal eine Stauraumplanung gemacht? Was soll z. B. in den beiden äußeren 60er Hochschränken verstaut werden?

Du schreibst:
Was steht auf der Arbeitsplatte oder soll dort stehen? : Kaffeemaschine, Messerblock, Brotbehälter, Obstschale
Welche weiteren Küchenmaschinen müssen in der Küche untergebracht werden? : Küchenmaschine, Toaster, Schneidemaschine (z. B. in Schublade), Handrührgerät, Pürierstab

Küchenmaschine wäre z. B. etwas, was ich auch gerne einsatzbereit auf der APL stehen hätte. Hast du mal überlegt, wo das jeweils alles stehen soll und wie du arbeiten willst?
 
AW: Wohnküche mit Insel in Neubau

Wer mal Lust hat zu schieben, ich habe mal leere Alno -Dateien angelegt.
 

Anhänge

  • kf_marlou_20110527_leer.KPL
    4,1 KB · Aufrufe: 196
  • kf_marlou_20110527_leer.POS
    8,1 KB · Aufrufe: 175
AW: Wohnküche mit Insel in Neubau

Liebe Kerstin,

vielen Dank für deine Alno -Datei. Ich habe meine inzwischen auch eingestellt. Ich hatte leider Probleme, die Nische entsprechend einzuplanen und auch der SBS ist mit Phantasie gebastelt. Wenn ich entsprechend Zeit habe, werde ich deinen Plan mit meinen Möbeln füllen.
Das Fenster wie in Plan1 ist höher als auf den anderen Planungsbildern. Es ist also noch ein Spritzschutz vorgesehen. Meinem Mann gefällt diese Variante besser. Ich bin noch nicht ganz sicher ob das Fenster arbeitsflächenbündig nicht besser aussieht...:-\ ... und man darüber noch Oberschränke einplant.
Ich werde Küchengeräte wie Küchenmaschine, Waffeleisen und Entsafter in die Speisekammer stellen.

Ich weiß ehrlich gesagt noch nicht genau, was ich in die großen Schränke verstauen will. Teller und Schüsseln?! Wer mir noch mal Gedanken machen.

Ich wollte bei der Alno Planung bei der Insel eigentlich keine Schränke auf der Rückseite einzeichnen sondern nur die Wangen, habe aber leider nicht gefunden, wie es geht...:'(

Ich bin noch am Überlegen, ob ein SBS oder ein großer integrierter Kühlschrank sinnvoller ist. In die Speisekammer könnten wir auch eine Gefriertruhe stellen.
Wir haben momentan 4 Gefrierschubladen in unserem Gefrierschrank was völlig ausreicht, daher die Überlegung, ob sich die Anschaffung einer Gefriertruhe überhaupt lohnen würde oder aber ein SBS reicht.

marlou
 
AW: Wohnküche mit Insel in Neubau

Ist nur die Kühlschrankgröße der Grund für den SbS? Nicht Eiswürfel oder Wasserausgabe etc.?

Dann würde ich im Küchenbereich einen großen integrierten Kühlschrank wählen und in der Speisekammer einen Stand-Alone-TK-Schrank, z. B. Liebherr GN 1956 Premium Nofrost. Der sollte euch dann in der Größe reichen. Nofrost bei TK finde ich sehr angenehm, nie wieder abtauen :cool::cool:

Küchenmaschine in der Speisekammer, nutzt du die nicht so häufig? Willst du sie dann da nutzen?

Was soll denn alles in der Speisekammer unterkommen? Auch Staubsauger, Wischer usw.? Getränke komplett? Ihr habt ja auch noch den Keller.
 
AW: Wohnküche mit Insel in Neubau

Ich habe das Fenster in meinem leeren Alnoplan mit Brüstungshöhe 135 cm eingezeichnet.

Die Brüstungshöhe ist natürlich praktisch, wenn du auch Kaffeemaschine etc. dorthin stellen möchtest. Dann kannst du das Fenster öffnen, ohne alles wegzuräumen.
Alternativ bietet sich ein Fenster mit festem Brüstungselement unten an. Dann kann man die APL großzügig in die Fensterlaibung laufen lassen, unten Kräuter etc. stehen haben, aber trotzdem das Fenster öffnen:

Du hattest auch Schneidemaschine evtl. in Schublade angegeben. Gibt es die Schneidemaschine schon oder willst du sie dann anschaffen?
 
Zuletzt bearbeitet von einem Moderator:
AW: Wohnküche mit Insel in Neubau

Das Fenster in Brüstungshöhe 135 cm ist denke ich ideal, da ein Fenster mit Brüstungselement nicht zu unseren Außenentwurf des Hauses passt.
Wenn meine Kleine im Bett ist, werde ich mich an die Planung machen.

Wir werden wohl auch eine Staubsaugeranlage haben, daher ist in der Speisekammer nur der Staubsaugerschlauch vorgesehen. Ansonsten eben Getränkrkisten, Vorräte, Küchenrolle und Toilettenpapier. Außerdem wahrscheinlich noch das Bügelbrett u. Bügeleisen. Vielleicht bügel ich aber auch im Keller. Ich denke die Speisekammer ist groß genug für diese Sachen.

Bei dem SBS sind natürlich die Eiswürfel, das crusched Ice und der Wasserauslass das Argument für ihn.

*marlou*
 
AW: Wohnküche mit Insel in Neubau

So, ich habe mal schon geschoben. Die Grundplanung ist ja super, hier also mehr Schrankaufteilung. Und da ich mir aktuell so gar nicht vorstellen kann, wofür du all die Hochschränke brauchst, habe ich da mal zusammengestrichen.

Den SbS jetzt alleinstehend und mit etwas Abstand (abgekoffert) dann noch einen 60er Schrank für Spiele, Tischwäsche, Vasen usw.

Von der Rückseite der Insel 2 tiefenreduzierte Schränke für Kerzen, Servietten etc.

Die lange Zeile jetzt nur noch von 2 Hochschränken umrahmt. Links Backofen und DG (wenn es erstmal kein Dampfgarer wird, dann ein leeres Fach mit Klappe davor). So steht der Schrank zwar mit 5 cm Blende an der Wand, aber links ist die Türlaibung zur Speisekammer, so dass da genug Ellbogenfreiheit sein sollte.

Rechts die hochgebaute GSP mit einem Klappfach obendrüber für eine kleine Standmikrowelle.

Dazwischen 4x90er Unterschränke. Spüle vorzugsweise mit 2 Becken, so wie Ulla es z. B. hat:
full

18655d1260997778-kueche-in-muenchen-grifflos-von-poggenpohl-90er-u-schublade-unter-spuelbecken.jpg


Von Kochfeldseite würde ich etwas asymmetrisch aufbauen, damit man auch ein übertiefes Stück breite APL hat. Von daher quasi ggü. der Spüle ein 30er Unterschrank , wo man auch einen Handtuchhalter integrieren könnte (die trocknen da auch), dann 2x90er und 1x40er für Gewürze/Öle Essig.

Damit hast du für Geschirr, Töpfe, Küchenhelfer, Tupperware etc. 5x90er Auszugsunteschränke sowie den Platz unter dem Backofen (Innenauszüge). Da sollte sich schon so einiges verstauen lassen.

Ich kann nur empfehlen, für jede Planung eine Stauraumplanung wie in Korpushöhen - Rastermaße - Auszugs-Innenmaße - Stauraumplanung beschrieben, zu machen.

------------------
DAH könnte die Novy Highline sein, alternativ die auch gern genommene leistungsschwächere --> Best Cirrus
dazu dann Lautstärkenangaben Novy und Best

--------------
Wenn kein festes Brüstungselement in Frage kommt, würde ich die Brüstungshöhe auch auf 125 bis 135 cm setzen.
 

Anhänge

  • kf_marlou_20110527_kb_Var1_Ansicht2.jpg
    kf_marlou_20110527_kb_Var1_Ansicht2.jpg
    26,8 KB · Aufrufe: 195
  • kf_marlou_20110527_kb_Var1_Ansicht1.jpg
    kf_marlou_20110527_kb_Var1_Ansicht1.jpg
    25,4 KB · Aufrufe: 206
  • kf_marlou_20110527_kb_Var1.POS
    17,5 KB · Aufrufe: 179
  • kf_marlou_20110527_kb_Var1.KPL
    4,1 KB · Aufrufe: 211
  • kf_marlou_20110527_kb_Var1_Ansicht3.jpg
    kf_marlou_20110527_kb_Var1_Ansicht3.jpg
    20,7 KB · Aufrufe: 473
  • kf_marlou_20110527_kb_Var1_Ansicht4.jpg
    kf_marlou_20110527_kb_Var1_Ansicht4.jpg
    28,1 KB · Aufrufe: 226
  • kf_marlou_20110527_kb_Var1_Ansicht5.jpg
    kf_marlou_20110527_kb_Var1_Ansicht5.jpg
    29,2 KB · Aufrufe: 236
  • kf_marlou_20110527_kb_Var1_Ansicht6.jpg
    kf_marlou_20110527_kb_Var1_Ansicht6.jpg
    26 KB · Aufrufe: 226
  • kf_marlou_20110527_kb_Var1_Grundriss.jpg
    kf_marlou_20110527_kb_Var1_Grundriss.jpg
    32,5 KB · Aufrufe: 319
AW: Wohnküche mit Insel in Neubau

Liebe Kerstin,

vielen Dank für deine Bemühung! Das sieht echt ganz toll aus!!! Ich hätte nicht gedacht, dass es auch toll aussehen kann, wenn nur jeweils ein Hochschrank bei der Spülenzeile enthalten ist. Sieht aber echt super aus. Und das Beste, ich habe noch mehr Arbeitsfläche. :-)
Danke auch für die Tipps wegen der DAH. Ich habe allerdings gehört, dass sobald ein Luftzug dazwischen kommt, eine Deckenlüftung nicht besonders geeignet ist. Da wir mit Abluft immer das Fenster kippen müssen, wenn die DAH an ist, ist es vielleicht besser eine Inselesse zu haben wie die Gutmann Campo?
Das ist echt so toll auf deinem Plan geworden, ich bin völlig platt:dance:.
Ich habe mauch nocmal meinen Plan geupdated allerdings ist das nicht wirklich so gelungen wie ich mir das vorgestellt habe...:(
Ich hoffe nur, dass ich mit einer LEICHT Küche die entsprechenden Unterschränke so bekomme.
Unser Küchenverkäufer hat uns gesagt, wir sollen uns überlegen, was für Schränke wir wo haben wollen. Das ist aber teilweise gar nicht so einfach, da es bestimmte Schrankbreiten bei manchen Herstellern gar nicht so gibt, wie man gerne hätte.
Z.B. wollte ich von Nobilia eine Küche. Es scheiterte aber an den 95 cm APL-Höhe.
Ich müsste dann einen 20 cm hohen Sockel einplanen, was wahrscheinlich nicht gut aussieht oder?
Inzwischen sind wir bei Leicht, da die U-Schrankhöhe dort 80cm beträgt.

Nur bei der Nische bin ich noch am Überlegen, ob der Platz zwischen Schrank und SBS nicht doch in Form eines breiteren Schrankes genutzt werden sollte.

Also vielen Dank nochmal! Und die tollen Leuchter an der Deck, bin echt begeistert!
 
AW: Wohnküche mit Insel in Neubau

Also optisch finde ich es immer ganz toll, wenn ein SbS etwas solo steht. Wie gesagt, ich kann dir nur dringend zur Stauraumplanung raten. Ich habe ja von meiner Planung Ansichten aller 3 relevanten Seiten gemacht. Einfach ausdrucken oder in ein Grafikprogramm laden und mal planen, was wo hin soll.

30er, 40er und 90er Schränke, wie ich sie geplant habe, sollten bei allen Herstellern Standard sein.

Und die Entscheidung wg. der Korpushöhe von Nobilia einen anderen Hersteller ist etwas, was wir dir hier spätestens empfohlen hätten :cool:

Und, bei deiner Planung auch mal berücksichtigen, wo du Kaffeemaschine etc. hinstellst.

Und, wenn du das mit einem Grafikprogramm machst, dann speichern und hier wieder hochladen. Dann kommen hier die User wieder mit ihren Erfahrungen und Anregungen, was man vielleicht anders machen könnte, was vielleicht nicht bedacht ist usw.

Etwas kritisch an meinem Plan dürfte noch die Unterbringung zumindest der feineren Gläser sein. Da könnte ich mir statt der Sitzlücke in der Insel eher noch Schränke dafür vorstellen.
 
AW: Wohnküche mit Insel in Neubau

ich habe seit ein paar Wochen eine Decken-DAH ... die Haube zieht prima, egal welches Loch ich öffne ... ich bin selber erstaunt wie gut und gleichmässig sie zieht :cool: - da würde ich mir keine Sorgen machen :w00t:
 
AW: Wohnküche mit Insel in Neubau

Ich habe jetzt mal die Thekensitzplätze entfernt. Ich halte sie für recht überflüssig.

Außerdem den 60er Hochschrank zu einem 80er Hochschrank gemacht. Das wäre dann aber vermutlich nur ein Schrank mit Bretteinlagen bzw. du müßtest mal fragen, ob es dafür auch Innenauszüge gibt. Zumindest im Bereich bis zur Höhe von ca. 120 / 140 cm finde ich die Innenauszüge optimal.

Wenn man da allerdings 2x40er Hochschränke stellen muss, dann bringen die platzmäßig keinen Gewinn bei Innenauszügen, da die Mechanik ja auch Platz verbraucht und man dann auch nur den 60er nehmen kann.

Decken-DAH habe ich schon bei mehreren Kochevents erlebt, was eben auch der Grund ist, warum ich für meine neue Wohnung eine Decken-DAH bekommen werde.
 

Anhänge

  • kf_marlou_20110527_kb_Var1a.POS
    17,4 KB · Aufrufe: 184
  • kf_marlou_20110527_kb_Var1a_Ansicht1.jpg
    kf_marlou_20110527_kb_Var1a_Ansicht1.jpg
    19,8 KB · Aufrufe: 193
  • kf_marlou_20110527_kb_Var1a_Ansicht2.jpg
    kf_marlou_20110527_kb_Var1a_Ansicht2.jpg
    27,7 KB · Aufrufe: 192
  • kf_marlou_20110527_kb_Var1a_Ansicht3.jpg
    kf_marlou_20110527_kb_Var1a_Ansicht3.jpg
    18,2 KB · Aufrufe: 526
  • kf_marlou_20110527_kb_Var1a.KPL
    4,1 KB · Aufrufe: 161
AW: Wohnküche mit Insel in Neubau

Optisch gefällt es mir besser mit dem 80 cm Schrank in der Nische.

@Nice-nofret: Danke für die Antwot wegen dem Deckenlüfter . Das werde ich noch genauer recherchieren. Was für einen hast du?
 
AW: Wohnküche mit Insel in Neubau

Ich achte mehr auf die Abstände rechts und links vom SbS:
50348d1306520573-wohnkueche-mit-insel-in-neubau-kf_marlou_20110527_kb_var1_ansicht3.jpg


Du siehst mehr die Breite der weißen Flächen:
50358d1306529499-wohnkueche-mit-insel-in-neubau-kf_marlou_20110527_kb_var1a_ansicht3.jpg

Und die wirkt aktuell auch deshalb, weil ich die Tür zur Speisekammer auch 220 cm hoch gemacht habe. Das ist aber keine normale Türhöhe.
 

Ähnliche Beiträge

Neff Hausgeräte Ballerina Küchen Blum Bewegungstechnologie Weibel - Intelligente Küchenlüftung

Neff Spezial

Blum Zonenplaner

Weibel Abluft-Tuning

Weibel Abluft-Tuning
Zurück
Oben