(Wohn-)Küche für Neubau

michik

Mitglied
Beiträge
13
Schönen guten Abend,

beschäftige mich seit geraumer Zeit schon mit dem Thema Küchenplanung .
Da die aktuelle Küche in der Mitwohnung einfach zu klein ist und man beim Kochen, bzw. Vorbereiten nie so richtig Platz hat war uns wichtig, dass beim Neubau eine großzügige Wohnküche eingeplant wird.
Nun möchte ich jedoch sichergehen, dass der vorhanden Raum auch sinnvoll verwendet wird.
Auf einen Hersteller haben wir uns noch nicht festgelegt.
Fronten weiß oder magnolie, Arbeitsplatte Nußbaum oder ähnliches
Der einzelne Oberschrank ist übrigens durchaus gewollt. ;-)

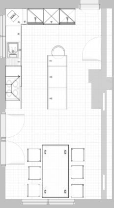
Achja: Grundriss
das Haus hat 12x9,50m, in der Küche ist die obere Wand zw. Speis und Küche 2,70m lang und die linke bis zur Türe 3,80m.

Und jetzt würde ich mich über Anregeungen/Kritik/Rückfragen freuen!

Grüße,
Michael
EDIT: der "hochgesetzte Backofen soll eine Mikrowelle darstellen ;-)





Checkliste zur Küchenplanung von michik

Anzahl Personen im Haushalt : 2
Davon Kinder? : keine
Körpergrössen aller Hauptbenutzer (wegen Arbeitshöhe ) in cm : 186,165
Art des Gebäudes? : Neu-/Umbau, Planänderungen möglich
Brüstungshöhe des Fensters (in cm) : 110
Fensterhöhe (in cm) : 120
Raumhöhe in cm: : 240
Heizung : Fussbodenheizung
Sanitäranschlüsse : vollkommen variabel
Ausführung Kühlgerät? : Integriert im Hochschrank (60cm)
Kühlgerät Größe : bis 122 cm Höhe
Ausführung Tiefkühl (TK)-Gerät : Im Kühlschrank als kleines Fach oben
Dunstabzugshaube? : Umluft
Hochgebauter Backofen ? : Nein
Hochgebauter Geschirrspüler ? : wenn möglich
Kochfeldart? : Induktion
Kochfeldbreite ca. (in cm)? : min. 80
Spülenform: : 1,5 Becken mit Abtropffläche
Weitere geplante Heißgeräte : Einbaumikrowelle
Küchenstil? : klassisch
Sitzmöglichkeit in der Küche / im Küchenbereich als : Keine
Sitzmöglichkeit: Für wieviel Personen? : nein
Sitzmöglichkeit: Tisch - wenn gesonderter Tisch oder offene Küche : Wird nach Bedarf neu gekauft
Gewünschte o. vorhandene Tischgröße : 6 Personen
Wofür soll der Sitzplatz in der Küche genutzt werden? Wie häufig? : evtl. kleine Theke für den schnellen Kaffee zwischendurch...
Welche Arbeitshöhe ist angedacht (in cm)? : ~90
Was steht auf der Arbeitsplatte oder soll dort stehen? : Kaffeemaschine, Wasserkocher
Welche weiteren Küchenmaschinen müssen in der Küche untergebracht werden? : Toaster, Mixer, Pürierstab, Eierkocher
Was soll in der Küche außer den Standards untergebracht werden? : Sonstiges (evtl. im Beitragstext benennen)
Welchen Stauraum gibt es sonst noch? : Geschirr/Gläserschrank im Wohn-/Esszimmer, Speisekammer, Keller
Was/wie wird gekocht? (Alltagsküche, Menüs, Snacks usw) : normale Alltagsküche;
gerne auch mal mehrgängige bzw. anspruchsvolle Menüs
Wie häufig wird gekocht? : (fast) täglich 1x warm
Wird alleine gekocht? Oder auch gemeinsam? Mit und für Gäste? : normalerweise zusammen und auch gerne für Gäste
Was stört an der bisherigen Küche und was soll die neue Küche unbedingt können? Warum? : viel zu kleine Arbeitsflächen, zu wenig Stauraum
Steht schon ein Küchenhersteller fest oder wird bevorzugt? :
Steht schon ein Gerätehersteller fest oder wird bevorzugt? : Neff oder Siemens
Preisvorstellung (Budget) : bis 15.000,-
 

Anhänge

  • Grundriss_EG.jpg
    Grundriss_EG.jpg
    47,9 KB · Aufrufe: 364
  • PLAN_neu.KPL
    4,1 KB · Aufrufe: 192
  • PLAN_neu.POS
    6,9 KB · Aufrufe: 189
  • 1.jpg
    1.jpg
    42,3 KB · Aufrufe: 278
  • 2.jpg
    2.jpg
    41,9 KB · Aufrufe: 263
  • 3.jpg
    3.jpg
    49,7 KB · Aufrufe: 275
  • 4.jpg
    4.jpg
    38,2 KB · Aufrufe: 268
Zuletzt bearbeitet:
AW: (Wohn-)Küche für Neubau

:welcome:

es fehlt noch der vermasste Grundriss und der :grundriss: ==> 6rasterig:
full

Typische Korpushöhen für 5-rasterig: 65cm, 70 cm, 72 cm, 75cm.
Typische Korpushöhen für 6-rasterig: 78cm, 79,8cm, 86,4cm
Der größte und auch für Laien sichtbare Unterschied ist das Raster und das spricht eindeutig für den 78 cm Korpus . So kann eine Stauraumoptimierung erreicht werden.
Selbst größere Töpfe bekommt man in 26cm hohen Auszügen unter, bei 30cm Auszügen hast du einfach 4cm mehr Luft, also ungenutzten Stauraum dazu.
In die hohen 39cm Auszüge bekommst du dafür zB Flaschen, Mixeraufsätze, Cornflakesschachteln, die aber für 30cm Auszüge wiederum zu hoch sind.
Und dein Besteck braucht auch keine 15cm hohe Schublade, 13cm reichen
In Korpushöhen - Rastermaße - Auszugs-Innenmaße - Stauraumplanung sind diverse Hersteller mit ihren Standardkorpushöhen verlinkt.
Wenn man dann z. B. einen 78cm hohen Korpus wählt, ergeben sich folgende Maße
- 78 cm Korpushöhe
- 4 cm APL-Höhe
- 12 cm Sockelhöhe
-----------------
= 94 cm Gesamthöhe=Arbeitshöhe
ARBEITSHÖHE ermitteln​


  • [*=1]z. B. Bügelbrett nehmen und in verschiedenen Höhen Probeschnippeln und messen, wenn es einem am bequemsten erscheint.
    [*=1]Höhe Beckenknochen sollte nicht überschritten werden.

Sobald man anfängt die Schultern hochzuziehen, ist es zuhoch; Wenn man sich vornüberbeugt, zu niedrig
 
AW: (Wohn-)Küche für Neubau

Neben dem vermaßten Grundriss wäre auch nicht wichtig zu wissen, ob da im Koch/Essraum auch Kaminnutzung stattfinden soll.

Geschirrschrank im Esszimmer? Ist der eingezeichnet im Alnoplan?

Soll die Schiebetür zum Wohnzimmer in der Wand laufen oder im Esszimmer?

Sind beide Terrassentüren als Terrassentüren geplant oder ist eines davon nur bodentiefe Festverglasung? Wg. Laufweg zur Terrasse.

Ein 80er Kochfeld mittig über dem Backofen (warum nicht hochgebaut?) führt dazu, dass wohl bei der aktuellen Planung max. 20 cm bis zum Halbinselrand bleiben.

Sollen auch mal mehr als 6 Personen am Esstisch sitzen?
 
AW: (Wohn-)Küche für Neubau

Im Alnogrundriss hast du den Kaminschacht nicht eingetragen ... gibt es den jetzt doch nicht im Küchenbereich oder einfach für nicht wichtig erachtet?
 
AW: (Wohn-)Küche für Neubau

Neben dem vermaßten Grundriss wäre auch nicht wichtig zu wissen, ob da im Koch/Essraum auch Kaminnutzung stattfinden soll.
ja, wird ein Kachelofen eingebaut

Geschirrschrank im Esszimmer? Ist der eingezeichnet im Alnoplan?
-nein, wäre möglich ist aber eigentlich nicht gewünscht
Soll die Schiebetür zum Wohnzimmer in der Wand laufen oder im Esszimmer?
in der Wand
Sind beide Terrassentüren als Terrassentüren geplant oder ist eines davon nur bodentiefe Festverglasung? Wg. Laufweg zur Terrasse.
links ist eine Schiebetüre (2m gabs nicht im Alno ) unten nur ein Fenster
Ein 80er Kochfeld mittig über dem Backofen (warum nicht hochgebaut?) führt dazu, dass wohl bei der aktuellen Planung max. 20 cm bis zum Halbinselrand bleiben.
die meisten hochgebauten Backofen sind vor allem meiner Frau viel zu hoch. Außerdem sollte der meiner Meinung in der unmittelbaren Nähe zum Kochfeld sein.
Sollen auch mal mehr als 6 Personen am Esstisch sitzen?
Evtl auch mal alle 8
 
AW: (Wohn-)Küche für Neubau

Wieviel Platz wird der Kachelofen denn im Koch/Essraum wegnehmen? Soll der durchgehend bis ins Wohnzimmer sein? Von wo wird die Befeuerung sein?
 
AW: (Wohn-)Küche für Neubau

Im Alnogrundriss hast du den Kaminschacht nicht eingetragen ... gibt es den jetzt doch nicht im Küchenbereich oder einfach für nicht wichtig erachtet?

weder noch, aber der wird komplett im Kachelofen (Tiefe ca. 50cm) integriert und ist daher etwas schwierig einzuzeichnen...

Achja - befeuert vom Flur aus und geht durch bis in WoZi
 
AW: (Wohn-)Küche für Neubau

Du kannst auch auf mehrere Beiträge auf einmal antworten, zusammen mit kurzem Stichwort kannst du dir dann die Zitierei sparen, weil die Antworten auch so zuzuordnen sind und die Zitate zwischendrin den Lesefluß hemmen. :rose:

EDIT:
kann der Kaminofen im Küchenbereich noch von den 50 cm Tiefe reduziert werden?
 
AW: (Wohn-)Küche für Neubau

Tiefe kann eigentlich nicht mehr reduziert werden.
 
AW: (Wohn-)Küche für Neubau

Hallo Michi,

den Backofen kann man, in einer für den Nutzer, bedienfreundlichen Höhe, einplanen lassen. Ich bin auch nur 162cm klein und habe Backofen und DGC in einem Hochschrank und ich komme an beide Geräte gut an. Unter meinem Backofen hab ich einen 2 rastigen Auszug und eine Schublade. ;-)
Warum meinst du, das der Backofen unbedingt unter das Kochfeld muss? Im Hochschrank ist er viel ergonomischer zu bedienen und auch zu putzen. ;-) Außerdem ermöglicht es die Planung eines breiten Unterschranks unter dem Kochfeld, für Töpfe und Kochbesteck. Das ist sehr praktisch und bringt viel Stauraum. :2daumenhoch:
 
AW: (Wohn-)Küche für Neubau

Im Wohnzimmer wird wohl noch ein Esstisch stehen?

Ich würde die Schiebetüre ins WHZ soweit nach Planunten verschieben, dass Du den Kaminofen in der linksoberen Ecke vom WHZ platzierst und zur Essküche hin eine Glassscheibe und Wärmeauslasse - dann würde der Ofen in der Küche nicht stören ;-)
 
AW: (Wohn-)Küche für Neubau

Backofen :
wenn dann wäre der aber genau am anderen Ende der Küche - für mein Geschmack viel zu weit weg...
Wenn ich Saucen oder ähnliches mache passiert das oft gleichzeitig im Ofen und auf dem Kochfeld oder man muß was aus dem Topf in nen Bräter schütten: Warum dann den heißen Topf/Pfanne/Bräter quer durch die ganze Küche schleppen. Da will sich mir der ergonomische Vorteil nicht so ganz erschließen... aber ist wohl auch Geschmackssache. Bei der Spüli fänd ichs allerdings toll, wenn die vieleicht 30cm höher stände ;-)

Kachelofen:
der stört nicht in der Küche! Ganz im Gegenteil. Für uns ist der ein Teil der Küche!
Und wieso noch ein Tisch? Wer braucht denn zwei Esstische nebeneinander? Oder versteh ich da was falsch?
 
AW: (Wohn-)Küche für Neubau

Beim Wohnzimmerschnitt habe ich mich eben gefragt, ob ihr dort noch einen grossen Esstisch für Gäste haben wollte, wenn die Küche nur für die Kernfamilie reichen müsste, dann könnte man ganz anders planen; deshalb habe ich gefragt ;-)

Der Kachelofen schränkt die Planungsmöglichkeiten ein - darum wäre es gut, wenn der zur Hauptsache im Wohnzimmer stünde und nur die Wärme oder auch die Flammen in der Küche ankommen..

Wir klopfen erstmal die Randbedingungen und Möglichkeiten ab, bevor wir andere Vorschläge machen - Deine Planung hat Optimierungspotential.
 
AW: (Wohn-)Küche für Neubau

Es geht auch mit dem Kamin. Dann halt nur mit einer Insel von ca. 75 bis max. 80 cm Tiefe.

Die Ausgangsplanung ist, wenn man ein G möchte und den Backofen unten hat, eigentlich nicht zu verbessern. Ich finde das G aber für gemeinsames Kochen und auch für Gästebewirtung etc. immer irgendwie einschnürend.

Deshalb jetzt das L mit Insel.

- Hochschränke ca. 205 cm hoch, damit ein Hängeschrank auf derselben Höhenlinie daneben paßt. Backofen mit in die Hochschränke.

- tote Ecke wie gehabt, dann GSP, 60er Spülenschrank mit Brett für Putzmittel und vielleicht 1 größeren Behälter für Gelber Sackmüll. Daneben dann der 30 Bio/Restmüll unter der APL
full


- 2x80er Auszugsunterschränke, 80er Kochfeld mittig dadrüber.

Mittendrin dann die Insel aus 2xübertiefen 80er Auszugsunterschränken möglichst im Raster 1-1-2-2 und überstehender APL für einen Schnippelsitzplatz oder eben einfach nur nahe der Kaffeemaschine einen Kaffee trinken.

Die Insel steht sehr gut im Verhältnis zu Spüle/Kochfeld/Kühlschrank .. alles kurze Wege, wo man sich auch zu zweit nicht stört.

Die Insel bietet hervorragende Anrichtefläche, Vorbereitungsfläche (z. B. Nudeln machen oder ähnliches) und auf Fläche für ein umlaufbares Buffet.

Die Küche wird dadurch offener, man hat den kurzen Weg Küchenzeile-Terrassentür usw.

Den Alnoplan habe ich jetzt mal nach dem Originalgrundriss ausgerichtet, Fenster angepaßt, Kamin reingebastelt.
 

Anhänge

  • kf_michi_k_20121001_kb_var1.kpl
    4,1 KB · Aufrufe: 183
  • kf_michi_k_20121001_kb_var1.POS
    11,6 KB · Aufrufe: 194
  • kf_michi_k_20121001_kb_var1_Ansicht1.jpg
    kf_michi_k_20121001_kb_var1_Ansicht1.jpg
    26,6 KB · Aufrufe: 205
  • kf_michi_k_20121001_kb_var1_Ansicht2.jpg
    kf_michi_k_20121001_kb_var1_Ansicht2.jpg
    25,8 KB · Aufrufe: 198
  • kf_michi_k_20121001_kb_var1_Ansicht3.jpg
    kf_michi_k_20121001_kb_var1_Ansicht3.jpg
    27,8 KB · Aufrufe: 203
  • kf_michi_k_20121001_kb_var1_Ansicht4.jpg
    kf_michi_k_20121001_kb_var1_Ansicht4.jpg
    24,2 KB · Aufrufe: 194
  • kf_michi_k_20121001_kb_var1_Ansicht5.jpg
    kf_michi_k_20121001_kb_var1_Ansicht5.jpg
    23,2 KB · Aufrufe: 191
  • kf_michi_k_20121001_kb_var1_Ansicht6.jpg
    kf_michi_k_20121001_kb_var1_Ansicht6.jpg
    27,6 KB · Aufrufe: 193
  • kf_michi_k_20121001_kb_var1_Grundriss.jpg
    kf_michi_k_20121001_kb_var1_Grundriss.jpg
    13,2 KB · Aufrufe: 198
AW: (Wohn-)Küche für Neubau

Ausgehend von Kerstins Grundplanung habe ich mal etwas geschoben.

Die Türe zur Speisekammer würde mir planlinks besser gefallen - ich finde es auch praktischer.
Michi10.JPG

Je nach genauer Fensterposition ändert sich die Zeilenaufteilung so, dass der Wasserhahn mittig zwischen den Flügeln sitzt - und sich so das Fenster an der Armatur vorbei öffnen lässt.

Michi12.jpg
Die Arbeitszeile besteht aus
2x90cm darüber Kochfeld
30-50cm Müll unter der APL
60cm Spüle
60cm GSP
15-45cm offenes Fach für Brettchen, Tabletts, überzählige Backbleche etc.
Michi11.jpg
Bei den Seitenschränken haben drei Platz
- Kühli
- BO (evt. Mikro drüber) / Geschirrschrank
- auf gleicher Höhe wie der BO der DGC / Vorratsschrank

die Inseltiefe richtet sich danach wieweit man den Kachelofen & Kamin in der Wand versenken kann - das hat natürlich auch noch Auswirkungen auf die Schiebetüren.

Schau Dir mal meine Küche an (Link in Fusszeile) - bei mir ist BO genauso weit weg - das stört mich überhaupt nicht, sondern funktioniert ganz wunderbar.
 

Anhänge

  • kf_michi_k_20121001_nn_v1.POS
    11,6 KB · Aufrufe: 186
  • kf_michi_k_20121001_nn_v1.kpl
    4,1 KB · Aufrufe: 168
AW: (Wohn-)Küche für Neubau

Also erstmal: Vielen Dank - sind beides Ideen auf die ich so nicht gekommen wäre... :top:

Vor allem die Variante von Kerstin find ich gut. Die vier 80er Auszüge bieten viel Platz. Die 30er Müll-Auszüge sind auch super. Der Backofen ist aber irgendwie gewandert ;-)
Weiß bloß net ob's nicht irgendwie ein bischen eng wird zwischen Insel und Zeile? Was zeigt die Erfahrung hier?
Das Rutschen der Speistüre gefällt mir nicht so, wobei der Hochschrankblock da allerdings schon gut ist :-\

Zum Ofen muss man vielleicht noch sagen, dass der nur im Bereich der Kamins hoch (ca. 1,5m) wird, daneben ist Bank. Ist also nur der Kamin deckenhoch. Alles wirkt dadurch bei weitem nicht so dominant wie der (massive) Block im Alno -Plan.
 
AW: (Wohn-)Küche für Neubau

Vorteil von Vanessas Variante wäre die komlette Eliminierung von Ecken ;-)

Allerdings gefällt mir auch der angebundene Hochschrankblock ganz gut, da auf der Fläche der Unterschränke daneben eben idealer Stellpunkt für Kaffee/Küchenmaschine ist.

Die Gangbreite zwischen Zeile und Insel habe ich auf 95/96 cm angelegt. Das reicht aus für 2 Köche oder auch 3 ... ist aber auch superpraktisch, weil man mit einer Drehung an der großen Arbeitsfläche ist.

Ich hatte in meiner neuen Küche 90 cm und habe jetzt meine neue Küche bewußt wieder mit 93 cm Abstand geplant

full


Zwischen Insel und der Stelle, wo der Kachelofen ist, sind es nur ca. 75 cm, davor und dahinter aber mehr, so dass das wirklich nicht zu eng sein dürfte.

Ich würde auf jeden Fall eine Insellösung dem G vorziehen.
 
AW: (Wohn-)Küche für Neubau

Stimmt - da ist ein Kaffeemaschienen-Eck :-)
Ich hab nochmal geschoben, mir gefällt die hohe GSP direkt bei der Spüle halt so gut - Aber wird der Block jetzt zu massig? dazwischen ist noch ein 15er für Backblech und das große Schnibbelbrett...

Zu den Gangbreiten muss ich wohl mal wieder nen Feldversuch mit Pappkartons aufbauen ;-) :-)

Und der Riesen-Vorteil ist, dass der Weg zur Terasse und zum Esstisch wesentlich geradlinieger läuft.
Und irgendwie macht der Alno -Planer no net ganz was er soll :(

Drauf_GSP.jpgvorne_GSP.jpgAlno.jpg
 
AW: (Wohn-)Küche für Neubau

Ja, das geht problemlos mit der hochgebauten GSP. Die hatte ich irgendwie überlesen.

Mal zum Lesen: Spülbecken mit oder ohne Abtropfe

Ich sehe den entscheidenden Vorteil der Insellösung auch darin, dass du einerseits die Hauptarbeitsbereiche relativ nah beieinander hast, andererseits aber in derselben Nähe eine Riesenarbeitsfläche.
 

Anhänge

  • kf_michi_k_20121001_kb_var1a.POS
    12,4 KB · Aufrufe: 190
  • kf_michi_k_20121001_kb_var1a_Ansicht1.jpg
    kf_michi_k_20121001_kb_var1a_Ansicht1.jpg
    19,5 KB · Aufrufe: 207
  • kf_michi_k_20121001_kb_var1a_Ansicht2.jpg
    kf_michi_k_20121001_kb_var1a_Ansicht2.jpg
    28,1 KB · Aufrufe: 212
  • kf_michi_k_20121001_kb_var1a_Grundriss.jpg
    kf_michi_k_20121001_kb_var1a_Grundriss.jpg
    12,5 KB · Aufrufe: 190
  • kf_michi_k_20121001_kb_var1a.kpl
    4,1 KB · Aufrufe: 173

Ähnliche Beiträge

Neff Hausgeräte Ballerina Küchen Blum Bewegungstechnologie Weibel - Intelligente Küchenlüftung

Neff Spezial

Blum Zonenplaner

Weibel Abluft-Tuning

Weibel Abluft-Tuning
Zurück
Oben