U-Küche für Neubau-Wohnung

F3C1

Mitglied
Beiträge
16
Hallo zusammen

Nun ist es soweit, dass ich vom stillen Mitleser zum aktiven Küchenplaner werden. Konkret geht es um eine Küchenplanung für eine Eigentumswohnung.
Randbedingungen sind fester Grundriss, der nicht geändert werden kann und idealerweise sollte der Wasserabfluss im Versorgungsschacht bleiben.
Bisher planen wir Siemens Küchengeräte.

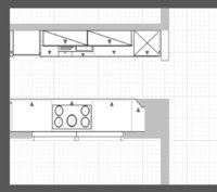
Die Grundform soll ein "U" werden. Denke auf Grund der bereits geplanten Auslässe, scheidet eine 2-Zeilen-Form aus.
Der Abwasser-Auslass befindet sich in der oberen, rechten Ecke der Küche, sodass die Spülwanne am einfachsten an der oberen Seite zu integrieren ist. Schöner wäre es aus meiner Sicht vor dem Fenster (Brüstungshöhe wäre ausreichend).
Allerdings müsste dann das Abwasserrohr um 3 Seiten gezogen werden, mit allen Nachteilen, wie Korpusse vorziehen, Korpusse aussägen etc. Deswegen wird es am einfachsten sein, die Spüle wie eingezeichnet zu planen. Es sollen möglichst breite Auszüge zur Verwendung kommen und im Idealfall eine "MUPL ", sofern es sich irgendwo sinnvoll ergänzen lässt.
Momentan ist der GSP neben der Spüle untergebracht. Evtl. wäre es auch möglich, den GSP unter dem Backofen im Hochschrank unterzubringen. Allerdings habe ich da keinen fertigen Schrank bei Schüller gefunden.
Ansonsten bin ich über Anregungen, Ideen und andere Vorschläge sehr dankbar.
Mario


Checkliste zur Küchenplanung

Anzahl Personen im Haushalt: 2
Davon Kinder?:
Art des Gebäudes?:
Neu-/Umbau, Planänderungen nicht möglich
Körpergrössen aller Hauptbenutzer (wegen Arbeitshöhe ) in cm: 170cm
Brüstungshöhe des Fensters (in cm):
Fensterhöhe (in cm):
Raumhöhe in cm:
Heizung:
Fussbodenheizung
Sanitäranschlüsse: fix
Ausführung Kühlgerät: Integriert im Hochschrank (60cm)
Kühlgerät Größe: noch unbekannt
Ausführung Tiefkühl (TK)-Gerät: Im Kühlschrank als kleines Fach oben
Dunstabzugshaube: Abluft
Backofen etc. hochgebaut?: Ja
Hochgebauter Geschirrspüler ?: Nein
Kochfeldart: Induktion
Kochfeldbreite ca. (in cm)?: 80cm
Spülenform: 1 Becken mit Abtropffläche
Geplante Heißgeräte: Backofen
Küchenstil: Modern
Sitzmöglichkeit in der Küche / im Küchenbereich: Keine
Sitzmöglichkeit: Für wieviel Personen?:
Sitzmöglichkeit: Tisch - wenn gesonderter Tisch oder offene Küche:
Gewünschte o. vorhandene Tischgröße:
Wofür soll der Sitzplatz in der Küche genutzt werden? Wie häufig?:
Welche Arbeitshöhe ist angedacht (in cm)?:
Was steht auf der Arbeitsplatte oder soll dort stehen?:
Welche weiteren Küchenmaschinen müssen in der Küche untergebracht werden?:
Wasserkocher, Toaster, Handrührgerät, Mixer, Eierkocher
Was soll in der Küche außer den Standards untergebracht werden?: ALLE Vorräte, Geschirr komplett (nichts in Ess-/Wohnzimmer)
Welchen Stauraum gibt es sonst noch?: Geschirr/Gläserschrank im Wohn-/Esszimmer
Was/wie wird gekocht? (Alltagsküche, Menüs, Snacks usw):
Wie häufig wird gekocht?:
(fast) täglich 1x warm
Wird alleine gekocht? Oder auch gemeinsam? Mit und für Gäste?:
Was stört an der bisherigen Küche und was soll die neue Küche unbedingt können? Warum?:
Welche Mülltrennung soll in der Küche vorgehalten werden?:
Bio/Restmüll ungetrennt, Biomüll, Gelber Sack Müll, Restmüll
Steht schon ein Küchenhersteller fest oder wird bevorzugt?: Schüller, Nobilia , Alno
Steht schon ein Gerätehersteller fest oder wird bevorzugt?: Siemens
Preisvorstellung (Budget): bis 15.000,-
 

Anhänge

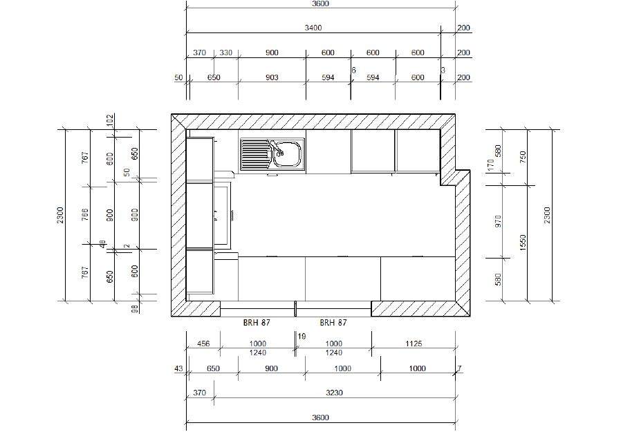
  • Grundriss Küche_bemaßt.JPG
    Grundriss Küche_bemaßt.JPG
    67,2 KB · Aufrufe: 392
  • Schüller_1.JPG
    Schüller_1.JPG
    37,9 KB · Aufrufe: 370
  • Schüller_2.JPG
    Schüller_2.JPG
    37,2 KB · Aufrufe: 366
  • Grundriss Küche_orginal.JPG
    Grundriss Küche_orginal.JPG
    109,6 KB · Aufrufe: 355
Hallo und herzlich willkommen.

Dein Palnungsvorschlag ist SEHR ungünstig. Wo willst du vorbereiten? Zwischen Spüle und Kochfeld ist kein Platz.

Das DAH Loch kann nicht verändert werden? wer hat sich nur sowas ausgedacht, Abfluss im Schacht, DAH Loch, da wo es ist. In welcher Höhe ist denn das Abflussrohr?

Existiert die Wohnung schon, sa dass du ein paar Bilder vom IST-Zustand machen könntest?

Bitte vermasse die Wasseranschlüsse.

gegen den Uhrzeigersinn von planoben rechts
Blende
60er HS mit KS
60er HS mit BO
60er GSP
60er US 3-3 mit Spüle
30er US 3-3 mit MUPL
totes Eck

100er US mit Kochfeld mittig

totes Eck
100er US
90er US
100er US
Sichtseite

viel Spielraum gibt es nicht.
 
Das ist ein wenig so, als wenn man zum Autohändler kommt und von
diesem sein Auto geplant bekommen will und ihm sagt "Reifen und
Sitze hab ich aber schon mal gekauft".

Da du diese Küche sicher jahrelang oder gar jahrzehntelang nutzen
willst, würde ich mich nicht um einige Handwerkerstunden scheren
sondern trotzdem eine optimale Küche planen, kaufen und einbauen.

Kann man die Tür noch um 5 - 8 cm versetzen? In dem Fall ginge
eine Front mit übertiefen Unterschränken (75 cm tief statt 60 cm).
Das bringt massiv Stauraum und Arbeitsfläche.
 
Überputz verlegtes Rohr.JPG
Hallo zusammen
Danke schonmal für eure Rückmeldung.

@Jürgen: Also die Türe zur Küche ist nur im Plan vorgesehen, aber wird in meiner Wohnung nicht eingebaut. Ich habe also einen offenen Übergang zum Wohnzimmer.
Wie meinst du genau die Variante mit der übertiefen Arbeitsplatte ? Das habe ich noch nicht genau verstanden. Wäre diese Lösung nur an der "oberen" Wand?

@Evelin: Dein Vorschlag klingt auch vernünftig, bezogen auf die ungünstigen Gegebenheiten.

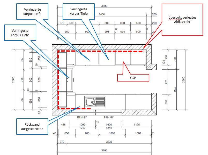
Ich habe jetzt mal noch überlegt, ob es möglich wäre, die Spüle auf die Fensterseite zu verlegen. In diesem Fall muss allerdings das Abflussrohr um eine ziemlich lange Strecke überputz verlegt werden. Eventuell könnte man in diesem Fall mit geringeren Korpustiefen arbeiten, oder die Schranke um den Rohrdurchmesser vorziehen.
Generell fehlt mir die Erfahrung, ob ein so langes Abflussrohr praktikabel ist. Rein vom erforderlichen Gefälle sollte es wohl klappen.

Hab mal ne Skizze angefertigt. Was haltet ihr davon. Sollte man diese Idee weiterverfolgen?
 
Hallo F3C1,

Ich bin kein leider nicht Meister Röhrich, aber 9 Meter Abfluss erscheien
mir etwas heftig. Ob das Gefälle noch ausreicht oder man mit extra Pumpe
in der Spüle (und dann den Abfluss flach im Sockel ?) arbeiten muss kann
ich dir nicht sagen.

Ich meinte mit Übertiefe vorallem die Unterschränke. Eine tiefere APL wäre
allerdings die Folge davon. Unterschränke gibt es (je nach Hersteller) meist
in den 'Standarttiefen' von rund 40, 60 und 75 cm Tiefe. Wenn du einen
2-Zeiler hinstellst könnte man so den relativ großen Innenraum in Stauraum
und Arbeitsfläche verwandeln.

Fragen wie die nach der Technik des Abflussrohres sind einer der Gründe,
warum wir immer um einen Plan der ganzen Etage bitten ...
 
Hallo, es wäre super, wenn du schreiben könntest, ob das DAH-Loch versetzt werden kann bzw. in welcher Höhe es ist, wie Evelin gefragt hat. Es wäre nämlich praktisch, das Kochfeld leicht versetzt gegenüber der Spüle anzubringen und dann einen 2-Zeiler zu planen. Dann hast du keine toten Ecken, die Geld kosten und die beiden Schränke, die auf den jeweiligen Seiten dann geplant werden können, nehmen mehr auf als der eine am Fenster.

Eine Zeile hat eine Tiefe, die sich nach der Tiefe der Unterschränke richtet. Die Unterschränke können aber auch ein Stück vorgezogen werden, um z.B. Rohre auf Putz zu verlegen. Es gibt aber auch tiefere Unterschränke, die dann allerdings auch mehr kosten. Das passt wahrscheinlich nicht in dein Budget. Weshalb Evelin nur vorgeschlagen hat, die Schränke vorzuziehen und eine tiefere Arbeitsplatte zu machen, weil es sich daran sehr gut arbeiten lässt. Man kann im vorderen Bereich arbeiten, hinten noch etwas abstellen bzw. die volle Tiefe zum Teig ausrollen nutzen.
 
ich habe nichts mit "vorgezogen"oder "Ubertiefe" gechrieben, dafür ist der Raum nicht breit genug.

Trotzdem würde mich interessieren, in welcher Höhe das Abwasser aus dem Schacht kommt. Denn ein kleinwenig Gefälle braucht und die HS können nicht vorgezogen werden.
 
Sorry @Evelin , das hatte ich dann wohl aus einem anderen Thread im Ohr.

Wenn man hier auf einen 2-Zeiler geht, könnte man aber durchaus die eine Seite übertief machen und hätte einen Komfort-Gewinn.
 
Danke schon mal so weit.
Das Versetzen des DAH-Auslass und die genaue Lage des Abflussrohres muss ich noch beim Bauträger erfragen. Die 2-Zeiler Anordnung wäre interessant, aber kann ich mir gerade noch nicht zu 100% vorstellen.
In diesem Fall müsste die Spüle ja auf jeden Fall in die "obere" Zeile wegen dem Abflussrohr in der oberen rechten Ecke. Hier könnten dann die erforderlichen Schränke um 60mm vorgezogen werden. Dann bekomme ich ein 50mm Rohr ohne Probleme unter, um die Spüle mit dem Abfluss zu verbinden.
Im oberen, rechten Eck, wären dann noch die 2 Hochschränke für Kühl-/Gefriereinheit sowie Backofen in "Arbeitshöhe "

Auf der "unteren" Zeile wäre dann das Kochfeld unterzubringen, allerdings wird dann die DAH wieder schwierig unterzubringen.

Gruß Mario
 
Hier mal ein erster Entwurf eines 2-Zeilers:

- Die BRH des Fensters sollte geändert werden (oder den unteren Rahmen
aufdoppeln), damit die APL ans Fenster läuft.

- als APL-Höhe sind es 92 cm. Das sollte bei 170 cm Körpergröße etwa
hinkommen - muss aber von dir und an dir nachgemessen werden. Es
wäre auch 2 verschiedene Arbeitshöhen (herd 5 cm weniger als Spüle)
möglich! Ein 6er Raster ist damit problemlos möglich.

- Planoben die Spüle und die HS

- Planunten Kochfeld und Auszugsschränke. Ich habe dir eine Decken-
haube in Trockenbau spendiert ;-) Über dessen Details sehen wir später.

- Muss der Trockenbau oben rechts bis zur Decke gehen? Wenn nicht,
würde ich die HS nach links stellen um die Küche offener zu gestalten.

- Den Schrank für GSP und Kompaktbackofen (sollte langen) muss
man sich immer zurechtbasteln.
 

Anhänge

  • F3C1 1 4.jpg
    F3C1 1 4.jpg
    34,7 KB · Aufrufe: 314
  • F3C1 1 GR.jpg
    F3C1 1 GR.jpg
    63,7 KB · Aufrufe: 311
  • F3C1 1 3.jpg
    F3C1 1 3.jpg
    74,7 KB · Aufrufe: 313
  • F3C1 1 2.jpg
    F3C1 1 2.jpg
    87,9 KB · Aufrufe: 307
  • F3C1.POS
    4,3 KB · Aufrufe: 228
  • F3C1.KPL
    3,9 KB · Aufrufe: 239
  • F3C1 1 1.jpg
    F3C1 1 1.jpg
    66,6 KB · Aufrufe: 301
... hier reiche ich noch den Gesamtgrundriss nach....
Grundriss gesamt.jpg
 
Hm, da der Balkon vor den Küchenfenstern ist, würde ich jetzt doch die U-Form bevorzugen bzw. das Kochfeld nicht ans Fenster packen.
Denn es ist sicher praktischer, wenn man Sachen auf der Arbeitsplatte abstellen kann und nicht erst rein und um die Ecke laufen muss.

Wie seht ihr das?
 
Hallo nochmal
Ich habe jetzt die Idee von euch über eine "2-Zeiler"-Anordnung nochmal aufgegriffen.
An der oberen Küchenseite würde ich alles um 70mm vorrücken, um den Wasserabfluss von GSP und Spüle darzustellen und dann eine tiefere AP nehmen.

An der Fensterseite finden 4x90er Unterschränke Platz. Über dem Kochfeld würde sich ein "Deckenabzug" wie von Schneeleopard vorgeschlagen, anbieten.
Die grünen Vasen symbolisieren die Küchenarbeitsgeräte, die permanent auf der AP stehen würden.
Generell gefällt mir diese Anordnung schon ganz gut. Aber was mache ich mit der frei gewordenen Wand. Wahrscheinlich wird man dort kein Fenster mehr einbringen können ;-)
2-Zeiler_V1.JPG
 
Mit Tafellack streichen und gestalten ;-). Auf jeden Fall müsste da eine Farbe hin, also im Kontrast zu den anderen Wänden.
 
So kannst du die für dich passende Arbeitshöhe ermitteln:
1. Vom angewinkelten Ellenbogen bis zum Boden messen und 15cm abziehen.
2. Vom Beckenknochen bis zum Boden messen.
3. Ausprobieren. (mit Bügelbrett, Kartons, Brettern auf Arbeitsplatte /Tisch)
Hier kannst du noch mehr Wissenswertes zur Arbeitshöhe nachlesen.

Die ersten beiden dienen der Orientierung und dann hilft nur ausprobieren und zwar nicht kurz dran stellen und ja, das geht schon. Sondern wirklich ausprobieren mit Schnippeln und allem, was man so macht, und das mal ein paar Tage lang. ;-)
 
Das wird so leider nicht klappen Mario :-(

Planunten: Die 360 cm sind Rohbaumass. davon musst du was
für Verputz, Fliesen, Tapete, Leisten usw abziehen. Dazu kommen
planlinks ~ 5 cm für eine Blende. Macht rund 350 cm und nicht
4 x 90 cm --> 360 cm.
Auch sieht es vom Wohn-/Essraum aus nicht soo gut aus wenn man
so schroff gegen die Seite des Unterschranks schaut.Bei meinem
Entwurf habe ich extra die Ansicht vom Wohn-/Essraum aus hochgeladen
um diese Ansicht darzustellen

Planoben ist der KS das Problem. An der Stelle hast du einen riesigen
Weg wenn du im WZ fernsiehst und dir ein kaltes Bier holen willst ;-)
Ausserdem sollte der MUPL nicht über 40 cm breit sein. Sonst klappt
das Konzept nicht mehr. Am besten oben im Mupl Restmüll vorne und
dahinter der Biomüll und beides so klein, dass man beides jeden zweiten
Tag rausbringt.
Den GSP solltest du um 2 oder 3 Raster hochsetzen, wenn er schon im
Hochschrank steht. Und du brauchst seitlich am GSP eine Wange.
 
Das sieht doch nach einem Neubau aus? Frag mal den Bauträger ob die Wasseranschlüsse überm Rohboden zur Fensterseite gegenüber verlegt werden können und DAH Loch weiter nach oben.
 
hier noch ein Vorschlag mit Deckenlüfter .

Planoben von links
Blende
60er KS
60er HS mit BO
60er GSP
60er US 3-3 (eventuell mit Innenschubalde)
90er US 3-3 mit Spüle links bündig eingebaut
Blende

planunten von links
Blende
50er US
100er US
100er US mit Kochfeld
100er US
Blende

Ich habe diese Aufteilung gewählt, damit das Kochfeld gegenüber der Arebitsfläche auf der Spülenseite ist.

Den 50er US planlinks habe ich gewählt, um Kleinkram zu verstauen. In breiten Schubladen gibt es leicht ein Chaos. Aber man kann diese Zeile auch anders zusammenstellen.

Den GSP habe ich nicht unter dem BO eingebaut, wäre mir zu weit.

F3C01.JPG F3C02.JPG F3C03.JPG
 

Anhänge

  • F3C1_Evelin_PLAN1.KPL
    3,9 KB · Aufrufe: 240
  • F3C1_Evelin_PLAN1.POS
    6 KB · Aufrufe: 218
Hallo Evelin

Danke für deine Ausarbeitung, das sieht sehr sehr gut aus. Das trifft man Vorstellungen schon recht genau.

Noch ein paar ergänzende Infos.
Der Wasserabfluss kommt definitiv planoben rechts hin, da dort der Versorgungsschacht läuft. Ein Verlegen nahezu unmöglich, da sehr aufwendig. In der Höhe sitzt er ziemlich weit unten, also Höhe Sockelleiste .
Auslass für DAH kann an der linken Wand entweder hoch oder runter gesetzt werden.
In der jetzigen Planung wäre es auf Grund der Kochfeldlage sowieso egal.

Von der Aufteilung würde ich nur noch GSP und MüAPL für meine Bedürfnisse optimieren.

Der Blick vom Wohnzimmer wäre für mich auf jeden Fall o.K., auch wenn man direkt auf die Küchenseite schaut. Evtl. kann man das schön verkleiden (APL weiterziehen etc..)
 
wenn der Wasseranschluss an der Wand planoben sein wird OHNE irgendwelche US zu kürzen oder vorzuziehen und nicht am Schacht ausser dem Abfluss könnte man von planlinks

welche Reihenfolge möchtest du planoben? Denn das bestimmt die Reihenfolge am Fenster?
 

Ähnliche Beiträge

Neff Hausgeräte Ballerina Küchen Blum Bewegungstechnologie Weibel - Intelligente Küchenlüftung

Neff Spezial

Blum Zonenplaner

Weibel Abluft-Tuning

Weibel Abluft-Tuning
Zurück
Oben