laschnute
Mitglied
- Beiträge
- 8
Quadratische Familienküche im Neubau
Hallo liebe Küchenbegeisterte,
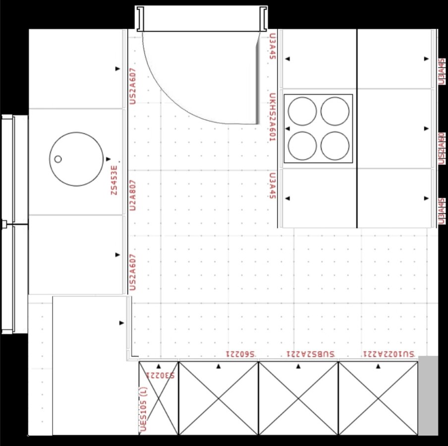
wir fangen grad an, unser EFH zu bauen und möchten uns so langsam an die konkrete Küchenplanung machen. Die offene Küche misst ziemlich genau 3,06 x 3,08 m und hat verschwenderischerweise zwei Fenster, wovon das eine (planoben) fast bodentief ist (allerdings nur fast, ist also eher ein Sitzfenster als eine Balkontür). Dieses Fenster haben wir erst vor kurzer Zeit hinzugefügt, davor hatten wir länger eine U-Küche ins Auge gefasst. Dann kam aber der Wunsch nach mehr Licht und Ausblick in den Garten beim Werkeln in der Küche, daher haben wir das große Fenster noch eingeplant und tendieren nun zu einer L-Küche mit Hochschränken an der einen Seite und Halbinsel gegenüber der Unterschrankzeile.
Ich habe nur die Befürchtung, dass der Arbeitsfläche nun doch etwas knapp wird, da wir den Platz links der Spüle (wo auch der GSP stehen soll) wahrscheinlich schon häufig mit benutztem Geschirr füllen werden. Zum schnippeln bleiben dann nur die relativ kleinen Flächen rechts (planoben) der Spüle und um das Kochfeld herum. Außerdem hab ich tierisch Angst, dass die Wege zu schmal und die ganze Küche zu beengt wird. Was meint ihr dazu? Über Anregungen und (konstruktive) Kritik freuen wir uns!
Folgende Punkte sind uns noch wichtig: keine Oberschränke - lieber ein offenes Regalbrett, mir ist das sonst immer zu wuchtig. Backofen und sämtliches Geschirr in Hochschränken. Unseren Stand-Alone-Kühlschrank mit 70 cm Breite haben wir vor nicht allzu langer Zeit gekauft, daher werden wir ihn wahrscheinlich mitnehmen...obwohl ich sehr sehr gerne einen integrierten hätte...das wird letztlich eine Preisfrage werden. Geplant habe ich jetzt erstmal mit integriertem. Von den erhöhten GSP habe ich hier das erste Mal gelesen - ich bin mir gar nicht sicher, wie viel praktischer das ist und ob das bei uns überhaupt geht. Als Spülbecken hätte ich schrecklich gern so einen Spülstein aus Keramik (wenn preislich im Rahmen), sonst stellen wir uns optisch glatte dunkelgraue Fronten und eine Echtholzarbeitsplatte vor und erhoffen uns davon einen modernen und dennoch organischen Look.
Checkliste zur Küchenplanung
Personenkriterien und Ergonomie
Anzahl Personen im Haushalt: 4
Davon Kinder: 2
Körpergrößen aller Hauptbenutzer in cm (wegen Arbeitshöhe ): 160, 176
Welche Arbeitshöhe ist angedacht (in cm)?: Uh, hab noch nicht gerechnet/getestet. Das wird nachgeholt! Aber da wir eher klein sind, tut's vermutlich die Standardhöhe.
Gebäudekriterien
Art des Gebäudes: Neu-/Umbau > Planänderungen möglich
Brüstungshöhe des Fensters (in cm): 119 cm (planlinks), 40 cm (planoben)
Fensterhöhe (in cm): 112,5 cm (planlinks), 206,5 cm (planoben)
Raumhöhe in cm: 260 cm
Heizung: Fußbodenheizung
Sanitäranschlüsse: variabel an aktueller Wand
Einbaugerätekriterien
Ausführung Kühlgerät: Stand-Alone bis 75cm Breite
Einbaukühlgerät Größe: Noch unbekannt
Ausführung Tiefkühl (TK)-Gerät: Im Kühlschrank bis 2 Schubladen unten
Dunstabzugshaube: Abluft
Hochgebauter Backofen : ja
Geplante Heißgeräte: Einbaumikrowelle, Backofen
Hochgebauter Geschirrspüler : wenn möglich
Art des Kochfeldes: Induktion
Kochfeldbreite (ca. in cm): 70
Sitzmöglichkeiten
Sitzmöglichkeit in der Küche / im Küchenbereich: Keine
Sitzmöglichkeit: Für wieviel Personen?: N. a.
Sitzmöglichkeit: Tisch - wenn gesonderter Tisch oder offene Küche: Wird nach Bedarf neu gekauft
Gewünschte oder vorhandene Tischgröße:
Wofür soll der Sitzplatz in der Küche genutzt werden und wie häufig:
Stauraumplanung
Was steht auf der Arbeitsplatte oder soll dort stehen?: Wasserkocher, Toaster, Brotbehälter, Obstschale
Welche weiteren Küchenmaschinen müssen in der Küche untergebracht werden: Küchenmaschine, Handrührgerät, Mixer, Pürierstab
Was soll in der Küche außer den Standards untergebracht werden: ALLE Vorräte, Geschirr komplett (nichts in Ess-/Wohnzimmer)
Welchen Stauraum gibt es sonst noch: Hauswirtschaftsraum
Kochgewohnheiten
Was/wie wird gekocht? (Alltagsküche, Menüs, Snacks usw): familientaugliche Alltagsküche trifft es ganz gut, aber eher nur am Wochenende
Wie häufig wird gekocht: (fast) täglich 1x warm
Wird alleine gekocht? Oder auch gemeinsam? Mit und für Gäste?: Auch gemeinsam mit Kindern, oder wir zu zweit, oder auch mal mit Gästen
Spülen und Müll
Spülenform: 1 Becken ohne Abtropffläche
Welche Mülltrennung soll in der Küche vorgehalten werden: Biomüll, Gelber Sack Müll, Restmüll
Sonstiges
Steht schon ein Küchenhersteller fest oder wird bevorzugt: Nein
Steht schon ein Gerätehersteller fest oder wird bevorzugt: Nein
Küchenstil: Klassisch
Was stört an der bisherigen Küche und was soll die neue Küche unbedingt können? Warum?:
Preisvorstellung (Budget): bis 10.000 € (hoffentlich), es muss keine Premiumküche sein
Angehängte Dateien
Hallo liebe Küchenbegeisterte,
wir fangen grad an, unser EFH zu bauen und möchten uns so langsam an die konkrete Küchenplanung machen. Die offene Küche misst ziemlich genau 3,06 x 3,08 m und hat verschwenderischerweise zwei Fenster, wovon das eine (planoben) fast bodentief ist (allerdings nur fast, ist also eher ein Sitzfenster als eine Balkontür). Dieses Fenster haben wir erst vor kurzer Zeit hinzugefügt, davor hatten wir länger eine U-Küche ins Auge gefasst. Dann kam aber der Wunsch nach mehr Licht und Ausblick in den Garten beim Werkeln in der Küche, daher haben wir das große Fenster noch eingeplant und tendieren nun zu einer L-Küche mit Hochschränken an der einen Seite und Halbinsel gegenüber der Unterschrankzeile.
Ich habe nur die Befürchtung, dass der Arbeitsfläche nun doch etwas knapp wird, da wir den Platz links der Spüle (wo auch der GSP stehen soll) wahrscheinlich schon häufig mit benutztem Geschirr füllen werden. Zum schnippeln bleiben dann nur die relativ kleinen Flächen rechts (planoben) der Spüle und um das Kochfeld herum. Außerdem hab ich tierisch Angst, dass die Wege zu schmal und die ganze Küche zu beengt wird. Was meint ihr dazu? Über Anregungen und (konstruktive) Kritik freuen wir uns!
Folgende Punkte sind uns noch wichtig: keine Oberschränke - lieber ein offenes Regalbrett, mir ist das sonst immer zu wuchtig. Backofen und sämtliches Geschirr in Hochschränken. Unseren Stand-Alone-Kühlschrank mit 70 cm Breite haben wir vor nicht allzu langer Zeit gekauft, daher werden wir ihn wahrscheinlich mitnehmen...obwohl ich sehr sehr gerne einen integrierten hätte...das wird letztlich eine Preisfrage werden. Geplant habe ich jetzt erstmal mit integriertem. Von den erhöhten GSP habe ich hier das erste Mal gelesen - ich bin mir gar nicht sicher, wie viel praktischer das ist und ob das bei uns überhaupt geht. Als Spülbecken hätte ich schrecklich gern so einen Spülstein aus Keramik (wenn preislich im Rahmen), sonst stellen wir uns optisch glatte dunkelgraue Fronten und eine Echtholzarbeitsplatte vor und erhoffen uns davon einen modernen und dennoch organischen Look.
Checkliste zur Küchenplanung
Personenkriterien und Ergonomie
Anzahl Personen im Haushalt: 4
Davon Kinder: 2
Körpergrößen aller Hauptbenutzer in cm (wegen Arbeitshöhe ): 160, 176
Welche Arbeitshöhe ist angedacht (in cm)?: Uh, hab noch nicht gerechnet/getestet. Das wird nachgeholt! Aber da wir eher klein sind, tut's vermutlich die Standardhöhe.
Gebäudekriterien
Art des Gebäudes: Neu-/Umbau > Planänderungen möglich
Brüstungshöhe des Fensters (in cm): 119 cm (planlinks), 40 cm (planoben)
Fensterhöhe (in cm): 112,5 cm (planlinks), 206,5 cm (planoben)
Raumhöhe in cm: 260 cm
Heizung: Fußbodenheizung
Sanitäranschlüsse: variabel an aktueller Wand
Einbaugerätekriterien
Ausführung Kühlgerät: Stand-Alone bis 75cm Breite
Einbaukühlgerät Größe: Noch unbekannt
Ausführung Tiefkühl (TK)-Gerät: Im Kühlschrank bis 2 Schubladen unten
Dunstabzugshaube: Abluft
Hochgebauter Backofen : ja
Geplante Heißgeräte: Einbaumikrowelle, Backofen
Hochgebauter Geschirrspüler : wenn möglich
Art des Kochfeldes: Induktion
Kochfeldbreite (ca. in cm): 70
Sitzmöglichkeiten
Sitzmöglichkeit in der Küche / im Küchenbereich: Keine
Sitzmöglichkeit: Für wieviel Personen?: N. a.
Sitzmöglichkeit: Tisch - wenn gesonderter Tisch oder offene Küche: Wird nach Bedarf neu gekauft
Gewünschte oder vorhandene Tischgröße:
Wofür soll der Sitzplatz in der Küche genutzt werden und wie häufig:
Stauraumplanung
Was steht auf der Arbeitsplatte oder soll dort stehen?: Wasserkocher, Toaster, Brotbehälter, Obstschale
Welche weiteren Küchenmaschinen müssen in der Küche untergebracht werden: Küchenmaschine, Handrührgerät, Mixer, Pürierstab
Was soll in der Küche außer den Standards untergebracht werden: ALLE Vorräte, Geschirr komplett (nichts in Ess-/Wohnzimmer)
Welchen Stauraum gibt es sonst noch: Hauswirtschaftsraum
Kochgewohnheiten
Was/wie wird gekocht? (Alltagsküche, Menüs, Snacks usw): familientaugliche Alltagsküche trifft es ganz gut, aber eher nur am Wochenende
Wie häufig wird gekocht: (fast) täglich 1x warm
Wird alleine gekocht? Oder auch gemeinsam? Mit und für Gäste?: Auch gemeinsam mit Kindern, oder wir zu zweit, oder auch mal mit Gästen
Spülen und Müll
Spülenform: 1 Becken ohne Abtropffläche
Welche Mülltrennung soll in der Küche vorgehalten werden: Biomüll, Gelber Sack Müll, Restmüll
Sonstiges
Steht schon ein Küchenhersteller fest oder wird bevorzugt: Nein
Steht schon ein Gerätehersteller fest oder wird bevorzugt: Nein
Küchenstil: Klassisch
Was stört an der bisherigen Küche und was soll die neue Küche unbedingt können? Warum?:
Preisvorstellung (Budget): bis 10.000 € (hoffentlich), es muss keine Premiumküche sein
Angehängte Dateien
Anhänge
