Unbeendet Küchenplanung Neubau EFH

exto91

Mitglied
Beiträge
31
Küchenplanung Neubau EFH

Guten Tag,

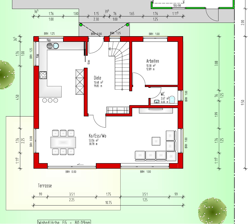
meine Freundin und ich starten im Mai 2021 unser Projekt: Einfamilienhaus. Bis März sollte unser Küchenplan größtenteils stehen - so dass auch die entsprechenden Anschlüsse von unserem GU vorgesehen werden können. Aufgrund der aktuellen Corona-Lage haben leider alle Küchenstudios geschlossen - gerne würden wir uns vorab hier beraten lassen, uns Insipirationen/Tipps/Hilfe holen um dann voller Tatendrang im neuen Jahr los legen zu können :-)

Wir haben eigentlich lediglich 2 Bedingungen/Anmerkungen die wir uns wünschen.

- Herd an der Wand und nicht mitten im Raum
- Spüle sollte vor dem Fenster sein (wie auch im möblierten Grundriss bereits eingezeichnet) - so dass man auf den Hof schauen kann

Sollte dies aber "keinen Sinn" machen, oder auch anders bzw. besser gelöst werden können - sind wir natürlich offen für Vorschläge und Ideen in wirklich jedem Bereich! Wir möchten uns einfach mal inspirieren lassen von euern Ideen um so für uns genau zu wissen, was alles möglich ist und was für uns persönlich am besten passen könnte.

Anbei 2 Grundrisse:

1x mit Möbel und 1x ohne Möbel.

Bitte beachten: Die eingezeichnete GlasSCHIEBEtüre kommt nicht zu tragen. Hier wird eine "normale" Türe zum Einsatz, ob aus Glas oder Holz ist noch nicht save. Somit bitte den Türanschlag beachten - eventuell auch überlegen ob TA links oder rechts Sinn macht.

So in etwa stellen wir uns unsere Küche vor - kann natürlich auch sein, dass es zick bessere Lösungen gibt , da wir auch noch totale Laien im Bereich Küchenplanung sind.

Über eure Hilfe sind wir schon vorab dankbar.

Viele Dank und viele Grüße!

Checkliste zur Küchenplanung

Personenkriterien und Ergonomie
Anzahl Personen im Haushalt:
2
Davon Kinder: 2
Körpergrößen aller Hauptbenutzer in cm (wegen Arbeitshöhe ): 170cm & 165cm
Welche Arbeitshöhe ist angedacht (in cm)?: Noch keine Gedanken darüber gemacht

Gebäudekriterien
Art des Gebäudes:
Neu-/Umbau > Planänderungen nicht möglich
Brüstungshöhe des Fensters (in cm): 125cm
Fensterhöhe (in cm): 100
Raumhöhe in cm: 255
Heizung: Fußbodenheizung
Sanitäranschlüsse: vollkommen variabel

Einbaugerätekriterien
Ausführung Kühlgerät:
Integriert im Hochschrank (60cm)
Einbaukühlgerät Größe: Noch unbekannt
Ausführung Tiefkühl (TK)-Gerät: Im Kühlschrank als kleines Fach oben
Dunstabzugshaube: Abluft
Hochgebauter Backofen : wenn möglich
Geplante Heißgeräte: Standmikrowelle, Backofen
Hochgebauter Geschirrspüler : nein
Art des Kochfeldes: Induktion
Kochfeldbreite (ca. in cm):

Sitzmöglichkeiten
Sitzmöglichkeit in der Küche / im Küchenbereich:
Überstehende Arbeitsplatte
Sitzmöglichkeit: Für wieviel Personen?: Für 2 Personen
Sitzmöglichkeit: Tisch - wenn gesonderter Tisch oder offene Küche: Keiner
Gewünschte oder vorhandene Tischgröße:
Wofür soll der Sitzplatz in der Küche genutzt werden und wie häufig:
Für Unterhaltungen während dem Kochen und Kaffee

Stauraumplanung
Was steht auf der Arbeitsplatte oder soll dort stehen?:
Kaffeemaschine, Wasserkocher, Messerblock, Küchenmaschine, Toaster, Brotbehälter
Welche weiteren Küchenmaschinen müssen in der Küche untergebracht werden: Allesschneider (z.B. in Schublade), Handrührgerät, Mixer, Pürierstab, Eierkocher
Was soll in der Küche außer den Standards untergebracht werden: Geschirr komplett (nichts in Ess-/Wohnzimmer)
Welchen Stauraum gibt es sonst noch: Keller

Kochgewohnheiten
Was/wie wird gekocht? (Alltagsküche, Menüs, Snacks usw):
Alltagsküche
Wie häufig wird gekocht: (fast) täglich 1x warm
Wird alleine gekocht? Oder auch gemeinsam? Mit und für Gäste?: Auch gemeinsam

Spülen und Müll
Spülenform:
Noch nicht festgelegt
Welche Mülltrennung soll in der Küche vorgehalten werden: Biomüll, Gelber Sack Müll, Restmüll

Sonstiges
Steht schon ein Küchenhersteller fest oder wird bevorzugt:
nein
Steht schon ein Gerätehersteller fest oder wird bevorzugt: nein
Küchenstil: Klassisch
Was stört an der bisherigen Küche und was soll die neue Küche unbedingt können? Warum?: Neubau Küche
Preisvorstellung (Budget): 18.000

Angehängte Dateien
 

Anhänge

  • eg - ohne Möbel.jpg
    eg - ohne Möbel.jpg
    97,7 KB · Aufrufe: 345
  • eg.jpg
    eg.jpg
    148 KB · Aufrufe: 337
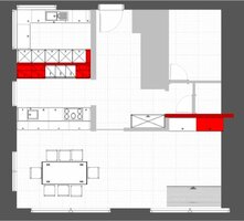
Hallo und herzlich willkommen

der für die Küche vorgesehene Raum hat die Standardmaße einer Stadtvilla, zu breit, für das geplante layout, zu schmal für eine Küche mit Wandzeile und paralleler Insel (Flugzeugträger ) und insgesamt sind die 537cm zu lang. Es ist mit sehr viel Lauferei verbunden.

Knoby im Forum hat genauso eine Stadtvilla, sogar etwas kleiner, etwas individueller, aber das L (Küche/Essen/Wohnen) ist von der Form her identisch. Er wollte das gleiche wie ihr machen, wir haben ihm abgeraten.

Am Ende kam eine 2. Raum dazu, ein HWR /Speise/snug/TV room ....

Ich habe das mal auf euren Wohnraum angepasst.

exto1.jpgexto2.jpg

ach so, bevor ich es vergesse, die Tür der Toilette sollte nach außen öffnen. Kippt jemand um in der Toilette, müsst ihr die Feuerwehr sonst holen.
 
Zuletzt bearbeitet:
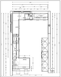
wenn ihr euer gewünschtes layout móchtet, so würde ich planoben rechts vom Fenster den KS und den GSP erhöht einbauen. Ansonsten wäre der Weg vom KS zur Spüle zu weit.

Die Kochzeile ist 70cm tief.

Bis auf den US unterm Kochfeld (100cm), dem Insel US (80cm) ist der Rest 60cm breit.

Zwischen Kochfeld und HS planrechts sind es knapp 2m.

exto21.jpgexto22.jpgexto23.jpg
 
Hallo Evelin,

vielen Dank für die ausgearbeitete Planung! Variante 2 gemäß unserem Grundriss, der auch nicht mehr geändert werden kann/möchte, gefällt uns wirklich sehr gut, prinzipiell ähnlich dem, der bei uns bereits eingezeichnet war/ist.

Kurze Frage bezüglich KS "im Eck": Wie von mir erwähnt kommt hier leider doch keine Schiebetüre zum Einsatz, sondern eine "normale" Glastüre. Macht dies dann trotzdem noch Sinn, oder könnte die Türe hier störend sein?

Außerdem stellt sich für mich die Frage, wieso es Sinn macht, den KS "nah" an die Spüle zu bringen? Was genau verbindet den KS mit der Spüle oder dem GS?

Macht es nicht Sinn den KS nah an den Wohn/Essbereich zu machen oder eher noch nah an das Kochfeld?

Ansonsten gefällt uns die Planung sehr gut und ich denke, dass sich damit sehr gut arbeiten lässt.

Uns ist klar, dass wir aufgrund der enormen Größe der Küche mehr Laufwege haben, als eventuell "ergonomisch" , bzw. praktikabel ist. Finde es jedoch nicht sonderlich schlimm... Dadurch haben wir unglaublich viel Arbeitsfläche was sehr praktisch sein kann, vor allem auch mit 2 Kindern, Besuchern oder auch "Gemeinschaftskocherei".

Ein kleiner Sitzbereich - bei der "Theke" zum Esstisch hin - wäre natürlich noch schön - macht dies Sinn? So wie wir das im Grundriss eignezeichnet hatten?
 
du kannst den KS auch in den 3er block stellen, ich bin nur die Bequemlichkeit gewöhnt, meinen KS in Greifnähe zu haben.

Ob du jetzt eine Theke oder US an der Inselrückseite hast, ist egal, kannst du so oder so machen.
 
wenn du dir meinen letzten Beitrag in Phlox' Küche anschaust, sieht man gut, welchen Unterschied 25cm mehr in der Raumbreite ausmachen, besser 50cm mehr.

Man kann eine praktische Küche mit kurzen Wegen planen, der Stauraum ist in etwa identisch zu meiner Planung in #3.
 
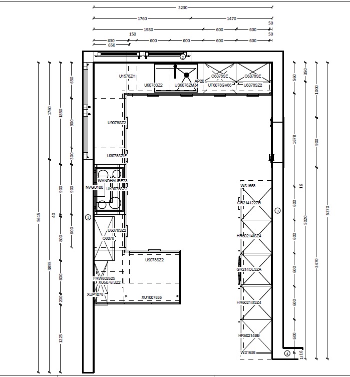
Guten Tag zusammen,

wir haben nun mal unser 1. Angebot von dem 1. Küchenstudio erhalten.

Vorab: Die Küche soll definitiv nicht so aussehen - ist der Corona-Zeit geschuldet - leider kann man sich nicht persönlich treffen :-)

Uns ist die Hochschrankreihe viel zu bollig und außerdem ist die Küche auch viel zu lang bzw. zu groß. Wir werden auch aufgrund unseres Grundrisses deutlich reduzieren und eventuell sogar die Theke entfallen lassen.

Was mich allerdings interessiert: Wie findet ihr den Preis? Wir hatten zuvor ein Angebot über eine Schüller Küche, allerdings in Lackoptik - deutlich kleiner geplant mit deutlich weniger Oberschränken sowie auch Hochschränken und lagen hier bereits bei 18.000€. Wir hatten damals das ein oder andere bessere Gerät verbaut, z.B. Geschirrspüler und Backofen , ansonsten aber deutlich minimierter. Bin total überrascht. Liegt es wirklich an dem Schüller-Programm Nova? Sprich: Fronten aus Melaminharz (was wir ziemlich sicher wollen, sehe außer dem aktuellen Trend für uns keinen Vorteil an einer Lack-Küche).

Was mich außerdem noch interessieren würde:

--> Abstand zwischen Theke und Hochschrank auf der gegenüberliegenden Seite beträgt laut Plan und letztlich auch so in der Realität 1075mm - ist das zu wenig? Sehe da tatsächlich ein Problem, so dass wir überlegen die Theke zu verkleinern oder eventuell auch ganz zu entfernen. Wie groß sollte hier der Abstand sein?

--> Dunstabzugshaube in Oberschrank integriert: sinnvoll bzw. gibt es hier irgendwelche Nachteile ggü. einer freien Dunstabzugshaube?

--> Wie findet ihr den Preis für diese Ausstattung bzw. diese Küche allgemein? Ich finde den wirklich super und bin schon gespannt, was für Preise wir von den anderen angefragten Küchenstudios zur selben Küche bekommen (zumindest ähnlich - Hersteller ist der selbe). Zur Info: Die Tischplatte ist aus CPL in Marmoroptik - ist also keine Steinplatte.

Gerne auch noch zusätzliche Infos/Anregungen die uns weiter helfen könnten.

Anbei findet ihr alle notwendigen Planungsdaten und das Angebot, sowie auch den Grundriss. Hier sieht man auch ganz genau wie weit nach unten die Küche geplant ist... Hier müssen definitiv zwischen 70-100cm verkürzen.
 

Anhänge

  • Angebot.jpg
    Angebot.jpg
    107,2 KB · Aufrufe: 266
  • Plan - Küche.jpg
    Plan - Küche.jpg
    136,8 KB · Aufrufe: 258
  • Grundriss.jpg
    Grundriss.jpg
    97 KB · Aufrufe: 274
Zuletzt bearbeitet:
wenn du was zu den Geräten wissen möchtest, dann musst du sie verlinken. Ich habe mir nur mal die Spüle angeschaut, da wollte ich eine Klasse besser haben.

Wie ist der KFB auf diesen Vorschlag gekommen? Vermutung, du hast ihm deinen EG Plan geschickt und gesagt, mach mal?

Ich hätte ganz arge bedenken, wenn mir ein KFB schreibt

1610521446164.jpg
und das Gerät ist kein BORA sondern ein normales Bosch Kochfeld? schon etwas seltsam, denn er schreibt auch was von einer Haube? Bora Sind Kochfelder mit Muldenlüfter , nix Haube?

mir ist aufgefallen, dass er rechts und links des Kochfeldes 120er US gestellt hat, würde ich nicht machen, zu breit.

Du kannst einen HS weniger stellen, aber das war's dann schon. Leider ist die Küchentür zu weit unten, das macht die Lauferei auch nicht weniger. Man läuft halt immer kreu und quer.

Die Spüle ist falsch rum eingezeichnet.

Der Abstand mit 1m reicht.
 
Zuletzt bearbeitet:
Alles klar. Spüle wollten wir eigentlich sowieso aus Granit - da hatten wir unserem ursprünglichen Angebot auch eine andere drin. Meinst du mit einer Klasse besser auch die Materialänderung von Edestahl --> Granit oder einfach ein anderes Modell? Was hältst du von Edelstahl?


Wir haben dem KFB unseren Grundriss ohne Möbel geschickt - ihm in etwa gesagt was wir möchten und dadurch wurde diese Küche so geplant, wie sie jetzt ist.

Ich vermute, dass der KFB hier sich "verschrieben" hat und "Bosch " anstatt "Bora " meint - da er nämlich einen Einbaudunstabzug geplant hat und es somit kein Bora-Abzug ist.

Okay, meinst du 120er Schränke sind zu breit? Sehe es bei meinem Dad in seiner neuen Küche auch (der KFB hat uns dies aber unabhängig von unseren Angaben angeboten) und finde das ganz praktisch, vor allem für Töpfe und Pfannen. Aber ja, wenn wir die Küche verkleinern möchten, müssen wir hier sowieso einsparen. Würdest du dann 100er US machen?

Wieso einen HS weniger? Wir planen eigentlich mit 1x Kühlschrank, 1x Backofen und 1x Vorratsschrank - mehr wird denke ich nicht unbedingt benötigt, die Küche sollte Platz genug bieten meiner Meinung nach.

Wir wissen dass wir einen "Schlauch" haben, nichtsdestotrotz müssen wir das beste raus holen. Wir wissen, dass es nicht 100% ergonomisch ist und sich deutlich mehr Laufwege ergeben, als bei anderen Grundrissen. Damit müssen wir uns abfinden.

Spüle falsch rum, korrekt.. :-)

Bist du dir sicher mit dem 1m Abstand? Wenn ich bei mir in der aktuellen Wohnung vor dem Kühlschrank stehe benötige ich auf jeden Fall zwischen 95-100cm Platz (Kühlschrank bis gegenüberliegendem Schrank). Wir haben aktuell 118cm Platz. Wenn ich mir vorstelle nur 100cm Platz zu haben, würde ich mich da glaube ich etwas beengt fühlen... Wir sind uns in diesem Bereich tatsächlich sehr sehr unsicher und überlegen nur aus diesem einen Grund die Theke eventuell zu entfernen. Machen wir uns hier umsonst sorgen?
 
Spüle, besseres Model wie die Etagon, ist eine Edelstahlspüle.

Ich weiß nicht, wieviel Stauraum ihr braucht, ob 3 HS reichen oder 4 nötig sind.

Preislich dürfte zwischen 100er und 120er kein so großer Unterschied sein, die Auszüge sind dadurch nicht anders. Ob da vorne und hinten etwas mehr Holz ist, ist weniger kostspielig.

ABER, das ist eigentlich irrelevant wegen des Fensters. Man kann keinen 100er stellen, der Abstand zur Ecke muss 120cm sein. Ich würde anstelle des 120er 2 x 60er stellen, es ist praktischer, weil nicht eine komplette Fläche von 120cm blockiert wird.

Stelle anstelle des 90er US einen 80er US in die Insel.

Theke oder nicht, ich würde sie lassen, weil der Raum lang ist, so wird etwas gefüllt.

exto21.jpg

anstelle des 120er links vom Kochfeld kannst du einen 60er US stellen, somit reduzierst du die Länge der Küche um 60cm und es sieht einigermaßen symetrisch aus.

Den KS stellst du ans obere Ende, in der Mitte den BO.
 
Danke für den Hinweis mit der Spüle!

Ja, denke der Stauraum ist natürlich auch abhängig von der Anzahl der US. Wenn wir natürlich alles auf 60cm verkürzen, bzw. einiges verringern, benötigen wir eventuell mehr Platz, das ist halt noch die Frage.

Super Infos, auch bezüglich des Fensters, danke!!

Sehen wir auch so mit der Theke. Lockert den Raum extrem auf, sonst wirkt das ganze eher wie ein langer Korridor...

Nochmals bezüglich 1m Abstand zwischen 2 "Blöcken" - ist das definitiv ausreichend? Bin da irgendwie total skeptisch. Angenommen ich würden KS eher weiter in Richtung Esszimmer stellen (als nicht ganz oben sondern ganz unten) und würde somit direkt gegenüber von der Theke stehen - wäre dann 1m ausreichend?
 
du musst eine Stauraumplanung machen.

47.5 x 52cm ist die nutzbare Fläche eines 60er Auszugs. Klebe dir diese Fläche auf deinem Tisch ab. Fülle die Fläche, mach ein Bild, räum's weg und fülle den "nächsten Auszug". Das ist nicht viel Arbeit, hilft aber ungemein.

Häcker Systemat Maße.jpg Schüller C2 Auszüge 1.JPG

hier die Innenhöhen von Auszügen

nochmal, wenn du dich besser fühlst, nimm einen 80er US in die Insel. Das macht keinen großartigen Unterschied

Du hast doch einen KS daheim, stell einen Stuhl im Abstand von einem Meter und 110cm.
 
Sehr gute Idee, vielen Dank! Denke auch, dass wir dann die Insel verkleinern werden, so dass wir einen Abstand von 110 oder 120cm generieren - das sollte ausreichend sein.
 
Was sagt ihr zum Hersteller Schüller mit seiner Linie "C"? Taugt die was? Sind bei dieser Küche dann 17.000€ angemessen? Wir hatten zu Beginn überlegt die next125 Reihe zu wählen, allerdings ist die laut einem Möbelhersteller um Welten teurer und es handelt sich wohl hierbei um den Mercedes AMG der Küchen, die unter 30.000€ nicht zu kriegen sind. Stimmt diese Aussage?

Ich habe ein weiteres Angebot über eine ähnliche Küche vom Hersteller Häcker systematic. Laut "clever küchen kaufen - Buch" ist diese Linie von Häcker gleichzustellen mit next125 von der Qualitätsstufe. Ist das richtig?

Wie vergleicht ihr die 3 "Hersteller" bzw. "Linien" miteinander?

Sprich: Schüller C, Schüller next125 und Häcker systematic?

Gibt es hier ein separaten Bereich im Forum oder bereits irgendwelche Threads zur Information? Finde hier leider nichts.

Würde mich sehr interessieren, wie sich die Preise in Bezug auf die Qualität rechtfertigen und was mehr Sinn macht.
 
Und gibt es hier noch Infos bezüglich der Einbaugeräte?

Kann man pauschal sagen, dass Neff -Geräte besser sind als Bosch -Geräte?
 
Bin aktuell am Vergleichen der Einbaugeräte die mir von 2 Küchenstudios angeboten wurden.
Vergleiche aktuelle Preise anhand von idealo (ich weiß, ist durchaus schwierig zu vergleichen, allerdings sind meiner Meinung nach die UVP's von 2 unterschiedlichen Herstellern auch sehr schwer miteinander zu vergleichen). Oder was meint ihr? Was macht mer Sinn? Ist diese Vorgehensweise tatsächlich so sinnvoll?

Bosch - HBG 672BS 1 Edelstahl730,00 €Bosch - SBD4EB800E1.240,00 €Bosch - KIL 24 V 62640,00 €Bosch - PXV895DV5E1.100,00 €Bosch - DFR097A52475,00 €Blanco - Classimo XL 6 S-IF250,00 €Blanco - Lomis-S Edelstahl mit Brausezug180,00 €4.615,00 €
Neff - B17CR22G0 (alt: B17CR22N1)1.035,00 €Neff - S255HB800E1.025,00 €Neff - KI8826DE01.350,00 €Neff - T68TS6RN02.320,00 €Neff - D95IHM1S0565,00 €Blanco - Classimo XL 6 S-IF250,00 €Blanco - Lanora-S Edelszahl mit Brausezug155,00 €6.700,00 €


So komme ich auf eine Differenz von ca. 2.000€. Ihr dürft mich aber gerne berichtigen, wie gesagt, ist schwer zu vergleichen...

Für mich sieht es aber trotz alle dem so aus, als sind die Neff-Geräte an sich deutlich hochwertiger und rechtfertigt sicherlich einen Preisunterschied in der Planung zwischen 1.000-1.500€ - was meint ihr?
 
Neff und Bosch sowieso Siemens sind im Grunde die gleichen Geräte. Ich weiß jetzt nicht, ob die Geräte bei dir die exakt gleichen sind oder ob die Geräte von Neff mehr können.
 
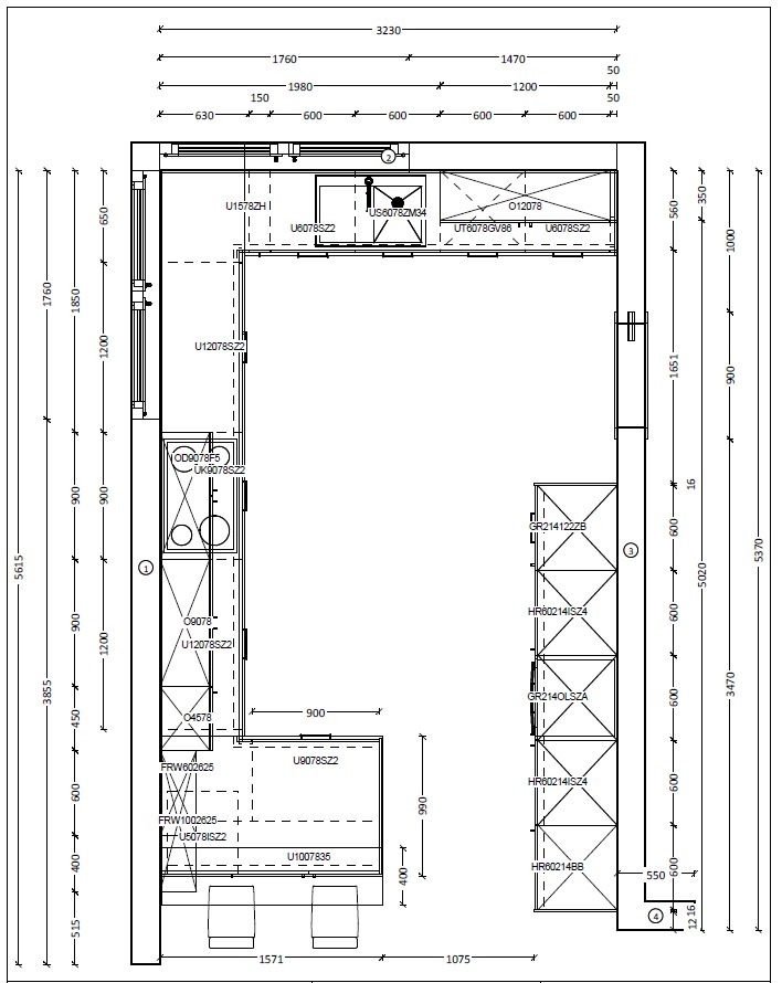
Guten Tag zusammen,

gerne möchte ich nochmals den Thread aufrollen und unsere aktuelle Küchenplanung präsentieren.

Wir sind unglaublich begeistert davon und ich glaube, dass nun das Beste herausgeholt wurde.

Haben uns auch an die Tipps von Evelyn gehalten. Was wir besonders schön finden, bzw. als TOP-Idee: Die Einmauerung/Vorbauwand für die "Hochschrankwand". Auf dem Bild leider noch nicht so wie wir es wollen (planen aktuell, dass die Geräte ca. 10-15cm weit heraus stehen, gefällt uns optisch besser). Somit sieht meiner Meinung nach diese extreme Schrankreihe nicht so bollig aus, da eben diese Vorbauwand das komplett abfängt und dahinter verschwindet (ist noch niemand auf die Idee gekommen von den zick anderen Küchenstudios...)

Was haltet ihr davon? Noch irgendwelche Änderungen die ihr anstreben würdet? Wir fühlen uns nun nach zick Terminen endlich gut aufgehoben und haben für uns eine super Planung gefunden.

Ich bin gespannt, was euch gefällt/nicht gefällt.

Zur Info:

Modell: Schüller C 2020 - NOV Nova Programm - C2 Variante
APL-Farbe: K053 Marmor bianco Nachbildung (wird geändert in Marmor Avorio Nachbildung)
Geräte: Bosch Geräte (der normale Standart), Blanco Spüle und eine Berbel Kopffrei Haube Ergoline 2 schwarzglas

Gerne dürft ihr auch den Preis schätzen :-)

Ich freue mich auf Input!!
 

Anhänge

  • Grundriss 1.jpg
    Grundriss 1.jpg
    106,5 KB · Aufrufe: 269
  • Grundriss 2.jpg
    Grundriss 2.jpg
    61,3 KB · Aufrufe: 265
  • Grundriss 3.jpg
    Grundriss 3.jpg
    100,3 KB · Aufrufe: 276
  • Grundriss 4.jpg
    Grundriss 4.jpg
    90,3 KB · Aufrufe: 288
  • Grundriss 5.jpg
    Grundriss 5.jpg
    96,4 KB · Aufrufe: 275
  • Grundriss 6.jpg
    Grundriss 6.jpg
    89,8 KB · Aufrufe: 265

Ähnliche Beiträge

Neff Hausgeräte Ballerina Küchen Blum Bewegungstechnologie Weibel - Intelligente Küchenlüftung

Neff Spezial

Blum Zonenplaner

Weibel Abluft-Tuning

Weibel Abluft-Tuning
Zurück
Oben