brarbera
Mitglied
- Beiträge
- 15
Hallo,
wir möchten Anfang 2012 unser neues Haus bauen. Hierfür benötigen wir natürlich auch eine neue Küche. Wir waren nun auch schon bei einem Möbelhaus und haben unsere Küche mal planen lassen.
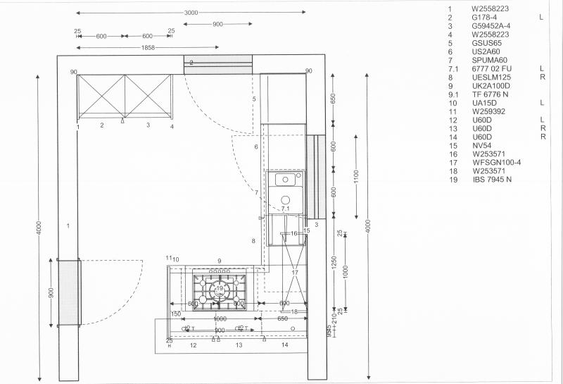
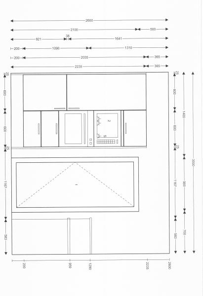
Bei der Küche handelt es sich um eine Häcker Classic Model Avus. Die Front soll Magnolie in Mattoptik sein. Der Korbus und Arbeitsfläche sollen die Farbe Mandelholz haben.
Bei den Geräten wurde uns folgendes Vorgeschlagen:
Kühl-Gefrierkombi: NEFF K 345 Neff - K8345X0 K 345 Integrierbare VitaFresh Kühl-/Gefrier-Kombination CoolDeLuxe
Dampfgarer: NEFF MEGA CD 4742 N Neff - Mega CD 4742 N Dampfgarofen Dampfgarer C47D42N0 Edelstahl
Einbaubackofen: Neff - Mega SHE 4542 N B45E42N0 Elektro- Einbaubackofen Edelstahl
Geschirrspüler : Geschirrspüler - G 5191 SCVi EcoLine - Miele & Cie. KG Deutschland
Gaskochfeld: Neff - TF 6776 N Gas-Kochstelle,Glaskeramik,70 cm T67F76N0 AUTARKES GAS- GLASKERAMIK-KOCHFELD mit integrierten Kochstellenreglern
Dunstabzugshaube: Neff - IBS 7945 N I79S45N0 Inselesse
Einbauspüle: Villeroy & Boch - Professionals: Einbauspülen / Auflagespülen
Vielen Dank schonmal für Eure Hilfe,
Barbara und Tobi
Checkliste zur Küchenplanung von brarbera
Anzahl Personen im Haushalt : 2
Davon Kinder? : keine
Körpergrössen aller Hauptbenutzer (wegen Arbeitshöhe ) in cm : 180 cm
Art des Gebäudes? : Neu-/Umbau, Planänderungen möglich
Brüstungshöhe des Fensters (in cm) : 1,20
Fensterhöhe (in cm) :
Raumhöhe in cm: :
Heizung : Fussbodenheizung
Sanitäranschlüsse : vollkommen variabel
Ausführung Kühlgerät? : Integriert im Hochschrank
Kühlgerät Größe : bis 175 cm Höhe
Ausführung Tiefkühl (TK)-Gerät : Nicht erforderlich bzw. steht woanders
Dunstabzugshaube? : Umluft
Hochgebauter Backofen ? : Ja
Hochgebauter Geschirrspüler ? : ja
Kochfeldart? : Gas
Kochfeldbreite ca. (in cm)? : 70 cm
Spülenform: : 1 Becken mit Abtropffläche
Weitere geplante Heißgeräte : Dampfgarer ohne Wasseranschluß
Küchenstil? : modern
Sitzmöglichkeit in der Küche / im Küchenbereich als : Tresen in Barhöhe
Sitzmöglichkeit: Für wieviel Personen? : für 2 Personen
Sitzmöglichkeit: Tisch - wenn gesonderter Tisch oder offene Küche : Keine
Gewünschte o. vorhandene Tischgröße : keine
Wofür soll der Sitzplatz in der Küche genutzt werden? Wie häufig? : Frühstück
Welche Arbeitshöhe ist angedacht (in cm)? : 96 cm
Was steht auf der Arbeitsplatte oder soll dort stehen? : Wasserkocher, Messerblock, Küchenmaschine, Toaster
Welche weiteren Küchenmaschinen müssen in der Küche untergebracht werden? : Mixer, Pürierstab, Eierkocher
Was soll in der Küche außer den Standards untergebracht werden? : Geschirr komplett (nichts in Ess-/Wohnzimmer)
Welchen Stauraum gibt es sonst noch? : Speisekammer, Keller
Was/wie wird gekocht? (Alltagsküche, Menüs, Snacks usw) : Alltagsküche
Wie häufig wird gekocht? : (fast) täglich 1x warm
Wird alleine gekocht? Oder auch gemeinsam? Mit und für Gäste? : Gemeinsam mit Gästen später mit Kindern
Was stört an der bisherigen Küche und was soll die neue Küche unbedingt können? Warum? : Raum soll besser ausgenutzt werden. Tür in der Küche ist nach Außen gerückt, somit steht sie beim öffnen nicht mehr in die Küche rein.
Preisvorstellung (Budget) : bis 15.000,-
wir möchten Anfang 2012 unser neues Haus bauen. Hierfür benötigen wir natürlich auch eine neue Küche. Wir waren nun auch schon bei einem Möbelhaus und haben unsere Küche mal planen lassen.
Bei der Küche handelt es sich um eine Häcker Classic Model Avus. Die Front soll Magnolie in Mattoptik sein. Der Korbus und Arbeitsfläche sollen die Farbe Mandelholz haben.
Bei den Geräten wurde uns folgendes Vorgeschlagen:
Kühl-Gefrierkombi: NEFF K 345 Neff - K8345X0 K 345 Integrierbare VitaFresh Kühl-/Gefrier-Kombination CoolDeLuxe
Dampfgarer: NEFF MEGA CD 4742 N Neff - Mega CD 4742 N Dampfgarofen Dampfgarer C47D42N0 Edelstahl
Einbaubackofen: Neff - Mega SHE 4542 N B45E42N0 Elektro- Einbaubackofen Edelstahl
Geschirrspüler : Geschirrspüler - G 5191 SCVi EcoLine - Miele & Cie. KG Deutschland
Gaskochfeld: Neff - TF 6776 N Gas-Kochstelle,Glaskeramik,70 cm T67F76N0 AUTARKES GAS- GLASKERAMIK-KOCHFELD mit integrierten Kochstellenreglern
Dunstabzugshaube: Neff - IBS 7945 N I79S45N0 Inselesse
Einbauspüle: Villeroy & Boch - Professionals: Einbauspülen / Auflagespülen
Vielen Dank schonmal für Eure Hilfe,
Barbara und Tobi
Checkliste zur Küchenplanung von brarbera
Anzahl Personen im Haushalt : 2
Davon Kinder? : keine
Körpergrössen aller Hauptbenutzer (wegen Arbeitshöhe ) in cm : 180 cm
Art des Gebäudes? : Neu-/Umbau, Planänderungen möglich
Brüstungshöhe des Fensters (in cm) : 1,20
Fensterhöhe (in cm) :
Raumhöhe in cm: :
Heizung : Fussbodenheizung
Sanitäranschlüsse : vollkommen variabel
Ausführung Kühlgerät? : Integriert im Hochschrank
Kühlgerät Größe : bis 175 cm Höhe
Ausführung Tiefkühl (TK)-Gerät : Nicht erforderlich bzw. steht woanders
Dunstabzugshaube? : Umluft
Hochgebauter Backofen ? : Ja
Hochgebauter Geschirrspüler ? : ja
Kochfeldart? : Gas
Kochfeldbreite ca. (in cm)? : 70 cm
Spülenform: : 1 Becken mit Abtropffläche
Weitere geplante Heißgeräte : Dampfgarer ohne Wasseranschluß
Küchenstil? : modern
Sitzmöglichkeit in der Küche / im Küchenbereich als : Tresen in Barhöhe
Sitzmöglichkeit: Für wieviel Personen? : für 2 Personen
Sitzmöglichkeit: Tisch - wenn gesonderter Tisch oder offene Küche : Keine
Gewünschte o. vorhandene Tischgröße : keine
Wofür soll der Sitzplatz in der Küche genutzt werden? Wie häufig? : Frühstück
Welche Arbeitshöhe ist angedacht (in cm)? : 96 cm
Was steht auf der Arbeitsplatte oder soll dort stehen? : Wasserkocher, Messerblock, Küchenmaschine, Toaster
Welche weiteren Küchenmaschinen müssen in der Küche untergebracht werden? : Mixer, Pürierstab, Eierkocher
Was soll in der Küche außer den Standards untergebracht werden? : Geschirr komplett (nichts in Ess-/Wohnzimmer)
Welchen Stauraum gibt es sonst noch? : Speisekammer, Keller
Was/wie wird gekocht? (Alltagsküche, Menüs, Snacks usw) : Alltagsküche
Wie häufig wird gekocht? : (fast) täglich 1x warm
Wird alleine gekocht? Oder auch gemeinsam? Mit und für Gäste? : Gemeinsam mit Gästen später mit Kindern
Was stört an der bisherigen Küche und was soll die neue Küche unbedingt können? Warum? : Raum soll besser ausgenutzt werden. Tür in der Küche ist nach Außen gerückt, somit steht sie beim öffnen nicht mehr in die Küche rein.
Preisvorstellung (Budget) : bis 15.000,-
Anhänge
Zuletzt bearbeitet von einem Moderator:


