Ostfriesentee
Mitglied
- Beiträge
- 605
- Wohnort
- Flandern
Follow along with the video below to see how to install our site as a web app on your home screen.
Anmerkung: This feature may not be available in some browsers.
Brauchen braucht niemand einen erhöhten GSP, es gibt viele nette Annehmlichkeiten, die man nicht „braucht“.Wir brauchen keinen erhöhten GSP.
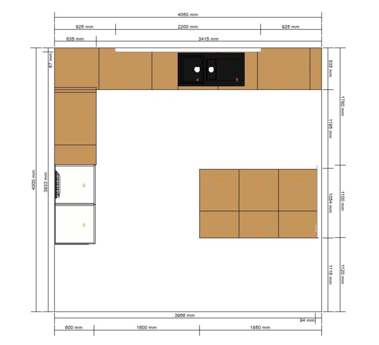
… aber gerade weil die Spüle so schön vor dem großen Fenster ist finden wir das toll. Man blickt auf den Hof und die dahinter liegende Wiese des angrenzenden Grundstücks meiner Eltern.
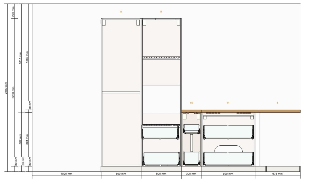
Noch mal eine Frage zur DAH, ist es tatsächlich notwendig da etwas „abzukoffern“.
Anhänge


Anhänge
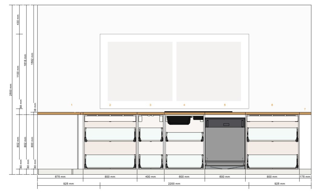
Danke, habe die Links entfernt!Geräte verlinken darfst Du, aber nur zur Herstellerseite.
Die 120cm zwischen Insel und Zeile sind gut. Ich würde die Insel allerdings auf 2m ausdehnen mit 2x 1m Schränken. Das bringt euch mehr Stauraum (auch 2x 90cm statt 3x60er wären stauraumtechnisch besser) und sieht ruhiger aus.
Zu den Geräten kann ich nix sagen, ich weiß nur, dass es mit Geschirrspülern bei Ikea kritisch sein kann und man da genau schauen muss ob das kompatibel ist.
Bei Ikea muss die Insel wohl am Boden befestigt werden. Bei klassischen Küchenherstellern nicht. Warum wollt ihr jetzt eigentlich Ikea?
Anhänge