Anmacatili
Planung einer Küche für einen Neubau - EFH -
Hallo zusammen,
ich bin frisch angemeldet, da ich etwas am verzweifeln bin. Da bin ich aber scheinbar nicht der einzige, da ich jetzt schon einige Threats gelesen und durchforstet habe. Daher habe ich mich entschlossen mir mal von euch möglichst einen persönlichen Rat bzw. eine persönliche Einschätzung geben zu lassen.
Wir möchten für einen geplanten Neubau eine Küche planen und stehen dabei relativ am Anfang. Das Haus (Fertighaushersteller) befindet sich in den letzten Zügen der Planung und für den Bauantrag sollen wir schon die Küche mit einplanen, damit klar ist wohin welche Anschlüsse kommen. Auch für das Ausstattungsgespräch in etwa 2 Monaten ist natürlich auch wichtig zu wissen, wo welche Steckdosen usw hinsollen.
Daher waren wir waren diese Woche in drei verschiedenen Küchenhäusern
Wir wollen maximal 11000€ ausgeben, ursprünglich wollten wir deutlich unter 10000€ bleiben, was aber aufgrund der Größe der Küche eher nicht möglich ist, oder was meint ihr?
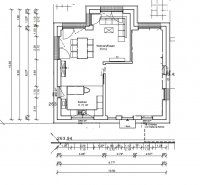
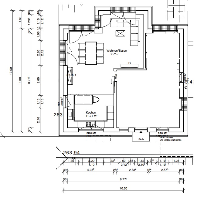
Ich hänge mal zwei der gemachten Planungen an. Planung 1 ist vom Bildschirm des Möbelhauses und Planung 2-4 haben wir ausgedruckt mitbekommen von der "Kette". Das kleine Küchenstudio hat außer dem Preis nichts mitgebeben und war im Hinblick auf den Preis noch intransparenter als die beiden anderen, machte zudem Druck und meinte die Küche wäre zu dem Preis nur eine Woche zu bekommen da eine aktuelle Aktion liefe.
Im Grundriss habe ich nur den Wohn-Essbereich und die Küche "sichtbar" gelassen, da ich dort einige persönliche Anmerkungen reingeschrieben hatte.
Der HWR ist wenn man ins Haus reinkommt rechts, dieser hat aber nur 8m2. Etwas Platz befindet sich noch im OG (4m2) in einer Dachschrägen, die wir als Stauraum ausbauen lassen.
Ich erhoffe mir von euch Tipps, wie man die Planung optimieren und eventuell Kosten reduzieren könnte und natürlich erstmal eine Einschätzung ob die Preise so in Ordnung sind. Ich blicke einfach nicht durch!
Wir sind bei der Planung der Küche nicht auf die gemachten Planungen festgelegt, diese gefallen uns aber schon ziemlich gut. Man könnte es aber sicherlich auch irgendwie anders machen. Wobei man aufgrund der großen Fenster nicht viele Möglichkeiten für Hochschränke hat.
Die Idee, die uns noch kam war, dass man eventuell von einem integrierten Kühl-Gefrierschrank Abstand nehmen und stattdessen ein freistehendes Gerät wählen sollte. Die Frage ist dann allerdings wo man dies am besten positionieren würde. Macht das Sinn?
Ansonsten fällt mir gerade nicht mehr ein, ich freue mich auf eure Meinungen und Tipps und bin wirklich gespannt. Falls ich etwas vergessen haben sollte, dann gerne einfach Fragen und versuche das nachzuliefern.
Liebe Grüße
Anmacatili
Checkliste zur Küchenplanung
Personenkriterien und Ergonomie
Anzahl Personen im Haushalt: 4
Davon Kinder: 2
Körpergrößen aller Hauptbenutzer in cm (wegen Arbeitshöhe ): 183cm und 165cm
Welche Arbeitshöhe ist angedacht (in cm)?: 91cm
Gebäudekriterien
Art des Gebäudes: Neu-/Umbau > Planänderungen möglich
Brüstungshöhe des Fensters (in cm): 97cm
Fensterhöhe (in cm): 110cm
Raumhöhe in cm: 226cm
Heizung: Fußbodenheizung
Sanitäranschlüsse: vollkommen variabel
Einbaugerätekriterien
Ausführung Kühlgerät: Stand-Alone bis 60cm Breite
Einbaukühlgerät Größe: Noch unbekannt
Ausführung Tiefkühl (TK)-Gerät: Im Kühlschrank ab 3 Schubladen unten
Dunstabzugshaube: Abluft
Hochgebauter Backofen : wenn möglich
Geplante Heißgeräte: Standmikrowelle, Backofen
Hochgebauter Geschirrspüler : nein
Art des Kochfeldes: Induktion
Kochfeldbreite (ca. in cm): 80cm
Sitzmöglichkeiten
Sitzmöglichkeit in der Küche / im Küchenbereich: Überstehende Arbeitsplatte
Sitzmöglichkeit: Für wieviel Personen?: Für 1 Person
Sitzmöglichkeit: Tisch - wenn gesonderter Tisch oder offene Küche: Vorhandener Tisch
Gewünschte oder vorhandene Tischgröße: ?
Wofür soll der Sitzplatz in der Küche genutzt werden und wie häufig: morgens, Kaffeetrinken vor der Arbeit
Stauraumplanung
Was steht auf der Arbeitsplatte oder soll dort stehen?: Kaffeevollautomat, Wasserkocher, Thermomix, Toaster, Brotbehälter, Obstschale
Welche weiteren Küchenmaschinen müssen in der Küche untergebracht werden: Mixer, Pürierstab
Was soll in der Küche außer den Standards untergebracht werden: ALLE Vorräte
Welchen Stauraum gibt es sonst noch: Abseiten in Dachschrägen
Kochgewohnheiten
Was/wie wird gekocht? (Alltagsküche, Menüs, Snacks usw): Alltagsküche, selten Menus
Wie häufig wird gekocht: (fast) täglich 1x warm
Wird alleine gekocht? Oder auch gemeinsam? Mit und für Gäste?: Wir kochen beide (Frau und ich); selten mit Gästen
Spülen und Müll
Spülenform: 1 Becken mit Abtropffläche
Welche Mülltrennung soll in der Küche vorgehalten werden: Altpapier, Biomüll, Plastik
Sonstiges
Steht schon ein Küchenhersteller fest oder wird bevorzugt: nein
Steht schon ein Gerätehersteller fest oder wird bevorzugt: nein
Küchenstil: Grifflose Küche
Was stört an der bisherigen Küche und was soll die neue Küche unbedingt können? Warum?: Mattweiße Fronten, Arbeitsplatte in warmer Holzoptik, es wird viel Stauraum benötigt, da HWR sehr klein ist und es keinen Keller gibt, Wohnliche & aufgeräumte Optik ist wichtig, Möglichkeiten schaffen um Mikrowelle / Toaster und öhnliches zu verstecken --> offener Wohnbereich
Preisvorstellung (Budget): max. 11000€
Angehängte Dateien
Hallo zusammen,
ich bin frisch angemeldet, da ich etwas am verzweifeln bin. Da bin ich aber scheinbar nicht der einzige, da ich jetzt schon einige Threats gelesen und durchforstet habe. Daher habe ich mich entschlossen mir mal von euch möglichst einen persönlichen Rat bzw. eine persönliche Einschätzung geben zu lassen.
Wir möchten für einen geplanten Neubau eine Küche planen und stehen dabei relativ am Anfang. Das Haus (Fertighaushersteller) befindet sich in den letzten Zügen der Planung und für den Bauantrag sollen wir schon die Küche mit einplanen, damit klar ist wohin welche Anschlüsse kommen. Auch für das Ausstattungsgespräch in etwa 2 Monaten ist natürlich auch wichtig zu wissen, wo welche Steckdosen usw hinsollen.
Daher waren wir waren diese Woche in drei verschiedenen Küchenhäusern
- eine Kette:
Kühlgefrierschrank von Bauknecht , andere Marken unbekannt
inkl. 2 x Rondell
günstige Front mit "Griffmulden" in sehr hellem weiß, was uns letztendlich nicht mehr gefällt, da es zu grell wirkt.
Eine andere Korpusfarbe war bei dieser Küche nicht möglich bzw. würde dann teurer.
--> 9500€ - ein lokaler Anbieter
"hochwertige" Siemensgeräte Studioline
alle Ecken "tot"
Verkäufer hat Zeidruck gemacht
-->11000€ - großes Möbelhaus (XX...).
Siemensgeräte
Kühlgefrierschrank von AEG
einmal Rondell, einmal Ecken mit Einlegeböden
-->12300€ (11500€mit zusätzlichem Rabatt und Rücksprache mit Abteilungsleiter wahrscheinlich möglich)
Wir wollen maximal 11000€ ausgeben, ursprünglich wollten wir deutlich unter 10000€ bleiben, was aber aufgrund der Größe der Küche eher nicht möglich ist, oder was meint ihr?
Ich hänge mal zwei der gemachten Planungen an. Planung 1 ist vom Bildschirm des Möbelhauses und Planung 2-4 haben wir ausgedruckt mitbekommen von der "Kette". Das kleine Küchenstudio hat außer dem Preis nichts mitgebeben und war im Hinblick auf den Preis noch intransparenter als die beiden anderen, machte zudem Druck und meinte die Küche wäre zu dem Preis nur eine Woche zu bekommen da eine aktuelle Aktion liefe.
Im Grundriss habe ich nur den Wohn-Essbereich und die Küche "sichtbar" gelassen, da ich dort einige persönliche Anmerkungen reingeschrieben hatte.
Der HWR ist wenn man ins Haus reinkommt rechts, dieser hat aber nur 8m2. Etwas Platz befindet sich noch im OG (4m2) in einer Dachschrägen, die wir als Stauraum ausbauen lassen.
Ich erhoffe mir von euch Tipps, wie man die Planung optimieren und eventuell Kosten reduzieren könnte und natürlich erstmal eine Einschätzung ob die Preise so in Ordnung sind. Ich blicke einfach nicht durch!
Wir sind bei der Planung der Küche nicht auf die gemachten Planungen festgelegt, diese gefallen uns aber schon ziemlich gut. Man könnte es aber sicherlich auch irgendwie anders machen. Wobei man aufgrund der großen Fenster nicht viele Möglichkeiten für Hochschränke hat.
Die Idee, die uns noch kam war, dass man eventuell von einem integrierten Kühl-Gefrierschrank Abstand nehmen und stattdessen ein freistehendes Gerät wählen sollte. Die Frage ist dann allerdings wo man dies am besten positionieren würde. Macht das Sinn?
Ansonsten fällt mir gerade nicht mehr ein, ich freue mich auf eure Meinungen und Tipps und bin wirklich gespannt. Falls ich etwas vergessen haben sollte, dann gerne einfach Fragen und versuche das nachzuliefern.
Liebe Grüße
Anmacatili
Checkliste zur Küchenplanung
Personenkriterien und Ergonomie
Anzahl Personen im Haushalt: 4
Davon Kinder: 2
Körpergrößen aller Hauptbenutzer in cm (wegen Arbeitshöhe ): 183cm und 165cm
Welche Arbeitshöhe ist angedacht (in cm)?: 91cm
Gebäudekriterien
Art des Gebäudes: Neu-/Umbau > Planänderungen möglich
Brüstungshöhe des Fensters (in cm): 97cm
Fensterhöhe (in cm): 110cm
Raumhöhe in cm: 226cm
Heizung: Fußbodenheizung
Sanitäranschlüsse: vollkommen variabel
Einbaugerätekriterien
Ausführung Kühlgerät: Stand-Alone bis 60cm Breite
Einbaukühlgerät Größe: Noch unbekannt
Ausführung Tiefkühl (TK)-Gerät: Im Kühlschrank ab 3 Schubladen unten
Dunstabzugshaube: Abluft
Hochgebauter Backofen : wenn möglich
Geplante Heißgeräte: Standmikrowelle, Backofen
Hochgebauter Geschirrspüler : nein
Art des Kochfeldes: Induktion
Kochfeldbreite (ca. in cm): 80cm
Sitzmöglichkeiten
Sitzmöglichkeit in der Küche / im Küchenbereich: Überstehende Arbeitsplatte
Sitzmöglichkeit: Für wieviel Personen?: Für 1 Person
Sitzmöglichkeit: Tisch - wenn gesonderter Tisch oder offene Küche: Vorhandener Tisch
Gewünschte oder vorhandene Tischgröße: ?
Wofür soll der Sitzplatz in der Küche genutzt werden und wie häufig: morgens, Kaffeetrinken vor der Arbeit
Stauraumplanung
Was steht auf der Arbeitsplatte oder soll dort stehen?: Kaffeevollautomat, Wasserkocher, Thermomix, Toaster, Brotbehälter, Obstschale
Welche weiteren Küchenmaschinen müssen in der Küche untergebracht werden: Mixer, Pürierstab
Was soll in der Küche außer den Standards untergebracht werden: ALLE Vorräte
Welchen Stauraum gibt es sonst noch: Abseiten in Dachschrägen
Kochgewohnheiten
Was/wie wird gekocht? (Alltagsküche, Menüs, Snacks usw): Alltagsküche, selten Menus
Wie häufig wird gekocht: (fast) täglich 1x warm
Wird alleine gekocht? Oder auch gemeinsam? Mit und für Gäste?: Wir kochen beide (Frau und ich); selten mit Gästen
Spülen und Müll
Spülenform: 1 Becken mit Abtropffläche
Welche Mülltrennung soll in der Küche vorgehalten werden: Altpapier, Biomüll, Plastik
Sonstiges
Steht schon ein Küchenhersteller fest oder wird bevorzugt: nein
Steht schon ein Gerätehersteller fest oder wird bevorzugt: nein
Küchenstil: Grifflose Küche
Was stört an der bisherigen Küche und was soll die neue Küche unbedingt können? Warum?: Mattweiße Fronten, Arbeitsplatte in warmer Holzoptik, es wird viel Stauraum benötigt, da HWR sehr klein ist und es keinen Keller gibt, Wohnliche & aufgeräumte Optik ist wichtig, Möglichkeiten schaffen um Mikrowelle / Toaster und öhnliches zu verstecken --> offener Wohnbereich
Preisvorstellung (Budget): max. 11000€
Angehängte Dateien
Anhänge
