Unbeendet Familienküche im EFH (Neubau)

EvaK

Mitglied
Beiträge
9
Familieinküche im EFH (Neubau)

Hallo,

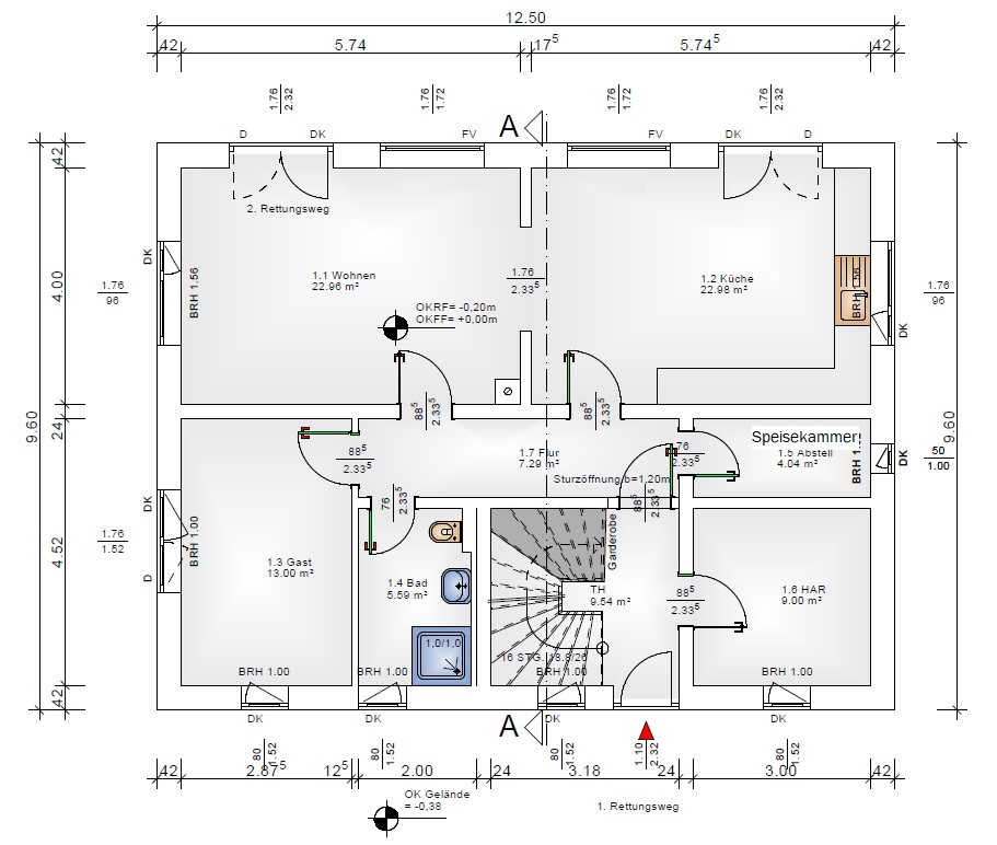
wir sind dabei, ein EFH mit 170qm Grundfläche zu bauen, der Bauantrag ist eingereicht, der Bau soll ab Anfang nächstes Jahr starten. Wir wollen nebenbei schon unsere neue Küche planen (u.a. wegen Anschlüsse planen etc...).

Ich habe den Grundriss vom EG angefügt. Die Türen und Fenster würden sich noch verschieben lassen, die Anschlüsse noch frei wählbar. Ist die BRH von dem westlichen Fenster so sinnvoll? Ist es besser, die Spüle unter dem Fenster zu verbauen oder lieber wo anders? Wir hätten in der Küche/Esszimmer gerne eine Küche mit (Halb-)Insel und einen freistehenden Tisch für 6 Personen (in der Ecke am Sitzfenster). Einen Eckschrank brauchen wir nicht unbedingt, oder wäre es wegen platztechnisch doch besser?
Ich hätte gern einen direkten Durchgang von der Küche in die Speisekammer wenn möglich.
Mein Mann ist 198 cm lang, deshalb ist unsere Überlegung, zwei Thekenhöhen zu kombinieren, zB. 95 und 110. Wir haben auch zwei Jungs, bei denen zu erwarten ist, dass sie auch groß werden :-)

Ich wäre euch sehr dankbar, wenn ihr uns helfen könntet, wie man die Küche am sinnvollsten plant :-) Ich habe schon ein paar Versuche mit Online-Planer gestartet, aber so richtig habe ich keine Lösung gefunden...

Checkliste zur Kuechenplanung

Personenkriterien und Ergonomie
Anzahl Personen im Haushalt: 4
Davon Kinder: 2
Körpergrößen aller Hauptbenutzer in cm (wegen Arbeitshoehe): 174, 198
Welche Arbeitshöhe ist angedacht (in cm)?: 95 (evtl in Kombination mit 110?)

Gebäudekriterien
Art des Gebäudes: Neu-/Umbau > Planänderungen möglich
Bruestungshöhe des Fensters (in cm): 156
Fensterhöhe (in cm): 96
Raumhöhe in cm: 260
Heizung: Fußbodenheizung
Sanitäranschlüsse: vollkommen variabel

Einbaugerätekriterien
Ausführung Kühlgerät: Side by Side (ca. 90cm breit)
Einbaukühlgerät Größe: N. a.
Ausführung Tiefkühl (TK)-Gerät: Im Kühlschrank ab 3 Schubladen unten
Dunstabzugshaube: keine
Hochgebauter Backofen : ja
Geplante Heißgeräte: Einbaumikrowelle, Backofen
Hochgebauter Geschirrspüler : ja
Art des Kochfeldes: Induktionskochfeld
Kochfeldbreite (ca. in cm): 60

Sitzmöglichkeiten
Sitzmöglichkeit in der Küche / im Küchenbereich: Separater Tisch
Sitzmöglichkeit: Für wieviel Personen?: Für 6 Personen
Sitzmöglichkeit: Tisch - wenn gesonderter Tisch oder offene Küche: Wird nach Bedarf neu gekauft
Gewünschte oder vorhandene Tischgröße: 180x100
Wofür soll der Sitzplatz in der Küche genutzt werden und wie häufig: Frühstücken, zusammen kochen

Stauraum-Planung
Was steht auf der Arbeitsplatte oder soll dort stehen?: Kaffeevollautomat, Thermomix, Obstschale
Welche weiteren Küchenmaschinen müssen in der Küche untergebracht werden: Wasserkocher, Handrührgerät, Pürierstab
Was soll in der Küche außer den Standards untergebracht werden: Geschirr komplett (nichts in Ess-/Wohnzimmer)
Welchen Stauraum gibt es sonst noch: Speisekammer, Hauswirtschaftsraum

Kochgewohnheiten
Was/wie wird gekocht? (Alltagsküche, Menüs, Snacks usw): Alltagsküche, Brot, 1x/Woche Kuchen
Wie häufig wird gekocht: (fast) täglich 1x warm
Wird alleine gekocht? Oder auch gemeinsam? Mit und für Gäste?: wir kochen oft in Familie und mit Gästen

Spülen und Müll
Spülenform: 2 Becken ohne Abtropffläche
Welche Mülltrennung soll in der Küche vorgehalten werden: Altpapier, Biomüll, Gelber Sack Müll, Restmüll

Sonstiges
Steht schon ein Küchenhersteller fest oder wird bevorzugt: nein
Steht schon ein Gerätehersteller fest oder wird bevorzugt: nein
Küchenstil: Klassisch
Was stört an der bisherigen Küche und was soll die neue Küche unbedingt können? Warum?: aktuell wohnen wir noch in einer Mietswohnung mit einer sehr kleinen Küche, --- wir möchten für das EFH eine neue große Küche, wo alle Platz haben, genug Stauraum, dass nicht mehr so viel auf der Theke rumliegen muss
Preisvorstellung (Budget): 20.000

Angehängte Dateien
 

Anhänge

  • Grundriss EG.jpg
    Grundriss EG.jpg
    144,2 KB · Aufrufe: 344
Lasst die SPK weg und integriert dies in den HAR. Die SPK ist so schmal, da bekommst nichts vernünftig gestellt.
Ich würde den HAR dann schmaler machen um im Flur mehr Platz für eine Garderobe zu haben. Eventl. Eine Einbuchtung für eine Hochschrankzeile vorsehen, je nach Planung.

Wo ist die Terrasse?
Wo der Essplatz? Küche oder Wohnbereich?
Wozu sind die Wandstummel zwischen Küche und Wohnbereich?
 
Hallo und herzlich willkommen.

Der Raum ist mit 4m gut breit für eine Wandzeile und eine Insel, ein L und einer kleinen Insel.

Zugang zur Speise wäre vielleicht sinnvoll von der Küche aus.

ABER, ein Problem sind die 537cm, das wäre für Küche und Tisch sehr knapp. Man rechnet ab Tischkante min 90cm, besser 100cm Abstand zu einer Wand oder Möbel, um hinter den Stühlen noch vorbeigehen zu können.

Oder soll es noch einen 2. Esstisch geben?
 
Hallo,
danke für die schnelle Antwort :-)
Die Terasse soll an die Süd/Ost Ecke (vom Wohnzimmer aus zu erreichen). Wir wollten die Möglichkeit haben, das Wohnzimmer von der Küche abzutrennen, deshalb soll da eine große Schiebetür hin.
Wir wollten den HWR und Speisekammer trennen z.B. wegen der Wärme der Geräte im HWR, aber stimmt, man könnte es auch zusammen legen.
 
Nein es soll nur einen Esstisch in der Küche geben, wir haben gedacht in der südöstlichen Ecke an dem Sitzfenster (zwei Plätze wären dann direkt das Sitzfenster)
 
Die Insel muss nicht unbedingt mit zum Sitzen sein (auch wenn zB zwei Barhocker schön wären). Wir haben gedacht das Kochfeld soll an die Insel, ansonsten nur Schränke, sodass auch nur eine kleine Insel reichen würde. Oder eventuell eine Halbinsel von der nördlichen Wand aus.
 
Wir hätten gern ein Kochfeld mit integriertem Dunstabzug an der Insel
 
Bezüglich Tisch wäre für uns sicher auch möglich, einen mit 120 cm Länge zu nehmen (den man b.B. ausziehen kann)
 
dann zeichne doch mal, wie du es dir vorstellst, eine Handskizze reicht.
 
Zuletzt bearbeitet:
Hi, ich glaub du hast das missverstanden: die Speisekammer sollte mit in die Küche integriert werden. Der HWR bleibt separat, dort ist die Wärmepumpe, PV Anlage etc. untergebracht?
 
So in etwa würde ich es machen.
Am Handy nicht ganz einfach darzustellen.

Insel als Spülinsel höher als die US Zeile vorm Fenster. Dort das Kochfeld.
Tür nach draußen schmaler machen, damit Absrand zwischen Zeile und Insel nicht zu groß ist.

Ist eine KWL im Haus geplant?
Welche wärme soll im HAR entstehen? Technik ist stark gedämmt.

Bei 4 Personen ist die jetzige Garderobe zu klein.
 

Anhänge

  • 8DEF9207-DBEB-4388-AF3A-0B6430FA46CD.jpeg
    8DEF9207-DBEB-4388-AF3A-0B6430FA46CD.jpeg
    49 KB · Aufrufe: 183
die BRH für das Küchenfenster scheint vom Rohfußboden gemessen, denn welchen Sinn macht ein Fenster, dass bei 156 beginnt und bei 252 Höhe endet, wenn die anderen bei 232 enden?

gibt es einen Archiplan mit Maßen?
 
Ja die BRH ist vom Rohfußboden gemessen, das Fenster beginnt bei 136 und endet bei 232 wie die anderen Fenster. Ich kann leider keinen anderen Plan hochladen.

Ich habe mit ALNO Planer versucht, ein passendes Modell zu erstellen. Ich konnte die Fenstergrößer nicht genau eingeben, das Fenster am Tisch ist eigentlich ein Sitzfenster mit zwei Sitzflächen. Einfachheitshalber habe ich erstmal nur eine Thekenhöhe genommen. Bei Variante 1 könnte man zwischen den zwei Seitenschränken einen schmalen Durchgang (zB eine Falttür) zu Speisekammer planen. Bei Variante zwei hätte man evtl mehr Seitenschränke/Stauraum, hat dann aber die tote Ecke. Mir gefällt Variante 1 besser, ich weiß allerdings nicht, ob die Anordnung von Spüle/Kochfeld/Ofen/Geschirrspüler /Kühlschrank alltagstauglich ist. Sind die Gänge breit genug?
 

Anhänge

  • Variante 2.POS
    6,7 KB · Aufrufe: 93
  • Variante 2.KPL
    3,4 KB · Aufrufe: 86
  • Variante 1.POS
    6,6 KB · Aufrufe: 121
  • Variante 1.KPL
    3,4 KB · Aufrufe: 86
So in etwa würde ich es machen.
Am Handy nicht ganz einfach darzustellen.

Insel als Spülinsel höher als die US Zeile vorm Fenster. Dort das Kochfeld.
Tür nach draußen schmaler machen, damit Absrand zwischen Zeile und Insel nicht zu groß ist.

Ist eine KWL im Haus geplant?
Welche wärme soll im HAR entstehen? Technik ist stark gedämmt.

Bei 4 Personen ist die jetzige Garderobe zu klein.
Vielen Dank für den Vorschlag! Ich denke allerdings, dass in dem Fall ein Esstisch nicht mehr reinpassen würde (wenn die Halbinsel an der Südwand steht). Die Idee bezüglich HAR ist gut, aber da müsste ich mit dem Architekten sprechen, ob es einfach so möglich ist (weil zw Speisekammer und HAR eigentlich eine tragende Wand ist).
 
hier sind die Ansichten und Grundriss von Variante 1, bei Variante 2 ist die Änderung nur der Eckschrank. Leider finde ich nicht die Möglichkeit, bei dem Grundriss die Maße mit anzuzeigen
 

Anhänge

  • Variante1-1.jpg
    Variante1-1.jpg
    74,7 KB · Aufrufe: 182
  • Variante1-2.jpg
    Variante1-2.jpg
    72,7 KB · Aufrufe: 184
  • Variante1-3.jpg
    Variante1-3.jpg
    70,4 KB · Aufrufe: 186
  • Variante2-1.jpg
    Variante2-1.jpg
    80,3 KB · Aufrufe: 193

Ähnliche Beiträge

Neff Hausgeräte Ballerina Küchen Blum Bewegungstechnologie Weibel - Intelligente Küchenlüftung

Neff Spezial

Blum Zonenplaner

Weibel Abluft-Tuning

Weibel Abluft-Tuning
Zurück
Oben