Unbeendet Verbesserungsvorschläge 1. Küche

Maximus85

Mitglied
Beiträge
9
Hallo,
wir stehen davor eine neue Küche für ein Eigenheim anzuschaffen. Wir haben bereits mehrere Angebote eingeholt, darunter für die Küchen von Nubilia, Schüller , Nolte .
Jetzt bin ich auf das Forum gestoßen und habe nach längerem Durchforsten die Planung noch einmal geändert (u.a. sind die Eckschränke weggefallen..
:-))

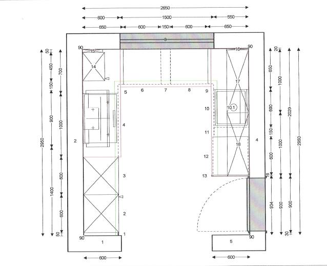
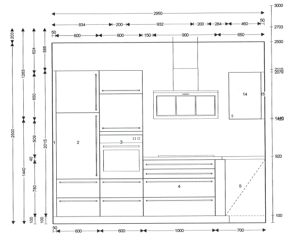
Als erstes würde mich interessieren, was ihr über die Planung denkt? Wie würdet ihr diese verbessern, etwas dazu nehmen, etwas rausnehmen, anders planen? Ist aus eurer Sicht die Schrankauswahl durchdacht, oder gibt es "bessere" Kombinationen? Es handelt sich um eine U-Küche, mit ca. 7,8qm. Die gewünschten Geräte habe ich bei Idealo rausgesucht. Die Herdplatte ist 60cm, so dass auf der linken Seite noch Freiraum vorhanden wäre. Wobei der dafür notwendige kleine Apothekerschrank links neben der Herdplatte stört irgendwie das "Design" :-).

Ein Wunsch wäre auch die Arbeitsplatte in die Fensterbank reinlaufen zu lassen. Dafür müsste aber die Arbeitshöhe ca. 98cm sein. Für eine Person die 174cm groß ist, wäre das nicht ganz optimal, oder?

Der Kühlschrank geht natürlich von rechts nach links auf, der Griff ist auf dem Screenshot falsch gesetzt.



Ich habe die Küche jetzt mit dem Alno Planer verplant, siehe Anhang.

Front: ALNOSIGN Hochqlanz ultraweiß
Griff: Nr.G510
Arbeitsplatte:Juraqrau-Dekor
Korpus: ultraweißglänzenend
Sockel : grafit matt
Akzentfarbe:ultraweiß glänzend
5cm Pultwanqenfarbe:ultraweiß glänzend
Abdeck-/Reqalböden:Ultraweiß-Dekor
Rückwände:Ultraweiß-Dekor


1: SPAM606SUnterschrank für Spüle
2: GSBV6O65Frontplatte für vollint. Geschirrspülmaschinen
3: ZS974E (R)Einbau-Spülbecken, rechts
4-16: NR61 01FNischenrückwand
17: UA1565Unterschrank
18: UKHS2A9O6SIUnterschrank für Induktionskochfeld
19: UEBF6565Eckblende für Unterschränke
20: UEBF6SSSEckblende für Unterschränke
21: SU122A208Seitenschrank für Kühlgerät
22: SULB2A2O8Seitenschrank für Micro und Backofen
23: U52A4565Unterschrank
24: US2A4565Unterschrank
25: US2A4565Unterschrank
26: UAB1 565Unterschrank für Backbleche und Tabletts
27: AE9O1SEDunstesse mit Lüfter und Kamin
28: OGLNIOO78Oberschrank mit neutralen Glastüren
29: OGLNIOO78Oberschrank mit neutralen Glastüren
30: OGSLN456SOberschrank mit neutraler Glastür
31: NR61 01FNischenrückwand
32: NR61 01FNischenrückwand
33: ZLS490012Unterbauleuchte 22x22cm
34: ZLS490012Unterbauleuchte 22x22crn
35: ZL5490012Unterbauleuchte 22x22cm

Danke schon mal im Voraus!

Gruß
Maximus85



Checkliste zur Küchenplanung von Maximus85

Anzahl Personen im Haushalt : 2
Davon Kinder? : keine
Körpergrössen aller Hauptbenutzer (wegen Arbeitshöhe) in cm : 184,173
Art des Gebäudes? : Neu-/Umbau, Planänderungen möglich
Brüstungshöhe des Fensters (in cm) : 108
Fensterhöhe (in cm) : 147
Raumhöhe in cm: : 245
Heizung : Heizkörper wie im Grundriss
Sanitäranschlüsse : vollkommen variabel
Ausführung Kühlgerät? : Integriert im Hochschrank (60cm)
Kühlgerät Größe : bis 122 cm Höhe
Ausführung Tiefkühl (TK)-Gerät : Im Kühlschrank als kleines Fach oben
Dunstabzugshaube? : Umluft
Hochgebauter Backofen ? : Ja
Hochgebauter Geschirrspüler ? : nein
Kochfeldart? : Induktion
Kochfeldbreite ca. (in cm)? : 60
Spülenform: : Noch nicht festgelegt
Weitere geplante Heißgeräte : Standmikrowelle
Küchenstil? : modern
Sitzmöglichkeit in der Küche / im Küchenbereich als : Keine
Sitzmöglichkeit: Für wieviel Personen? : nein
Sitzmöglichkeit: Tisch - wenn gesonderter Tisch oder offene Küche : Keine
Gewünschte o. vorhandene Tischgröße : Kein
Wofür soll der Sitzplatz in der Küche genutzt werden? Wie häufig? : Kein
Welche Arbeitshöhe ist angedacht (in cm)? : 97
Was steht auf der Arbeitsplatte oder soll dort stehen? : Kaffeemaschine, Wasserkocher, Messerblock, Küchenmaschine
Welche weiteren Küchenmaschinen müssen in der Küche untergebracht werden? : Mixer
Was soll in der Küche außer den Standards untergebracht werden? : Geschirr komplett (nichts in Ess-/Wohnzimmer)
Welchen Stauraum gibt es sonst noch? : Geschirr/Gläserschrank im Wohn-/Esszimmer, Hauswirtschaftsraum, Keller
Was/wie wird gekocht? (Alltagsküche, Menüs, Snacks usw) : Alltagsküche
Wie häufig wird gekocht? : (fast) täglich 1x warm
Wird alleine gekocht? Oder auch gemeinsam? Mit und für Gäste? : 1-2 Personen
Was stört an der bisherigen Küche und was soll die neue Küche unbedingt können? Warum? : Die Küche soll einen 86cm Höhe Geschirrspüler haben.
Steht schon ein Küchenhersteller fest oder wird bevorzugt? : Nubilia von Preis Leistung bevorzugt, jedoch nicht festgelegt
Steht schon ein Gerätehersteller fest oder wird bevorzugt? : Siemens , siehe Anhang
Preisvorstellung (Budget) : bis 10.000,-
 

Anhänge

  • Grundriss.png
    Grundriss.png
    50,1 KB · Aufrufe: 251
  • PLAN1.POS
    7,3 KB · Aufrufe: 171
  • PLAN1.KPL
    3,9 KB · Aufrufe: 154
  • küchengeräte.pdf
    364,8 KB · Aufrufe: 359
  • Grundriss2.png
    Grundriss2.png
    71,2 KB · Aufrufe: 203
  • Seite1.png
    Seite1.png
    224,3 KB · Aufrufe: 211
  • Seite2.png
    Seite2.png
    314,3 KB · Aufrufe: 216
  • Seite3.png
    Seite3.png
    293,1 KB · Aufrufe: 227
Zuletzt bearbeitet:
AW: Verbesserungsvorschläge 1. Küche

Hallo Maximus,
:welcome: und gönnst du uns noch ein paar Ansichten aus dem Alno -Plan, ggf. Screenshots, wichtig auch vom Planungsgrundriss (der mit den Kästchen;-)), damit man Abstände usw. gut erkennen kann.
Erstens hat nicht jeder den Alno auf dem Rechner (die Profis meist nicht) und nicht jeder mal sich Dateien runter laden, Alno öffnen und dann fest stellen, dass man dazu doch nichts sagen kann:cool:
 
AW: Verbesserungsvorschläge 1. Küche

Hallo Angelika,
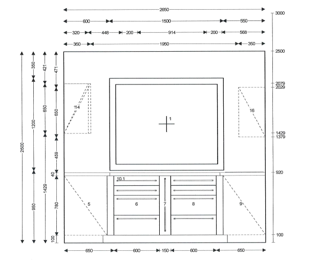
gerne habe noch ein paar Ansichten beigefügt und den Alno Grundriss mit den Geräten.

VG
Maximus85
 
AW: Verbesserungsvorschläge 1. Küche

Glashänger sind nicht grad optimal wenn man den Stauraum braucht. Die sehen nur aus wenn dort wenig unifarbenes Zeug drin steht.

Sonst kann das schnell so aussehen:


oder so:


LG
Sabine
 
AW: Verbesserungsvorschläge 1. Küche

Ich habe mal meine Verbesserungsvorschläge eingebaut, ich würde bei eurer gewünschten Arbeitshöhe auf einen Hersteller mit 6-Raster gehen, so dass auch die Aufteilung 1-1-2-2 möglich wird.
Lesetipp: https://www.kuechen-forum.de/forum/themen/link-liste.12434/#post-261127

Hier auch ein paar Hersteller: https://www.kuechen-forum.de/forum/...asse-auszugs-innenmasse-stauraumplanung.6066/

maximus85-1-1.JPG

In deiner Liste steht 60-er Kochfeld, im Plan war aber ein 80-er, das habe ich übernommen und es auf einen 100-er 1-1-2-2 gesetzt, dann tote Ecke, einen 80-er 1-1-2-2 und einen 50-er 2-2 für Müll unter der APL, hier könnte man aber auch wie folgt aufteilen:
100-er 1-1-2-2 und 30-er 3-3 für den Müll
oder
90-er 1-1-2-2 und 40-er 3-3 für den Müll, was ich persönlich bevorzugen würde.
maximus85-1-2.jpg
maximus85-1-3.jpg
Spülenseite wie gehabt, auf eine Abtropfe würde ich wahrscheinlich verzichten oder eine Spüle mit ganz kleiner wählen.

Den kleinen Hänger in der Ecke habe ich weg gelassen, da kommt man eh kaum ran und der hängt da reichlich einsam rum.
Die Vollglashänger habe ich mal abgeändert in 50 % Glas, ideal wäre es, wenn das Glas im oberen Bereich wäre, dann kann man oben *Deko* rein stellen und hat unten den gut erreichbaren Stauraum, wo es auch bunt werden darf.
 

Anhänge

  • maximus85-1.POS
    9,9 KB · Aufrufe: 158
  • maximus85-1.KPL
    3,9 KB · Aufrufe: 168
AW: Verbesserungsvorschläge 1. Küche

Danke für die Tipps!
@Angelika, unter der Spüle ist ebenfalls ein Mülltrennsystem eingebaut. Denkst du dieses reicht nicht aus? Sollen man den 40er 3,3 neben der toten Ecke nicht ggf. anders gestalten?

Gruß
Maximus85
 
AW: Verbesserungsvorschläge 1. Küche

Ich würde da am Fenster auch eine einheitliche Rasterung wollen:kiss: ... daher Angelikas Planung noch mal etwas korrigiert.

Am Fenster einmal 90er und einmal 45er Auszugsunterschrank im Raster 1-1-2-2.

Nach der Ecke dann gleich der Müll unter der APL als 30er Unterschrank .

Bio/RestMüll direkt unter der APL ... der zweite Auszug unten ist Stauraum:
full


Vorteil ... Man kann Abfälle direkt reinwischen, man muss sich nicht bücken zum Abstreifen von Tellerresten. Man kann direkt daneben stehen und Kartoffeln reinschälen etc.

Der Spülenschrank jetzt auf 45 cm Breite reduziert, da hat dann unten noch ein Brett für die küchentypischen Putzmittel Platz und im Auszug sind 2 größere Behälter für gelber Sack Müll/Altpapier oder so.

Gerade über der Spüle sollte auch darauf geachtet werden, dass die Nische zwischen APL und Hängeschrank ausreichend hoch ist. Daher jetzt mal die Hängeschränke etwas niedriger. Einen für die schönen Sachen und den Rest für "Hauptsache Stauraum".
 

Anhänge

  • maximus85_20130924_Angelika-Kb1.POS
    11,1 KB · Aufrufe: 186
  • maximus85_20130924_Angelika-Kb1.kpl
    3,9 KB · Aufrufe: 160
  • maximus85_20130924_Angelika-Kb1_Grundriss.jpg
    maximus85_20130924_Angelika-Kb1_Grundriss.jpg
    65,6 KB · Aufrufe: 179
  • maximus85_20130924_Angelika-Kb1_Ansicht3.jpg
    maximus85_20130924_Angelika-Kb1_Ansicht3.jpg
    123,4 KB · Aufrufe: 170
  • maximus85_20130924_Angelika-Kb1_Ansicht2.jpg
    maximus85_20130924_Angelika-Kb1_Ansicht2.jpg
    136,5 KB · Aufrufe: 171
  • maximus85_20130924_Angelika-Kb1_Ansicht1.jpg
    maximus85_20130924_Angelika-Kb1_Ansicht1.jpg
    133,1 KB · Aufrufe: 175
AW: Verbesserungsvorschläge 1. Küche

Die Idee mit den Ober / Unterschränken auf der linken Seite finde ich richtig gut, jetzt passt auch das Design. Für ein 45er Spülbecken muss ich jetzt erst einmal was schönes finden, ich denke das Spülbecken von Schock würde hier passen.
Danke, jetzt gibt es am WE mit dem :kfb: wieder was zu besprechen :-)
 
AW: Verbesserungsvorschläge 1. Küche

Du meinst auf der rechten Seite - oder? ;-) (passiert mir auch immer wieder)

Das Mera 46 finde ich ja nicht schlecht und ziehe Keramik auch der Schott-Oberfläche vor. --> Mera 46 - Einbauspülen
 
AW: Verbesserungsvorschläge 1. Küche

Die Hängeschrankaufteilung gefällt mir anders besser, auch wenn dann der Glasschrank für die ordentlichen/schönen Sachen breiter wird:

Entweder 55 - 80 - 55; zumindest beiAlno gibt es die 55cm OS als Standard, aber nur mit Drehtüren:

maximus85_A1.jpg

Oder 50 - 80 - 60 mit Klapptüren:

maximus85_A2.jpg
 
AW: Verbesserungsvorschläge 1. Küche

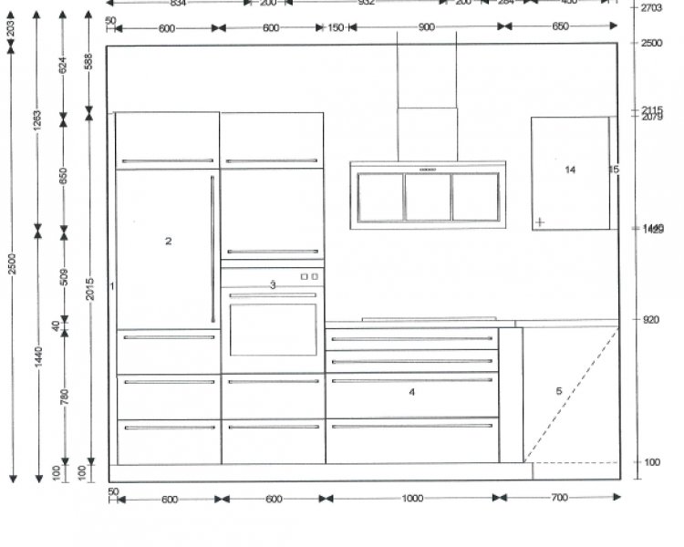
Hallo,
ja die Oberschränke hatte ich ebenfalls angepasst.
Aus Kostengründen habe tendiere ich aktuell zu einer 5 Raster Küche von Nobilia .
Habe ein paar Screens von der aktuellen Planung beigelegt.
Auf der linken Seite, habe ich doch noch einen 15er Apotheker mit einem 90er Auszugsschrank verwendet. Ich will die vorhandenen 105cm optimal ausnutzen.
Wenn ich einen 100er Auszugsschrank verwenden würde, dann müssten für 5cm eine Leiste verwendet werden, das möchte ich nicht. Ich habe mir auch überlegt eine 45 / 60 Kombi zu nehmen, allerdings würde das bedeuten, dass es nicht mehr möglich ist eine Induktionsplatte > 60cm zu verwenden. Was ich nach reichlich Überlegung doch möchte..
Auf weitere Alternativen bin ich nicht mehr gekommen. Aber ein kleiner Apotheker ist nicht schlimm, oder ???

Ich tendiere aktuell auch zu dem Maxi Korpus von Nobilia mit 7cm Sockel , 86,4 Korpus und 4 APL. Hat jemand damit Erfahrung? Vielleicht hat jemand auch die schmale APL mit 1,9cm schon im Einsatz gesehen? Ist die Arbeitstauglich?
Eine neue Planung und ein Eimer neuer Fragen...

VG
Maximus
 

Anhänge

  • Seite 1.jpg
    Seite 1.jpg
    63,1 KB · Aufrufe: 171
  • Seite 2.jpg
    Seite 2.jpg
    67,6 KB · Aufrufe: 201
  • Seite 3.jpg
    Seite 3.jpg
    53,7 KB · Aufrufe: 185
AW: Verbesserungsvorschläge 1. Küche

90+15 schafft aber nicht unbedingt mehr Stauraum, allerdings einen guten Aufpreis ;-)

Altes Verkaufshandbuch der insolventen Fa. Cristini (Firma hat sehr hochwertige Küchenmöbel angeboten). Da kannst du ja mal Blättern um ein Gefühl für die Verhältnismäßigkeit der Preise von schmalen/breiten Unterschränken zu bekommen, auch von Regalen etc. Ein Beispiel:

90er Unterschrank 769 Euro
15er Unterschrank 490 Euro
----------
Zusammen 1259 Euro

Alternativ
100er Unterschrank 785 Euro

Dies soll nur die Verhältnismäßigkeit zeigen.

Dafür könnte man sich glatt auch mal ein Angebot eines 6-rasterigen Herstellers machen lassen ;-)

Denn, der 10 cm breitere Unterschrank ist voller Stauraumgewinn ggü. 90 cm breitem Unterschrank.

Bei einem 15 cm breitem Apothekerchen hat man max. 9cm Staubreite ;-)
 
Zuletzt bearbeitet von einem Moderator:
AW: Verbesserungsvorschläge 1. Küche

100cm US im Vergleich zum 90cm US: 10cm Platzgewinn auf allen Ebenen.

15cm US neben 90cm US, am besten noch Apotheker: circa 8 - 9cm "Platzgewinn" auf 2 Ebenen, und teurer!

:cool:

Edit: Kerstin war schneller, weil ich beim Schreiben abgelenkt wurde ;-)
 
AW: Verbesserungsvorschläge 1. Küche

Es stimmt also doch, die kleinen machen den größten ...:-)
Der Apotheker steht wirklich nicht im Verhältnis ggn. der 100er Lösung.

Ich hatte mir für diese Küche in 6 Raster ein Angebot von Häcker Systemat machen lassen und kam auf 7000€ ohne E-Geräte.

Ein Angebot für eine Schüller Küche, in dieser Variation, allerdings mit einem Lemon und einem Karussel lag bei 7600€ ohne E-Geräte.

Bei der Nobilia hatte ich ein Angebot für 5400€, allerdings waren da noch der Lemon und das Karussel im Angebot drin, die jetzt weggefallen sind. Wenn diese raus genommen werden, müsste das Nobilia Angebot rein rechnerisch unter 5000€ liegen.
Auch wenn mir die 6 Raster Lösung gefällt, sind 2000€ schon ein großer Unterschied. Insbesondere, da die Küche nur für dieses Haus angeschafft wird. D.h sie wird nicht in ein anderes Haus irgendwann mit übernommen.

Was würdet Ihr von dem Angebot halten 5000€ - 5500€ für diese Variation von Nobilia?
 
AW: Verbesserungsvorschläge 1. Küche

Jetzt ist es doch eine 6 Raster Schüller Küche geworden :-).

Bis sie aufgebaut ist wird es zwar noch etwas dauern, Mitte 2014. Wenn es jedoch soweit ist, werde ich für alle auch ein paar Bilder reinstellen.

Danke!
 
AW: Verbesserungsvorschläge 1. Küche

Na, dann erstmal herzlichen Glückwunsch zur Entscheidung. Den Thread werde ich in jedem Fall auf "Warten" stellen ;-)

Toll wäre es, wenn du die endgültigen Planungszeichnungen vom KFB einstellen könntest. Namen abdecken vor dem Scannen ;-). :rose:
 
AW: Verbesserungsvorschläge 1. Küche

Na klar, mache ich gerne!
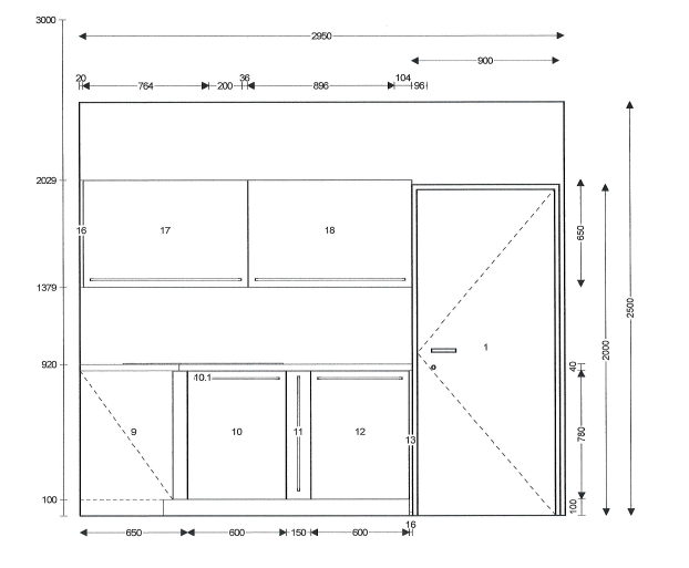
Die Küche ist jetzt noch einmal etwas anders ggn. der letzten Planung geworden.

Bei Schüller gibt es die 65er Oberschränke mit einer Tür auch in 100cm, was natürlich super ist, da somit auf eine 3 Schranklösung verzichtet werden kann.

Was wir heute zusätzlich noch erfahren haben ist, dass Schüller ab 2014 bei den Auszügen serienmäßig Glasblenden rechts und links verbaut, kein Kunststoff.

Was designtechnisch etwas suboptimal ist, dass die oberen Türen der beiden Hochschränke auf Seite 1 nicht ineinander übergehen. Aber da gab es leider von Schüller keine passende Lösung.
 

Anhänge

  • Seite 2.png
    Seite 2.png
    96,7 KB · Aufrufe: 383
  • Seite 1.png
    Seite 1.png
    103,6 KB · Aufrufe: 359
  • Grundriss.png
    Grundriss.png
    141,5 KB · Aufrufe: 188
  • Seite 3.png
    Seite 3.png
    79,5 KB · Aufrufe: 190
AW: Verbesserungsvorschläge 1. Küche

Auf Müll unter der APL hast du verzichtet, da du das Spülbecken in schöner Breite gewählt hast .. gut, die Breite vom Spülbecken kann ich echt verstehen.

Am Fenster sieht es jetzt zwar schön symmetrisch aus ;-) ... aber ich würde statt 60-15-60 doch lieber 90-45 wählen. Denn ein schöner zweiter breiter Auszugsunterschrank ist schon toll.

123612d1381613371-verbesserungsvorschlaege-1-kueche-seite-2.png

Vielleicht solltest du da mal nachfragen, ob Schüller den 90er Unterschrank quasi mit verschraubten 45er Fronten liefern kann. Dann hättest du auch ein gleichmäßige Optik.
Bei mir sind z. B. die 80er Unterschränke immer aus 2x40er Fronten vorne. Kann man hier auf dem Foto erkennen. Ist übrigens auch eine Schüller-Küche, noch aus der Creativ-Serie.
-
Was mir noch aufgefallen ist, ihr habt ja jetzt wirklich gar keinen 3-rasterigen Auszug. Paßt das?
Wenn dafür der 15er am Fenster gedacht war, dann würde ich in dem von mir angedachtem Szenario im 45er die zweite Schublade mit dem ersten Auszug verstiften. (ist übrigens auf dem Foto oben aus meiner Küche auch so).

So wäre dann die Verteilung:
maximus85_Fensteraufteilung.jpg
Nach außen halt alles schön 45er Fronten.


__________________________Zu den Hochschränken:
123613d1381613371-verbesserungsvorschlaege-1-kueche-seite-1.png


Ihr seid ja recht groß. Fragt mal an, ob man unter den Kühlschrank nicht noch einen dritten 2-rasterigen Auszug setzen kann und dann oben auch nur das 2-rasterige Klappfach wie beim Backofenschrank. Kühlschrankoberkante wäre dann bei ca. 175 cm. Könnte dann so aussehen:
maximus85_Hochschrankaufteilung.jpg



__________________________
Also, diese beiden Punkte würde ich anfragen. Dadurch, dass dann unter dem Fenster der 15er wegfällt etc. dürfte das auch nicht unbedingt kostenaufwändiger werden. Und nachdem die Küche ja noch nicht in Produktion gegangen ist, dürfte eine Änderung auch kein Problem sein.
 
AW: Verbesserungsvorschläge 1. Küche

Danke für die Tipps.
Ich frage mal die beiden Punkte an, mal sehen was da rauskommt.
 

Ähnliche Beiträge

Neff Hausgeräte Ballerina Küchen Blum Bewegungstechnologie Weibel - Intelligente Küchenlüftung

Neff Spezial

Blum Zonenplaner

Weibel Abluft-Tuning

Weibel Abluft-Tuning
Zurück
Oben