Kochlöff
Mitglied
- Beiträge
- 11
Hallo,
nach 15 Jahren haben wir unser Reihenhaus im Wohn-/Essbereich renoviert und als nächstes kommt die Küche dran. Das WZ wurde von Buchemöbeln und -Parkett auf Betonwände und Loftfußboden umgebaut. Folgerichtig soll die Küche auch moderner werden.
Ich würde mir zusätzlich eine Verbesserung dre Funktionaltitäten wünschen.
- zweiter (flacher) Backofen
- Induktionskochfeld
- Vergrößerung der Arbeitsfläche durch U-Form anstatt L-Form
Das Kochfeld dürfte kein Problem sein, aber der Rest ... . Ich befürchte, dass der schräge Eingang das Hauptproblem sein wird.
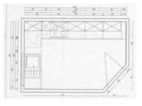
Zur Info: Die Zeichnngen sind von der Originalküche. Der freistehende Kühlschrank hat den äußersten rechten Schrank in der Küchenzeile ersetzt.
Vielen Dank im voraus.
Stephan
P.S.
zum Budget habe ich keine Angaben gemacht. Bitte haltet mich nicht für eine Angeber, aber ich würde, wenn es sich lohnt Geld in die Hand nehmen. Es würde dann auch ein neuer Fußboden rein kommen. Bleibt alles mehr oder weniger beim alten, würde ich mir aber überlegen einfach nur die Fronten und das Kochfeld auszutauschen.
Checkliste zur Küchenplanung
Anzahl Personen im Haushalt: 2
Davon Kinder?:
Art des Gebäudes?: Bestandsbau, Umbauten ausgeschlossen
Körpergrössen aller Hauptbenutzer (wegen Arbeitshöhe ) in cm: 178 und 168 cm
Brüstungshöhe des Fensters (in cm): 106,5 cm
Fensterhöhe (in cm): 114 cm
Raumhöhe in cm: 253 cm
Heizung: Fussbodenheizung
Sanitäranschlüsse: variabel an aktueller Wand
Ausführung Kühlgerät: Stand-Alone bis 60 cm Breite
Kühlgerät Größe: bis 178 cm Höhe
Ausführung Tiefkühl (TK)-Gerät: Im Kühlschrank ab 3 Schubladen unten
Dunstabzugshaube: Abluft
Backofen etc. hochgebaut?: Wenn möglich
Hochgebauter Geschirrspüler ?: Wenn möglich
Kochfeldart: Ceran (herkömmlich)
Kochfeldbreite ca. (in cm)?: 60 cm
Spülenform: 1 Becken mit Abtropffläche
Geplante Heißgeräte: Einbaumikrowelle, Backofen , Dampfbackofen (DGC) ohne Wasseranschluß
Küchenstil: Modern
Sitzmöglichkeit in der Küche / im Küchenbereich: Keine
Sitzmöglichkeit: Für wieviel Personen?: Nein
Sitzmöglichkeit: Tisch - wenn gesonderter Tisch oder offene Küche: Keiner
Gewünschte o. vorhandene Tischgröße: keine
Wofür soll der Sitzplatz in der Küche genutzt werden? Wie häufig?: kein Sitzplatz benötigt
Welche Arbeitshöhe ist angedacht (in cm)?: 92,5
Was steht auf der Arbeitsplatte oder soll dort stehen?: Kaffeevollautomat, Messerblock, Toaster
Welche weiteren Küchenmaschinen müssen in der Küche untergebracht werden?:
Was soll in der Küche außer den Standards untergebracht werden?:
Welchen Stauraum gibt es sonst noch?: Geschirr/Gläserschrank im Wohn-/Esszimmer, Keller
Was/wie wird gekocht? (Alltagsküche, Menüs, Snacks usw): Alltagsküche , aber auch Menues am Wochenende. Während der Woche bleibt die Küche meist kalt.
Wie häufig wird gekocht?: Sonstiges (evtl. im Beitragstext benennen)
Wird alleine gekocht? Oder auch gemeinsam? Mit und für Gäste?: Allein und zu zweit. Gäste selten.
Was stört an der bisherigen Küche und was soll die neue Küche unbedingt können? Warum?: Induktionsfeld , zusätzlicher zweiter (flacher) Backofen , Erweiterung der L-Form auf U-Form u mehr Arbeitsfläche zu bekommen, die durch den Einbau eines Stand Alone Kühlschrankes (60 cm breit, 188 cm hoch) verlorengegangen ist.
Welche Mülltrennung soll in der Küche vorgehalten werden?: Altpapier, Gelber Sack Müll, Restmüll
Steht schon ein Küchenhersteller fest oder wird bevorzugt?: nein
Steht schon ein Gerätehersteller fest oder wird bevorzugt?: vorhanden sind Siemens Ceranfeld /Backofen /Geschirrspüler
Preisvorstellung (Budget):
nach 15 Jahren haben wir unser Reihenhaus im Wohn-/Essbereich renoviert und als nächstes kommt die Küche dran. Das WZ wurde von Buchemöbeln und -Parkett auf Betonwände und Loftfußboden umgebaut. Folgerichtig soll die Küche auch moderner werden.
Ich würde mir zusätzlich eine Verbesserung dre Funktionaltitäten wünschen.
- zweiter (flacher) Backofen
- Induktionskochfeld
- Vergrößerung der Arbeitsfläche durch U-Form anstatt L-Form
Das Kochfeld dürfte kein Problem sein, aber der Rest ... . Ich befürchte, dass der schräge Eingang das Hauptproblem sein wird.
Zur Info: Die Zeichnngen sind von der Originalküche. Der freistehende Kühlschrank hat den äußersten rechten Schrank in der Küchenzeile ersetzt.
Vielen Dank im voraus.
Stephan
P.S.
zum Budget habe ich keine Angaben gemacht. Bitte haltet mich nicht für eine Angeber, aber ich würde, wenn es sich lohnt Geld in die Hand nehmen. Es würde dann auch ein neuer Fußboden rein kommen. Bleibt alles mehr oder weniger beim alten, würde ich mir aber überlegen einfach nur die Fronten und das Kochfeld auszutauschen.
Checkliste zur Küchenplanung
Anzahl Personen im Haushalt: 2
Davon Kinder?:
Art des Gebäudes?: Bestandsbau, Umbauten ausgeschlossen
Körpergrössen aller Hauptbenutzer (wegen Arbeitshöhe ) in cm: 178 und 168 cm
Brüstungshöhe des Fensters (in cm): 106,5 cm
Fensterhöhe (in cm): 114 cm
Raumhöhe in cm: 253 cm
Heizung: Fussbodenheizung
Sanitäranschlüsse: variabel an aktueller Wand
Ausführung Kühlgerät: Stand-Alone bis 60 cm Breite
Kühlgerät Größe: bis 178 cm Höhe
Ausführung Tiefkühl (TK)-Gerät: Im Kühlschrank ab 3 Schubladen unten
Dunstabzugshaube: Abluft
Backofen etc. hochgebaut?: Wenn möglich
Hochgebauter Geschirrspüler ?: Wenn möglich
Kochfeldart: Ceran (herkömmlich)
Kochfeldbreite ca. (in cm)?: 60 cm
Spülenform: 1 Becken mit Abtropffläche
Geplante Heißgeräte: Einbaumikrowelle, Backofen , Dampfbackofen (DGC) ohne Wasseranschluß
Küchenstil: Modern
Sitzmöglichkeit in der Küche / im Küchenbereich: Keine
Sitzmöglichkeit: Für wieviel Personen?: Nein
Sitzmöglichkeit: Tisch - wenn gesonderter Tisch oder offene Küche: Keiner
Gewünschte o. vorhandene Tischgröße: keine
Wofür soll der Sitzplatz in der Küche genutzt werden? Wie häufig?: kein Sitzplatz benötigt
Welche Arbeitshöhe ist angedacht (in cm)?: 92,5
Was steht auf der Arbeitsplatte oder soll dort stehen?: Kaffeevollautomat, Messerblock, Toaster
Welche weiteren Küchenmaschinen müssen in der Küche untergebracht werden?:
Was soll in der Küche außer den Standards untergebracht werden?:
Welchen Stauraum gibt es sonst noch?: Geschirr/Gläserschrank im Wohn-/Esszimmer, Keller
Was/wie wird gekocht? (Alltagsküche, Menüs, Snacks usw): Alltagsküche , aber auch Menues am Wochenende. Während der Woche bleibt die Küche meist kalt.
Wie häufig wird gekocht?: Sonstiges (evtl. im Beitragstext benennen)
Wird alleine gekocht? Oder auch gemeinsam? Mit und für Gäste?: Allein und zu zweit. Gäste selten.
Was stört an der bisherigen Küche und was soll die neue Küche unbedingt können? Warum?: Induktionsfeld , zusätzlicher zweiter (flacher) Backofen , Erweiterung der L-Form auf U-Form u mehr Arbeitsfläche zu bekommen, die durch den Einbau eines Stand Alone Kühlschrankes (60 cm breit, 188 cm hoch) verlorengegangen ist.
Welche Mülltrennung soll in der Küche vorgehalten werden?: Altpapier, Gelber Sack Müll, Restmüll
Steht schon ein Küchenhersteller fest oder wird bevorzugt?: nein
Steht schon ein Gerätehersteller fest oder wird bevorzugt?: vorhanden sind Siemens Ceranfeld /Backofen /Geschirrspüler
Preisvorstellung (Budget):
Anhänge
Zuletzt bearbeitet:



