Unbeendet Tips bei Küche in Neubau

graebsch

Mitglied
Beiträge
3
Hallo zusammen,

Ich bin auf dieses Küchenforum aufmerksam geworden und habe mir gedacht ich wende mich auch mal an Euch!

Wir planen einen Neubau (Baubeginn im Jänner) und sind derzeit unter anderem auch in der Küchenplanung .

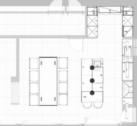
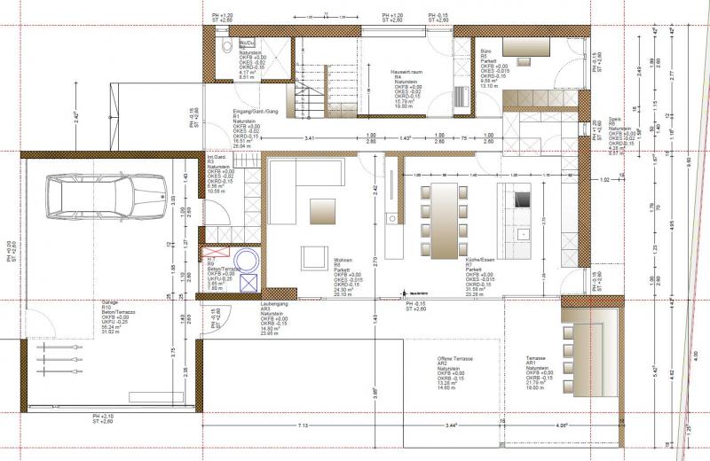
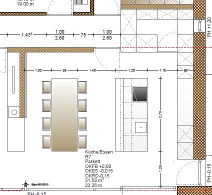
In den beigefügten Plänen (Erdgeschoss, Küche - Essen) seht Ihr mal wie's wird.
Die Küchenzeile geht um's Eck, wobei im Eck noch eine kleine Speis integriert ist. Und in die Mitte soll eine Insel. Das Layout ist somit eigentlich vorgegeben.

Um was es mir eigentlich im wesentlichen geht ist die Position von Spüle & Herd!
Für mich war bisher eigentlich klar, dass das Spülbecken sowie der Herd in die Insel kommen. Einfach schon aufgrund dessen, dass das Arbeiten somit Richtung Wohnzimmer und Blick auf den Garten erfolgt und nicht Richtung Wand.

Die Insel ist jedoch aufgrund der Raumtiefe auf max. 3,0m begrenzt. Die derzeit eingezeichnete Insel ist 2,7m damit genügend Platz für den Durchgung Richtung Terrassentüre besteht.
Eine Insel mit 2,7m in der nun Herd + Spüle + Arbeitsfläche integriert ist scheint mir aber fast zu klein, oder wie seht ihr das?
Ich denke am besten wäre 60cm Fläche + 60 cm Spüle + 90cm Arbeitsfläche + 90 cm Kochstelle + 60cm Fläche. Macht aber 3,6m und das geht sich niemals aus ...
Meine Lebensgefährtin ist der Meinung dass die Spüle nicht unbedingt im gleichen "Block" wie der Herd sein muß. Aus meiner männlichen und möglicherweise nicht richtigen Sicht ist das aber schon sehr wichtig!? Ich will doch die Lebensmittel waschen und gleich daneben in den Topf werfen. Wenn der Herd bsp. in der Zeile an der Wand ist und die Spüle in der Insel, entsteht doch viel mehr Dreck im Stehbereich. Bsp. Nudeln absieben, dauernd hin und her, etc...
Wie seht Ihr das bzw. wie sind da eure Erfahrungswerte???

Theoretisch könnte ich in die Wand mit der Küchenzeile auch ein Fenster machen lassen, und Spüle und Herd dort integrieren. Dann wäre die Insel eine reine Arbeitsfläche. Die Sicht am Herd oder Spüle geht dann jedoch ostseitig Richtung mit Efeu bewachsener Mauer (sieht man auch im Plan).
Die Spüle wiederum würde in der Küchenzeile insofern Sinn machen, dass das dreckige Geschirr nicht mitten auf der Insel herumsteht wenn Gäste da sind ...

Wie seht Ihr die Sache? Vor allem eben wie ist Eure Meinung, muß die Spüle im gleichen Block wie der Herd sein oder kann eines von beiden ruhig in der Küchenzeile sein.

Noch was ... Wenn wir den Herd in der Insel platzieren brauchen wir wohl ne Absaugung. Ich habe aber ungern so ein riesen Teil von der Decke hängen. Da gibt's doch auch so ausfahrbare Absaugungen auf der Insel. Taugen die was? Hat da jemand Ehrfahrungen damit?

Und noch was ... Was empfehlt Ihr für eine Kochfeldbreite? Wir sind jetzt nicht die Oberspitzenköche. Kochen aber gerne am Wochenende mal was feines.

Vielen Dank jetzt schon für alle Antworten!
Schöne Grüße aus Österreich
graebsch


. Küche - Essen.jpgErdgeschoss.jpg




Checkliste zur Küchenplanung von graebsch

Anzahl Personen im Haushalt : 2
Davon Kinder? : keine
Körpergrössen aller Hauptbenutzer (wegen Arbeitshöhe ) in cm : 178, 165
Art des Gebäudes? : Neu-/Umbau, Planänderungen möglich
Brüstungshöhe des Fensters (in cm) : kein Fenster
Fensterhöhe (in cm) :
Raumhöhe in cm: : 260
Heizung : Fussbodenheizung
Sanitäranschlüsse : vollkommen variabel
Ausführung Kühlgerät? : Integriert im Hochschrank (60cm)
Kühlgerät Größe : bis 175 cm Höhe
Ausführung Tiefkühl (TK)-Gerät : Nicht erforderlich bzw. steht woanders
Dunstabzugshaube? : Abluft
Hochgebauter Backofen ? : Ja
Hochgebauter Geschirrspüler ? : wenn möglich
Kochfeldart? : Ceran (herkömmlich)
Kochfeldbreite ca. (in cm)? :
Spülenform: : Noch nicht festgelegt
Weitere geplante Heißgeräte : Dampfgarer mit Wasseranschluß
Küchenstil? : grifflos
Sitzmöglichkeit in der Küche / im Küchenbereich als : Keine
Sitzmöglichkeit: Für wieviel Personen? : nein
Sitzmöglichkeit: Tisch - wenn gesonderter Tisch oder offene Küche : Keine
Gewünschte o. vorhandene Tischgröße : -
Wofür soll der Sitzplatz in der Küche genutzt werden? Wie häufig? : -
Welche Arbeitshöhe ist angedacht (in cm)? :
Was steht auf der Arbeitsplatte oder soll dort stehen? : Sonstiges (evtl. im Beitragstext benennen)
Welche weiteren Küchenmaschinen müssen in der Küche untergebracht werden? : Wasserkocher, Toaster
Was soll in der Küche außer den Standards untergebracht werden? : Sonstiges (evtl. im Beitragstext benennen)
Welchen Stauraum gibt es sonst noch? : Geschirr/Gläserschrank im Wohn-/Esszimmer, Speisekammer, Hauswirtschaftsraum
Was/wie wird gekocht? (Alltagsküche, Menüs, Snacks usw) : Alltagsküche, Menüs
Wie häufig wird gekocht? : (fast) täglich 1x warm
Wird alleine gekocht? Oder auch gemeinsam? Mit und für Gäste? : Alleine & für Gäste
Was stört an der bisherigen Küche und was soll die neue Küche unbedingt können? Warum? : -
Steht schon ein Küchenhersteller fest oder wird bevorzugt? : Schreinerküche
Steht schon ein Gerätehersteller fest oder wird bevorzugt? : Miele
Preisvorstellung (Budget) : bis 25.000,-
 
AW: Tips bei Küche in Neubau

:welcome:

Schöne Vorstellung :cool: mit vermassten Plänen :clap: und schon viel mitgedacht :kiss:. Das sind doch tolle Voraussetzungen.:2daumenhoch:


Die benötigte Inselgrösse für Spüle & Herd hast Du IMHO perfekt abgeschätzt - das sehe ich genauso. Deshalb müsst ihr euch entscheiden:
Haus wird grösser, damit die benötigte Insel platz hat ;-) oder ihr macht das lustige Spiel 'Krötenschlucken'.

'Welche Kröte hättet ihr den gerne'? :cool:

Schau mal durch diverse fertiggestellte Küchen - da wirst Du Beispiele finden für Kochen & Spüle an der Wand - und dafür eine reine Vorbereitungsinsel, welche sich wundervoll für Buffet anrichten und Strudelausziehen eignet, als auch Spüleninseln als auch Kochinseln.

Eine DAH braucht ihr bei dem offenen Raum sowieso; mal ein paar Infos zu DAH'S:
Hier eine Erläuterung von Cooki:

Definition:
Die plasmaNorm-Technologie ist eine Luftreinigungs-Technolgie zur umweltverträglichen Beseitigung kleinster, gasförmiger, organischer Kohlenstoffverbindungen wie zum Beispiel von Geruchsmolekülen.
Dieses wird erzeilt durch die Zugabe von Energie oder hoher Temperatur.
Stufen:
1. konservative Aerosol-Abscheidung im Fettfilter
2. Plasma-Behandlung der vorgereinigten Luft: Energiezufuhr mittels dielektrisch behinderter Entladung // 1,5 kV bei 20 Watt Stromaufnahme des Transformators. Geruchsmoleküle und Molekülketten werden durch Trennung und Anlagerung von Sauerstoff und Hydrixide verändert, plasmachemisch zersetzt und oxidiert.
3. Aktivkohlefilter : in Stufe 2 nicht erfasste Geruchsmoleküle und Molekülketten werden im Aktivkohlefilter abgeschieden und dort zur Oxidation gebracht. Aktivkohle wirkt als Speicherreaktor, der ggf. auch Ozon in Sauerstoff zurückführen kann. Durch Plasma entstehender Sauerstoff regeneriert die Aktivkohle und bewirkt eine extrem lange Standzeit ( Filterwechsel nach 5 Jahren )Ich zitieren mal Cooki: (https://www.kuechen-forum.de/forum/...r-grosse-wohnkueche-gesucht.10416/#post159875)
"...im konsumigen Bereich muss man mit den meisten Hauben mit vielen Kompromissen leben.
Entweder sind die Fettfilter gut, aber die Kohlefilter nicht, oder es ist umgekehrt.
Keines von beiden führt zu befriedigenden Ergebnissen.
Nicht um sonst nehmen führende Hersteller mehr Geld für relativ gut funktionierende Umluftlösungen, aber sie unterscheiden sich auch preislich von der Masse.
Mein Favorit -den ich kenne- ist der Plasma-Norm-Filter von O+F.
Berbel `s Filter sieht auch sehr mächtig aus aber ich kenne das Ergebnis nicht.
Der regenerierbare Filter von Gutmann ist auch zu erwähnen.
Luftfeuchtigkeit im Umluft betrieb sollte man ignorieren, da dies keine Haube beseitigen kann, ein hoher Grad an Geruchsbeseitigung in Kombination mit einem hohen Fettabscheidegrad muss im Vordergrund stehen."

Was Cooki nicht erwähnt hat ist die Lautstärke - die gehört m.E. auch noch in die Gleichung - viel Leistung lässt die Hauben laut werden - da braucht es dann aufwändige (=teure) Massnahmen um die Lautstärke wieder in den angenehmen Bereich zu bekommen.

DAH, welche leise und leistungsstark sind, sind somit teuer.
Günstige Alternativen zu den bekannten guten und teuren Marken (Gutmann, Berbel, O+F, Novy ), die natürlich nicht ganz so leise, schön Verarbeitet etc pp sind gibt's wohl u.A. von Best und Silverline , auch Falmec ist in dem Zusammenhang schon genannt worden.

Querströmungen sind der grösste Feind einer DAH: Infos hier
Wandhauben sind i.d.R. günstiger wie Inselhauben.
Kopffreihauben sind etwas weniger Effizient, weil sie ja die vorderen Felder nicht abdecken und die Wrasen zu sich ziehen müssen.
Muldenlüfter arbeiten gegen die Physik (deshalb schlechte Effizienz) und brauchen viel Platz im Unterschrank . Hier eine positiver Bericht zur BORA
Deckenhaube haben einen grösseren Abstand zum Kochfeld zu überwinden, sind deshalb kräftig ausgelegt und teurer - damit sie gleichzeitig leise bleiben.
=> Je grösser der Wrasenfang um so effizienter kann die Haube arbeiten.
Ich zitiere mal Mozart / Jens:
Es ist kein grundlegender Unterschied, ob eine Deckenhaube 120 oder 150cm über dem Kochfeld liegt. (immer vorausgesetzt, daß einigermaßen starke Gebläse zum Einsatz kommen)
Das kann auch in offenen Küchen gut funktionieren. Was idR. nicht geht, ist z.B. eine zum Wohnraum offene Küche, die auf der anderen Seite noch einen Zugang hat, der NICHT verschließbar ist, bspw. zum Flur/Eingangsbereich/Kellertreppe. In einer solchen Konstellation hat man eigentlich immer Querströmungen, die den Schwaden so mitnehmen, daß er die Haube nicht erreicht. Das ist dann aber keine Frage der Deckenhöhe, selbst 65cm über dem Kochfeld montierte Inselhauben arbeiten dann nicht mehr effektiv.
Abhängungen sollten m.E. so flach wie möglich sein, um das Ansaugniveau gegenüber der Gesamthöhe des Raums nicht zu sehr abzusenken. Schwaden, die eine hohe Abhängung verfehlen, werden praktisch nicht erfasst. Umgekehrt gehts aber auch: Ist die Abhängung sehr weit heruntergezogen, groß genug und mit einem umlaufenden Rand ausgeführt,fungiert sie als Schirm. Das ist bei Deckenhöhen von 285cm aber schade, schließlich will man die Höhe, die man sich explizit ausgesucht hat, nicht mit einem riesigen Kasten wieder aufgeben.
Mal ein Beispiel mit 282cm Deckenhöhe:
--
full

Auch hier ist die Küche zum Wohnbereich offen, dieser ist sogar 2 Geschosse hoch. Aber die Schiebetür hinter den Hochschränken (auf dem Bild verdeckt), kann man komplett und zeimlich zugfrei schließen. Sonst hätte es nicht funktioniert..
Hier noch ein Beispiel https://www.kuechen-forum.de/forum/themen/11177-gutmann-capa-oder-novy-highline.htmlAbluft versus Umluft:
Abluft ist auf jeden Fall effektiver, da auch Feuchtigkeit abtransportiert wird. Und, Effektivität kostet bei Abluft weniger, meist schon in der Anschaffung aber halt spätestens beim Gebrauch, denn bei Umluft muss man die Kohlefilter eben immer wieder erneuern.
Umluft ist zur Strafe auch noch lauter, da die Luft noch durch die Kohlefilter muss. Der Haubenlärm ist primär Strömungsrauschen.
Zusammenstellung von verbauten Decken-DAH im Küchenforum


kurz und gut: ich würde das Kochfeld zur Wand machen mit einer Wandhaube und eine grosse Doppelspüle (da kann man prima benutztes Geschirr den Blicken entziehen) entweder auch an der Wand und dann auf der Insel eine kleine Wasserstelle - oder eine reine Vorbereitungsinsel.
 
AW: Tips bei Küche in Neubau

Vanessa hat schon alles auf den Punkt gebracht:top:

Ich würde das Haus größer bauen, dann habt ihr keine Kröten mehr zu schlucken.

Ansonsten gibt es ziemliche Glaubenskriege, was denn nun besser auf einer Insel/ oder besser nicht auf einer Insel sein sollte.

Perfekt finde ich persönlich beides, weil man dann tatsächlich richtig in den Wohraum rein arbeiten kann und es am kommunikativsten ist
Wenn das nicht geht...dann gehts los mit den Kröten;-)
 
AW: Tips bei Küche in Neubau

hallo nice nofret,

danke für deine ausführliche antwort!
na ja, wir haben noch etwas zeit zum entscheiden.
derzeitiger favorit ist ne zeile mit spüle und ne 2,4m insel mit kochfeld und entsprechender sitzmöglichkeit an einer seite.
mal schauen, vielleicht ändert sich das aber nach ein paar mal darüber schlafen jedoch noch!?

lg graebsch
 
AW: Tips bei Küche in Neubau

Hi,

Freunde von uns haben eine Hochrankwand und eine Insel, wobei die eine Öffnung dieser Kombi direkt vor der Vorratskammer endet.
Somit bei Dir die Frage, ob Du die Insel nicht einfach 1 m nach oben verlängern kannst.
Dann könnte man zwar nicht um die Insel rumlaufen, das hat mit bei meinen Freunden noch nie gestört, aber man hat genug Fläche, um alles unterzubekommen.

Ggf könnte man auch einen direkten Zugang zur Vorratskammer einplanen, um dort direkt die Vorräte verstauen zu können.

LG
Muckelina
 
AW: Tips bei Küche in Neubau

Ich würde die Speisekammer nicht so im üblichen Sinn als Speisekammer bauen, sondern dort alle Hochschränke hin verbannen.

Dann an der Wand planrechts eine Zeile mit Kochfeld und dem großen Hauptbecken und eine Insel mit einem kleinen Becken.

Damit kommt man in der Zeile problemlos zurecht, wenn es einfach nur um die schnelle tägliche Küche geht. Hat aber mit der Insel einen schönen Vorbereitungsbereich für langwierige Schnippelarbeiten. Gerne auch mal mit mehr als 1 Person.

Sitzplätze an der Insel würde ich nicht zum Essbereich hin machen. Erstens behindert es ein wenig den Zugang zu den Unterschränken dort und zweitens wird der Durchgangsbereich zum Tisch damit eingeschränkt. Denn es kann gut sein, wenn ihr so einen großen Tisch dort haben wollt, dass man den auch mal besser 100 bis 110 cm tief wählt und vielleicht nicht nur 100 cm Abstand zum Kaminofen wählt, sondern ein paar mehr cm.

Die Hochschränke in der Kammer gehen planrechts dann nach der Trennung weiter mit hochgebauter GSP, dann Vorräte unten, oben Dampfgarer. Damit sind die wasserführenden Geräte auf der Seite der Spüle.

Am Ende dann einen nicht so hohen Ullaschrank , oben Verblendung.

In der Mitte am Kopfende einen tiefenreduzierten 120er Auszugsunterschrank .. da passen auch jede Menge Vorräte rein. Die Arbeitsfläche kann z. B. dafür dienen, gewisse Geräte einsatzbereit aber eher unsicht bar stehen zu haben. Küchenmaschine, Mixer, Entsafter, Eismaschine, Waffeleisen oder was auch immer man evtl. mal regelmäßig nutzt.

Auf der anderen Seite im Bereich "Speisekammer" geht es wieder mit einem Ullaschrank weiter, dann der Hochschrank mit dem Backofen , unten hohe Auszüge insbesondere für Getränkevorräte und zum Abschluß der Kühlschrank.

Die Arbeitszeile planrechts:
- 100er Spülenunterschrank für großes breites 60er Becken, oberer Auszug Putzmittel, Küchentücher usw., unterer Auszug Stauraum
- 30er Müll unter der APL, oben Bio/REstmüll, unten gelber Sack-Müll.
- 2x100er Auszugsunterschränke
- 1x30er Auszugsunterschrank

Die Insel 45er Spülenschrank für kleines 30er Becken plus Abstand zur APL-Kante. 90er Auszugsunterschrank und noch mal einen 45er entweder mit Drehtür oder Auszug und Innenauszügen. Von der Rückseite 2x90er Auszugsunterschränke für insbesondere alles, was am Tisch gebraucht wird. Das kann Tischdeko, Kerzen, spezielles Serviergeschirr, aber auch z. B. der Toaster sein, den man dann zum Gebrauch auf die Insel stellt. An den Seiten der Insel sollten Steckdosen in die Wangen eingelassen sein.

EDIT:
Das ursprünglich in der Speisekammer vorgesehene Fenster habe ich nach planunten verschoben und verbreitert, so dass es quasi das Pendant zur Terrassentür planunten rechts ergibt.

DAH in der Abhängung als Decken-DAH.

EDIT2:
Ich würde überlegen, die Zugangstür vom Flur als Schiebetür auszuführen. Finde ich praktischer für die 2 möglichen Laufwege ... Richtung Esstisch oder Richtung Küche.
 

Anhänge

  • kf_graebsch_20121013_kb_var1.KPL
    4,1 KB · Aufrufe: 165
  • kf_graebsch_20121013_kb_var1.POS
    16,4 KB · Aufrufe: 167
  • kf_graebsch_20121013_kb_var1_Ansicht1.jpg
    kf_graebsch_20121013_kb_var1_Ansicht1.jpg
    24,9 KB · Aufrufe: 196
  • kf_graebsch_20121013_kb_var1_Ansicht2.jpg
    kf_graebsch_20121013_kb_var1_Ansicht2.jpg
    28,5 KB · Aufrufe: 186
  • kf_graebsch_20121013_kb_var1_Ansicht3.jpg
    kf_graebsch_20121013_kb_var1_Ansicht3.jpg
    20,2 KB · Aufrufe: 168
  • kf_graebsch_20121013_kb_var1_Ansicht4.jpg
    kf_graebsch_20121013_kb_var1_Ansicht4.jpg
    22,3 KB · Aufrufe: 188
  • kf_graebsch_20121013_kb_var1_Ansicht5.jpg
    kf_graebsch_20121013_kb_var1_Ansicht5.jpg
    29,5 KB · Aufrufe: 181
  • kf_graebsch_20121013_kb_var1_Ansicht6.jpg
    kf_graebsch_20121013_kb_var1_Ansicht6.jpg
    29,9 KB · Aufrufe: 234
  • kf_graebsch_20121013_kb_var1_Grundriss.jpg
    kf_graebsch_20121013_kb_var1_Grundriss.jpg
    25,4 KB · Aufrufe: 172
AW: Tips bei Küche in Neubau

Eine Kröte müsst ihr schlucken... entweder habt ihr die Spüle (die ja nicht immer wie geleckt aussieht) und Geschirr mitten auf der Insel und damit sichtbar im Raum oder eine Dunstabzughaube über einem Kochfeld auf der Insel.

Ich höre immer wieder davon, dass Jemand keine Haube sichtbar im Raum hängen haben möchte. Schon mal bedacht, dass eine Haube auch ein Styling-Element sein kann? Es gibt wunderschöne Hauben... und diese hier ist zwar teuer, aber gut und höhenverstellbar

Berbel Deckenlifthaube Skyline BDL 115 SK - in alle Varianten  | HVR-24

Apropos... wir haben uns für das Kochfeld auf der Insel entschieden, aber da sind die Geschmäcker verschieden.
 
AW: Tips bei Küche in Neubau

hallo kerstinB,

also ich weiß gar nicht was ich zu deinem post sagen soll, ausser ...:2daumenhoch::2daumenhoch::2daumenhoch:
ist ja echt unglaublich wieviel mühe du dir gegeben hast!! danke jedenfalls für deine kreativen vorschläge !!!
dies ist wirklich überlegenswert. so ähnlich haben es auch bekannte. was mich jedoch etwas stört, ist dass dann die küche so eine "nische" hat welche ja immer offen ist und der raum somit nicht mehr rechteckig ist ... da müßte dann noch ne schiebetür zur abtrennung rein.
wir sind derzeit mit unserem architekten an einer neuen version ... die ähnlich aussieht wie im beigefügten foto. also die küchenzeile ca. so mit spüle, und das kochfeld auf der insel, welche aber schon anders werden soll wie auf dem bild.
jedoch auch mit dem stirnseitigen sitzbereich.

@ulla: danke auch dir für deine infos. die dah hat echt was ...

ich halte euch auf dem laufenden ...
schöne grüße aus österreich
graebsch

TEAM-7-Kuechen-Design-Inselkueche-k7-in-Nussbaum-und-Hochglanz-Weiss-50d4.jpg
 

Ähnliche Beiträge

Neff Hausgeräte Ballerina Küchen Blum Bewegungstechnologie Weibel - Intelligente Küchenlüftung

Neff Spezial

Blum Zonenplaner

Weibel Abluft-Tuning

Weibel Abluft-Tuning
Zurück
Oben