Planung einer neuen Küche

jtkirk

Mitglied
Beiträge
7
Hallo,

wir sind dabei, eine neue Küche zu planen. Bei unserer Alten gehen so langsam die Elektrogeräte kaputt und schön sieht sie auch nicht mehr aus.

Die Küche ist 325x235 gross und hat rechts ein Fenster und links einen einfachen Durchgang ohne Türzarge (Im Alnoplaner ist eine Tür eingezeichnet, weil kein durchgang verfügbar ist).
Die Wasseranschlüsse sind in der rechten Wand mittig angebracht (also ca. 1,2m von oben und unten). Der Herdanschluss ist in der oberen Wand auch in etwa mittig.
In unserer aktuellen Küche ist die Spüle direkt unter dem Fenster. Für die neue Küche haben wir uns überlegt, die Spüle oben rechts in die Ecke zu stellen, um zum einen das ständige nassspritzen des Fensters zu verhindern und zum anderen eine grösere Auswahl an Armaturen zu haben. Denn vor dem Fenster passt nur eine kleine Armatur. Bei höheren Armaturen (z.B. mit Brauseschlauch) geht dann das Fenster nicht mehr auf.
Da die Wasseranschlüsse nicht verlegt werden sollen, haben wir neben der Eckspüle einen Spülenunterschrank vorgesehen, in dem ein Auszug für Mülleimer sein soll.
Es ist nun die Frage ob die Planung so sinnvoll ist oder wir doch lieber die Spüle wieder unter das Fenster stellen sollten?

Zum zweiten wäre die Frage ob bei diesem Grundriss auch eine U-förmige Planung möglich wäre? Ich sehe hier die Spülmaschine als Problem.

Der Kühlschrank soll alleinstehend unten links sein.

Wir bedanken uns schon jetzt für jede Hilfestellung.






Anhang anzeigen PLAN1.KPLAnhang anzeigen PLAN1.POS Bild1.jpgBild2.JPG


Checkliste zur Küchenplanung von jtkirk

Anzahl Personen im Haushalt : 4
Davon Kinder? : 2
Körpergrössen aller Hauptbenutzer (wegen Arbeitshöhe ) in cm : 165
Art des Gebäudes? : Bestandsbau, Umbauten ausgeschlossen
Brüstungshöhe des Fensters (in cm) : 92
Fensterhöhe (in cm) : 150
Raumhöhe in cm: : 250
Heizung : Fussbodenheizung
Sanitäranschlüsse : fix
Ausführung Kühlgerät? : Stand-Alone bis 75 cm Breite
Kühlgerät Größe : noch unbekannt
Ausführung Tiefkühl (TK)-Gerät : Im Kühlschrank ab 3 Schubladen unten
Dunstabzugshaube? : Umluft
Hochgebauter Backofen ? : Ja
Hochgebauter Geschirrspüler ? : nein
Kochfeldart? : Induktion
Kochfeldbreite ca. (in cm)? : 60
Spülenform: : Eckspüle
Weitere geplante Heißgeräte : Standmikrowelle
Küchenstil? : Landhaus
Sitzmöglichkeit in der Küche / im Küchenbereich als : Keine
Sitzmöglichkeit: Für wieviel Personen? : nein
Sitzmöglichkeit: Tisch - wenn gesonderter Tisch oder offene Küche : Keine
Gewünschte o. vorhandene Tischgröße : kein Tisch
Wofür soll der Sitzplatz in der Küche genutzt werden? Wie häufig? : kein Sitzplatz
Welche Arbeitshöhe ist angedacht (in cm)? : 86
Was steht auf der Arbeitsplatte oder soll dort stehen? : Kaffeemaschine, Messerblock, Brotbehälter, Obstschale
Welche weiteren Küchenmaschinen müssen in der Küche untergebracht werden? : Toaster, Mixer, Eierkocher
Was soll in der Küche außer den Standards untergebracht werden? : ALLE Vorräte, Geschirr komplett (nichts in Ess-/Wohnzimmer)
Welchen Stauraum gibt es sonst noch? : Hauswirtschaftsraum
Was/wie wird gekocht? (Alltagsküche, Menüs, Snacks usw) : Alltagsküche
Wie häufig wird gekocht? : (fast) täglich 1x warm
Wird alleine gekocht? Oder auch gemeinsam? Mit und für Gäste? : Auch mit und für Gäste
Was stört an der bisherigen Küche und was soll die neue Küche unbedingt können? Warum? : Geräte gehen langsam kaputt.
Aussehen gefällt nicht mehr.
Steht schon ein Küchenhersteller fest oder wird bevorzugt? :
Steht schon ein Gerätehersteller fest oder wird bevorzugt? :
Preisvorstellung (Budget) : bis 5.000,-
 
AW: Planung einer neuen Küche

:welcome:

hier im Küchenforum.

Schöne Eröffnung, alles dabei.

Bitte habt etwas Geduld, momentan ist viel los und außerdem Urlaubszeit.

ARBEITSHÖHE ermitteln
3 Methoden haben sich da etabliert:
- Ellbogen abwinkeln und von dort 15 cm runtermessen
- Höhe Beckenknochen messen
- z. B. Bügelbrett nehmen und in verschiedenen Höhen Probeschnippeln und messen, wenn es einem am bequemsten erscheint.
Idealerweise ergeben alle 3 Methoden ca. denselben Wert
Ausführlicher in Optimale Arbeitshöhen beschrieben.
 
AW: Planung einer neuen Küche

.. Ein Gesamtgrundriss wäre noch nett - auf dem man dann auch erkennen kann, wie die Laufwege sind etc.

Ausserdem solltest Du im Planer auch evt. Tische etc. mitmöblieren - so bekommst Du einen realistischeren Eindruck.

Eckspüle ist ziemlich unpraktisch (da kann nur einer Kochen, man blockiert sich die Nachbarschränke, GSP und Müll blockieren sich gegenseitig ..)
 
AW: Planung einer neuen Küche

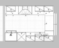
Eure Küche ist meiner Meinung nach nicht für ein U oder L geeignet. Ich finde, dass sich ein Zweizeiler anbietet.

Ich habe einmal geschoben und den Herd auf die andere Seite gesetzt. Es dürfte kein Problem sein, den Strom dorthin zu bekommen. Ich habe im 6-Raster geplant, das ist ab 91 cm möglich. Aber wie bereits geschrieben: ausprobieren.

planoben, links beginnend:
Blende
hochgesetzte SpüMa
Kühlschrank - integriert, da ich finde, dass ein Einzelgerät nicht zu einer
Landhausküche passt
90er Auszug 1-1-2-2
60er Spüle 3-3
45er Auszug 1-1-2-2
Oberschränke mit Abschlussregal

planunten, links beginnend
BO
2 x 80er Auszug 1-1-2-2; Herdplatte auf zweitem fast mittig
40er Auszug 3-3 für Müll unter der Arbeitsplatte
50er Auszug 1-1-2-2
Oberschränke und DA
 

Anhänge

  • jtkirk_Mela.KPL
    4,1 KB · Aufrufe: 230
  • jtkirk_Mela.POS
    7,2 KB · Aufrufe: 254
  • jtkirk_Mela_1.jpg
    jtkirk_Mela_1.jpg
    43,5 KB · Aufrufe: 242
  • jtkirk_Mela_2.jpg
    jtkirk_Mela_2.jpg
    45,8 KB · Aufrufe: 251
  • jtkirk_Mela_Draufsicht.jpg
    jtkirk_Mela_Draufsicht.jpg
    41 KB · Aufrufe: 252
  • jtkirk_Mela_Grundriss.JPG
    jtkirk_Mela_Grundriss.JPG
    36,6 KB · Aufrufe: 245
AW: Planung einer neuen Küche

@Mela: und wie versteckst du die Wasseranschlüsse unterm Fenster?

@Hallo Kirk,

einen Durchgang kann man darstellen, indem man den Raum breiter anlegt und den Durchgang dann mit einzelnen Wandteilen baut. Hab ich dir mal gemacht, und das Fenster in seiner Größe und Lage angepasst.

Wenn du die Spüle nicht mehr vor dem Fenster haben möchtest, dann halte ich es für das Beste, am Fenster einen mindertiefen Schrank mit normaltiefer AP hinzustellen, hinter dem die Wasserleitungen auf Putz recht problemlos bis in oder sogar um die Ecke verlängert werden können.
Eckspülen haben wirklich viele Nachteile, wie Nice-nofret schon geschrieben hat.

Das entstehende U hat viel Arbeitsfläche, und der GSP neben der Spüle funktoniert bestens.

Rechts und links vom Eingang ein hohes Element macht die Küche optisch kleiner, deshalb habe ich den Backofenschrank auch auf die rechte Seite gestellt. Besser aussehen würde ein integrierter KS, aber teurer wäre er leider auch.

Mit Rücksicht auf euer Budget ist der Fensterschrank mit Drehtüren, was bei weniger Tiefe durchaus machbar ist.
Ein breiter Unterschrank ist günstiger als zwei schmale mit gleicher Gesamtbreite, deshalb möglichst viele breite Schränke wählen.

Den Rest erklären die Bilder.
 

Anhänge

  • kf_jtkirk_V1.KPL
    4,1 KB · Aufrufe: 246
  • kf_jtkirk_V1.POS
    7 KB · Aufrufe: 269
  • kf_jtkirk_V1_A1.jpg
    kf_jtkirk_V1_A1.jpg
    45,1 KB · Aufrufe: 251
  • kf_jtkirk_V1_A2.jpg
    kf_jtkirk_V1_A2.jpg
    46,8 KB · Aufrufe: 242
  • kf_jtkirk_V1_A3.jpg
    kf_jtkirk_V1_A3.jpg
    45,9 KB · Aufrufe: 263
  • kf_jtkirk_V1_A4.jpg
    kf_jtkirk_V1_A4.jpg
    46,7 KB · Aufrufe: 238
  • kf_jtkirk_V1_G.JPG
    kf_jtkirk_V1_G.JPG
    42,8 KB · Aufrufe: 253
AW: Planung einer neuen Küche

Noch drei grundsätzliche Anmerkungen:

Ist die Arbeitshöhe einfach von der neuen Küche übernommen, oder habt ihr auch mal Alternativen ausprobiert? Eventuell könnte es ja etwas höher auch besser sein?
ARBEITSHÖHE ermitteln
3 Methoden haben sich da etabliert:
- Ellbogen abwinkeln und von dort 15 cm runtermessen
- Höhe Beckenknochen messen
- z. B. Bügelbrett nehmen und in verschiedenen Höhen Probeschnippeln und messen, wenn es einem am bequemsten erscheint. Sich Vorbeugen, dann ist's zu niedrig, die Schultern hochziehen, dann ist's zu hoch.
Idealerweise ergeben alle 3 Methoden ca. denselben Wert.

Solltet ihr auf 91cm oder mehr (naja, wegen des Fenster begrenzt auf 92cm ;-)) kommen, könntet ihr einen Hersteller mit höherem Korpus und einer Schubladenhöhe mehr Stauraum nehmen. Das nennt sich dann 6-Raster statt 5-Raster (1 Raster = eine Schubladenhöhe):


Und zu Landhausfronten: bei den günstigen Landhausfronten handelt es sich fast immer um Folienfronten. Diese haben den Nachteil, dass sich nach ein paar Jahren die Folie lösen kann (passiert nicht immer, aber doch zu häufig), und den dann nötigen teuren Frontenwechsel zahlt dir keiner.
Teurere Alternativen sind Lack oder Echtholz.
 
AW: Planung einer neuen Küche

@all: Schon mal vielen Dank für eure tolle unterstützung.

@Nice-nofret:
Verkehrswege...? Es gibt doch nur einen Eingang und zwar planlinks.

Tische und Stühle sind aktuell nicht vorgesehen.

Das mit der Eckspüle ist eigentlich eine Notlösung um in der nähe der Anschlüsse zu bleiben aber ich stimme zu dass es nicht so praktisch ist.

@Mela:
Wie menorca schrieb, besteht das Problem mit dem Wasseranschluss. Ich möchte eigentlich keine Wände aufmachen um die Anschlüsse zu verlegen.
Ansonnsten gefällt mir die 2 Reihen Lösung auch ganz gut. Allerdings müsste ich für deine Lösung nicht nur die Wasserleitung sondern auch den Herdanschluss verlegen. Da wäre es doch besser den herd planoben zu legen und Spüle und GSP planunten zu legen.

Eine sache ist vielleicht noch wichtig zu wissen. Die Wände oben und rechts sind Aussenwände und somit massiv während die anderen beiden Wände Ständerwerk sind.

@menorca:
Danke für den Hinweis mit der Tür im Planer.

Dein Plan gefällt mir ganz gut. Ich werde mal sehen ob der :kfb: mir das so planen kann damit ich sehen kann wo ich preislich rauskomme.

Die Arbeitshöhe habe ich von der aktuellen Küche und die höhe ist eigentlich optimal. Aber wir werden uns das nochmal überlegen mit der höhe.
 
AW: Planung einer neuen Küche

Hallo,

wir waren nun in einem Möbelhaus und haben uns eine Küche planen lassen.
Herausgekommen ist eine Nolte Country. Ich habe versucht, die Planung soweit wie möglich im Planer nachzustellen.
Der :kfb: hat uns zu Neff geraten und somit wurden folgende Elektrogeräte eingeplant:

Kochfeld Neff - TT 4380 N TwistPad Induktions-Kochfeld Autarkes Elektro-Kochfeld mit integrierten Kochstellenreglern Internetpreis ca.600 Euro.

Backofen Neff - Mega SHC 4642 N E-Einbaubackofen Edelstahl Internetpreis ca. 930 Euro.

Lüfterbaustein Neff - DBM 80 A Lüfterbaustein Internetpreis ca. 300 Euro.

Spülmaschine Gaggenau DF 240161 bei billiger.de - Preisvergleich mit TÜV-Zertifikat Internetpreis ca. 800 Euro.

Als Spüle wurde eine V&B Villeroy & Boch 671902Fu - Spülbecken - für nur 359 ? angeboten. Internetpreis ca. 330 Euro plus ca. 150 Euro für eine Armatur von Blanco .

All das zusammen macht ca. 3000 Euro.
Die Küche soll 10.000 Euro kosten.

Was meint Ihr, ist der preis gerechtfertigt?

Hier noch die Bilder und die Planer dateien.

Anhang anzeigen kf_jtkirk_V2.KPLAnhang anzeigen kf_jtkirk_V2.POSbild1.jpgbild2.jpgbild3.jpg
 
AW: Planung einer neuen Küche

Ich kann nur nach den Bildern gehen, da ich zur Zeit keinen Zugang zum Alnoplaner habe:
Die Spülenseite ist gut. Nur warum einen Gaggenau GSP für 800€? Neff hat auch gute GSPs, für weniger, afaik.
Was ist das für ein Schrank in der Ecke planunten links? Und der neben dem Kochfeldschrank? Dadurch reduzierst du die Unterschränke Mit Auszügen auf zwei Stück, dabei sind das die Staudamm- und bedienfreundlichsten Schränke, die man haben kann.

Welches Material ist die Front Nolte Country?
 
Zuletzt bearbeitet:
AW: Planung einer neuen Küche

Ich habe dir einmal die Eckschränke durch tote Ecken ersetzt, denn, bist schon einmal in eine LeMans geklettert um ihn zu säubern oder etwas herunter gefallenes zu fischen?

Auch die Schränke unter dem Fenster durch einen
100er Auszug in 1-2-2 ersetzt. Denn jede Zwischenwand kostet Stauraum und Geld, zumal noch mit einer zusätzlichen Blende.
So hast du alles im Blick.

An der Herdseite habe ich dir zwischen Herd und toter Ecke einen
60er Auszug mit 2-3 für höheres z.B. Ölflaschen geplant.

Habt ihr die Arbeitshöhe erprobt? Ich würde mit 1,65 Körpergröße 6-Raster mit 91 cm nehmen.

Ich finde auch, das eine freistehender Kühlschrank zu einer Landhausküche ncit passt. Aber das istt Geschmackssache.
Es ist schließlich eure Küche und euch muss sie gefallen. ;-)
 
AW: Planung einer neuen Küche

bild1.JPGbild2.JPGbild3.JPG

So, Küche ist bestellt.

Danke nochmal an Mela und menorca für eure tolle Hilfe.

Wir haben jetzt in einem anderen Möbelhaus die Küche, wie auf den Bildern zu sehen, für den gleichen Preis (10.000 Euro) bekommen.
Die Küche ist jetzt von Häcker . Front ist Casa -vanille patiniert-.
Die Spülmaschine ist jetzt von Neff (Internetpreis ca. 500).
Wie von Mela vorgeschlagen, haben wir in der Ecke und unter dem Fenster Auszugsschränke und der Kühlschrank ist jetzt eingebaut.

VG jtkirk
 
AW: Planung einer neuen Küche

Eine kleine Optimierung wäre noch auf der Spülenseite den 30cm statt rechts des GSP, links der Spüle einzuplanen - das würde die Spüle aus der Ecke holen und man käme besser auch mal zu Zweit ran.
 
AW: Planung einer neuen Küche

Den Höhensprung auf der Spülenseite würde ich auch noch optimieren, wenn alles auf gleicher Höhe;-)

Ansonsten wird es eine schöne Küche:top:

Freu mich schon auf die Bilder bei den fertiggestellten Küchen:-)
 
AW: Planung einer neuen Küche

jtkirk, nachdem du heute den Thread zur toten Ecke aufgemacht hast: wie sieht denn die Planung mittlerweile aus? Hat sich seit der Bestellung am 25.8. noch etwas geändert?
 

Ähnliche Beiträge

Neff Hausgeräte Ballerina Küchen Blum Bewegungstechnologie Weibel - Intelligente Küchenlüftung

Neff Spezial

Blum Zonenplaner

Weibel Abluft-Tuning

Weibel Abluft-Tuning
Zurück
Oben