Neubau und die Küchenplanung,..

parameter

Mitglied
Beiträge
4
Hallo zusammen,

wir wollen im nächsten Jahr ein EFH bauen lassen und sind grade in der Planungsphase der Küche.

Da derzeit die "Lage" der Küche und die Anschlüsse noch änderbar sind fällt es uns umso schwerer die Beste Anordnung zu finden.

Nachdem sich nun schon mehrmals unsere Planungen für die Küche geformt und anschließend wieder verworfen wurden um dann erneut von vorne anzufangen, bin ich auf dieses Forum hier gestoßen und habe mich schon fleißig eingelesen.


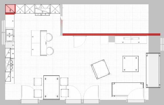
Da wir einen direkten Zugang von der Küche zum HWR Raum haben wollten, ließen wir den Grundriss entsprechend planen (s. Anlage ohne die "rote Änderung (wobei hier die entsprechende Tür fehlt. Sollte aber in der Alno Planung "Küche links" gut erkennbar sein wohin die genau soll))

Dabei blieb leider unbedacht, dass dadurch das Wohnzimmer relativ schmal wurde (4 Meter) und es somit hier Probleme mit dem vorhanden Sofa etc. gibt. :rolleyes:

Daher wieder umgeplant und die Küche zurück auf die "rechte" Hausseite mit den in rot gekennzeichneten Änderungen der Raummaße. (s. Alno Datei "Küche rechts")
Hier macht die Küche letztendlich doch am meisten Sinn, auch wenn der Weg zum HWR nun weiter geworden ist.


Jedoch bereitet mir die Planung auch ein wenig Schwierigkeiten.
- Kücheninsel ja/nein -> wenn ja wohin mit dem Esstisch,... :-\
- wohin mit dem Side-by-side Kühlschrank (an der Wand doch eher unpraktisch zu öffnen)
- Umluft oder Abluft

Ich denke hier im Forum finden sich viele Leute die in dieser Hinsicht viel mehr Erfahrung haben und sicherlich einige hilfreiche Tipps geben könnten =)

Vielen Dank schon einmal vorab.


Checkliste zur Küchenplanung von parameter

Anzahl Personen im Haushalt : 2
Davon Kinder? : keine
Körpergrössen aller Hauptbenutzer (wegen Arbeitshöhe ) in cm : 169 und 185
Art des Gebäudes? : Neu-/Umbau, Planänderungen möglich
Brüstungshöhe des Fensters (in cm) : 91 aber noch änderbar, wollen APL in Fenster
Fensterhöhe (in cm) :
Raumhöhe in cm: : 260
Heizung : Fussbodenheizung
Sanitäranschlüsse : vollkommen variabel
Ausführung Kühlgerät? : Side by Side ca. 90cm breit
Kühlgerät Größe : bis 175 cm Höhe
Ausführung Tiefkühl (TK)-Gerät : Nicht erforderlich bzw. steht woanders
Dunstabzugshaube? : Abluft
Hochgebauter Backofen ? : Ja
Hochgebauter Geschirrspüler ? : wenn möglich
Kochfeldart? : Induktion
Kochfeldbreite ca. (in cm)? : schon gerne 80
Spülenform: : Noch nicht festgelegt
Weitere geplante Heißgeräte : Standmikrowelle
Küchenstil? : klassisch
Sitzmöglichkeit in der Küche / im Küchenbereich als : Überstehende Arbeitsplatte
Sitzmöglichkeit: Für wieviel Personen? : für 2 Personen
Sitzmöglichkeit: Tisch - wenn gesonderter Tisch oder offene Küche : Wird nach Bedarf neu gekauft
Gewünschte o. vorhandene Tischgröße : 1x1,5m
Wofür soll der Sitzplatz in der Küche genutzt werden? Wie häufig? : schnelles Frühstücken an der Theke.
Kaffee trinken.
Beim Kochen/Zubereiten zuschauen
Welche Arbeitshöhe ist angedacht (in cm)? : 91
Was steht auf der Arbeitsplatte oder soll dort stehen? : Kaffeemaschine, Wasserkocher, Messerblock
Welche weiteren Küchenmaschinen müssen in der Küche untergebracht werden? : Toaster, Handrührgerät, Mixer, Pürierstab, Eierkocher
Was soll in der Küche außer den Standards untergebracht werden? : Geschirr komplett (nichts in Ess-/Wohnzimmer)
Welchen Stauraum gibt es sonst noch? : Hauswirtschaftsraum
Was/wie wird gekocht? (Alltagsküche, Menüs, Snacks usw) : Alltagsküche
Wie häufig wird gekocht? : (fast) täglich 1x warm
Wird alleine gekocht? Oder auch gemeinsam? Mit und für Gäste? : beides
Was stört an der bisherigen Küche und was soll die neue Küche unbedingt können? Warum? : bisherige Küche wurde übernommen und sporadisch erweitert. Genügend Stauraum und Arbeitsfläche fehlt.
Steht schon ein Küchenhersteller fest oder wird bevorzugt? : Nolte Küchen in engerer Auswahl
Steht schon ein Gerätehersteller fest oder wird bevorzugt? : Nein
Preisvorstellung (Budget) : bis 15.000,-
 

Anhänge

  • Küche rechts.POS
    15,5 KB · Aufrufe: 181
  • Küche rechts.KPL
    3,9 KB · Aufrufe: 217
  • Küche links.POS
    13,2 KB · Aufrufe: 206
  • Küche links.KPL
    3,9 KB · Aufrufe: 221
  • KüchenGR.jpg
    KüchenGR.jpg
    47,9 KB · Aufrufe: 227
  • Küchenscreen rechts.jpg
    Küchenscreen rechts.jpg
    36,8 KB · Aufrufe: 203
  • Küchenscreen links.jpg
    Küchenscreen links.jpg
    43,8 KB · Aufrufe: 184
Zuletzt bearbeitet:
AW: Neubau und die Küchenplanung ,..

:welcome:

Prima, dass ihr jetzt schon hier aufschlagt, nun kann man noch wunderbar alles euren Bedürfnissen anpassen.

Wie sind die Masse vom Sofa? Was soll sonst noch an Möbeln im Wohn/Esszimmer stehen?

Warum nicht HWR & Büro tauschen? Dann sind alle Sanitär-Anschlüsse auf der gleichen Hausseite - das kostet weniger. Wirklich weit ist bei euch der Weg in den HWR aber auch so nicht - viele Menschen (so auch ich) müssen die Stockwerke wechseln ... und auch das ist problemlos mögliche ;-)

Arbeitshöhe & Rastermasse
full

Typische Korpushöhen für 5-rasterig: 65cm, 70 cm, 72 cm, 75cm.
Typische Korpushöhen für 6-rasterig: 78cm, 79,8cm, 86,4cm

Zu Nolte im Vergleich zu anderen Herstellern mit nur drei Zentimeter höherem Korpus (zB Häcker ):
Der größte und auch für Laien sichtbare Unterschied ist das Raster und das spricht eindeutig für den 78 cm Korpus . So kann eine Stauraumoptimierung erreicht werden.
Selbst größere Töpfe bekommt man in 26cm hohen Auszügen unter, bei 30cm Auszügen hast du einfach 4cm mehr Luft, also ungenutzten Stauraum dazu.
In die hohen 39cm Auszüge bekommst du dafür zB Flaschen, Mixeraufsätze, Cornflakesschachteln, die aber für 30cm Auszüge wiederum zu hoch sind.
Und dein Besteck braucht auch keine 15cm hohe Schublade, 13cm reichen.
nolte-vs-haecker-u-a-jpg.64764

Wenn ihr euch also nicht in eine spezielle Noltefront verliebt habt, solltet ihr vielleicht nochmal darüber nachdenken.

In Korpushöhen - Rastermaße - Auszugs-Innenmaße - Stauraumplanung sind diverse Hersteller mit ihren Standardkorpushöhen verlinkt.
Wenn man dann z. B. einen 78cm hohen Korpus wählt, ergeben sich folgende Maße
- 78 cm Korpushöhe
- 4 cm APL-Höhe
- 12 cm Sockelhöhe
-----------------
= 94 cm Gesamthöhe=Arbeitshöhe
ARBEITSHÖHE ermitteln​


  • [*=1]z. B. Bügelbrett nehmen und in verschiedenen Höhen Probeschnippeln und messen, wenn es einem am bequemsten erscheint.
    [*=1]Höhe Beckenknochen sollte nicht überschritten werden.

Sobald man anfängt die Schultern hochzuziehen, ist es zuhoch; Wenn man sich vornüberbeugt, zu niedrig
 
Zuletzt bearbeitet von einem Moderator:
AW: Neubau und die Küchenplanung ,..

Hallöle und erst ein Mal ganz herzlich :welcome: hier.
Schöne Vorstellung :top:.
Bitte immer von den Alnoplanungen die Bilder mit einstellen, zum Einen haben viel gar keinen Alno -Planer, und zum Zweiten muss man für einen ersten Überblick nicht extra den Planer starten und die Dateien runterladen.

Ich persönlich finde, die Küche ist in der linken Planung zu weit Richtung Wohnzimmer vorgedrungen, das bräuchte es an der Stelle wohl nicht.

Vorab mal viel Spass hier und viel nützlichen Input wünscht
Samy
 
AW: Neubau und die Küchenplanung ,..

Vielen Dank für die nette Aufnahme :-)

Das eingezeichnete Arbeitszimmer im Grundriss wird ein Gästezimmer werden und daher wollten wir es direkt neben dem Bad haben.

Die Maße vom Sofa sind 220 x 270 cm, da dieses aber schon recht mitgenommen aussieht wird es wohl einem Neuen 3-2-1 Sofa-Set weichen.

Ansonsten gäbe es noch einen TV-Tisch in dunklem Holz (breite ca. 1,2 m; 40 cm hoch) dazu in passender offenem Schrank. (50 cm breit; 2 m hoch) sowie den Küchentisch.

mfg
parameter
 
AW: Neubau und die Küchenplanung,..

Hallo parameter,

ich habe in Beitrag #2 den mittleren Abschnitt, wo es um Korpushöhen und Raster geht, noch etwas ergänzt.
Vielleicht deshalb bitte noch einmal lesen.
 
AW: Neubau und die Küchenplanung,..

Hallo Parameter,

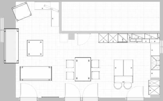
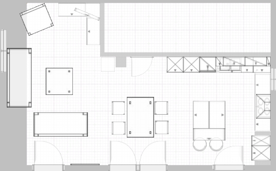
durch die Feiertage hat sich deine Planung leider etwas verzögert. Ich habe dir einmal die Küche rechts und links geplant. Wobei ich zur linken Lösung tendieren würde.
Deswegen beginne ich auch damit.

Ich habe die Tür zum Vorratsraum nach rechts geschoben, so dass ein Abstand zur planlinken Wand von 66 cm ist. Ich würde die Tür allerdings in den Vorratsraum aufgehen lassen. Was soll dort eigentlich alles rein? Evt. wäre ja auch eine Schiebetür möglich.

Die Planung habe ich mit 6-Raster ausgeführt, durch Verringerung des Sockels kommst du auf 91 cm Arbeitshöhe . Die Arbeitsplatte würde ich in die Fensterbank laufen lassen.

Ein Beispiel aus Magnolias Küche
_kuche-100-19-1327395172.jpg


Nun zur Planung, beginnend planoben rechts:
Blende
45er Vorrat mit Innenauszügen
Blende
SbS - eingekoffert
Blende
BO
Blende

planlinks, oben beginnend:
Blende
Spülmaschine
60er Spüle 3-3
40er Müll unter der Arbeitsfläche - untendruner für Höheres, z.B. Ölflaschen
100er Auszug 1-1-2-2
80er Auszug 1-1-2-2 mit Kochfeld - schön wäre eine Deckenhaube
60er Auszug 1-1-2-2
Blende

Insel:
Wange
80er Auszug 1-1-2-2
90er Auszug 1-1-2-2
80er Auszug 1-1-2-2

gegengestellt:
50er Drehtürenschrank - 39 cm tief
120 cm überstehende Arbeitsplatte für Sitzplatz
80er Drehtürenschrank - 39 cm tief
 

Anhänge

  • ParameterL_Mela.KPL
    3,9 KB · Aufrufe: 232
  • ParameterL_Mela.POS
    17,3 KB · Aufrufe: 176
  • ParameterL_Mela_Grundriss.JPG
    ParameterL_Mela_Grundriss.JPG
    49,1 KB · Aufrufe: 187
  • ParameterL_Mela_HS.jpg
    ParameterL_Mela_HS.jpg
    66,9 KB · Aufrufe: 198
  • ParameterL_Mela_Insel.jpg
    ParameterL_Mela_Insel.jpg
    61,2 KB · Aufrufe: 184
  • ParameterL_Mela_InselRück.jpg
    ParameterL_Mela_InselRück.jpg
    62,6 KB · Aufrufe: 177
  • ParameterL_Mela_Zeile.jpg
    ParameterL_Mela_Zeile.jpg
    71,1 KB · Aufrufe: 175
AW: Neubau und die Küchenplanung,..

Jetzt die Planung mit der Küche rechts. Für mich spricht der Kamin dagegen. Es soll dort doch bestimmt ein Ofen hin.
Das Fenster habe ich verschoben und vergrößert, den Anschlag der Balkontür geändert.

Trotzdem, planrechts unten beginnend und in Übertiefe 75 cm, Arbeitshöhe wieder 91 cm:
Blende
Spülmaschine
Spüle 3-3
30er Müll unter der Arbeitsplatte 3-3
90er Auszug 1-1-2-2
90er Auszug 1-1-2-2 mit Kochfeld rechtsbündig zum Fenster gesetzt - auch hier Deckenhaube - kosten leider viel Geld
tote Ecke

Hochschränke nur so hoch wie SBS, können natürlich auch wie bei der anderen Planung höher sein

BO
Blende
SbS
Blende
60er Vorrat mit Innenauszügen
Blende

Insel:
2 x 80er Auszug 1-1-2-2
gegengestellt:
80er Drehtürenschrank 39 cm tief
80cm überstehende Arbeitsplatte für 1 Sitzplatz
könnte auch
40er Drehtür und 120cm Arbeitsplatte sein für 2 Sitzplätze

Esstisch angestellt
 

Anhänge

  • ParameterR_Mela.KPL
    3,9 KB · Aufrufe: 181
  • ParameterR_Mela.POS
    16 KB · Aufrufe: 167
  • ParameterR_Mela_Grundriss.JPG
    ParameterR_Mela_Grundriss.JPG
    39,3 KB · Aufrufe: 220
  • ParameterR_Mela_HS.jpg
    ParameterR_Mela_HS.jpg
    50 KB · Aufrufe: 172
  • ParameterR_Mela_Insel.jpg
    ParameterR_Mela_Insel.jpg
    62,8 KB · Aufrufe: 180
  • ParameterR_Mela_InselR.jpg
    ParameterR_Mela_InselR.jpg
    54 KB · Aufrufe: 174
  • ParameterR_Mela_Zeile.jpg
    ParameterR_Mela_Zeile.jpg
    58,2 KB · Aufrufe: 174
AW: Neubau und die Küchenplanung,..

Die schönere Küchenaufteilung an sich finde ich bei Küche rechts.

Die Frage ist, ob der Kaminschacht dann z. B. weiter nach planlinks auf die Wandecke Essen/Wohnen geschoben werden könnte. Hängt natürlich vom OG ab.

Ich habe das mal als Änderung vorgenommen. Genauso das Fenster planrechts, das hängt dermaßen in der Ecke, da wäre es schön, wenn statt 12,5 cm Wandabstand weitere 30 cm dazukämen. Habe ich jetzt auch mal so versetzt.


Hochschränke dann getrennt ... einerseit den SbS, der nicht direkt an eine Wand gestellt werden kann, da sonst die Türen zum Entnehmen von Gemüseschubladen etc. nicht voll geöffnet werden können. Daher jetzt mal mit Trockenbau umbaut. Der kann im hinteren Bereich der Wand auch offen sein und da könnte noch ein Wasserhahn sitzen, um den Sbs anzuschließen.

Kamin und WZ-Eingangstür verschoben. Die WZ-Eingangstür dann in etwa ggü. der Treppe.

- Vorrats/Geschirrhochschrank (der könnte auch einfach entfallen)
- BO/MW-Hochschrank
- hochgestellte GSP
- Der Spülenschrank als 90er, damit man statt 1 Becken und Abtropfe einfach 2 große Becken wählen kann. Abtropfen können Sachen auch in einem Becken, sie sind damit aber gleich etwas aus der Ansicht von Ess-/Wohnzimmer entfernt.
Im oberen Auszug dann noch Platz für eine kleine Putzreling, der untere Auszug ist Stauraum, z. B. Platz für Küchenmaschine, die dann mit einem Griff dort rausgehoben werden kann:
full
full

- 45er Müll direkt unter der APL ... der zweite Auszug unten ist Stauraum, z. B. für hohe Essig/Ölflaschen usw:
full


- tote Ecke
- 80er Auszugsunterschrank, insbesondere Küchenhelfer, Schüsseln, Tupper, Folien usw.
- 80er Auszugsunterschrank für Kochfeld, Kochbesteck, Töpfe, Pfannen, Auflaufformen etc.
- 50er Auszugsunterschrank insbesondere Gewürze, Mehl, Zucker uws.
- der umkofferte SbS

Dann eine Insel aus 2x100er Auszugsunterschränken, hier insbesondere Geschirr, Besteck, Serviergeschirr, zur Tischseite hin auch Tischwäsche, Servietten, usw. usw.

Stauraumplanung ist erforderlich. Ich könnte mir z. B. den Inselunterschrank Richtung Essbereich auch als 2x3rasterig, oben evtl. mit Innenschublade vorstellen. Z. B. Platz auch für Vasen etc.

Von der Insel einen 45cm tiefen APL-Überstand zum Sitzen. Damit kommen sich Küchenstühle und Tischstühle nicht ins Gehege.

Insgesamt ergibt sich da auch eine schöne Inselgröße von ca. 145x120 cm ... Kekse backen, Buffet anrichten usw. Deshalb auf jeden Fall nicht vergessen Strom für die Insel legen zu lassen. Küchentante hat da ein tolles System empfohlen, was man auch gut in die Wange der Insel einbauen kann --> https://www.elektrogeraete.net/Steckdosenelement-Twist.html
 

Anhänge

  • kf_parameter_20130105_MelaKB-1_ver13.kpl
    3,9 KB · Aufrufe: 166
  • kf_parameter_20130105_MelaKB-1_ver13.POS
    18,8 KB · Aufrufe: 205
  • kf_parameter_20130105_MelaKB-1_ver13_Ansicht1.jpg
    kf_parameter_20130105_MelaKB-1_ver13_Ansicht1.jpg
    116,1 KB · Aufrufe: 165
  • kf_parameter_20130105_MelaKB-1_ver13_Ansicht2.jpg
    kf_parameter_20130105_MelaKB-1_ver13_Ansicht2.jpg
    146,5 KB · Aufrufe: 172
  • kf_parameter_20130105_MelaKB-1_ver13_Ansicht3.jpg
    kf_parameter_20130105_MelaKB-1_ver13_Ansicht3.jpg
    167,4 KB · Aufrufe: 164
  • kf_parameter_20130105_MelaKB-1_ver13_Ansicht4.jpg
    kf_parameter_20130105_MelaKB-1_ver13_Ansicht4.jpg
    151,4 KB · Aufrufe: 173
  • kf_parameter_20130105_MelaKB-1_ver13_Ansicht5.jpg
    kf_parameter_20130105_MelaKB-1_ver13_Ansicht5.jpg
    177,2 KB · Aufrufe: 183
  • kf_parameter_20130105_MelaKB-1_ver13_Grundriss.jpg
    kf_parameter_20130105_MelaKB-1_ver13_Grundriss.jpg
    84,6 KB · Aufrufe: 409
AW: Neubau und die Küchenplanung,..

Vielen Dank erstmal für die Beiträge an Euch. :-)

Wir haben uns in die Küchenfront "Eiche Chalet" von Nolte verguckt. (http://www.nolte-kuechen.de/var/sto...1-ger-DE/Chalet-Eiche-CED_layermotiv-oben.jpg)
Vergleichbar wäre da die Asteiche sägerau von Schüler, aber das Sägerau gefällt uns dabei nicht allzu sehr. (http://www.schueller.de/data/Image/Fronten/490_big_bari_k731.jpg)
Auf den Bildern sieht der Unterschied gar nicht so groß aus, aber als wir diese im Küchenstudio angeschaut haben war die Entscheidung dann doch recht schnell gefällt.

Daher werden wir wohl, da dann doch die Optik siegt, mit dem 5er Raster vorlieb nehmen ;-)

Zwecks Kaminzug-Verschiebung müssen wir noch einmal mit dem Bauträger reden. Zumindest ist es möglich, dies wissen wir aus früheren Gesprächen, diesen in die Ecke in den Flur zu legen, so dass er im Wohn/Ess-Zimmer gar nicht mehr "behindert".


Was nun bei den Planungen ins Auge sticht, dass der Esstisch immer direkt mittig steht, so dass man wenn man z.B. in den Garten möchte immer um den Tisch herumschlängeln müsste oder aber direkt an eine Theke angeschlossen ist. Dies gefällt uns nicht so gut. Vielleicht sieht es aber auf den Bildern nur enger aus als es eigentlich ist,...
Daher sagt uns die Planung auf der linken Seite eher zu.


Haben uns in der Zwischenzeit auch noch einmal Gedanken gemacht und die Küche links geplant mit zusätzlicher Tür von Flur in Küche. Hier wäre dann der Kaminzug als "Wandverlängerung" für die Halbinsel vorgesehen. Ob dies möglich ist, müsste wie gesagt noch mit dem Bauträger geklärt werden.
Die Flach-Abzugshaube wollen wir als im Schrank integrierte Lösung.
Was haltet Ihr davon?
(Die genauen Schranktypen, auch wegen dem Müll unterhalb der Arbeitsplatte , welches eine tolle Sache ist, sind bei den Schrankrastern noch nicht berücksichtigt.)

Wie sieht das generell mit den (Unter-)Schrankbreiten aus? Sind 45er Auszüge, dafür aber halt mehrere unpraktischer als 80er oder dementsprechend 90er?

Viele Grüße
parameter
 

Anhänge

  • kf_parameter_links_Ansicht1.jpg
    kf_parameter_links_Ansicht1.jpg
    45,9 KB · Aufrufe: 181
  • kf_parameter_links_GR.jpg
    kf_parameter_links_GR.jpg
    38,4 KB · Aufrufe: 193
  • kf_parameter_links_Ansicht2.jpg
    kf_parameter_links_Ansicht2.jpg
    47,7 KB · Aufrufe: 173
  • kf_parameter_links_Ansicht3.jpg
    kf_parameter_links_Ansicht3.jpg
    55,6 KB · Aufrufe: 181
  • kf_parameter_links_Ansicht4.jpg
    kf_parameter_links_Ansicht4.jpg
    65,7 KB · Aufrufe: 216
  • kf_parameter_links_Ansicht5.jpg
    kf_parameter_links_Ansicht5.jpg
    49,8 KB · Aufrufe: 178
  • kf_parameter_links.kpl
    3,9 KB · Aufrufe: 181
  • kf_parameter_links.POS
    16,3 KB · Aufrufe: 192
AW: Neubau und die Küchenplanung,..

Deine Planung gefällt mir überhaupt nicht.

Nur wegen der Optik auf 5-Raster zu gehen halte ich für sehr fragwürdig. Überlege einmal wie hoch dann der Sockel der Küche wird. 65 cm Korpushöhe, 4 cm Arbeitsplatte und 22 cm Sockel = gewünschte Arbeitshöhe von 91 cm.
Ich würde noch bei anderen Küchenanbietern schauen ob es dort eine Front im 6-Raster gibt, die euch gefällt.

Dann hast du viele - zuviele - schmale Schränke verbaut. Die kosten - einmal von dem Stauraumverlust abgesehen - im Verhältnis mehr.

Warum 2x 30er Hochschränke anstelle eines 60ers?

Spülmaschine befindet sich im Laufweg zwischen Spüle und Herd.

Der abgeschrägte Abschlussschrank ist einfach :-X und passt vielleicht in eine Landhausküche .

In deinen Eröffnungsthread schreibst du:
Wofür soll der Sitzplatz in der Küche genutzt werden? Wie häufig? : schnelles Frühstücken an der Theke.
Kaffee trinken.
Beim Kochen/Zubereiten zuschauen
Bei deiner geplanten Sitzpostition kannst du die Hochschrankwand anschauen und sonst niemanden.

Wenn du eine Küchentür setzt, würde ich den direkten Zugang zum HWR schließen. Denn dann hättest du zusätzliche Stellfläche sowohl in der Küche als auch im HWR.

Ich finde eine Verschiebung des Kamins ist bei der Küche planlinks nicht erforderlich, könnte aber erfolgen.

Optisch erschlägt mich die dunkle Nischenverkleidung , aber dies ist Geschmackssache.

Ich habe dir einmal die Stühle so gestellt, wie normalerweise geplant wird, damit du erkennst, warum wir den Tisch mittig gestellt haben.

Jetzt hoffe ich, dass du wegen meiner Kritik nicht sauer bist.


Edit:
Sorry,
ich habe mich vertan, bei Nolte ist die Korpushöhe 65 cm sondern 75 cm. Also ist die gewünschte Arbeitshöhe voll im grüßen Bereich.
 

Anhänge

  • parameter_Tisch.JPG
    parameter_Tisch.JPG
    39,7 KB · Aufrufe: 168
Zuletzt bearbeitet:
AW: Neubau und die Küchenplanung,..

Ich unterschreibe voll bei Mela ... ;-) und verstehe auch nicht, warum du den Kaminschacht bei Küche planlinks verschieben willst. Und der Wunsch einer hochgebauten GSP ist auch nicht erfüllt ;-)

Und dann verstehe ich auch nicht, warum du von herumschlängeln sprichst ... Alle 4 Terrassentüren sind frei und bei Küche planrechts hat man sogar von der Küche direkten Terrassenzugang. Man könnte sich überlegen, die rechte Terrassentür andersherum anschlagen zu lassen.

99855d1357381476-neubau-und-die-kuechenplanung-kf_parameter_20130105_melakb-1_ver13_grundriss.jpg



Auch, wenn du noch keine genaue Schrankwahl getroffen hast, ist es immer mal sinnvoll, wenn du eine Planung vorstellst, kurz zu beschreiben was du wohl wo unterbringen möchtest.

__________________________In deiner Planung planoben wird es wohl nicht passen, insgesamt 120 cm Hochschrank neben den SbS zu stellen, wenn dort die HWR Tür sein soll. Hochschränke brauchen ca. 5 cm Blende zu einer Wand hin.
 
AW: Neubau und die Küchenplanung,..

Ich habe noch einmal an der planlinken Küche geschoben.
Die Küchentür habe ich eingebaut und dafür den Zugang zum HWR entfernt, so bekommst du die gewünschte hochgebaute SpüMa.

Nun zur Planung, beginnend planoben rechts:
5 cm Blende
45er Vorrat mit Innenauszügen
Blende
Kühlschrank
BO
hochgesetzte SpüMa
tote Ecke

planlinks, ab toter Ecke, Arbeitshöhe 91 cm:
30er Auszug 3-3 für Müll unter der Arbeitsfläche
60er Spüle 3-3
100er Auszug 1-1-2-2
90er Auszug 1-1-2-2 mit 80er Kochfeld linksbündig
60er Auszug 1-1-2-2
Blende

Insel:
80er Auszug
90er Auszug, geplant jeweils mit 1-1-2-2 kann aber auch 1-3-2 oder 2-2-2 oder 3-3 mit Innenauszügen sein
Gegengestellt:
50er Drehtür oder p2o
überstehende Arbeitsplatte für Sitzplätze
Hier würde ich die Arbeitshöhe dem größeren Nutzer anpassen.
 

Anhänge

  • ParameterL_Mela2.KPL
    3,9 KB · Aufrufe: 159
  • ParameterL_Mela2.POS
    17,2 KB · Aufrufe: 169
  • ParameterL_Mela2_AZ.jpg
    ParameterL_Mela2_AZ.jpg
    64,1 KB · Aufrufe: 176
  • ParameterL_Mela2_Draufsicht.jpg
    ParameterL_Mela2_Draufsicht.jpg
    62,6 KB · Aufrufe: 160
  • ParameterL_Mela2_Grundriss.JPG
    ParameterL_Mela2_Grundriss.JPG
    43,2 KB · Aufrufe: 177
  • ParameterL_Mela2_Insel.jpg
    ParameterL_Mela2_Insel.jpg
    62,9 KB · Aufrufe: 174
  • ParameterL_Mela2_Inselrück.jpg
    ParameterL_Mela2_Inselrück.jpg
    61,6 KB · Aufrufe: 172
AW: Neubau und die Küchenplanung,..

Mela, *patsch* ... ich habe so ähnlich geplant ;-)

Hochschrankwand von rechts nach links:
- 60er Stauraum
- SbS
- 60er Stauraum
- BO/MW
- GSP hochgebaut ... als Verbindung dann einen niedrigen Auszugsunterschrank .. kleiner Fenstersitzplatz. Über diesem geht dann normalerweise die Klappe der GSP auf.

Lange Zeile:
- 90er Spülenschrank wie erste Planung
- 45er Müll unter der APL wie erste Planung
- 60er Auszugsunterschrank
- 80er Auszugsunterschrank für Kochfeld
- 80er Auszugsunterschrank

Hier dann über dem Kochfeld 90er Hängeschrank, rechts und links je einen 60er Hängeschrank.

Insel dann aus 2x80er Unterschränken mit Sitzmöglichkeit ggü. dem Fenster.

Tisch planunten an der Wand. Zum Öffnen der Terrassentüren stehen die Stühle dann ordentlich rangeschoben.
 

Anhänge

  • kf_parameter_20130105_KB-2_ver13.kpl
    3,9 KB · Aufrufe: 161
  • kf_parameter_20130105_KB-2_ver13.POS
    18,5 KB · Aufrufe: 166
  • kf_parameter_20130105_KB-2_ver13_Ansicht1.jpg
    kf_parameter_20130105_KB-2_ver13_Ansicht1.jpg
    147,1 KB · Aufrufe: 339
  • kf_parameter_20130105_KB-2_ver13_Ansicht2.jpg
    kf_parameter_20130105_KB-2_ver13_Ansicht2.jpg
    92,7 KB · Aufrufe: 175
  • kf_parameter_20130105_KB-2_ver13_Ansicht3.jpg
    kf_parameter_20130105_KB-2_ver13_Ansicht3.jpg
    147,9 KB · Aufrufe: 198
  • kf_parameter_20130105_KB-2_ver13_Ansicht4.jpg
    kf_parameter_20130105_KB-2_ver13_Ansicht4.jpg
    122,9 KB · Aufrufe: 179
  • kf_parameter_20130105_KB-2_ver13_Ansicht5.jpg
    kf_parameter_20130105_KB-2_ver13_Ansicht5.jpg
    123,5 KB · Aufrufe: 170
  • kf_parameter_20130105_KB-2_ver13_Ansicht6.jpg
    kf_parameter_20130105_KB-2_ver13_Ansicht6.jpg
    179,3 KB · Aufrufe: 170
  • kf_parameter_20130105_KB-2_ver13_Grundriss.jpg
    kf_parameter_20130105_KB-2_ver13_Grundriss.jpg
    88,3 KB · Aufrufe: 379
AW: Neubau und die Küchenplanung,..

Kestin,
schön, dass ich einmal fast die gleichen Einfälle wie du hatte. :-)

Aber mich würden die Oberschränke vom Ess-/Wohnzimmer stören. Ich fände eine stylische Abzugshaube - am liebsten Deckenhaube am schönsten. Ist aber eine Frage des Geldes.
 
AW: Neubau und die Küchenplanung,..

Wow, vielen Dank für die Planungen.
Sind sich ja beide recht ähnlich und gefallen uns schon gut. ;-)

Und nein Mela, bin nicht sauer auf Dich wegen der Kritik. Dafür ist so ein Forum doch nunmal auch da.

So, nun zu Euren Anmerkungen:
- Hatte dort 2x30cm Hochschränke verplant, da es am Anfang noch angedacht war einen Apotheker für Öl-/Essigflaschen, Backzeug wie Mehl, Zucker, Kakao, etc. zu nehmen. Und der andere 30er weil da nichts breiteres mehr. ;-)Auch würde uns eigentlich ein Schrank mit Tandemauszug reizen, aber lohnen vom Stauraum wird der sicherlich nicht, oder?!

- Warum ist GSP zwischen Herd und Spüle ungeeignet? Haben wir derzeit seit ca. 3 Jahren in unserer Wohnung auch so und aufgeregt habe ich mich darüber bisher nie,..

- Den Kaminschacht wollte ich verschieben, damit die Halbinsel erst ab alleinstehender Arbeitsfläche hervorsteht.


So nun dann mal zu Euren Planungen:
Der umbaute SbS gefällt uns bei beiden Planungen nicht wirklich gut, da dieser ja auch tiefer als die anderen Schränke ist und daher immer hervor schauen würde. Auch wäre bei einem Wechsel des Gerätes (ich hoffe das dies nicht all zu schnell geschieht) immer ein Kühlschrank selber Größe einzubauen. Daher würden wir ihn, wenn die Tür zum HWR weg ist, lieber an der planlinken Wand als freies Gerät stehen haben. Quasi als Abschluss der Küchenleiste.

Der Platz auf der Arbeitsfläche bei Kerstins Variante ist recht knapp bemessen, obwohl der GSP dort natürlich prima zu bedienen / einzuräumen wäre. ;-) Aber so kommen wird damit leider nicht hin. (Kaffemaschine, Milchaufschäumer, Toaster)

Haben nun mit Hilfe eurer guten Vorschläge auch nochmal etwas erstellt. Die Tür zum HWR Raum ist nun weg, ebenso die Tür zum Flur, die bei der nun frei im Raum stehenden Insel nicht benötigt wird. Wand ist nun dort auch um 45° abgeschrägt um einen besseren Durchgang zu bekommen. Ebenfalls ist nun die Dunstesse frei sichtbar, da der eine Schrank dort doch recht alleine aussähe.

Beginnend planoben rechts:
- Blende
- 60er Vorratsschrank (evtl. als Tandemschrank)
- BO
- hochgesetzte GSP
- 90er Auszug 1-2-2
- tote Ecke
Darüber dann Hochschränke für ein paar wenige Kochbücher 15cm und einmal 80cm für Teller/Tassen. Daneben dann noch Eckschrank und Abschlussregal.

Lange Zeile:
- tote Ecke
- 60er Auszug 2-3
- 60er Spülenschrank, (welche Variante macht hier am meisten Sinn; Innenauszug?) mit Becken und Restebecken
- 45er Auszug 2-3 für Müll unter Arbeitsfläche
- 45er Auszug 2-3 (um das Fensterende zu erreichen zwecks Herd
- 90er Auszug 1-2-2 für 90er Induktionskochfeld
- 45er Auszug 1-2-2
- SBS

Insel:
- 80er Auszug 1-2-2
- 80er Auszug 1-2-2
Arbeitsplatte 30cm überstehend als Theke

Ich bin auf Eure Kommentare gespannt :-)

Viele Grüße
parameter
 

Anhänge

  • kf_parameter_links_Var_2_Ansicht1.jpg
    kf_parameter_links_Var_2_Ansicht1.jpg
    53,6 KB · Aufrufe: 179
  • kf_parameter_links_Var_2_GR.jpg
    kf_parameter_links_Var_2_GR.jpg
    40,8 KB · Aufrufe: 331
  • kf_parameter_links_Var_2_Ansicht2.jpg
    kf_parameter_links_Var_2_Ansicht2.jpg
    56,8 KB · Aufrufe: 192
  • kf_parameter_links_Var_2_Ansicht3.jpg
    kf_parameter_links_Var_2_Ansicht3.jpg
    47,6 KB · Aufrufe: 184
  • kf_parameter_links_Var_2_Ansicht4.jpg
    kf_parameter_links_Var_2_Ansicht4.jpg
    55,9 KB · Aufrufe: 184
  • kf_parameter_links_Var_2_Ansicht5.jpg
    kf_parameter_links_Var_2_Ansicht5.jpg
    56,9 KB · Aufrufe: 335
  • kf_parameter_links_Var_2.kpl
    3,9 KB · Aufrufe: 178
  • kf_parameter_links_Var_2.POS
    17,5 KB · Aufrufe: 163
AW: Neubau und die Küchenplanung,..

"SteinvomHerzfall" dass du nicht sauer bist.;-):-)

Wieso ist auf einmal die Wand schräg geworden? Würde ich auf keinen Fall machen bei einem Neubau. Die Lösung mit der Küchentür und verschobener Wohnzimmertür war doch gut.

Den Kühlschrank würde ich auf jeden Fall planoben rechts stellen und den Unterschrank wegfallen lassen. Wenn du im Wohnzimmer sitzt würdest du immer den Kühli sehen. Ist das wirklich erstrebenswert?

Anstelle von 45 und 90 und 45 kannst du auch 90 und 90 an der planlinken Wand nehmen und das Kochfeld mittig setzen. Allerdings gefällt mir die DA so direkt neben dem Fenster nicht. Es sollte meiner Meinung nach doch zumindest ein geringer Abstand sein.

Aber deine jetzige Planung ist bereits wesentlich besser.:-)
 
AW: Neubau und die Küchenplanung,..

So eine schräge Ecke ist für mich leider ein rotes Tuch :kiss: Vor allem, weil ich finde, dass sie dort nichts bringt, dafür aber im Flur unnötige Enge erzeugt. (der ist da bei euch eh nicht so breit .. möbliert den mal mit der Ecke)

99973d1357422125-neubau-und-die-kuechenplanung-kf_parameter_links_var_2_gr.jpg



99916d1357402255-neubau-und-die-kuechenplanung-kf_parameter_20130105_kb-2_ver13_grundriss.jpg


Der schräge Eckhängeschrank paßt eigentlich überhaupt nicht zu einem modernen Ambiente. Und ist auch nicht so gut zugänglich.

Die GSP ist selbst mir etwas zu weit von Spüle/Müll entfernt.

Das Ministück APL zwischen Kochfeld und Spüle finde ich zum Arbeiten nicht ausreichend.

Der SbS steht auch bei eurer Planung vor und hat noch dazu die denkbar ungünstigste Kühlteilöffnung ... schön von der Hauptarbeitszone der Küche weg. Das ist eben die Crux bei so einem SbS.
__________________________
99977d1357422125-neubau-und-die-kuechenplanung-kf_parameter_links_var_2_ansicht5.jpg


99922d1357402255-neubau-und-die-kuechenplanung-kf_parameter_20130105_kb-2_ver13_ansicht1.jpg


__________________________
GSP zwischen Spüle und Kochfeld. ... Wenn ich koche, dann habe ich gerne die GSP auch mal ein wenig offen .. dann kann ich alles, was ich nicht mehr brauche, gleich dort verstauen. Deshalb ungünstig zwischen Spüle und Kochfeld. Außerdem finde ich Ausräumen in eine Richtung wesentlich praktischer, als immer um die Klappe herum. :cool:

__________________________Apotheker und Tandemschränke (schon recht teuer) haben den Nachteil, dass man immer den kompletten Inhalt bewegen muss, um ein kleines Teil herauszuholen.

Daher empfehlen wir eher Hochschränke mit Innenauszügen. Da kann man die Abstände größtenteils selber bestimmen und hat nicht so viel Masse zu bewegen:
-


__________________________
Meine Planung jetzt ohne die Sitzecke und nur einen 45er Vorratsschrank. Dafür über der toten Ecke einen tiefen Hängeschrank für alles selten benötigte. Daneben noch ein 15er Hängeschrank analog zu unten. Oben könnte man gerade nicht benötigte Backbleche etc. senkrecht einstellen und unten könnte man Handtücher hängen.

Die lange Zeile jetzt
- 60er nach der toten Ecke
- 90er Spülenschrank mit Doppelbecken (in einem kann auch etwas abtropfen, man kann aber auch etwas abspülen) so wie oben schon beschrieben.
- 45er Müll unter der APL
- 3x 80er Auszugsunterschrank

Überstehende APL der Insel jetzt 35 cm. Im Grunde braucht man die Sitzplätze dort nicht, weil der Tisch ja gleich unterhalb steht.

Zum Umbau des SbS ... nach oben hin ist ja Spiel. Statt dem Schrankfach kann man auch einfach nur ein Regalbrett auf Oberkante der Hochschränke rechts und links als verbindendes Teil einsetzen. Bei der Planung jetzt hat der Schrank die Unterkante von ca. 191 cm. Für SbS wähle ich immer das Breitenmaß von 91 cm.

Mal so nebenher, warum soll es eigentlich unbedingt ein SbS sein?
 

Anhänge

  • kf_parameter_20130105_KB-3_ver13_Grundriss.jpg
    kf_parameter_20130105_KB-3_ver13_Grundriss.jpg
    86,7 KB · Aufrufe: 158
  • kf_parameter_20130105_KB-3_ver13_Ansicht4.jpg
    kf_parameter_20130105_KB-3_ver13_Ansicht4.jpg
    167,1 KB · Aufrufe: 179
  • kf_parameter_20130105_KB-3_ver13_Ansicht3.jpg
    kf_parameter_20130105_KB-3_ver13_Ansicht3.jpg
    156,7 KB · Aufrufe: 192
  • kf_parameter_20130105_KB-3_ver13_Ansicht2.jpg
    kf_parameter_20130105_KB-3_ver13_Ansicht2.jpg
    124,4 KB · Aufrufe: 172
  • kf_parameter_20130105_KB-3_ver13_Ansicht1.jpg
    kf_parameter_20130105_KB-3_ver13_Ansicht1.jpg
    133,8 KB · Aufrufe: 169
  • kf_parameter_20130105_KB-3_ver13.POS
    19,1 KB · Aufrufe: 198
  • kf_parameter_20130105_KB-3_ver13.kpl
    3,9 KB · Aufrufe: 169

Ähnliche Beiträge

Neff Hausgeräte Ballerina Küchen Blum Bewegungstechnologie Weibel - Intelligente Küchenlüftung

Neff Spezial

Blum Zonenplaner

Weibel Abluft-Tuning

Weibel Abluft-Tuning
Zurück
Oben