Fertig mit Bildern Meine Neue Küche

also so

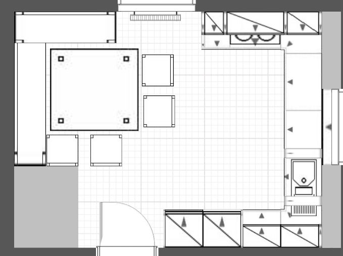
die nWand planunten vonrechts beginnend
90er Spülenschrank
40er US
60er HS BO/GSP
60er HS Kühli
Wange

= 250cm + Wange

am Fenster

2 x 80 - 50 - 90 Spüle

oder 90-80-40-90, wenn MUPL nur 40cm breit werden soll

Albert21.JPG Albert22.JPG Albert23.JPG
 

Anhänge

  • Albert_Evelin_PLAN2.KPL
    3,9 KB · Aufrufe: 122
  • Albert_Evelin_PLAN2.KPL
    3,9 KB · Aufrufe: 124
also, Platz haben wir genug. Wenn man unser altes Teil anschaut sind dort die Ecken sehr weit reingezogen und wir haben gerade mal 220cm Oberschränke und 220cm Unterschränke mit einer Mülltüre unter der Spüle.
Die Eckspüle ist einfach dem Harmoniebedürfnis geschuldet, weil dann zwei 80iger den Geschirrspüler einrahmen und eine harmonische Draufsicht entsteht. Übrigens auch auf der Kochfeldseite mit zwei 15-er die das 100er Kochfeld einrahmen mit den gleichen Oberschrankbreiten drüber. Also, Harmonie ist unser erstes Credo.
Und ein Deckenlüfter saugt aus meiner Sicht nur Dampf, kein Fett, aber die Diskussion wird ja schon in anderen Foren geführt.
Wenn mir jemand eine ästhetische DAH zeigen könnte, wäre ich noch zu haben, aber diese Blechtöpfe, Pseudokamine und LCD-Fernseher-Imitate bringen mich nicht von meiner Mulde weg. Da wäre höchstens die Frage was besser ist als Bora .
 
also so

die nWand planunten vonrechts beginnend
90er Spülenschrank
40er US
60er HS BO/GSP
60er HS Kühli
Wange

= 250cm + Wange

am Fenster

2 x 80 - 50 - 90 Spüle

oder 90-80-40-90, wenn MUPL nur 40cm breit werden soll

Anhang anzeigen 176207 Anhang anzeigen 176208 Anhang anzeigen 176209
Du sprudelst ja nur so vor Ideen.
Der Müll soll als Auszugsschrank unter die Spüle weil meine GG dort einen elektrischen Auszug, also Tiptronic will und GSP unter BO ist nicht gewollt, weil sich da der Spüler und die Köchin in die Haare kriegen.

Danke vielmals und viele Grüße
Albert
 
jetzt muss ich doch mal dumm fragen, was du vom Forum erwartest, wenn es schon feststeht, wie die Küche aussehen soll. Dann bestelle sie doch so. Die Tipperei heute hätte ich sparen können.
 
jetzt muss ich doch mal dumm fragen, was du vom Forum erwartest, wenn es schon feststeht, wie die Küche aussehen soll. Dann bestelle sie doch so. Die Tipperei heute hätte ich sparen können.
ups, ich wollte niemand beleidigen. Aber meine Planung einfach über den Haufen schmeissen will ich auch nicht. Mir stellen sich immer noch die Fragen ob die Hochschrank -Oberschrank -Aufteilung besser ginge, ob es Alternativen zu Nieburg gibt, oder zu Bora . Ansosnten waren es ja bisher gute Einwürfe, aber ich diskutiere ja schon seit November mit Anbietern und Angehörigen und da sind einige Themen halt schon durch.

Trotzdem danke für die vielen guten Einfälle
Albert
 
Nun ja, Deckenlüfter sind ja schon mal sehr unauffällig ;-) und daran kann man sich wirklich nicht stoßen. :cool:

Eigentlich dachte ich ja, die Küche sollte schön und praktisch sein und nun dies hier:
Naja, wie sagte schon Adenauer: "Was interessiert mich mein Geschwätz von gestern". Bestimmte Sachen werden einem halt erst in der breiteren Diskussion mit u beteiligten klar.
Danke
Albert

Mal von der Eckspüle abgesehen sind die 2 x 15er Schränke ja auch nicht unbedingt praktisch.
 
Sorry,aber Tiptronic für Abfallsammler in einem 90er Spüleneckschrank ist das unsinnigste was ich seit Mitte der 90er gehört habe.Du musst hierfür ein Abfallsystem für eine 40er Front verplanen,der Spülenschrank ist nur zu einem Bruchteil nutzbar und
im geöffnetem Zustand blockierst du 2 Schränke.Ich hab ja schon in den 90ern nur unter Gewaltandrohung 90er Spülecklösungen verplant,aber dann wenigstens den Abfall im Nachbarschrank.Da konnte man den Spülenschrank wenigstens für selten benutzte
sperrige Sachen(Eimer/Plastikschüsseln)im hinteren Bereich und Putzmittel im vorderen Bereich nutzen.
LG Bibbi
 
Ich kann da alle nur unterstützen. Eine Eckspüle mit Tipp-Müllsystem ist wirklich ausgenommen unpraktisch. Evelins Pläne zeigen da schon Vorteile.

Lackierte Echtholzfronten mit Sichtbarkeit der Maserung gibt es z. B. auch von Häcker , die Serie Bristol. Meine Eltern haben da gerade eine neue Küche bekommen.

Lösung Berbel -DAH als Flachschirmhaube:
diebs_20141228_fertig3-jpg.173152


Zu MUPL ... sieh dir mal die Bilder an MUPL-Album

Und, eine Bitte, Vollzitate nur, wenn der Zusammenhang absolut nicht klar wird. Die Texte lassen sich sonst immer so unflüssig lesen .. Danke ;-)
 
So, und jetzt nochmal etwas angepaßt. Rundum:

- 40er für Gewürze, spezielle Kochvorräte etc.
- 80er für frei wählbares Kochfeld mit Ideal-Kochenstellen-Einteilung.
- tote Ecke

Dadrüber
30er Hängeschrank mit Seitenverkleidung
90er Hängeschrank für DAH
50er Hängeschrank

Unten geht es dann nach der toten Ecke weiter mit
- 90er Auszugsunterschrank
- 60er MUPL Unterschrank
- 90er Spülenschrank, im oberen Auszug Putzmittel, Handtuchvorrat usw., unten Stauraum, Spüle mittig bzw. auf jeden Fall so, dass sie im Fensterbereich nicht stört
- tote Ecke
- 60er Auszugsunterschrank .. hier in der Ecke kann dann guter Abstellplatz für Kaffeemaschine und Allesschneider sein
- 60er GSP nicht hochgestellt, drüber Backofen und Schrankfach
- 60er Hochschrank für 122er Kühlschrank
An dieser Seite dann noch 2x60er Hängeschrank.

Arbeitsplatte in die Fensterlaibung laufend.
 

Anhänge

  • Al_bert_de_20150126_kb1.kpl
    3,9 KB · Aufrufe: 132
  • Al_bert_de_20150126_kb1.POS
    11,7 KB · Aufrufe: 136
  • Al_bert_de_20150126_kb1_Grundriss.jpg
    Al_bert_de_20150126_kb1_Grundriss.jpg
    37,8 KB · Aufrufe: 141
  • Al_bert_de_20150126_kb1_Ansicht4.jpg
    Al_bert_de_20150126_kb1_Ansicht4.jpg
    43 KB · Aufrufe: 146
  • Al_bert_de_20150126_kb1_Ansicht3.jpg
    Al_bert_de_20150126_kb1_Ansicht3.jpg
    31,3 KB · Aufrufe: 174
  • Al_bert_de_20150126_kb1_Ansicht2.jpg
    Al_bert_de_20150126_kb1_Ansicht2.jpg
    42,1 KB · Aufrufe: 153
  • Al_bert_de_20150126_kb1_Ansicht1.jpg
    Al_bert_de_20150126_kb1_Ansicht1.jpg
    42 KB · Aufrufe: 151
So ist recht,Kerstin, schön landhausig und trotzdem aufgeräumt und funktionell.

LG Bibbi
 
der Entwurf hat gezündet, die Spüle ist aus dem Eck.
Jetzt gehts weiter. Warum kein Muldenlüfter sondern eine DAH die wie ein Schrank ausschaut.
Warum keine Glasschränke neben dem Fenster?
Die KS empfehlen(zumindest die bei denen wir waren) Miele , mir würde aber als Backofen auch die Bosch Serie 8 gefallen. Gibts dazu ne Meinung?
 
Hängeschränke an der Fensterwand ... dann muss man irgendwie mit den Hängeschränken ums Eck kommen und hat entweder Eckhängeschränke, die ich recht unpraktisch finde oder wählt auch dort tote Ecken. Das paßt aber nicht so ganz gut mit der aktuellen DAH-Planung.

DAH im Schrank .. es bleibt guter und bequemer Stauraum im Unterschrankbereich und es wird nur Stauraum im Hängeschrank in einer Höhe vernichtet, die man eh nicht gut bedienen kann. Außerdem ist man absolut frei in der Kochfeldwahl.
 
Hängeschränke an der Fensterwand ... dann muss man irgendwie mit den Hängeschränken ums Eck kommen und hat entweder Eckhängeschränke, die ich recht unpraktisch finde oder wählt auch dort tote Ecken. Das paßt aber nicht so ganz gut mit der aktuellen DAH-Planung.

DAH im Schrank .. es bleibt guter und bequemer Stauraum im Unterschrankbereich und es wird nur Stauraum im Hängeschrank in einer Höhe vernichtet, die man eh nicht gut bedienen kann. Außerdem ist man absolut frei in der Kochfeldwahl.
akzeptiert und danke. Wir würden dann aber die Hängeschränke auf der Seite der Hochschränke komplett weglassen, was sagt die Fachfrau dazu?
 
Das muss eure Stauraumplanung ergeben. Wenn jedoch auf der anderen Seite am Kochfeld die Hängeschränke bleiben, dann würde ich auf Hochschrankseite wohl auch welche setzen.

Alternativ eher die Hängeschränke auf Hochschrankseite lassen und dafür evtl. an Kochfeldseite keine Hängeschränke sondern entweder einen guten Lüfterbaustein im landhausigen DAH-Umbau oder eine schicke Wandhaube. Da gibt es ja auch Sachen, die durchaus zum Landhausstil passen.
 
Wenns nur um Stauraum ginge, bräuchten wir gar keine Hängeschränke.
Aber Gläser sind halt im Hänger besser aufgehoben.
Ohne Hängeschränke rechts könnte man die Hochschränke niedriger bauen, die Fächer über den Geräten sind für kleinere Menschen schwer zu erreichen.
 
so, wir haben fertig. Vielen Dank, vor allem an Kerstin, man kann sich halt an einem fertigen Vorschlag gut reiben. Ohne wären wir wohl weiter durch die KS und Schreinereien gestolpert. Die einen wollen einen Holzladen verkaufen, die anderen lassen dich planen ohne eigene Vorschläge zu bringen, zumindest ging es uns so.
Aber jetzt könne wir auf der Basis Angebote einholen, mal schauen ob es Häcker , Nieburg oder Schreiner wird.
 
ja, wird aber dauern.Wir wollen erst im Juni umbauen, damit wir in der Umbauphase im Freien essen können.
 
Neff Hausgeräte Ballerina Küchen Blum Bewegungstechnologie Weibel - Intelligente Küchenlüftung

Neff Spezial

Blum Zonenplaner

Weibel Abluft-Tuning

Weibel Abluft-Tuning
Zurück
Oben