Der Storch
Mitglied
- Beiträge
- 18
Küchenplanung Neubau RMH - eure Expertise benötigt
Ein Hallo aus Rhein-Main,
aktuell befindet sich unser neues Reihenmittelhaus im Bau und müssen nun die Küche planen.
Aktuell haben wir eine alte, sehr günstige Pino im Einsatz, die es gerade noch so bis zum Jahresende schaffen wird
daher haben wir in Sachen Funktionalität oder Komfort keine echte Grundlage zwecks Vergleich.
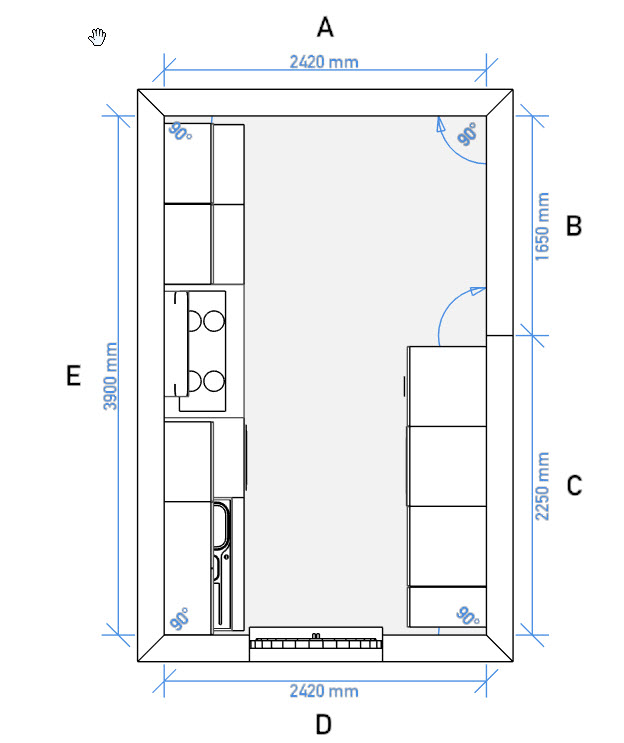
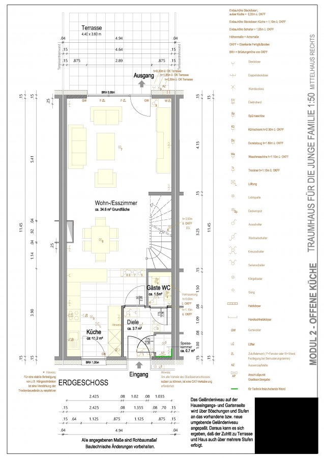
In diesem RMH sind die Zustände relativ beengt und es handelt sich um eine offene Küche. Das ganze soll auch 2-zeilig werden, da die Forumsbeiträge bzgl. Kosten, Stauraumverschwendung etc. plausibel klingen, das ganze auch bezogen auf einen Apotherschrank, welchen wir auch verworfen haben. Folgende Themen erschließen sich mir nicht ganz transparent bzw. kann ich überhaupt nicht einschätzen:
1. Material und Oberfläche: Da gibt es mittlerweile so viele Varianten, ohne Erfahrung zu haben was wirklich brauchbar ist und was nicht.
2. Transparenz zum Vergleich von Preisen.
Ich habe nächste Woche einen Termin bei Plana , als erstes Studio von vermutlich 3-5, weiß nicht ob das reicht, es gibt so viele Alternativen und Angebote. Wir wollen aktuell auch nicht übertreiben, viele Küchen mit Inseln etc. (sehr schick) kommt für uns aus Platzgründen nicht in Frage. Hatten vor einigen Wochen eine Sitzung bei Segmüller, kann es nicht abschütteln das da irgendeine Show abgezogen wurde, ständig musste der seinen Chef nach dem "Spezialrabatt" fragen und wenn ich gleich 80% anzahle dann gibt es noch Skonto etc.etc.
Ich glaube wirklich die haben so einen Standardkatalog an Sprüchen, andere Berater haben die gleichen Sprüche in petto, zufällig beim vorbeilaufen gehört.
Ich hoffe unsere Vorstellungen sind realistisch und wollen eine gut verarbeitete, brauchbare/praktikable Küche haben, ohne über das Ziel hinauszuschießen.
Ich hoffe ihr könnt uns etwas helfen, einige Pläne und Grundrisse etc. habe ich angelegt.
Checkliste zur Küchenplanung
Personenkriterien und Ergonomie
Anzahl Personen im Haushalt: 5
Davon Kinder: 3
Körpergrößen aller Hauptbenutzer in cm (wegen Arbeitshöhe ): 171 und 193 (kocht eher selten)
Welche Arbeitshöhe ist angedacht (in cm)?: 95-100
Gebäudekriterien
Art des Gebäudes: Neu-/Umbau > Planänderungen nicht möglich
Brüstungshöhe des Fensters (in cm): 99
Fensterhöhe (in cm): 120
Raumhöhe in cm: 249
Heizung: Fußbodenheizung
Sanitäranschlüsse: fix
Einbaugerätekriterien
Ausführung Kühlgerät: Integriert im Hochschrank (60cm)
Einbaukühlgerät Größe: 178cm
Ausführung Tiefkühl (TK)-Gerät: Im Kühlschrank ab 3 Schubladen unten
Dunstabzugshaube: Umluft
Hochgebauter Backofen : ja
Geplante Heißgeräte: Einbaumikrowelle, Backofen
Hochgebauter Geschirrspüler : nein
Art des Kochfeldes: Ceran (herkömmliche Beheizung)
Kochfeldbreite (ca. in cm): 90
Sitzmöglichkeiten
Sitzmöglichkeit in der Küche / im Küchenbereich: Keine
Sitzmöglichkeit: Für wieviel Personen?: N. a.
Sitzmöglichkeit: Tisch - wenn gesonderter Tisch oder offene Küche: N. a.
Gewünschte oder vorhandene Tischgröße:
Wofür soll der Sitzplatz in der Küche genutzt werden und wie häufig:
Stauraumplanung
Was steht auf der Arbeitsplatte oder soll dort stehen?: Kaffeevollautomat, Wasserkocher, Messerblock, Toaster
Welche weiteren Küchenmaschinen müssen in der Küche untergebracht werden: Mixer, Pürierstab
Was soll in der Küche außer den Standards untergebracht werden: N. a.
Welchen Stauraum gibt es sonst noch: Geschirr/Gläserschrank im Wohn-/Esszimmer, Speisekammer
Kochgewohnheiten
Was/wie wird gekocht? (Alltagsküche, Menüs, Snacks usw): Suppen, Gebratenes, Pasta, Gebackenes,Querbeet
Wie häufig wird gekocht: (fast) täglich 2x warm
Wird alleine gekocht? Oder auch gemeinsam? Mit und für Gäste?: Meist alleine, noch selten für Gäste
Spülen und Müll
Spülenform: 1 Becken mit Abtropffläche
Welche Mülltrennung soll in der Küche vorgehalten werden: Biomüll, Gelber Sack Müll, Restmüll
Sonstiges
Steht schon ein Küchenhersteller fest oder wird bevorzugt: Nein
Steht schon ein Gerätehersteller fest oder wird bevorzugt: Spülmaschine (Miele ) wird mitgenommen, ansonsten AEG oder Bosch , bzw. vergleichbar.
Küchenstil: Grifflose Küche
Was stört an der bisherigen Küche und was soll die neue Küche unbedingt können? Warum?: War eine sehr günstige Pino, am nervigsten war die fehlende „Softclose“ Funktion. Ansonsten löst sich das Material so langsam auf.
Preisvorstellung (Budget): Zwischen 7-15.000 €, günstiger ist besser, aber nicht um jeden Preis, da täglich gekocht wird und die Küche sollte schon ein paar Jahre Spaß machen.
Angehängte Dateien
Ein Hallo aus Rhein-Main,
aktuell befindet sich unser neues Reihenmittelhaus im Bau und müssen nun die Küche planen.
Aktuell haben wir eine alte, sehr günstige Pino im Einsatz, die es gerade noch so bis zum Jahresende schaffen wird
daher haben wir in Sachen Funktionalität oder Komfort keine echte Grundlage zwecks Vergleich.
In diesem RMH sind die Zustände relativ beengt und es handelt sich um eine offene Küche. Das ganze soll auch 2-zeilig werden, da die Forumsbeiträge bzgl. Kosten, Stauraumverschwendung etc. plausibel klingen, das ganze auch bezogen auf einen Apotherschrank, welchen wir auch verworfen haben. Folgende Themen erschließen sich mir nicht ganz transparent bzw. kann ich überhaupt nicht einschätzen:
1. Material und Oberfläche: Da gibt es mittlerweile so viele Varianten, ohne Erfahrung zu haben was wirklich brauchbar ist und was nicht.
2. Transparenz zum Vergleich von Preisen.
Ich habe nächste Woche einen Termin bei Plana , als erstes Studio von vermutlich 3-5, weiß nicht ob das reicht, es gibt so viele Alternativen und Angebote. Wir wollen aktuell auch nicht übertreiben, viele Küchen mit Inseln etc. (sehr schick) kommt für uns aus Platzgründen nicht in Frage. Hatten vor einigen Wochen eine Sitzung bei Segmüller, kann es nicht abschütteln das da irgendeine Show abgezogen wurde, ständig musste der seinen Chef nach dem "Spezialrabatt" fragen und wenn ich gleich 80% anzahle dann gibt es noch Skonto etc.etc.
Ich glaube wirklich die haben so einen Standardkatalog an Sprüchen, andere Berater haben die gleichen Sprüche in petto, zufällig beim vorbeilaufen gehört.
Ich hoffe unsere Vorstellungen sind realistisch und wollen eine gut verarbeitete, brauchbare/praktikable Küche haben, ohne über das Ziel hinauszuschießen.
Ich hoffe ihr könnt uns etwas helfen, einige Pläne und Grundrisse etc. habe ich angelegt.
Checkliste zur Küchenplanung
Personenkriterien und Ergonomie
Anzahl Personen im Haushalt: 5
Davon Kinder: 3
Körpergrößen aller Hauptbenutzer in cm (wegen Arbeitshöhe ): 171 und 193 (kocht eher selten)
Welche Arbeitshöhe ist angedacht (in cm)?: 95-100
Gebäudekriterien
Art des Gebäudes: Neu-/Umbau > Planänderungen nicht möglich
Brüstungshöhe des Fensters (in cm): 99
Fensterhöhe (in cm): 120
Raumhöhe in cm: 249
Heizung: Fußbodenheizung
Sanitäranschlüsse: fix
Einbaugerätekriterien
Ausführung Kühlgerät: Integriert im Hochschrank (60cm)
Einbaukühlgerät Größe: 178cm
Ausführung Tiefkühl (TK)-Gerät: Im Kühlschrank ab 3 Schubladen unten
Dunstabzugshaube: Umluft
Hochgebauter Backofen : ja
Geplante Heißgeräte: Einbaumikrowelle, Backofen
Hochgebauter Geschirrspüler : nein
Art des Kochfeldes: Ceran (herkömmliche Beheizung)
Kochfeldbreite (ca. in cm): 90
Sitzmöglichkeiten
Sitzmöglichkeit in der Küche / im Küchenbereich: Keine
Sitzmöglichkeit: Für wieviel Personen?: N. a.
Sitzmöglichkeit: Tisch - wenn gesonderter Tisch oder offene Küche: N. a.
Gewünschte oder vorhandene Tischgröße:
Wofür soll der Sitzplatz in der Küche genutzt werden und wie häufig:
Stauraumplanung
Was steht auf der Arbeitsplatte oder soll dort stehen?: Kaffeevollautomat, Wasserkocher, Messerblock, Toaster
Welche weiteren Küchenmaschinen müssen in der Küche untergebracht werden: Mixer, Pürierstab
Was soll in der Küche außer den Standards untergebracht werden: N. a.
Welchen Stauraum gibt es sonst noch: Geschirr/Gläserschrank im Wohn-/Esszimmer, Speisekammer
Kochgewohnheiten
Was/wie wird gekocht? (Alltagsküche, Menüs, Snacks usw): Suppen, Gebratenes, Pasta, Gebackenes,Querbeet
Wie häufig wird gekocht: (fast) täglich 2x warm
Wird alleine gekocht? Oder auch gemeinsam? Mit und für Gäste?: Meist alleine, noch selten für Gäste
Spülen und Müll
Spülenform: 1 Becken mit Abtropffläche
Welche Mülltrennung soll in der Küche vorgehalten werden: Biomüll, Gelber Sack Müll, Restmüll
Sonstiges
Steht schon ein Küchenhersteller fest oder wird bevorzugt: Nein
Steht schon ein Gerätehersteller fest oder wird bevorzugt: Spülmaschine (Miele ) wird mitgenommen, ansonsten AEG oder Bosch , bzw. vergleichbar.
Küchenstil: Grifflose Küche
Was stört an der bisherigen Küche und was soll die neue Küche unbedingt können? Warum?: War eine sehr günstige Pino, am nervigsten war die fehlende „Softclose“ Funktion. Ansonsten löst sich das Material so langsam auf.
Preisvorstellung (Budget): Zwischen 7-15.000 €, günstiger ist besser, aber nicht um jeden Preis, da täglich gekocht wird und die Küche sollte schon ein paar Jahre Spaß machen.
Angehängte Dateien
Anhänge
-
191008_3_module.jpg92,6 KB · Aufrufe: 348 -
Küche2.jpg51,5 KB · Aufrufe: 336 -
Küche3.jpg52,4 KB · Aufrufe: 286 -
Küche4.jpg46,7 KB · Aufrufe: 293 -
Küche5.jpg51,6 KB · Aufrufe: 276 -
Küche6.jpg47,6 KB · Aufrufe: 270 -
Küchenplan.jpg120,6 KB · Aufrufe: 269 -
Küche8.jpg79 KB · Aufrufe: 257 -
Küche7.jpg45,3 KB · Aufrufe: 248 -
Kueche_Endhaus_Links_Mittelhaus_Rechts-Modul_1.jpg136,4 KB · Aufrufe: 302
