Unbeendet Küchenplanung in Neubau Mietshaus/RMH

Chefchen

Mitglied
Beiträge
11
Hallo,

nachdem wir im Dezember diesen Jahres in unser neues Heim ziehen und wir hierfür eine neue Küchen brauchen, wollte ich gerne die Planung hier zur Diskussion stellen und hoffe auf viele gute Rat- und Verbesserungsvorschläge der Experten :2daumenhoch:

Ursprünglich war geplant unsere bisherige Küche (Schüller ) mitzunehmen und zu erweitern - aber nachdem Schüller wohl kurz nach dem Erwerb unserer letzten Küche (2008) das Programm umgestellt hat, mussten wir diesen Plan recht schnell ad acta legen.

Da dies ja wieder eine Küche für ein Mietobjekt wird, sollte das ganze Budgettechnisch im Rahmen bleiben und von daher nicht unbedingt auch noch die letzte Detailspeziallösung berücksichtigt werden. Ergonomisch, praktisch und modern - aber eben nicht der letzte Luxus.

Gerätetechnisch favorisieren wir derzeit NEFF , da es da einige Dinge gibt, die uns gut gefallen und Preis-Leistung hier auch zu stimmen scheint. Sind aber da auch noch flexibel.

Küchenhersteller könnte auf Nobilia oder Ballerina hinauslaufen, da das Küchenfachgeschäft, welches wir derzeit im Auge haben, nur diese beiden Marken liefert. Aber auch da gibt's natürlich Alternativen.

So, jetzt bin ich erst mal auf die ersten Kommentare gespannt und sollten Infos fehlen, bitte kurze Info damit ich die asap nachreichen kann.

Schon einmal Besten Dank und viele Grüße!

Checkliste zur Küchenplanung

Anzahl Personen im Haushalt: 3
Davon Kinder?: 1
Art des Gebäudes?: Neu-/Umbau, Planänderungen nicht möglich
Körpergrössen aller Hauptbenutzer (wegen Arbeitshöhe ) in cm: 165 und 182 cm
Brüstungshöhe des Fensters (in cm): 104
Fensterhöhe (in cm):
Raumhöhe in cm:
Heizung:
Fussbodenheizung
Sanitäranschlüsse: fix
Ausführung Kühlgerät: Integriert im Hochschrank (60cm)
Kühlgerät Größe: noch unbekannt
Ausführung Tiefkühl (TK)-Gerät: Nicht erforderlich bzw. steht woanders
Dunstabzugshaube: Umluft
Backofen etc. hochgebaut?: Ja
Hochgebauter Geschirrspüler ?: Ja
Kochfeldart: Induktion
Kochfeldbreite ca. (in cm)?: 80
Spülenform: Eckspüle
Geplante Heißgeräte: Einbaumikrowelle, Backofen
Küchenstil: Modern
Sitzmöglichkeit in der Küche / im Küchenbereich: Keine
Sitzmöglichkeit: Für wieviel Personen?: Nein
Sitzmöglichkeit: Tisch - wenn gesonderter Tisch oder offene Küche: Keiner
Gewünschte o. vorhandene Tischgröße:
Wofür soll der Sitzplatz in der Küche genutzt werden? Wie häufig?:
Welche Arbeitshöhe ist angedacht (in cm)?:
90-95
Was steht auf der Arbeitsplatte oder soll dort stehen?: Kaffeemaschine, Wasserkocher, Toaster
Welche weiteren Küchenmaschinen müssen in der Küche untergebracht werden?:
Was soll in der Küche außer den Standards untergebracht werden?:
Getränkekisten, Staubsauger/Wischer etc., Geschirr komplett (nichts in Ess-/Wohnzimmer)
Welchen Stauraum gibt es sonst noch?: Hauswirtschaftsraum, Keller
Was/wie wird gekocht? (Alltagsküche, Menüs, Snacks usw):
Wie häufig wird gekocht?:
(fast) täglich 1x warm
Wird alleine gekocht? Oder auch gemeinsam? Mit und für Gäste?: zumeist alleine, am WE auch gemeinsam
Was stört an der bisherigen Küche und was soll die neue Küche unbedingt können? Warum?:
Welche Mülltrennung soll in der Küche vorgehalten werden?:
Biomüll, Restmüll
Steht schon ein Küchenhersteller fest oder wird bevorzugt?:
Steht schon ein Gerätehersteller fest oder wird bevorzugt?:
Preisvorstellung (Budget):
bis 15.000,-
 

Anhänge

  • Grundriss.jpg
    Grundriss.jpg
    54,3 KB · Aufrufe: 238
  • Küchengrundriss.KPL
    3,9 KB · Aufrufe: 182
  • Küchengrundriss.POS
    2,1 KB · Aufrufe: 181
  • Alnoplanung.KPL
    3,9 KB · Aufrufe: 189
  • Alnoplanung.POS
    6,9 KB · Aufrufe: 170
Willkommen zurück im Forum,
Es wär von Vorteil wenn du noch Screenshots deiner Planung machen würdest und einstellt (Grundriss und 2 Ansichten) dann können auch die etwas zu deiner Planung sagen die vom Tablet aus hier sind oder garkeinen Alnoplaner aufm Rechner haben.
Ist das mit der Eckspüle ernst gemeint? Die passt ja so garnicht in eine moderne Küche und unpraktisch ist sie auch weil eine Person sie schon komplett blockiert.
Würde die Zeile planrechts Übertief machen, mit 80-120 Abstand zwischen Spüle und Kochfeld mit Mupl dazwischen.
Ich kenn ja jetzt nicht deine Planung, aber es hört sich nach mindestens 4 Hochschränke an wo sollen diese Platz finden?

Schon Ideen für die Möbel im Wohnessbereich wie groß werden diese? Passen sie in den unteren Bereich?
 
Hallo,

besten Dank für's erste Feedback!

Das mit der Eckspüle ist mehr aus der Verlegenheit entstanden. Meine Frau möchte die APL vor dem Fenster gerne frei haben und nachdem der Wasseranschluss rechts neben dem Fenster ist und außerdem die Steckdose für die DAH etwa auf Höhe der Tür gegenüber ist, dachte ich das wäre ein guter Kompromiss. Aber so richtig gefallen tut mir das ehrlich gesagt auch nicht. Deshalb mal gleich umgeplant. Die Hochschränke habe ich jetzt erst einmal weggelassen. Denke mit dem Wasseranschluss sollte kein Problem sein, und die Steckdose kann man evtl. ja noch versetzen...

Kühlschrank, Backofen und Mikrowelle sind in den drei Hochschränken planlinks untergebracht und der Geschirrspüler rechts neben der Tür. Der dritte Hochschrank soll für Besen, Staubsauger etc. sein.

Platz für den Esstisch sollte kein Problem sein.

VG
 

Anhänge

  • AlnoplanungV2.KPL
    3,9 KB · Aufrufe: 181
  • AlnoplanungV2.POS
    5,8 KB · Aufrufe: 177
  • PlanungV2.JPG
    PlanungV2.JPG
    59,7 KB · Aufrufe: 224
  • Ansicht1V2.JPG
    Ansicht1V2.JPG
    86,2 KB · Aufrufe: 233
  • Ansicht2V2.JPG
    Ansicht2V2.JPG
    88 KB · Aufrufe: 224
  • Ansicht3V2.JPG
    Ansicht3V2.JPG
    75,9 KB · Aufrufe: 235
Hallo,

ich weiß, dass derzeit sehr viele Planungen besprochen werden, aber ich wollte dennoch mal nachfragen, nachdem bisher fast gar keine Reaktion kam, ob ich irgendwas falsch gemacht habe, oder noch wesentliche Informationen fehlen?

Wir haben nächste Woche Mittwoch (16.09.) einen ersten Termin beim Küchenhändler und wäre toll, wenn ich da schon eine erste Grundplanung in petto hätte :-)

DANKE!

VG

Stephan
 
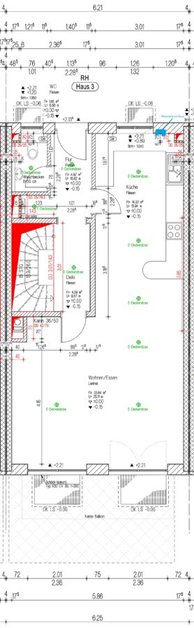
kannst du den Hausgrundriss als pdf einstellen? das Bild ist so winig.

Wasser ist fix. wo fix, Masse wären gut.

wie lang soll die Zeile planrechts max werden?
 
Zuletzt bearbeitet:
Hallo Evelin,

anbei der Grundriss des Erdgeschosses als .pdf

Bzgl. des Wasseranschlusses - der ist unten rechts neben dem Fenster. Zur Verdeutlichung habe ich einfach mal ein Bild des Bereiches mit eingestellt. Dort ist auch der Versorgungsschacht in der Ecke zu sehen, den ich bisher im Plan noch nicht berücksichtig habe, wobei ich ja denke, dass dies kein Problem wird, da ja dort auf jeden Fall eine "tote Ecke" hin soll.

Maße kann ich momentan leider nur mit denen im Grundriss dienen, wobei ja kritisch eigentlich nur die Fensterwand ist. Die habe ich tatsächlich schon messen können und bin auf 2,97 cm gekommen. Die rechte Seite ist ja offen, genauso die linke und zur Tür hin sollte man halt sicherlich nicht bis auf letzten Zentimeter planen, sodass hier hoffentlich die Angaben im Grundriss reichen.

VG

Stephan
 

Anhänge

  • Erdgeschoss.pdf
    1,3 MB · Aufrufe: 266
  • Wasseranschluss.JPG
    Wasseranschluss.JPG
    57,9 KB · Aufrufe: 189
der pdf Plan ist super, danke.

mit der Zeilenlänge planrechts wollte ich eigentlich nur wissen, wieviel Platz du dafür vorsiehst. Ich vermute, dass in dem Bereich auch der Esstisch stehen soll.

Ich habe deine Planung etwas verändert. Die AP Höhe ist nicht angepasst.

GSP und Spüel sind vor dem Fenster, rechts der Spüle ist der MUPL . Der Gund, warum ich diese Anordnung gewählt habe, sind, einmal können mehr als 1 Person gleichzeitig an die Spüle und persönlich fïnde ich den Ablauf um's Wasser herum besser - GSP-Spüle-MUPL in einer Linie. Ausserdem vermeidet man eine tote Ecke und deine Frau kann immer noch aus dem Fenster schauen.

Jetzt kann es eventuell ein Problem mit der Armatur und dem geöffneten Fensterflügel geben. Die Frage ist, wird das Fenster jemals voll geöffnet, denn zum Putzen braucht man es nicht, da Erdgeschoss. Ausserdem könnte man die Spüle auch etwas nach planlinks schieben.

Auf der planrechten Wandzeile sind es dann 4 x 80er US.

Die OS sind 39cm hoch, sodass man noch alles erreicht, weil die Zeile übertief ist, 17cm. Am Fenster ist die Zeile 15cm tiefer.

Der Tisch im Plan ist 160x90cm, ich weiss nicht, ob das eurem entspricht. Sollte er länger werden, müsste man ihn etwas weiter nach planunten stellen, soll der Durchgang in die Küche nicht kleiner als 100cm werden. Auch deshalb wüde ich die 3 HS ziemlich nahe an die Tür stellen, aber auch, dass man von der Spüle näher am Kühli ist.

Weil die Zeile planrechts übertief ist, könnte man auch übertiefe US stellen, das gibt erheblich mehr Stauraum, aber sie kosten natürlich auch mehr.

Genauso ist es mit der Wahl der Korpusse. Bei eurer Grösse bietet sich ein Hersteller mit 6er Raster an, dh der Korpus ist 78cm hoch und bietet zB 2 Schubladen und 2 Auszüge. Aber auch das kostet etwas mehr, ist es aber wert, insbesondere wegen der grösseren Person im Haushalt.

Die grüne Fläche im Plan ist die geöffnete GSP Tür.

Chefchen1.JPG Chefchen2.JPG Chefchen3.JPG Chefchen4.JPG Chefchen5.JPG
 

Anhänge

  • Chefchen_Evelin_PLAN1.KPL
    3,9 KB · Aufrufe: 199
  • Chefchen_Evelin_PLAN1.POS
    7,5 KB · Aufrufe: 176
Zuletzt bearbeitet:
@Evelin .. schöne Planung.

@Chefchen ...hmm .. selber nach 5 Tagen drängeln, dann aber innerhalb von 7 Tagen keine Zeit für einen Kommentar zur Planung von Evelin aufbringen? Das ist schon demotivierend :(
 
Hallo,

erst einmal sorry, dass ich hier so lange nichts von mir hab hören lassen. Ja, zuerst drängeln und dann kommt nix ist nicht die feine Art. Aber ich war leider die letzten Wochen krankheitsbedingt nicht dazu in der Lage mich um das Thema Küchenplanung weiter zu kümmern. Mittlerweile geht's wieder und ich konnte auch bereits die Ideen von Evelin bei unserem ersten Besuch beim KFB mit einbringen.

Den GSP haben wir jetzt wie von Evelin vorgeschlagen direkt vor dem Fenster geplant und nicht nochmals um's Eck. Meine Frau und ich hatten nur zuerst Angst, dass dadurch die Wand planlinks beim Ein- und Ausräumen immer total versaut wird, aber wir werden deshalb dort eine Panele im APL Design anbringen lassen, sozusagen als Spritzschutz. Denke damit sollte das Problem erledigt sein.

Die Spüle ist jetzt soweit wie möglich nach rechts gewandert, da meine Frau die übertiefe Fläche vor dem Fenster umbedingt frei haben wollte! Die Abtropffläche wandert dadurch ins tote Eck, und der MUPL ist links neben der Spüle eingeplant.

Um die Spüle eben fast komplett aus dem Fensterbereich zu bekommen, haben wir auf die übertiefe APL auf der planrechten Seite verzichtet (17cm). Allerdings nicht ganz, da wir den Bereich der Kochstelle weiterhin übertief geplant haben um in den drei Auszügen genügend Platz für Töpfe, Pfannen etc. zu haben. Da das Kochfeld jetzt ein gutes Stück nach hinten rutschen wird (auch wegen der DAH) und damit meine Frau weiterhin gut an die hinteren Töpfe kommt, war die Idee des KFB diesen Bereich eben um ein Raster tiefer zu setzen. Meiner Frau und mir gefällt's so, ich bin mir nur nicht sicher ob das wirklich auch aus ergonomischer Sicht so alles optimal ist.

Der BO und Mikrowelle mussten dann noch von der planlinken Seite auf die planrechte wandern, da der Anschluss für den BO auf der rechten Seite vorgesehen ist, d.h. wir können hier die ursprüngliche Idee nicht verwirklichen. Deshalb wurde auf den einen Hochschrank auf der linken Seite verzichtet.

Bin jetzt wieder auf euer Feedback gespannt, insbesondere von dem Bereich Kochfeld...

VG

Stephan

Ansicht1V3.JPG Ansicht2V3.JPG Ansicht3V3.JPG Ansicht4V3.JPG[/user]
 
Zuletzt bearbeitet:
Ergonomie hin oder her es ist extrem unpraktisch wenn man nicht weiß wo man den Pfannenstiel lassen soll weil er gegen die seitlichen Schränke stößt. Könnte mir vorstellen das der wegfallende Schubladen den Stauraumgewinn durch die Übertiefe wieder zunichte macht.
Braucht ihr diese schmalen Auszüge rechts und links vom Kochfeldschrank wirklich? Ich werde Essig + Öl unterm Mupl verstauen.
 
Ich finde das Gesamtbild mit unterschiedlichen Höhen und Tiefen sehr unruhig.

Ergonomisch eher nicht:
- Ja, theoretisch ist eine niedrigere Kochstelle bei der Verwendung von höheren Töpfen pratisch, wenn man überhaupt Gerichte im Repertoire hat, die in hohen Töpfe zubereitet werden, und öfters gerührt werden müssen. Mhm. Gibt es oft Polenta bei Euch? Risotto? Vermutlich eher nicht, also entfällt der vermeintliche ergonomische Vorteil. Dafür bleibt das von kloni erwähnte Problem mit Pfannenstiele und Konsorten, oder die Tatsache, dass im Notfall man nicht eine verünglückte Pfanne mal eben wegschieben kann. Die zusätzlichen Kanten sind auch aufwändiger zu putzen.
- Ubertiefe beim Kochfeld stellt eine Herausforderung für die DAH dar. Bevor ihr solche Notlösungen bastelt, solltet ihr eine Stauraumplanung machen, um zu sehen, ob und wieviel Stauraum ihr tatsächlich braucht.
- Am bequemsten arbeitet sich zwischen Spüle und Kochfeld. Überleg mal die Schritte, um ein Wok-Gericht zuzubereiten: Gemüse spülen, Putzen, abschneiden, anbraten, Fleisch parieren, schneiden, anbraten, Schneidewerkzeug abspülen, in die Pfanne nachschauen... steht man zwischen Spüle und Kochfeld, muss man sich kaum bewegen.
- Idealerweise sollte die Spüle zwischen GSP und Mupl platziert sein: Vor der Spüle stehend, Mupl aufmachen, Speisereste in den Müll abstreifen, Flüssigkeiten abgießen, Geschirr in den GSP reintun - kein Schritt nötig. Gleichzeitig kann jemand an der freien APL ungestört werkeln.
- Der GSP ist im Alno -Plan #9 m.E. zu hoch platziert.

Optisch ist auch das Türmchen mit den Heißgeräte neben den Hängeschränke kein Leckerbissen. Die dunklen Wangen würde ich auch eher vermeiden.
 
ich schliesse mich meinen Borschreiberinnen an, insgesamt ein unruhiges Bild.

Ich glaube nicht, dass deine Frau am Ende mit einer Spüle in der Ecke glücklich sein wird, obwohl ich verstehe, dass eine Fensterarbeitsplatz nett ist. Ich habe 2m Fenster, kann da und auch woanders arbeiten und ganz ehrlich, das Fenster war nie zum Rausgucken beim Arbeiten wichtig, denn ich muss ja was tuen.

Auch ist der Weg von Spüle zum GSP weit, es wird viel Getropfe auf dem Boden geben.

Und wegen den Spritzern an der Wand brauchst du dir keinen teuren Spritzschutz hinmachen, Elefantenhaut/Acryllack erfüllt genau denselben Zweck ist dafür aber unsichtbar und billiger.

Und was den vorgezogenen Kochfeld betrifft, kann ich dir aus Erfahrung sagen, ihr werdet euch im Sockelbereich die Zehen anstossen (wenn ohne Schuhe nur Socken wie ich rumlaufe).

Auch in einem Mietobjekt kann man Kabel an eine andere Stelle aufputz verlegen. Das ist kein Drama und im Vergleich zu den Kosten der Küche minimal.
 
Ich kann Evelin nur zustimmen und finde ihre Planung in Beitrag 7 absolut tauglich und vorteilhaft.

chefchen3-jpg.193466


Hier könnte man auch z. B. nach der GSP einen 100er Spülenunterschrank wählen und rechts davon dann einen 50er MUPL.
Dann könnte man in dem 100er Spülenschrank z. B. ein Becken wie das BLANCO AXIA II 8 | BLANCO unterbringen ... mit ca. 10 cm Abstand zur erhöhten GSP. Abtropfen können Sachen auch im kleinen Becken. Und so hat man dann rechts der Spüle noch 60 cm plus die tote Ecke als durchgehende APL um die Ecke.

Man wird halt hauptsächlich ZWISCHEN Spüle und Kochfeld arbeiten.

Das vorgezogene Kochfeld halte ich für einen blaue Flecken-Lieferanten ;-)
 
Hallo zusammen,

vielen Dank für Euer Feedback. Ich habe jetzt meine Frau Eure Ausführungen zu Anordnung GSP, Spüle, MUPL und Kochfeld und natürlich auch die Bedenken zu dem übertiefen/abgesenkten Kochfeld durchlesen lassen und ich glaube Ihr konntet Sie überzeugen!

Die Spüle wandert nun doch nach links, rechts daneben der MUPL - im Prinzip so wie es Evelin in ihrer Planung beschrieben hat. Einzig die genauen Größen der einzelnen Elemente müssen wir uns noch überlegen. Wie groß (Breite und Höhe) sollte denn zweckmäßigerweise der Auszug für den MUPL sein? Reicht da eine 40er Breite oder vielleicht sogar 30, oder wird das dann zu schmal um vernünftig was unterzubringen?

Der Kochfeldbereich wandert nun wieder nach hinten, sodass eine einzige Zeile entsteht. Das "Zehen-Stoss-Argument" war dann doch zu stark! Die beiden schmalen Schränke links und rechts möchte meine Frau allerdings gerne behalten. Für Gewürze, Salz, Pfeffer etc. sagt sie wäre das doch super!? Argumente dafür, dagegen?

Last but not least - ich glaube isabelle hat das geschrieben, das "Türmchen mit den Heißgeräten" sei optisch nicht so der Hit. Finde ich persönlich jetzt eigentlich nicht so und wir wollten dort keinen ganz hohen Schrank, da dies so der Punkt sein wird, auf den man aus dem Wohnzimmer in die Küche blickt. Trotzdem - evtl. gibt's ja auch dafür noch einen Alternativvorschlag. Wie gesagt, der BO muss irgendwo in dem L untergebracht werden. Wenn ich auf die gegenüberliegende Seite will, dann muss ich an der Tür vorbei und dann sieht das mit den Kabelkanälen nicht mehr wirklich toll aus!

Nochmals vielen Dank!

VG

Stephan
 
ok, wenn die Heissgeräte planrehts sein sollen, dann würde ich die AP Tiefe planrechts auf 65cm reduzieren oder eben nur 60cm, wobei 5cm mehr schon angenehm sind.

Somit kann man die Fensterzeile etwas mehr zum "Rausgucken" gestalten.
Planoben links beginnend

Blende - GSP - Wange - 40 -80 Spüle linksbündig eingebaut - 40 - tote Ecke.

Somit bleiben dir rechts 60+5cm (von toter Ecke) freie AP, das ist ok, da kann man schon schnippeln zumal die Zeile 75cm tief, hinten ABlage vorne schneiden.

In dem 40er US links der Spüle könnte man Gewürze in einer innenliegenden Schublade haben. Oder wie ich, eine schmale Innenschubalde in Augenhöhe im Vorratsschrank. Ich liebe diesen Auszug, man kann drauf lümmeln und in aller Ruhe Gewürze suchen (ich bin nicht so super organisiert in dem Bereich).

Die OS würde ich dem HS mit BO+Mikro anpassen, damit die Front ruhiger aussieht.

Insgesamt, wenn ich es nicht schon mal geschrieben habe, ihr werdet eine sehr schöne, funktionale Küche mit viel Stauraum haben. Diese Form der Küche ist sehr praktisch. Man muss nicht von einer Seite auf eine andere heben, hat 2-3 Arbeitsbereiche, der GSP ist erhöht.

Das einzige Manko was ich bei der Küche sehe, ist, dass es keine Ablagefläche direkt neben dem KS gibt.

Chefchen1.JPG Chefchen2.JPG Chefchen3.JPG Chefchen4.JPG
 

Anhänge

  • Chefchen_Evelin_PLAN1.KPL
    3,9 KB · Aufrufe: 167
  • Chefchen_Evelin_PLAN1.POS
    7,7 KB · Aufrufe: 172

Ähnliche Beiträge

Neff Hausgeräte Ballerina Küchen Blum Bewegungstechnologie Weibel - Intelligente Küchenlüftung

Neff Spezial

Blum Zonenplaner

Weibel Abluft-Tuning

Weibel Abluft-Tuning
Zurück
Oben