Fertig ohne Bilder Jetzt ist es passiert*Küche nach lfm gekauft*

dieseloel

Mitglied
Beiträge
49
Hallo zusammen,

leider bin ich erst jetzt auf dieses Forum aufmerksam geworden, nachdem ich gestern den Vertrag am letzten Tag der Messe in Stuttgart unterschrieben habe.
Gekauft wurde eine Leicht Küche mit Acryl-Front in PG 2 zum Preis von 5000 € ohne Elektrogeräte in U-Form
(2,35x2,47x2,45) inkl.Lieferung und Montage.
Denke wir werden bald angerufen zwecks Termin zum Aufmaß und will bis dahin eben das bestmögliche einplanen.
Bin über jede Anregung dankbar, denn wenn man schon einen Fehler gemacht hat sollte man in wenigstens so gering wie möglich halten.

Vielen Dank schon jetzt für die Unterstützung :top:




Checkliste zur Küchenplanung von dieseloel

Anzahl Personen im Haushalt : 4
Davon Kinder? : 2
Körpergrössen aller Hauptbenutzer (wegen Arbeitshöhe ) in cm : 168
Art des Gebäudes? : Bestandsbau, Umbauten ausgeschlossen
Brüstungshöhe des Fensters (in cm) : 116
Fensterhöhe (in cm) : 100
Raumhöhe in cm: : 235
Heizung : Keine Heizung
Sanitäranschlüsse : fix
Ausführung Kühlgerät? : Side by Side ca. 90cm breit
Kühlgerät Größe : bis 175 cm Höhe
Ausführung Tiefkühl (TK)-Gerät : Nicht erforderlich bzw. steht woanders
Dunstabzugshaube? : Umluft
Hochgebauter Backofen ? : Ja
Hochgebauter Geschirrspüler ? : wenn möglich
Kochfeldart? : Induktion
Kochfeldbreite ca. (in cm)? : 76
Spülenform: : 1 Becken mit Abtropffläche
Weitere geplante Heißgeräte : Standmikrowelle
Küchenstil? : modern
Sitzmöglichkeit in der Küche / im Küchenbereich als : Keine
Sitzmöglichkeit: Für wieviel Personen? : nein
Sitzmöglichkeit: Tisch - wenn gesonderter Tisch oder offene Küche : Keine
Gewünschte o. vorhandene Tischgröße : keine
Wofür soll der Sitzplatz in der Küche genutzt werden? Wie häufig? : keine
Welche Arbeitshöhe ist angedacht (in cm)? : 86
Was steht auf der Arbeitsplatte oder soll dort stehen? : Kaffeevollautomat, Wasserkocher, Küchenmaschine
Welche weiteren Küchenmaschinen müssen in der Küche untergebracht werden? :
Was soll in der Küche außer den Standards untergebracht werden? : ALLE Vorräte, Getränkekisten, Geschirr komplett (nichts in Ess-/Wohnzimmer)
Welchen Stauraum gibt es sonst noch? : Keller
Was/wie wird gekocht? (Alltagsküche, Menüs, Snacks usw) : Alltagsmenü
Wie häufig wird gekocht? : (fast) täglich 1x warm
Wird alleine gekocht? Oder auch gemeinsam? Mit und für Gäste? : Alleine
Was stört an der bisherigen Küche und was soll die neue Küche unbedingt können? Warum? : Alter, wurde beim Hauskauf übernommen
Steht schon ein Küchenhersteller fest oder wird bevorzugt? : Leicht
Steht schon ein Gerätehersteller fest oder wird bevorzugt? : Werden übernommen sind 1 Jahr neu
Preisvorstellung (Budget) : bis 10.000,-
 

Anhänge

  • PLAN4.KPL
    4,1 KB · Aufrufe: 275
  • PLAN4.POS
    6,8 KB · Aufrufe: 281
  • kf_dieseloel_eigen_A1.jpg
    kf_dieseloel_eigen_A1.jpg
    42,9 KB · Aufrufe: 406
  • kf_dieseloel_eigen_A2.jpg
    kf_dieseloel_eigen_A2.jpg
    41 KB · Aufrufe: 370
  • kf_dieseloel_eigen_G.JPG
    kf_dieseloel_eigen_G.JPG
    36,7 KB · Aufrufe: 355
Zuletzt bearbeitet von einem Moderator:
AW: Jetzt ist es passiert*Küche nach lfm gekauft*

Also es steht drin:
Marke:Leicht
Modell/Programm:665 Glaseffekt
Preisgruppe:2
Frontausführung:Glaseffekt
Farbe:Magnolie

Was ist denn das nun :'(
 
glaseffekt ist nur eine Kantenart. Nicht gerade aussagekräftig. Denn es ist die Front nicht aufgeführt. Es steht auch nicht dabei ob es die Serie Leicht Linie oder die Sonderserie Kanto ist. Nach diesen Angaben könnte es beides sein.
 
AW: Jetzt ist es passiert*Küche nach lfm gekauft*

Erstmal vielen Dank für deine schnellen Antworten Timo,

doch jetzt bin ich ja total verunsichert, und jetzt ist wohl guter Rat teuer.

Werd kann mir das den jetzt noch beantworten, da die Messe rum ist :(

Was wäre denn für mich am besten wenn sie mich fragen was ich denn jetzt genau haben möchte,wobei der Aufpreis zur PG 3 50 € je lfm beträgt.
 
Die Frage ist ja was du gekauft und unterschrieben hast. Hast du nur eine PG gekauft?
Steht dort keine Front oder/und Serienbezeichnung?
 
AW: Jetzt ist es passiert*Küche nach lfm gekauft*

Leider nein, als Front wird nur Glaseffekt angegeben und als Modell 665 Glaseffekt wie oben beschrieben, mehr gibt die Bezeichnung leider nicht her und eben PG 2.
 
AW: Jetzt ist es passiert*Küche nach lfm gekauft*

:welcome:

Hast Du oben den Kasten gelesen: Was wir benötigen?

Bitte hänge die entsprechenden Infos, Bilder & Ansichten noch ein, sonst können wir Dir nicht helfen.
 
AW: Jetzt ist es passiert*Küche nach lfm gekauft*

Hallo Vanessa,

sorry bin gerade etwas durcheinander, und habe die Hälfte vergessen :'(

Alno -Plan habe ich ja angehängt, werd morgen gleich ne Skizze machen wegen den Anschlüssen und Schrankbreiten, bin ja froh dass man versucht mir zu helfen :top:
 
AW: Jetzt ist es passiert*Küche nach lfm gekauft*

... zu den Alno -Dateien gehören auch immer ein paar aussagekräftige Ansichten und der :grundriss:
 
AW: Jetzt ist es passiert*Küche nach lfm gekauft*

Ich habe mir deine Planung herunter geladen und verändert. Ich hoffe, dass die Anschlüsse passen und du aus dem Vertrag das Beste machen kannst.

Vorab:
Teste unbedingt die Arbeitshöhe , denn ab 90 cm sind in aller Regel 6 Raster möglich:

ARBEITSHÖHE ermitteln
3 Methoden haben sich da etabliert:
- Ellbogen abwinkeln und von dort 15 cm runtermessen
- Höhe Beckenknochen messen
- z. B. Bügelbrett nehmen und in verschiedenen Höhen Probeschnippeln und messen, wenn es einem am bequemsten erscheint. Sich Vorbeugen, dann ist's zu niedrig, die Schultern hochziehen, dann ist's zu hoch.
Idealerweise ergeben alle 3 Methoden ca. denselben Wert

und hier die Links zu den Rastern:
5er und 6 er Raster
Stauraumplanung : Korpushöhen - Rastermaße - Auszugs-Innenmaße - Stauraumplanung
Link-Liste
und hier die Aufteilung bei Leicht
Leicht: 66 / 80 cm (13er Raster)
Korpus 66 = genau 66,25 cm
Korpus 80 = 79,5 cm
Front 13 = genau 13 cm
Front 26 = genau 26,25
Front 39 = genau 39,50
Fugenmaß zwischen Fronten .25 cm, auch oben zw. Front und Arbeitsplatte (Schrank- und Frontenübersicht)

und
https://www.kuechen-forum.de/forum/themen/warum-tote-ecken-gute-ecken-sind.1616/


Beginnend planlinks unten:
Blende
60er US 1-1-2-2
80er US 1-1-2-2 mit Kochfeld und Unterbauhaube
80er US 1-1-2-2
30er US 3-3 für Müll unter der Arbeitsplatte, untendrunter für Höheres
über gesamter Zeile OS

planoben:
tote Ecke
60er Spüle 3-3
SpüMa
tote Ecke

planrechts:
nach toter Ecke
15er mit Klapptür für Backbleche und/oder Handtücher
BO (allerdings würde ich die Höhe an den SBS anpassen, habe jetzt deine Höhe übernommen)
Blende
SbS
 

Anhänge

  • Dieseloel_Mela2.KPL
    3,9 KB · Aufrufe: 261
  • Dieseloel_Mela2.POS
    7,4 KB · Aufrufe: 250
  • Dieseloel_Mela2_Draufsicht.jpg
    Dieseloel_Mela2_Draufsicht.jpg
    32,9 KB · Aufrufe: 297
  • Dieseloel_Mela2_Grundriss.JPG
    Dieseloel_Mela2_Grundriss.JPG
    40,3 KB · Aufrufe: 470
  • Dieseloel_Mela2_Herd.jpg
    Dieseloel_Mela2_Herd.jpg
    37,6 KB · Aufrufe: 289
  • Dieseloel_Mela2_SbS.jpg
    Dieseloel_Mela2_SbS.jpg
    39,9 KB · Aufrufe: 270
  • Dieseloel_Mela2_Spüle.jpg
    Dieseloel_Mela2_Spüle.jpg
    38,7 KB · Aufrufe: 275
AW: Jetzt ist es passiert*Küche nach lfm gekauft*

Muß jetzt mal blöd fragen, bei mir werden nach der Tastenkombination STRG+ALT+S nur Zahlen angezeigt, reicht dass eigentlich?
Blick vor lauter Aufregung bald nicht mehr durch...vor lauter Ärger über meine Unterschrift
 
AW: Jetzt ist es passiert*Küche nach lfm gekauft*

Also die Planung ist ja nicht schlecht muß ich schon sagen, dachte eben nur dran wenn ich schon voll zahle könnte ich auch nen Apotheker und den le Mans nehmen,ist ja wohl mit am teuersten oder bin ich jetzt zu sehr drauf fixiert nur das teuerste zu nehmen und den nutzen ausser acht zu lassen?
 
AW: Jetzt ist es passiert*Küche nach lfm gekauft*

Ja, LeMans und Apotheker zählen zu den teuren Schränken. Aber es ist die Frage, ob sie auch sinnvoll sind.

Denke daran, dass du eine Jahre wenn nicht Jahrzehnte mit deiner Küche leben musst. Da sollte doch die Funktionalität siegen.

Musst du denn auf jeden Fall die vereinbarte Summe zahlen?
 
AW: Jetzt ist es passiert*Küche nach lfm gekauft*

Zu den Zahlen: nein, eigentlich sollten da auch die Umrisse der Schränke zu sehen sein. Falls das mit der tastenkombi nicht klappt, müsstest du dir und uns mit screenshots helfen.

Und nochmal nein, man sollte nicht versuchen, partout die teuersten Schränke zu verplanen, sondern eine funktionelle Planung machen. Aber dazu hast du ja uns gefunden!
Die Schränke zählen übrigens gemessen an allen Kanten, die an der Wand stehen. Beim LeMans kommen so 120cm Breite plus 65cm Tiefe = 185cm zusammen.

Zum Lesen, ob diese Schränke sinnvoll sind:
Apotheker
Tote Ecken
 
AW: Jetzt ist es passiert*Küche nach lfm gekauft*

Hallo,

ist das ein lokal bekanntes Küchenstudio , das den Auftrag übernimmt?
Natürlich kenne ich nicht die ganzen Umstände deines Vertrages. :rose:
Aber es gab auch schon anständige Küchenstudios, die sehr kundenfreundlich waren.

Wir hatten erst letzte Woche eine (Leicht-)Küche mit Metervertrag, da war dann schlußendlich die geplante Küche günstiger, als wenn das Küchenstudio über den Meterpreis abgerechnet hätte.

Das Küchenstudio war dann von sich aus so kulant und hat die Küche zu dem günstigeren Preis nach der Planung vom KF verkauft.
 
AW: Jetzt ist es passiert*Küche nach lfm gekauft*

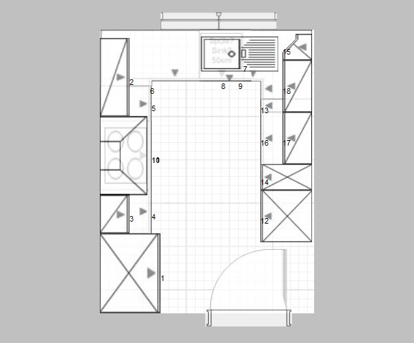
@ Mela:ja leider muß ich zahlen da komme ich nicht mehr raus, hab jetzt noch ein bild angehängt und werd es kurz beschreiben.

@menorca:Ich habe ja die genannten lfm bezahlt und wenn ich jetzt weniger nehme wird das am preis wohl auch nichts mehr ändern denk ich mal

@Magnolia:Es war das größte Einrichtungshaus in der Nähe von Ulm,und wenn ich so überlege ist Leicht ja auch nicht gerade das schlechteste oder? Aber wäre einen versuch wert nochmals zu fragen wie es mit der frei geplanten Küche aussieht
 

Anhänge

  • küche2.JPG
    küche2.JPG
    35,1 KB · Aufrufe: 285
AW: Jetzt ist es passiert*Küche nach lfm gekauft*

Beginnend links unten:

50 US
80 US mit Kochfeld
40 US

Le Mans Unterschrank 65x115
Spülenschrank 50
Eckschrank 80

US 15
Spülmaschine 60
Apotheker 30
Hochschrank 60 Backofen

Oben:
Hängeschrank 45
Dunstabzug 90
Liftschrank 90

Eckschrank 30
Liftschrank 2x60
 
AW: Jetzt ist es passiert*Küche nach lfm gekauft*

Hallo,

ich selbst habe eine Leicht-Küche und wäre ich nicht überzeugt, hätte ich sie nicht gekauft ;-)

Hast Du den Thread von der Meterküche (Leicht) gefunden ? Lohnt sich zu lesen.:-)

Natürlich war ich auch überrascht, dass das Küchenstudio so positiv reagiert hat, aber manchmal wendet sich alles zum Guten.
 
AW: Jetzt ist es passiert*Küche nach lfm gekauft*

Köntest du mir bitte den link mal schicken ;D
 

Ähnliche Beiträge

Neff Hausgeräte Ballerina Küchen Blum Bewegungstechnologie Weibel - Intelligente Küchenlüftung

Neff Spezial

Blum Zonenplaner

Weibel Abluft-Tuning

Weibel Abluft-Tuning
Zurück
Oben