Fertig ohne Bilder Jetzt ist es passiert*Küche nach lfm gekauft*

AW: Jetzt ist es passiert*Küche nach lfm gekauft*

Hallo dieseloel,

der Vertrag ist angekommen und das Team hat ihn jetzt vorliegen. Veröffentlichen werden wir ihn wegen der persönlichen Daten nicht. Aber wir können sicher bald etwas dazu sagen.
 
AW: Jetzt ist es passiert*Küche nach lfm gekauft*

Lass mal nicht die Ohren hängen.....

ganz so dramatisch hört sich das alles gar nicht an, hab hier schon schlimmeres gelesen;-)

Nach deinen Beschreibungen könnte man evtl. auch einen Zweizeiler stellen. Warten wir mal ab....;-)
 
AW: Jetzt ist es passiert*Küche nach lfm gekauft*

Ja Tara, das mit dem Zweizeiler dachte ich mir auch schon. Somit hätte man die doppelten Ecken eliminiert aber nicht wirklich was an Stauraum verloren. Nur leider Arbeitsfläche...

Denke ich zumindest, weil hier liegt ja leider noch kein vermaßter Grundriss vor ;-) Isch 'abe nix Alnoplaner...
 
AW: Jetzt ist es passiert*Küche nach lfm gekauft*

Hab jetzt auf die schnelle mal nen Plan angehängt und hoffe der hilft schon um einiges weiter.
Ist zwar kein Alno aber die Maße stehen drin, und die 2470 mm sind auf die ganze Breite bezogen ;D
 

Anhänge

  • SCAN0007.jpg
    SCAN0007.jpg
    22,9 KB · Aufrufe: 162
AW: Jetzt ist es passiert*Küche nach lfm gekauft*

Der Plan ist absolut ausreichend!

Ich habe gerade in dem Eingangspost zwei Ansichten und den Grundriss hochgeladen.

Und dann zeige ich hier mal eine Alternative in U-Form:

Ich hoffe, dass ihr den 80cm hohen Korpus von Leicht bekommt, mit dem sich eine Arbeitshöhe ab ca. 92cm verwirklichen lässt. Als 6-Raster bietet der einfach mehr Stauraum als 5-Raster-Unterschränke:
-

Die hohen Schränke rechts und links machen die Küche optisch eng, finde ich. Deshalb habe ich den BO-Schrank in möglichst gleicher Höhe neben den SbS gestellt (optisch nicht ganz der Brüller, aber den SbS gibt es ja schon).

Dann das Kochfeld auf einem 100cm US mit 2 Schubläden und zwei Auszügen (1-1-2-2), möglichst weit rechts eingebaut für die Ellbogenfreiheit.

Tote Ecke - GSP - 125cm Spüleneckschrank (wegen des Wasseranschlusses): deine Küche hat die ideale Breite für die zwei 60cm breiten Türen am Fenster!

40cm 3-3 für Biomüll direkt unter der AP - 80cm - 60cm. Eventuell Borde hinter der Tür (nicht aus dem Metervertrag!).

Macht 720cm. Mit vielen schönen Schubläden und Auszügen! Und für die nicht vorhandenen Hängeschränke an der Kochzeile und Fensterzeile solltest du ja noch Geld gutgeschrieben bekommen.
 

Anhänge

  • kf_dieseloel_V1.KPL
    4,1 KB · Aufrufe: 131
  • kf_dieseloel_V1.POS
    7,4 KB · Aufrufe: 133
  • kf_dieseloel_V1_A1.jpg
    kf_dieseloel_V1_A1.jpg
    39 KB · Aufrufe: 157
  • kf_dieseloel_V1_A2.jpg
    kf_dieseloel_V1_A2.jpg
    42 KB · Aufrufe: 158
  • kf_dieseloel_V1_A3.jpg
    kf_dieseloel_V1_A3.jpg
    38,5 KB · Aufrufe: 150
  • kf_dieseloel_V1_A4.jpg
    kf_dieseloel_V1_A4.jpg
    42,2 KB · Aufrufe: 154
  • kf_dieseloel_V1_G.JPG
    kf_dieseloel_V1_G.JPG
    36 KB · Aufrufe: 347
AW: Jetzt ist es passiert*Küche nach lfm gekauft*

Und jetzt noch der von den Mädels vorgeschlagene Zweizeiler:

Gleich viel Stauraum, weniger Arbeitsplatte . Aber nur knapp 5 Meter Küche. Macht auch die Granit-AP günstiger.
5 Meter sind ja das Mindestmaß, das du abnehmen musst. Vielleicht springt noch eine Nischenrückwand raus.
 

Anhänge

  • kf_dieseloel_V3.KPL
    3,9 KB · Aufrufe: 139
  • kf_dieseloel_V3.POS
    7,4 KB · Aufrufe: 139
  • kf_dieseloel_V3_A1.jpg
    kf_dieseloel_V3_A1.jpg
    38,4 KB · Aufrufe: 146
  • kf_dieseloel_V3_A2.jpg
    kf_dieseloel_V3_A2.jpg
    35 KB · Aufrufe: 144
  • kf_dieseloel_V3_G.JPG
    kf_dieseloel_V3_G.JPG
    36,1 KB · Aufrufe: 154
AW: Jetzt ist es passiert*Küche nach lfm gekauft*

wow, Menorca, bist du flott:top:

da hab ich grad mal die Maße in den Alno Planer eingegeben und du kommst schon mit zwei kompletten Planungen um die Ecke...:-)
 
AW: Jetzt ist es passiert*Küche nach lfm gekauft*

Ich hatte mir die Daten aus dem ersten post runtergeladen. ;-)
 
AW: Jetzt ist es passiert*Küche nach lfm gekauft*

Gibt es denn Infos, zu dem Meterpreisvertrag?

Denn häufig werden die Ecken doch doppelt gezählt? Und dann würde sich eh der Zweizeiler anbieten.

Wäre generell am schwanken, beim Zweizeiler sehe ich generell den Vorteil, dass es sich zu mehreren besser kochen lässt, da man sich nicht ständig im Weg steht.
Beim U hättest du mehr Arbeitsfläche.
 
AW: Jetzt ist es passiert*Küche nach lfm gekauft*

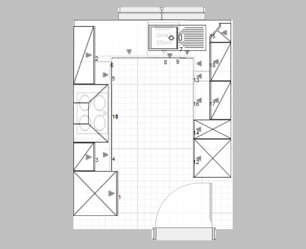
Und ich habe dir einen Zwei-Zeiler in Übertiefe geplant.

planlinks unten, Übertiefe 70 cm:
SbS
Blende
50er US 1-1-2-2
90er US 1-1-2-2 mit Kochfeld
90er US 1-1-2-2

Obendrüber, ebenfalls von unten
Blende
50er OS
90er Dunstabzugshaube - Unterbau
80er OS
Blende

planrechts, unten beginnend, US ebenfalls in Übertiefe bzw. auf 70 cm vorgezogen, damit die Schäuche für die SpüMa gut verlegt werden können:
Blende
BO
SpüMa
50er US für Müll unter der Arbeitsfläche, untendrunter für Höheres
60er Spüle
Blende

obendrüber:
Blende
90er OS
80er OS
Blende
 

Anhänge

  • Dieseloel_Mela3.KPL
    3,9 KB · Aufrufe: 130
  • Dieseloel_Mela3.POS
    8,1 KB · Aufrufe: 133
  • Dieseloel_Mela3_Grundriss.JPG
    Dieseloel_Mela3_Grundriss.JPG
    37 KB · Aufrufe: 157
  • Dieseloel_Mela3_Herd.jpg
    Dieseloel_Mela3_Herd.jpg
    41,8 KB · Aufrufe: 162
  • Dieseloel_Mela3_Spüle.jpg
    Dieseloel_Mela3_Spüle.jpg
    38,7 KB · Aufrufe: 163
AW: Jetzt ist es passiert*Küche nach lfm gekauft*

Na das ging ja flott bei euch beiden, herzlichen Dank erstmal.

Werde das morgen mal meiner besseren Hälfte vorlegen, denn sie kocht meist alleine ;D

Zum Thema Metervertrag:

Berechnet wird die tatsächlich benötigte Menge an Küchenmöbeln,zentimetergenau nach Aufmass, auf der Grundlage der Rückseite der Unterschränke von wandecke zu Wandecke.
Fehlende oder zusätzlich benötigte Möbelteile werden im gleichen Preisverhältnis als Minder- oder Mehrmengen gutgeschrieben bzw. berechnet.

Übrigens die Granitplatte habe ich schon abgezogen sonst wären wir bei 7000 € :-\
 
AW: Jetzt ist es passiert*Küche nach lfm gekauft*

Richtig, berechnet wird zentimetergenau, jedoch mit der Mindestabnahmemenge von 5,00 Metern.
 
Mich als Leicht Händler würde schonmal die Endplanung und der Endpreis interessieren.
 
AW: Jetzt ist es passiert*Küche nach lfm gekauft*

Annette,
damit ich etwas lerne. Beziehen sich die 5 Meter auf die Unterschränke oder werden Oberschränke mitgerechnet?

Ich habe bei meiner Planung einmal die Unterschränke addiert. Ich komme mit Blende auf ungefähr 4,75 m, hängt von der Breite der Blenden ab.
 
AW: Jetzt ist es passiert*Küche nach lfm gekauft*

@ jemo:Berechnet wurden 7,25 lfm abzüglich Oberschränke (3,45 lfm für die Wand wo das Fenster ist und Dunstabzug x 236 €)

@mela:Berechnet werden komplette Meter,d.h. Sockel ,US,APL,Oberschrank
wenn kein Oberschrank benötigt wird, werden 25% vom Meterpreis abgezogen.

Hoffe habe das so richtig erklärt, wobei ich sagen muß der Plan von Annette auf Seite 3 gefällt mir sehr gut :-)
 
AW: Jetzt ist es passiert*Küche nach lfm gekauft*

,zentimetergenau nach Aufmass, auf der Grundlage der Rückseite der Unterschränke von wandecke zu Wandecke.

Kann mich jemand aufklären?

hab es noch nicht verstanden...beim Zweizeiler klar und eindeutig!

Was bedeutet es beim U?

Zeile 1 planlinks Ecke bis zur Ecke
Zeile 2 planoben Ecke bis zur Ecke
Zeile 3 planrechts Ecke bis zur Ecke

also doch zweifache Doppelberechnung der Ecken?
 
AW: Jetzt ist es passiert*Küche nach lfm gekauft*

@ dieseloel....da wir alle andere Einstellungen haben, ist es besser, wenn du nicht die Seite sondern die Beitragsnummer nennst.
Die findest du rechts oben
zum Beispiel ist mein Beitrag: #59
 
AW: Jetzt ist es passiert*Küche nach lfm gekauft*

aha.
Sind dann die 5000,-€ der Preis für die Mindestmenge?

Ne, berechnet sind 7,25m zu knapp 1.000€/Meter, macht circa 7.000€. Extra erwähnt ist ein Zuschlag wegen Granit-AP von circa 2.000, die aber im Gesamtpreis enthalten ist.
Geräte sind vorhanden, Spüle und Armatur gehen extra.
Macht für dieseloel circa 5.000€ reinen Möbelpreis, bezogen auf diese Planung (siehe Eingangspost):

97058d1354122444t-jetzt-ist-es-passiert-kueche-nach-lfm-gekauft-kf_dieseloel_eigen_a2.jpg


97059d1354122444t-jetzt-ist-es-passiert-kueche-nach-lfm-gekauft-kf_dieseloel_eigen_a1.jpg


97057d1354122444t-jetzt-ist-es-passiert-kueche-nach-lfm-gekauft-kf_dieseloel_eigen_g.jpg
 

Ähnliche Beiträge

Neff Hausgeräte Ballerina Küchen Blum Bewegungstechnologie Weibel - Intelligente Küchenlüftung

Neff Spezial

Blum Zonenplaner

Weibel Abluft-Tuning

Weibel Abluft-Tuning
Zurück
Oben