Schneeleopard
Mitglied
- Beiträge
- 484
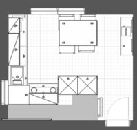
Ich habe den Eindruck, dass den Tisch immer neu und immer
wieder gegen den Raum planst, nur um eine Bank zu vermeiden.
Bei der Planung in #20 mit festmontierter (!) Tischplatte bleiben
~ 30 cm 'Durchgang' an der Tischfront und die hinteren Stühle
sind eigentlich nicht benutzbar. Stühle sollten in der Planung nie
unter dem Tisch stehend gezeichnet werden, denn so werden sie
auch nicht benutzt!
Bei dem 30 cm tiefen Schrank planunten machen Auszüge wenig
Sinn. Die Schubladen haben in dem Fall ein Innenmaß von etwa
70 cm Breite und 20 cm Tiefe und kosten relativ viel fürs Kürzen.
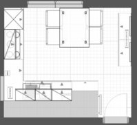
wieder gegen den Raum planst, nur um eine Bank zu vermeiden.
Bei der Planung in #20 mit festmontierter (!) Tischplatte bleiben
~ 30 cm 'Durchgang' an der Tischfront und die hinteren Stühle
sind eigentlich nicht benutzbar. Stühle sollten in der Planung nie
unter dem Tisch stehend gezeichnet werden, denn so werden sie
auch nicht benutzt!
Bei dem 30 cm tiefen Schrank planunten machen Auszüge wenig
Sinn. Die Schubladen haben in dem Fall ein Innenmaß von etwa
70 cm Breite und 20 cm Tiefe und kosten relativ viel fürs Kürzen.















