Ikarus
Mitglied
- Beiträge
- 17
Hallo allerseits,
da dies mein erster Beitrag ist zunächst einmal herzlichen Dank für all die wertvollen Tipps und Infos, die sich dir dank fleißiger aktiver User finden lassen!!!
Nun zu unserer Situation: Wir bauen derzeit ein Haus und suchen nun die passende Küche. Die Möglichkeiten sind zwar begrenzt, aber es gibt irgendwie doch mehr Möglichkeiten, als unsere Hirne vertragen können ... Daher brauchen wir nun euch.
Wir (meine Frau und ich, beide in der Küche tätig, Kinder sind zwar noch keine vorhanden, aber geplant) werden uns eine Leicht Küche kaufen, so viel steht schon fest und auch bei welchem Küchenstudio . Dennoch wollten wir unsere PLanung hier noch mal auf Herz und Nieren prüfen lassen, bevor wir uns hinterher ärgern müssen. Wir freuen uns über jeden Hinweis!
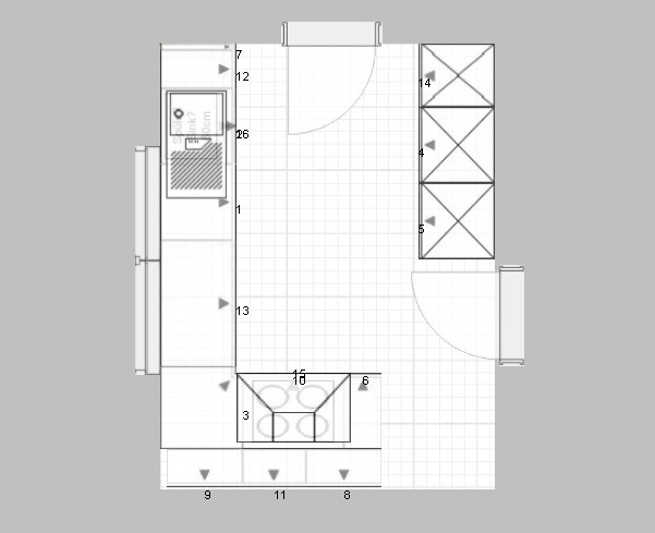
Da es sich um einen Neubau handelt, sind die Anschlüsse atürlich noch völlig flexibel. Auch das Fesnter links, das in Größe und Brüstungshöhe der Küchenplanung angepasst wird. Die beiden Türen würden wir gerne lassen wie sie sind, da sich ansonsten in den dahinter liegenden Räumen Probleme ergeben.
Nach unten geht`s im Grundriss übrigens in den offenen Wohn-/Essbereich, direkt in den Essbereich.
Über dem Backofen planen wir eine Lifttür, in die wir eine Standmikrowelle stellen wollen, evetl. später dann einen Einbau-Dampfgarer.
An Gerätschaften sind geplant: (Siemens ) Wandesse, Backofen (evtl. mit Pyrolyse ), Geschirrspüler (hohe Version), Küchlschrank mit Gefrierfach und Vita Fresh). Die Links werde ich evtl. noch später posten, wenn die Grundplanug steht.
Zu unserem Hauptproblem: Wir hätten gerne möglichst viel Arbeitsfläche zwischen dem 60er-Kochfeld und der Spüle (derzeit 85cm breit - haben wir derzeit auch und reicht uns). Dennoch hätten wir gerne neben dem Kochfeld 30cm PLatz, rechts neben der Spüle ebenfalls. Dank des Forums wissen wir außerdem, dass die Spüle mit BEcken links eigentlich besser wäre - doch wie bekommen wir das hin, ohne die Spülmaschine nach rechts schieben zu müssen?
Es sei noch erwähnt, dass die beiden Türen Schiebetüren werden, die hab ich im Alnoplaner leider nirgends entdecken können. Nach unten ist keine Tür/Wand, dort ist die Küche offen.
Ist die Schrankauswahl / - aufteilung ansonsten okay?
Ich bin für jeden Hinweis dankbar! Und ich hoffe, ich hab alles hochgeladen, was ihr zum Drüberschauen so braucht.
Vielen Dank und viele Grüße!
Checkliste zur Küchenplanung von Ikarus
Anzahl Personen im Haushalt : 2
Davon Kinder? : 2
Körpergrössen aller Hauptbenutzer (wegen Arbeitshöhe ) in cm : 170, 180
Art des Gebäudes? : Neu-/Umbau, Planänderungen möglich
Brüstungshöhe des Fensters (in cm) : beliebig
Fensterhöhe (in cm) : beliebig
Raumhöhe in cm: : 300
Heizung : Fussbodenheizung
Sanitäranschlüsse : vollkommen variabel
Ausführung Kühlgerät? : Integriert im Hochschrank
Kühlgerät Größe : noch unbekannt
Ausführung Tiefkühl (TK)-Gerät : Im Kühlschrank als kleines Fach oben
Dunstabzugshaube? : Umluft
Hochgebauter Backofen ? : Wenn möglich
Hochgebauter Geschirrspüler ? : wenn möglich
Kochfeldart? : Induktion
Kochfeldbreite ca. (in cm)? : 60
Spülenform: : 1 Becken mit Abtropffläche
Weitere geplante Heißgeräte : Standmikrowelle
Küchenstil? : klassisch
Sitzmöglichkeit in der Küche / im Küchenbereich als : Keine
Sitzmöglichkeit: Für wieviel Personen? : nein
Sitzmöglichkeit: Tisch - wenn gesonderter Tisch oder offene Küche : Keine
Gewünschte o. vorhandene Tischgröße : keine
Wofür soll der Sitzplatz in der Küche genutzt werden? Wie häufig? : gar nicht
Welche Arbeitshöhe ist angedacht (in cm)? : 92
Was steht auf der Arbeitsplatte oder soll dort stehen? : Wasserkocher, Messerblock, Toaster, Brotbehälter, Sonstiges (evtl. im Beitragstext benennen)
Welche weiteren Küchenmaschinen müssen in der Küche untergebracht werden? : Küchenmaschine, Handrührgerät, Pürierstab, Eierkocher
Was soll in der Küche außer den Standards untergebracht werden? : Sonstiges (evtl. im Beitragstext benennen)
Welchen Stauraum gibt es sonst noch? : Geschirr/Gläserschrank im Wohn-/Esszimmer, Speisekammer, Hauswirtschaftsraum, Keller
Was/wie wird gekocht? (Alltagsküche, Menüs, Snacks usw) : Eigentlich alles - Alltag, Menüs, SNacks, Backen ...
Wie häufig wird gekocht? : (fast) täglich 1x warm
Wird alleine gekocht? Oder auch gemeinsam? Mit und für Gäste? : Auch gemeinsam, selten mit, eher für Gäste
Was stört an der bisherigen Küche und was soll die neue Küche unbedingt können? Warum? : zu wenig Arbeitsfläche (nur etwas weniger als 80cm am Stück)
Preisvorstellung (Budget) : bis 15.000,-
da dies mein erster Beitrag ist zunächst einmal herzlichen Dank für all die wertvollen Tipps und Infos, die sich dir dank fleißiger aktiver User finden lassen!!!
Nun zu unserer Situation: Wir bauen derzeit ein Haus und suchen nun die passende Küche. Die Möglichkeiten sind zwar begrenzt, aber es gibt irgendwie doch mehr Möglichkeiten, als unsere Hirne vertragen können ... Daher brauchen wir nun euch.
Wir (meine Frau und ich, beide in der Küche tätig, Kinder sind zwar noch keine vorhanden, aber geplant) werden uns eine Leicht Küche kaufen, so viel steht schon fest und auch bei welchem Küchenstudio . Dennoch wollten wir unsere PLanung hier noch mal auf Herz und Nieren prüfen lassen, bevor wir uns hinterher ärgern müssen. Wir freuen uns über jeden Hinweis!
Da es sich um einen Neubau handelt, sind die Anschlüsse atürlich noch völlig flexibel. Auch das Fesnter links, das in Größe und Brüstungshöhe der Küchenplanung angepasst wird. Die beiden Türen würden wir gerne lassen wie sie sind, da sich ansonsten in den dahinter liegenden Räumen Probleme ergeben.
Nach unten geht`s im Grundriss übrigens in den offenen Wohn-/Essbereich, direkt in den Essbereich.
Über dem Backofen planen wir eine Lifttür, in die wir eine Standmikrowelle stellen wollen, evetl. später dann einen Einbau-Dampfgarer.
An Gerätschaften sind geplant: (Siemens ) Wandesse, Backofen (evtl. mit Pyrolyse ), Geschirrspüler (hohe Version), Küchlschrank mit Gefrierfach und Vita Fresh). Die Links werde ich evtl. noch später posten, wenn die Grundplanug steht.
Zu unserem Hauptproblem: Wir hätten gerne möglichst viel Arbeitsfläche zwischen dem 60er-Kochfeld und der Spüle (derzeit 85cm breit - haben wir derzeit auch und reicht uns). Dennoch hätten wir gerne neben dem Kochfeld 30cm PLatz, rechts neben der Spüle ebenfalls. Dank des Forums wissen wir außerdem, dass die Spüle mit BEcken links eigentlich besser wäre - doch wie bekommen wir das hin, ohne die Spülmaschine nach rechts schieben zu müssen?
Es sei noch erwähnt, dass die beiden Türen Schiebetüren werden, die hab ich im Alnoplaner leider nirgends entdecken können. Nach unten ist keine Tür/Wand, dort ist die Küche offen.
Ist die Schrankauswahl / - aufteilung ansonsten okay?
Ich bin für jeden Hinweis dankbar! Und ich hoffe, ich hab alles hochgeladen, was ihr zum Drüberschauen so braucht.
Vielen Dank und viele Grüße!
Checkliste zur Küchenplanung von Ikarus
Anzahl Personen im Haushalt : 2
Davon Kinder? : 2
Körpergrössen aller Hauptbenutzer (wegen Arbeitshöhe ) in cm : 170, 180
Art des Gebäudes? : Neu-/Umbau, Planänderungen möglich
Brüstungshöhe des Fensters (in cm) : beliebig
Fensterhöhe (in cm) : beliebig
Raumhöhe in cm: : 300
Heizung : Fussbodenheizung
Sanitäranschlüsse : vollkommen variabel
Ausführung Kühlgerät? : Integriert im Hochschrank
Kühlgerät Größe : noch unbekannt
Ausführung Tiefkühl (TK)-Gerät : Im Kühlschrank als kleines Fach oben
Dunstabzugshaube? : Umluft
Hochgebauter Backofen ? : Wenn möglich
Hochgebauter Geschirrspüler ? : wenn möglich
Kochfeldart? : Induktion
Kochfeldbreite ca. (in cm)? : 60
Spülenform: : 1 Becken mit Abtropffläche
Weitere geplante Heißgeräte : Standmikrowelle
Küchenstil? : klassisch
Sitzmöglichkeit in der Küche / im Küchenbereich als : Keine
Sitzmöglichkeit: Für wieviel Personen? : nein
Sitzmöglichkeit: Tisch - wenn gesonderter Tisch oder offene Küche : Keine
Gewünschte o. vorhandene Tischgröße : keine
Wofür soll der Sitzplatz in der Küche genutzt werden? Wie häufig? : gar nicht
Welche Arbeitshöhe ist angedacht (in cm)? : 92
Was steht auf der Arbeitsplatte oder soll dort stehen? : Wasserkocher, Messerblock, Toaster, Brotbehälter, Sonstiges (evtl. im Beitragstext benennen)
Welche weiteren Küchenmaschinen müssen in der Küche untergebracht werden? : Küchenmaschine, Handrührgerät, Pürierstab, Eierkocher
Was soll in der Küche außer den Standards untergebracht werden? : Sonstiges (evtl. im Beitragstext benennen)
Welchen Stauraum gibt es sonst noch? : Geschirr/Gläserschrank im Wohn-/Esszimmer, Speisekammer, Hauswirtschaftsraum, Keller
Was/wie wird gekocht? (Alltagsküche, Menüs, Snacks usw) : Eigentlich alles - Alltag, Menüs, SNacks, Backen ...
Wie häufig wird gekocht? : (fast) täglich 1x warm
Wird alleine gekocht? Oder auch gemeinsam? Mit und für Gäste? : Auch gemeinsam, selten mit, eher für Gäste
Was stört an der bisherigen Küche und was soll die neue Küche unbedingt können? Warum? : zu wenig Arbeitsfläche (nur etwas weniger als 80cm am Stück)
Preisvorstellung (Budget) : bis 15.000,-
Anhänge

