- Beiträge
- 22.447
- Wohnort
- Schweiz
AW: Zweizeilige Küche im Neubau
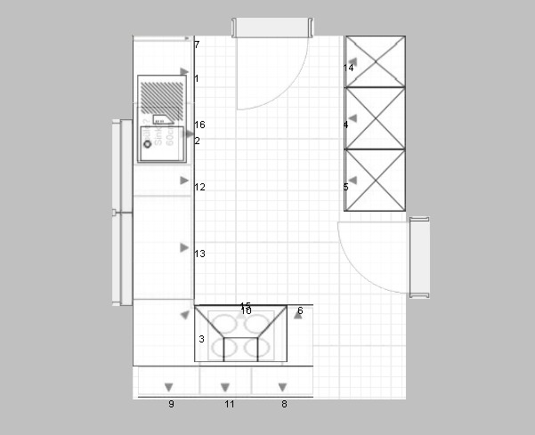
Ich gratuliere zum angepassten Grundriss - könntest Du den bitte noch im ersten Beitrag einfügen, damit wir auch was davon haben?
Die 'F2'-Taste ist die Zaubertaste mit der sich die Kochfeldbreite anpassen lässt.
Der Titel lässt sich ändern - aber ob es jetzt ein L-Küche wird *hust* ... von dem Entwurf bin ich noch nicht ganz überzeugt.
Den GSP sollte bei dieser Anordnung recht von der Spüle sein GSP nicht zwischen Herd und Spüle)
Das Kochfeld auf dem Stummel?? *HUST* - der Stummel ist zu schmal. ( um ein Kochfeld sollte auf drei Seiten minimum 40-50cm Abstellfläche sein); denk einfach an Fettspritzer, überstehende Pfannengriffe, Anrichten etc... - das macht soo keinen Spass.
Bitte verlinke die Geräte auf die Herstellerseite, wenn Du unsere Kommentare dazu wünschst.
Ich gratuliere zum angepassten Grundriss - könntest Du den bitte noch im ersten Beitrag einfügen, damit wir auch was davon haben?
Die 'F2'-Taste ist die Zaubertaste mit der sich die Kochfeldbreite anpassen lässt.
Der Titel lässt sich ändern - aber ob es jetzt ein L-Küche wird *hust* ... von dem Entwurf bin ich noch nicht ganz überzeugt.
Den GSP sollte bei dieser Anordnung recht von der Spüle sein GSP nicht zwischen Herd und Spüle)
Das Kochfeld auf dem Stummel?? *HUST* - der Stummel ist zu schmal. ( um ein Kochfeld sollte auf drei Seiten minimum 40-50cm Abstellfläche sein); denk einfach an Fettspritzer, überstehende Pfannengriffe, Anrichten etc... - das macht soo keinen Spass.
Bitte verlinke die Geräte auf die Herstellerseite, wenn Du unsere Kommentare dazu wünschst.
