Unbeendet Unsere erste richtige Küche (mit Dachschräge)

Cranberry

Mitglied
Beiträge
2
Hallo zusammen,

nach 4 Jahren im Studentenwohnheim mit einer Küche auf 3m², ziehe ich bald mit meinem Freund zusammen. Da ich gerne koche, hat mich die Küchenplanung voll gepackt und so bin ich dann auch ziemlich schnell auf dieses Küchenforum gestossen. Nach einigem Mitlesen habe ich mich heute dann mal auf den Alno -Planer gestürzt.

Werden soll es eine Nobilia Küche mit Speed- oder Pia-Fronten in mattem Magnolia und Arbeitsplatte in Holzoptik (uns gefällt Country Oak). Ich glaube, es ist noch niemand darauf gekommen, dazu dann auch die Wände grün zu streichen. ;-)

Noch einige Erklärungen:

- Die Dachfenster sind eigentlich Giebelfenster
- Die Spülmaschine soll links in den Spülenschrank (konnte ich im Alno-Planer leider nicht darstellen)
- Wir haben einen Kühlschrank, eine Mikrowelle und einen kleinen Backofen mit Grillfunktion
- Einige Vorräte (Kartoffeln, Getränkekisten) können hinter der "Elfen"-Tür gelagert werden
- Der Tisch soll einklappbar sein (können wir selber realisieren) und die Klappstühle sollen neben der "Elfen"-Tür im Freiraum zwischen Wand und Unterschrank untergebracht werden

Damit wir am Ende nicht ohne Waschmaschine und Bett dastehen, haben wir für die Küche ein Budget von 4000-5000€ übrig. Ich möchte ich gerne wissen, ob dieser Preis für diese Küche realistisch ist und worauf wir bei der Planung und beim Kauf noch achten können.

Liebe Grüße,
Cranberry


Checkliste zur Küchenplanung von Cranberry

Anzahl Personen im Haushalt : 2
Davon Kinder? : keine
Körpergrössen aller Hauptbenutzer (wegen Arbeitshöhe ) in cm : 174
Art des Gebäudes? : Bestandsbau, Umbauten ausgeschlossen
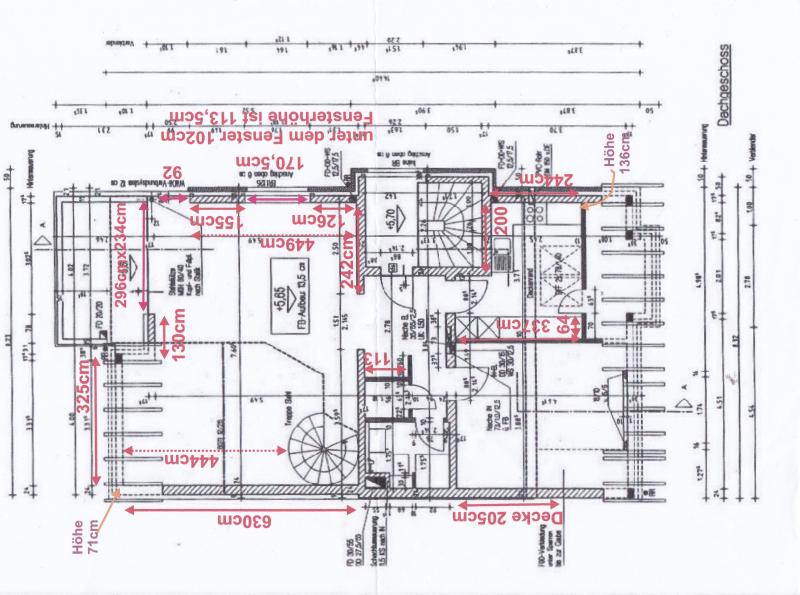
Brüstungshöhe des Fensters (in cm) : 136
Fensterhöhe (in cm) : Giebelfenster
Raumhöhe in cm: : 240
Heizung : Fussbodenheizung
Sanitäranschlüsse : fix
Ausführung Kühlgerät? : Stand-Alone bis 75 cm Breite
Kühlgerät Größe : bis 175 cm Höhe
Ausführung Tiefkühl (TK)-Gerät : Im Kühlschrank ab 3 Schubladen unten
Dunstabzugshaube? : Abluft
Hochgebauter Backofen ? : Nein
Hochgebauter Geschirrspüler ? : nein
Kochfeldart? : Ceran (herkömmlich)
Kochfeldbreite ca. (in cm)? : 60
Spülenform: : Noch nicht festgelegt
Weitere geplante Heißgeräte :
Küchenstil? : modern
Sitzmöglichkeit in der Küche / im Küchenbereich als : Arbeitsplatte in Tischhöhe
Sitzmöglichkeit: Für wieviel Personen? : für 2 Personen
Sitzmöglichkeit: Tisch - wenn gesonderter Tisch oder offene Küche : Keine
Gewünschte o. vorhandene Tischgröße :
Wofür soll der Sitzplatz in der Küche genutzt werden? Wie häufig? : Frühstück, kleiner Snack
Welche Arbeitshöhe ist angedacht (in cm)? : 91
Was steht auf der Arbeitsplatte oder soll dort stehen? : Kaffeemaschine, Wasserkocher, Toaster, Brotbehälter
Welche weiteren Küchenmaschinen müssen in der Küche untergebracht werden? : Küchenmaschine, Handrührgerät, Pürierstab
Was soll in der Küche außer den Standards untergebracht werden? : Geschirr komplett (nichts in Ess-/Wohnzimmer)
Welchen Stauraum gibt es sonst noch? : Speisekammer, Hauswirtschaftsraum, Keller
Was/wie wird gekocht? (Alltagsküche, Menüs, Snacks usw) : Alltagsküche, aber manchmal auch aufwendiger
Wie häufig wird gekocht? : (fast) täglich 1x warm
Wird alleine gekocht? Oder auch gemeinsam? Mit und für Gäste? : Auch gemeinsam
Was stört an der bisherigen Küche und was soll die neue Küche unbedingt können? Warum? : Endlich viel Platz in der Küche!
Preisvorstellung (Budget) : bis 5.000,-
 

Anhänge

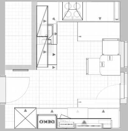
  • Kueche1.jpg
    Kueche1.jpg
    44,9 KB · Aufrufe: 297
  • Kueche3.jpg
    Kueche3.jpg
    46,7 KB · Aufrufe: 309
  • PLAN6.KPL
    4,1 KB · Aufrufe: 296
  • PLAN6.POS
    8,1 KB · Aufrufe: 274
  • GrundrissKueche.jpg
    GrundrissKueche.jpg
    54,3 KB · Aufrufe: 280
  • Grundriss.jpg
    Grundriss.jpg
    77,5 KB · Aufrufe: 308
  • Kueche4.jpg
    Kueche4.jpg
    41,3 KB · Aufrufe: 296
  • Kueche2.jpg
    Kueche2.jpg
    41,5 KB · Aufrufe: 299
AW: Unsere erste richtige Küche (mit Dachschräge)

Hallo Cranberry,
gute Eröffnung. Eine Frage noch, die zweite Person, die auch gerne kocht, wie groß ist die denn?

Und dann habe ich mal umgestellt, "kein Dachfenster" interpretiere ich als kleine Gaube ... guck mal, ob das so stimmt.

Du hast recht viele kleine Schränke und so Sachen wie Karrussel und Drehtürschränke drin gehabt.

Ich würde versuchen, Backofen und Kochfeld zu trennen. Ein einfaches Induktionskochfeld für den Starkstromanschluß und der Backofen an einer Steckdose.

Dann kann man am Kochfeld 2x80er Auszugsunterschränke stellen.

Spülenzeile mit 60er Spülenschrank und 60er GSP, daneben noch das 15er Element. Das kann auch einfach nur eine Abschlußwange neben der GSP sein und dann überstehende APL bis zur Wandecke. Je nachdem, was günstiger ist. Die GSP braucht aber einen Abschluß, da eine GSP ja keinen Schrank hat, sondern nur eine Front.

Eure Heißgerätezeile habe ich dann mit einem Unterschrank für den Backofen erweitert und rechts und links 2x90er Auszugsunterschränke.

Hängeschränke würde ich nur mit geschlossenen Fronten in niedriger Ausführung wählen. Dann kann man da an der Spüle den Abstand zur APL größer wählen, damit man dort schön Kopffreiheit hat.

Ich bin mal auf ein höheres Korpusmass gegangen, um 6-rasterig zu werden.
D. h. 6rasterig werden:
full


Typische Korpushöhen für 5-rasterig: 65cm, 70 cm, 72 cm, 75cm.

Typische Korpushöhen für 6-rasterig: 78cm, 79,8cm, 86,4cm

In Korpushöhen - Rastermaße - Auszugs-Innenmaße - Stauraumplanung sind diverse Hersteller mit ihren Standardkorpushöhen verlinkt.

Wenn man dann z. B. einen 78cm hohen Korpus wählt, ergeben sich folgende Maße
- 78 cm Korpushöhe
- 4 cm APL-Höhe
- 10 cm Sockelhöhe
-----------------
= 92 cm Gesamthöhe=Arbeitshöhe

Da wäre evtl. Beckermann oder Schüller ein möglicher Anbieter für euch, wo man mit dem Budget auch ausreicht.

Ihr solltet darauf achten, dass es keine Folienfront ist (kann sich von der Front lösen). Schichtstoff ist in aller Regel nicht teurer, aber robuster.

Die Aufteilung der Schränke würde ich euch aber auch mit Nobilia empfehlen. Es ist dann halt eine Schubladenebene weniger bei der Heißgerätezeile.
 

Anhänge

  • kf_cranberry_20110201_Var1.POS
    10,6 KB · Aufrufe: 292
  • kf_cranberry_20110201_Var1_Grundriss.jpg
    kf_cranberry_20110201_Var1_Grundriss.jpg
    68,3 KB · Aufrufe: 273
  • kf_cranberry_20110201_Var1.kpl
    4,1 KB · Aufrufe: 318
  • kf_cranberry_20110201_Var1_Ansicht3.jpg
    kf_cranberry_20110201_Var1_Ansicht3.jpg
    137 KB · Aufrufe: 290
  • kf_cranberry_20110201_Var1_Ansicht4.jpg
    kf_cranberry_20110201_Var1_Ansicht4.jpg
    134,3 KB · Aufrufe: 275
  • kf_cranberry_20110201_Var1_Ansicht5.jpg
    kf_cranberry_20110201_Var1_Ansicht5.jpg
    154,6 KB · Aufrufe: 307
  • kf_cranberry_20110201_Var1_Ansicht2.jpg
    kf_cranberry_20110201_Var1_Ansicht2.jpg
    151,5 KB · Aufrufe: 283
  • kf_cranberry_20110201_Var1_Ansicht1.jpg
    kf_cranberry_20110201_Var1_Ansicht1.jpg
    151,4 KB · Aufrufe: 282
AW: Unsere erste richtige Küche (mit Dachschräge)

Hallo Cranberry

:welcome: und Du zeigst echte Begabung sowohl mit dem Alnoplaner als auch als Küchenplanerin - das war doch garnicht so schlecht ;-).

Lies mal unseren thread: Kostenfallen - da hast Du fasst alle erwischt ;D; Kerstin hat es Dir bereits Kosten- & Stauraumoptimiert :2daumenhoch:

Du hast mit Kerstins Planung mehr & besser nutzbaren Stauraum und günstiger wird die Küche ausserdem.
 
AW: Unsere erste richtige Küche (mit Dachschräge)

Vielen Dank für Eure Antworten. Erstmal ein dickes Lob an dieses Forum. Es ist toll, dass ihr so engagiert seid und man so schnell einen anderen Blickwinkel zur eigenen Planung bekommt.

Mein Freund und ich sind beide 174cm gross, wie praktisch. Ich habe gestern Abend wohl im Eifer des Gefechts Giebel mit Gaube verwechselt. ;-) Wir haben Gaubenfenster, die ich im Planer auch in der ungefähren Größe und Position dargestellt sind. (Muss nochmal genau gemessen werden). @KerstinB Genau so wie du die Fenster dargestellt hast, sind sie auch. Nur ist in der Mitte leider noch ein Stück Wand. (Da fragt man sich schon, ob das ding auch wirklich was trägt).

@KerstinB Dein Vorschlag gefällt mir echt gut. Vor allem finde ich den Herd auf der anderen Seite toll. Die ganze Seite macht richtig was her. Dort gibt es auch genug Steckdosen, um diese Lösung zu realisieren. Auch die Kochfeldseite gefällt mir, bin mir aber im allgemeinen noch nicht sicher, wegen der vielen Auszugsschränke. Ich hätte auch nie gedacht, dass die günstiger sind als Drehtüren. Die Position des Wasseranschlusses muss ich nochmal genau ausmessen, ob die 15 cm extra links oder rechts vom Spülenschrank sein müssen.

Ich habe viele "neue" Küchengegenstände von meiner Oma geerbt. Darunter gibt es auch einige grosse Töpfe und auch Bräter. Da ich auch gerne mal grössere Mengen für Parties koche und vorbereite, müssen diese auch vorhanden sein.

Noch nicht sicher bin ich mir, wegen zwei Sachen mit meinen Töpfen. Passen auch die Grossen und Pfannen auch wirklich in die Auszugsschubladen hinein? Ihr sagt bestimmt ja, aber ich trau dem Braten noch nicht. :cool: Die andere Sache ist, das immer wenn ich von Induktionskochfeldern lese, die Rede von speziellen Töpfen ist, sonst bleibt die Küche kalt. :w00t: Kann ich meine Töpfe weiterverwenden oder müsste ich mir neue Töpfe kaufen? Was nicht ganz im Sinne unserer sparsamen Planung wäre. (Ich muss zu geben, dass ich danach noch nicht im Forum gesucht habe :-[)

@Nice-nofret Vielen lieben Dank für dein Lob. KerstinB's Alnoplanerhilfe ist aber auch echt gut. Ausserdem habe ich wohl auch zu viel Sims gezockt. Ich wusste doch, dass es nochmal für etwas aus dem echten Leben gut sein wird.:dance:Die Kostenfallen sind aber auch hinterhältig. Wie oben weiter oben schon geschrieben, hätte ich nie gedacht, dass Drehtüren teurer sind als Ausziehschränke. Auch den Regalen sieht man es nicht an. (Weiß nur nicht, wo ich meine Kochbücher nun hin sollen. In der Schublade ist fast nen bißchen schade)

Mir ist noch eine Sache eingefallen. Ich habe auch ein Hochzeits-Essservice (6- oder 8-teilig, mit Suppenterrine usw.) von meiner Oma geerbt. Es ist wirklich nur für festliche Anlässe gedacht und kann auch nicht in die Spülmaschine. Gibt es dafür einen guten Platz in der Küche oder sollte es lieber im Wohnzimmer einen Platz finden?
 
AW: Unsere erste richtige Küche (mit Dachschräge)

Hallo Cranberry!

Große Töpfe passen in Auszüge. Ich hab nur 5 Raster und trotzdem steht bei mir unten im 2er Auszug ein 8 Liter Topf und ein 11 Liter Topf.

Auf den Bilderstehen die Töpfe sogar noch in 2 unterschiedlichen Auszügen, sie passen aber beide in einen Auszug bequem rein. Dazu noch der Spargeltopf, ein 6-Liter Topf und die Bratpfannen.

LG
Sabine
 
Zuletzt bearbeitet von einem Moderator:
AW: Unsere erste richtige Küche (mit Dachschräge)

Da kann ich dir generell nur Stauraumplanung empfehlen, Schublade für Schublade, Auszug für Auszug, genauer beschrieben in --> Korpushöhen - Rastermaße - Auszugs-Innenmaße - Stauraumplanung
In dem Thread siehst du auch Links zu ganz vielen Küchen mit Stauraumbeispielen. Wenn man etwas spezielles unterbringen will, dann die Höhe messen und im Küchenstudio prüfen, ob es passt. Und da kannst du dann feststellen, ob das Service noch in der Küche paßt.

Wg. der größeren Variabilität mit den Höhen habe ich dir 6-rasterige Hersteller empfohlen. Da kann man im Kochbereich 1-2-3 rasterig wählen und im Staubereich in der anderen Zeile 1-1-2-2.

Auszugsunterschränke sind nicht per se günstiger im Preis, aber günstiger im Preisleistungsverhältnis.

Die Fläche von 80 bzw. 90 cm breiten Auszügen läßt sich halt sehr gut ausnutzen.

Induktion ... einfach mal am Topf von unten (außen) einen Magneten ranhalten. Haftet der, dann kann man mit dem Topf auch auf Induktion kochen.

Und ja, meß mal genau den Wasseranschluß aus.
 
AW: Unsere erste richtige Küche (mit Dachschräge)

ein 60cm Auszugsunterschrank kostet mehr als ein 60cm Drehtürenschrank; aber ein 90cm Auszugsunterschrank kostet weniger als drei 30cm Drehtürenschränke und bietet locker 50% mehr nutzbaren Stauraum ;-) Unter dem Strich ist deshalb der Stauraum billiger ;D
 
AW: Unsere erste richtige Küche (mit Dachschräge)

... wobei man hier zu Cranberrys Ehre sagen muss, dass da breitere Drehtürschränke geplant waren.
 

Ähnliche Beiträge

Neff Hausgeräte Ballerina Küchen Blum Bewegungstechnologie Weibel - Intelligente Küchenlüftung

Neff Spezial

Blum Zonenplaner

Weibel Abluft-Tuning

Weibel Abluft-Tuning
Zurück
Oben