- Beiträge
- 58.530
AW: Offene Küche Vor-Planung
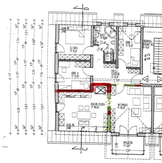
So, jetzt habe ich mal die ganze Wohnung im Alnoplaner angelegt. Im Dateinamen sind die horizontalen bzw. vertikalen Verschiebewerte festgehalten, da der Alnoplaner ja nur 9x9 m kann.
Küchenbereich etc. ... ich habe das Sofa jetzt mal nach links oben gestellt. Dafür die Halbinsel mit einer ca. 115 cm hohen Trockenbauwand abgestellt.
Unten dann als Platz für Fernseher doch die Wand zum "3. Zimmer" etwas angedeutet.
Farben sind wie immer Schall und Rauch und dienen vor allem dazu, dass man besser erkennt, dass da Wand etc. ist.
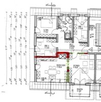
So, jetzt habe ich mal die ganze Wohnung im Alnoplaner angelegt. Im Dateinamen sind die horizontalen bzw. vertikalen Verschiebewerte festgehalten, da der Alnoplaner ja nur 9x9 m kann.
Küchenbereich etc. ... ich habe das Sofa jetzt mal nach links oben gestellt. Dafür die Halbinsel mit einer ca. 115 cm hohen Trockenbauwand abgestellt.
Unten dann als Platz für Fernseher doch die Wand zum "3. Zimmer" etwas angedeutet.
Farben sind wie immer Schall und Rauch und dienen vor allem dazu, dass man besser erkennt, dass da Wand etc. ist.
Anhänge
-
JohnOSX_20140404_kb1VSh221VSv282-alt_Ansicht1.jpg28,6 KB · Aufrufe: 126 -
JohnOSX_20140404_kb1VSh221VSv282-alt_Bad2.jpg27,7 KB · Aufrufe: 132 -
JohnOSX_20140404_kb1VSh221VSv282-alt_Bad1.jpg33,9 KB · Aufrufe: 124 -
JohnOSX_20140404_kb1VSh221VSv282-alt_Grundriss.jpg18,5 KB · Aufrufe: 129 -
JohnOSX_20140404_kb1VSh221VSv282-alt_Ansicht6.jpg44,4 KB · Aufrufe: 137 -
JohnOSX_20140404_kb1VSh221VSv282-alt_Ansicht5.jpg25 KB · Aufrufe: 122 -
JohnOSX_20140404_kb1VSh221VSv282-alt_Ansicht4.jpg27,2 KB · Aufrufe: 128 -
JohnOSX_20140404_kb1VSh221VSv282-alt_Ansicht3.jpg32,9 KB · Aufrufe: 146 -
JohnOSX_20140404_kb1VSh221VSv282-alt_Ansicht2.jpg28,7 KB · Aufrufe: 126

