Offene Küche im Neubau

AUP

Mitglied
Beiträge
6
Liebes Forum,

erstmal vielen Dank für die vielen Tipps und Ideen, die man bei euch finden kann!

Wir planen gerade unseren Neubau. Jetzt heißt es, die Küche zu planen, damit der Architekt die Anschlüsse in den Plan mit aufnehmen kann. Also sind wir schon durch diverse Ausstellungen geschlendert und haben versucht, Ideen zu sammeln.

Ein paar Infos:

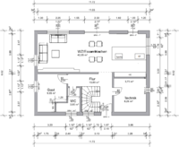
- Die Küche ist Teil des relativ langen Wohn- und Esszimmers. Die großen Fensterfronten liegen Richtung Westen, die Küche im Norden
- neben der Küche ist eine kleine Speisekammer geplant (für Vorräte, Getränke, Staubsauger, etc.)
- die Terrassentür und das Fenster in der Küche sind noch (fast) frei planbar. Allerdings muss die Terrassentür mindestens 1,20m von der Ecke entfernt liegen.
- die Arbeitsplatte hätten wir gerne in dünner Ausführung, habe ich im Alno -Planer nicht gefunden
- in dem Hochschrank in der Ecke soll die Kühl-Gefrierkombination sein
- in dem Schrank daneben ein GS, erhöht (konnte ich nicht finden im Alno-Planer)
- über dem Kochfeld tendieren wir im Moment zu einer Decken-DAH (Umluft), da müsste man die Decke ein wenig abhängen
-Budget: 15,000€ komplett

Ich hoffe, ich habe alle nötigen Infos gegeben und nichts vergessen.

Vielen Dank!
AuP


Checkliste zur Küchenplanung

Anzahl Personen im Haushalt: 4
Davon Kinder?: 2
Art des Gebäudes?: Neu-/Umbau, Planänderungen möglich
Körpergrössen aller Hauptbenutzer (wegen Arbeitshöhe ) in cm: 185 und 165cm
Brüstungshöhe des Fensters (in cm): 91 (noch planbar)
Fensterhöhe (in cm): 62,5 (noch planbar)
Raumhöhe in cm: 250
Heizung: Fussbodenheizung
Sanitäranschlüsse: vollkommen variabel
Ausführung Kühlgerät: Integriert im Hochschrank (60cm)
Kühlgerät Größe: bis 178 cm Höhe
Ausführung Tiefkühl (TK)-Gerät: Im Kühlschrank ab 3 Schubladen unten
Dunstabzugshaube: Umluft
Backofen etc. hochgebaut?: Ja
Hochgebauter Geschirrspüler ?: Ja
Kochfeldart: Induktion
Kochfeldbreite ca. (in cm)?: 80
Spülenform: 1 Becken mit Abtropffläche
Geplante Heißgeräte: Einbaumikrowelle, Backofen
Küchenstil: Grifflos
Sitzmöglichkeit in der Küche / im Küchenbereich: Gesonderter Tisch
Sitzmöglichkeit: Für wieviel Personen?: für 4 Personen
Sitzmöglichkeit: Tisch - wenn gesonderter Tisch oder offene Küche: Wird nach Bedarf neu gekauft
Gewünschte o. vorhandene Tischgröße: 200x100
Wofür soll der Sitzplatz in der Küche genutzt werden? Wie häufig?: in der Küche selbst planen wir keine Sitzplatz oder Tresen, da direkt nebenan der Esstisch stehen wird
Welche Arbeitshöhe ist angedacht (in cm)?: 91
Was steht auf der Arbeitsplatte oder soll dort stehen?: Kaffeevollautomat, Wasserkocher, Toaster, Obstschale
Welche weiteren Küchenmaschinen müssen in der Küche untergebracht werden?: Küchenmaschine, Allesschneider (z. B. in Schublade), Handrührgerät, Mixer, Pürierstab
Was soll in der Küche außer den Standards untergebracht werden?: Geschirr komplett (nichts in Ess-/Wohnzimmer)
Welchen Stauraum gibt es sonst noch?: Speisekammer, Hauswirtschaftsraum
Was/wie wird gekocht? (Alltagsküche, Menüs, Snacks usw): Alltagsküche
Wie häufig wird gekocht?: (fast) täglich 1x warm
Wird alleine gekocht? Oder auch gemeinsam? Mit und für Gäste?: wir kochen als Familie auch gemeinsam mit den Kindern
Was stört an der bisherigen Küche und was soll die neue Küche unbedingt können? Warum?:
Welche Mülltrennung soll in der Küche vorgehalten werden?:
Altpapier, Biomüll, Gelber Sack Müll, Restmüll
Steht schon ein Küchenhersteller fest oder wird bevorzugt?: nein
Steht schon ein Gerätehersteller fest oder wird bevorzugt?: nein
Preisvorstellung (Budget): bis 15.000,-
 

Anhänge

  • EG.PNG
    EG.PNG
    96 KB · Aufrufe: 453
  • Alno2.PNG
    Alno2.PNG
    789,6 KB · Aufrufe: 954
  • Alno3.PNG
    Alno3.PNG
    771,2 KB · Aufrufe: 408
  • Alno4.PNG
    Alno4.PNG
    888 KB · Aufrufe: 560
  • Alno5.PNG
    Alno5.PNG
    864,4 KB · Aufrufe: 408
  • Alno6.PNG
    Alno6.PNG
    895,4 KB · Aufrufe: 449
  • PLAN1.POS
    7,1 KB · Aufrufe: 168
  • PLAN1.KPL
    3,6 KB · Aufrufe: 157
  • Alno7.PNG
    Alno7.PNG
    211,2 KB · Aufrufe: 405
  • Alno8.PNG
    Alno8.PNG
    818,3 KB · Aufrufe: 452
Zuletzt bearbeitet von einem Moderator:
Hallo und herzlich willkommen.

Top Noten für den Eingangspost, sieht man selten. :top:
 
was mir als erstes so in den sinn kam: speisekammer streichen, technik raum so vergrößern das eine schöne 60er niesche für die hochschränke entsteht und dann ein flugzeugträger :cool:

EG.PNG

so eine speisekammer ist unnötig teuer umbauter winziger raum der kaum gut nutzbar ist. viel praktischer sind da die hochschränke.
 
Wir haben die bestehende Speise auch rausgerissen. Das war mal der Traum meiner Schwiegermutter und sie hat sie sich extra bauen lassen. Ich hab sie wieder rausgerissen. ;D
Für mich war das immer ein dunkles, enges Loch. Die Sachen ganz unten/oben und ganz hinten hat kaum jemand aus den Regalen geholt und ich dachte immer nur an Spinnenecken.
Ich würde mir so eine Kammer auch nochmal gut durchdenken - vielleicht zugunsten von Platz für Schränke mit Schubkästen oder Schubladen.
 
also die Speise ist nicht klein, 131cm tief. Aber, man könnte die Speise quer teilen, eine Reihe HS in der Küche und auf der Rückseite, wenn Platz eine Reihe mehr Stauraum.
 
für mich auch. und man neigt wirklich dazu die dinge ganz hinten verstauben zu lassen. die o.g sinnenecken sind mir ebenfalls ein graus. die idee von evelin finde ich aber auch nciht ganz verkehrt
 
Hallo!
Die Idee von Dieentebertram ist sicher eine Überlegung wert. Wir haben uns Gedanken gemacht,
wie man am besten Stauraum schafft. Die Speisekammer ist dann so etwas wie ein begehbarer Schrank. Auch in einem (großen) Schrank kann ich viel verstecken, was erst nach Jahren wieder zum Vorschein kommt ;-)

Eine zusätzliche Wand hilft insofern, dass man von beiden Seiten Regale oder Schränke dran stellen kann. Wenn wir die Wand von der Speisekammer wieder raus nehmen, hat der dann größere Technikraum evtl. viel Platz in der Mitte des Raumes, der nicht wirklich als Stauraum dienen kann (Regale stehen halt immer an den Wänden). Man muss bedenken, dass wir keinen Keller haben...
 
"Regale stehen halt immer an den Wänden"

Aber bei Euch stören Tür und Fenster, um die Wand gut nutzen zu können. Falls also die Tür vom Technikraum verschoben werden kann ...

Außerdem kann man (je nach Raumgröße) durchaus Regale auch ohne Wand mittig in den Raum stellen. Haben meine Eltern so, und zwar parallel zu einem Regal an der Wand. Hinter dem mittigen Regal steht dann noch Zeugs. Das Regal bildet quasi eine weitere Abstellwand im Raum oder wäre alternativ beidseitig zu bestücken.
 
Zuletzt bearbeitet:
ich empfehle dir, den Raum mit max Breite, also 9m im Planer darzu stellen. Den Tisch und die Stüle in Sitzposition, dh die Stüle nicht unter den Tisch schieben. Denn dann sieht alles etwas anders aus.

Wichtige Frage ist die Terassentür. Ist es eine Schiebetür?

Den Tisch parallel zur Insel stellen, denn wer will schon an eine Wand starren und der Garten ist im Rücken.

Denn wenn du den Raum "kompletter" darstellst, wirst du merken, dass die HS an der Speisewand eigentlich im Weg stehen.

Deshalb würde ich vorschlagen, dass du 2 x HS in die Speisewand schiebst, sie stehen dann soviel vor, dass man den Sockel /Füsse nicht mehr sieht. Die HS schweben dann. Die Tür in die Speise als Schiebetür, die HS in der Wand dann mittig einbauen.

Dadurch kannst du die Insel länger machen, 270cm (3x90) + Blenden, was dir mehr Ablagefläche rechts und links vom KF erlaubt.

hier mal grob, wie es aussehen würde

AUP1.JPG

Auch würde ich den TV nicht an der Wand planunten vorsehen, sondern planlinks. Ansonsten siehst du nichts, weil immer das Licht drauf scheint. Zwei Couchen gegenüber sind einladender zur Unterhaltung , man kann auf beiden die Füsse hochlegen und in die Röhre schauen.
 
ich habe die HS mal in die Wand verschoben und einen neuen Plan gemacht.

Ich frage mich, ob es nicht Probleme mit dem Backofen gibt, wenn die Backofentür direkt an die Wand angrenzt. Wird die Wand dann durch Dampf etc. nicht dunkel und unansehnlich? Außerdem
hat der HS unten einen Lüftungsschlitz. Oben auch, der ist dann in der Speisekammer.
Alno_v2_2.PNG
Alno_v2_1.PNG

Die Terassentür ist eine Schiebetür. Auch für die Speisekammer hatten wir eine Schiebetür angedacht. Gibt es im Alnoplaner nicht. Den Durchgang zum Treppenhaus habe ich jetzt auch erstmal offen gelassen.
 

Anhänge

  • PLAN2.KPL
    3,6 KB · Aufrufe: 150
  • PLAN2.POS
    10,1 KB · Aufrufe: 167
ich glaube nicht, dass dein BO den halben Tag und jeden Tag auf 300 Grad läuft. Auch glaube ich nicht, dass du verderbliche Lebensittel in der Speise unterbringst, dafür gibt es einen Kühlschrank. Und seit wann braucht ein BO Schlitze im Sockel ? Wärme geht nach oben und unter dem BO sind noch Auszüge. Bei uns zB Süsskram, die sich nicht verändern, wenn der BO eine Stunde auf 300 Grad läuft (Pizza).

Es gibt einige Küchen im Forum, wo HS in die Wand versenkt wurden, weiss jetzt aber nicht wer. Schau mal in den Fertigen nach.

Wie kommst du darauf, dass die Wand verschmoren soll? erstens ist neben dem HS mit BO eine Blende und hast du schon Küchen gesehen, wo es rechts und links vom BO schwarz wird? wenn das der Fall wäre, ist was mit dem BO nicht in Ordnung (Dichtung). Die heisse Luft geht nach vorne aus.

Aber, jetzt stelle genau denselben Grundriss mit HS vor der Wand und kürzerer Insel rein. Denn ich glaube, dass das mit den Laufwegen vom/um den Tisch und HS ein Schlangenweg wir. Stell die Grundrisse nebeneinander als Minaturansicht nicht Vollbild ein.
 
Man könnte auch BOs und Kühlgeräte tauschen. Hätte auch den Vorteil, dass die Kühlgeräte noch etwas leiser und vom Essbereich besser zugänglich würden.
 
ich finde zudem das die höhen der oberschränke und hochschränke noch angepasst werden sollten, die enden alle unterschiedlich hoch, sieht komisch aus finde ich
 
@Evelin: Ich hatte nur nach den Lüftungsschlitzen gefragt, weil der Alno Planer sie automatisch
in den geräteschrank eingebaut hat. Aber wenn man sie nicht braucht, umso besser!


Alno_v1_Grundriss.PNG Alno_v3_Grundriss.PNG

@Dieentebertram: Ja, das habe ich auch schon bemerkt, habe ich mal angepasst. Außerdem haben wir einen BO und eine MW, die leider nicht dieselbe Höhe haben, weswegen sie in zwei HS nebeneinander nicht gut aussehen werden. Ich habe daher mal den Schrank planunten in 3 HS geändert.

Alno_v3_2.PNG
 

Anhänge

  • PLAN3.KPL
    3,6 KB · Aufrufe: 155
  • PLAN3.POS
    10,5 KB · Aufrufe: 157
@Dieentebertram: Achso, du meintest die Oberschränke. Wenn wir die höher machen, kommt man nicht mehr dran. Deswegen haben wir auch ein Fenster geplant, das nur 62.5cm hoch ist. Alternative wäre ein Fenster mit 87.5cm Höhe. Dann wären die OS wahrscheinlich oben bündig, aber halt zu hoch,
um sie sinnvoll nutzen zu können.
 
Die OS ueber dem Fenster gefallen mir so. Ich gehoere auch zu denen, wenn ich ohne Hilfe nicht rankomme, dann moechte ich es auch nicht.
 
also an die hochschränke kommt man oben ja auch nur mit tritt, warum dann die oberschränke nicht auch größer machen und halt oben auch nur selten genutztes mit dem tritt erreichen? so ergibt sich wenigstens ein einheitliches bild ;-)
 
Wir haben noch ein paar kleine Änderungen an unserer Planung gemacht:

Alno_v5_Grundriss.PNG Alno_v5_1.PNG

Wir tendieren jetzt doch dazu, keine Speisekammer zu planen und dafür die Hochschränke
"schwebend" in die Wand einzubauen. Mit Speisekammer würde das keinen Sinn machen.
Die Tür zwischen den Hochschränken führt dann direkt in den Technikraum, den man
dann auch als Stauraum verwenden kann. (Oder ist es keine gute Idee, den
Technikraum als Speisekammer zu nutzen? Was habt ihr für Erfahrungen gemacht?)

Für diese Planung haben nun zwei Angebote eingeholt:

Angebot 1:
Häcker ClassicART (also grifflos)
Front: Laser Brillant (Lacklaminat)
Preis: 9500 Euro (Möbel inkl. Lieferung und Montage, keine Geräte)
Aufpreis auf systematART ca. 10%

Angebot 2:
Nolte Matrix150 (grifflos)
Front Lux (Lacklaminat, hochglänzend)
Preis: 12000 Euro (Möbel inkl. Lieferung und Montage, keine Geräte)

Wie schätzt ihr die Angebote ein? Mir erscheint das zweite Angebot zu teuer.
Ist das Angebot für die Häcker Küche in Ordnung?

Bei der grifflosen Variante der Häcker Küche verlieren wir 2x3cm Stauraum,
verglichen mit der Variante mit Griffen. Diesen könnte wir durch ein "Upgrade"
auf systemART (78cm Korpushöhe) wieder "rausholen". Die Frage ist hier
wahrscheinlich grundsätzlich, ob man eine grifflose Köche haben will
oder nicht. Wenn ja, muss man wohl auf etwas Stauraum verzichten.
 

Anhänge

  • PLAN5.KPL
    3,6 KB · Aufrufe: 162
  • PLAN5.POS
    12 KB · Aufrufe: 155
Mir wären Spüle und Kochfeld jeweils zu symmetrisch angeordnet, dadurch hat man nirgends eine wirklich große Arbeitsfläche und auch keine schöne Arbeitsergonomie. Bessere wäre es wenn diese im Versatz zueinander sind. Dazu fehlt noch ein MUPL

Nolte Matrix hat einen höheren Korpus, insofern is der Mehrpreis auch ein mehr an Stauraum. Bei Häcker würde ich auch auf jeden Fall mit 78er Korpus nehmen.
 

Ähnliche Beiträge

Neff Hausgeräte Ballerina Küchen Blum Bewegungstechnologie Weibel - Intelligente Küchenlüftung

Neff Spezial

Blum Zonenplaner

Weibel Abluft-Tuning

Weibel Abluft-Tuning
Zurück
Oben